Published on Archi.ru (https://archi.ru)

20.06.2018

​A Next Generation School

Alyona Kuznetsova
Architect:
Aleksandr Popov
Olga Tchernova
Studio:
Archimatika

Upon the project of ARCHIMATIKA, Kiev has built a new building of the Pechersk School International, the image and structure of which answer the needs of the latest trends in pedagogy.

Pechersk School International © Archimatika
Pechersk School International © Archimatika


In the categories of ARCHIMATIKA, the PSI building can arguably be considered a “PRO-school”. PSI is one of the few schools in Kiev that works in accordance with the International Baccalaureate programs: the instruction is given in English, a lot of attention is given to sports and fine arts, the children are taught to think critically, tolerantly, and open-mindedly, and the school environment is generally conducive to refining the children’s talents. The students of PSI are children aged from 3 to 18, about a third of them are Ukrainians, the others coming from 40 countries of the world, the total number of students being 450. The school got its name from the district where it was originally situated – Pechersk; its founders thought it appropriate to also include a reference to the Kiev-Pecherskaya Laura as the historical educational center.

PSI Ïå÷åðñêàÿ ìåæäóíàðîäíàÿ øêîëà from Archimatika on Vimeo.

Pechersk School International © Archimatika
Pechersk School International © Archimatika


The school is situated in the residential area built in the early 2000’s, between the Goloseevskaya and Demeevskaya metro stations. The original building, to which ARCHIMATIKA was to add new units, is essentially a standard two-story building, looking at which one would hardly guess that it actually hosts an advanced school. According to the director of ARCHIMATIKA, Alexander Popov, it rather “reflected the values of the departing epoch – the time when a school was supposed to be a little model of the army barracks”. In addition, the school administration wanted to get a building that would conform to the IB standards in its set of features as well: at that moment, it lacked spacious classrooms, a large auditorium, a swimming pool, and a decent environment for extracurricular activities.

Pechersk School International © Archimatika
Pechersk School International © Archimatika


ARCHIMATIKA set for itself a goal of tying in the new building with the old one, at the same time accentuating PSI’s innovative approach to organization of the educational process, in which an important part is played by creative activities and sports.

Alexander Popov shares: “The new building was supposed to become the embodiment of the new epoch. What we didn’t want to do was crossing out the established style of the old building by some contrastive design solution. However, we didn’t want to be totally submitted to it either. And this is how we came to this evolutionary idea: developing the old architecture and elevating it to a whole new level. We left unchanged the number of floors, the beige and brown colors, and we introduced new materials, new bright colors, and the diversity of architectural techniques”.

Pechersk School International © Archimatika
Pechersk School International © Archimatika


The new building consists of three interconnected units. The first one is the link that continues the “corridor” of the standard block. The boundary between the old and the new turned out to be of a rather obvious character, yet at the same time respectful and quite natural. The new building is executed in approximately the same proportions and colors but it broadcasts quite a different idea: no two windows of the ones that are gathered in the framework of a brick belt are exactly alike. This part of the building contains the classrooms of the Early Childhood Development Center.

Pechersk School International © Archimatika
Pechersk School International © Archimatika


The main volume – a four-story building filled with functions – looks slightly more pristine. The resonant bright colors are squeezed here into slim inserts in the piers; the building is chiefly dominated by red brick, the material of classic English schools and the most coveted campuses, to which, hopefully, the students of this school will go after they graduate.

Pechersk School International © Archimatika
Pechersk School International © Archimatika


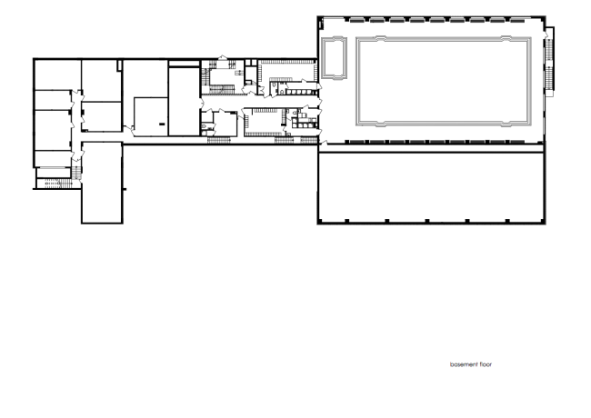
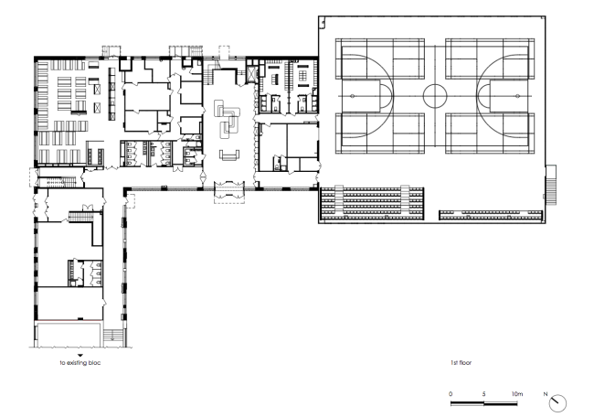
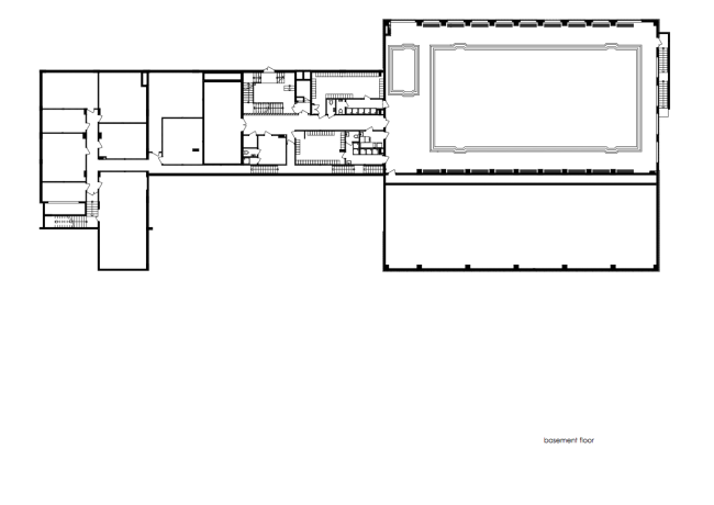
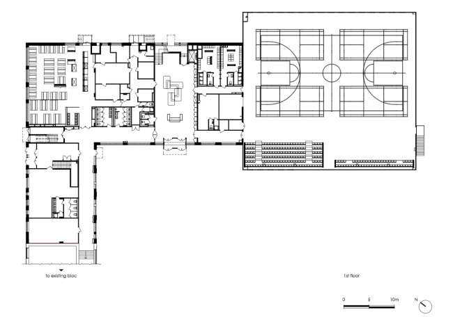
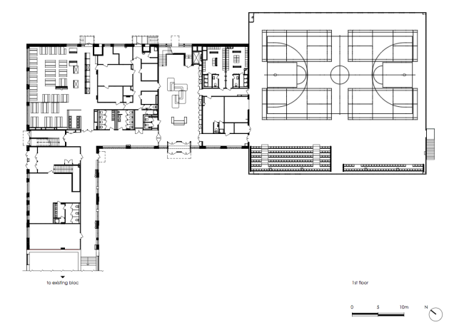
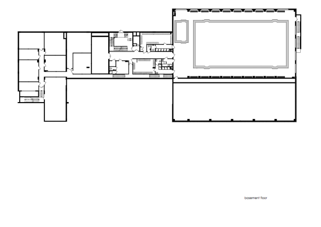
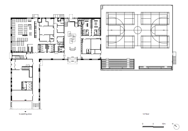
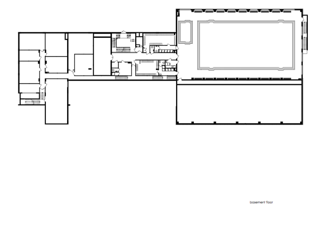
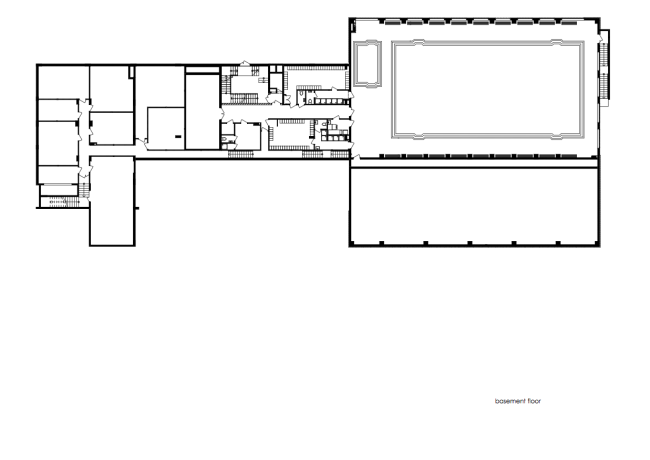
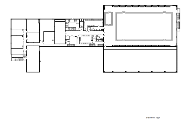
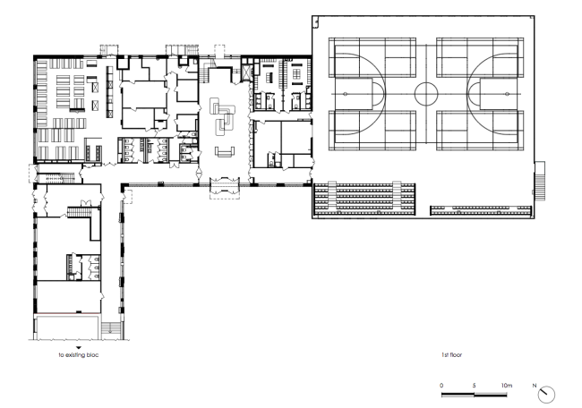
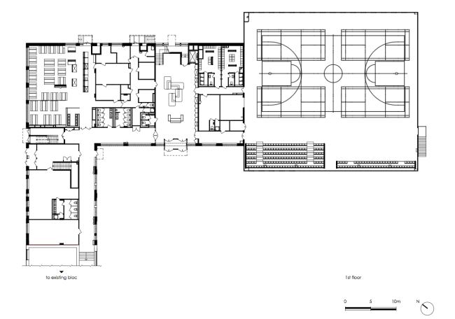
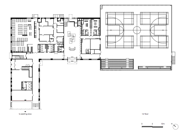
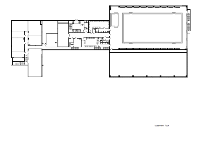
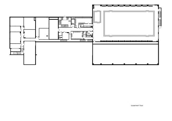
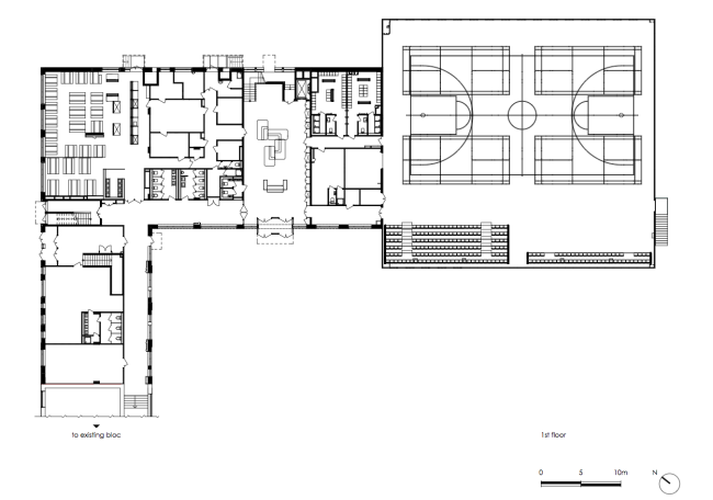
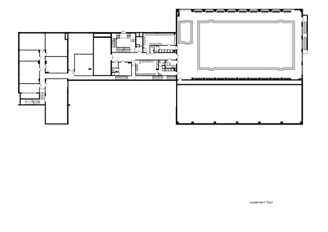
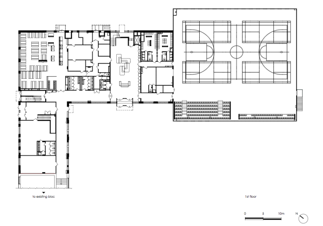
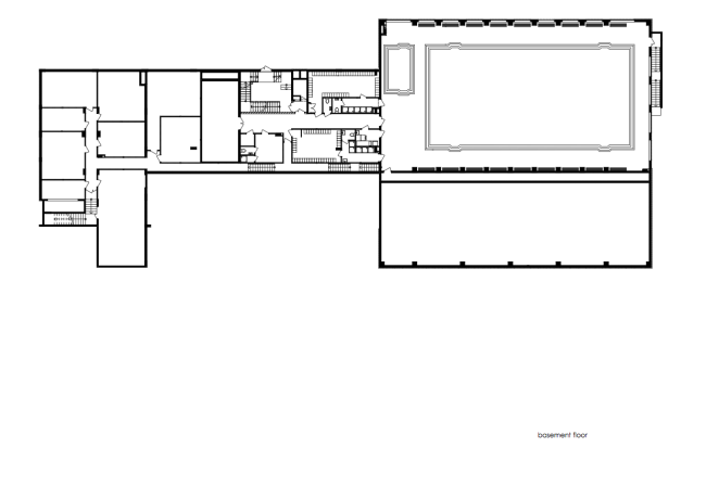
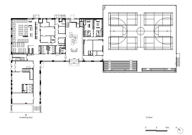
The basement floor is occupied by the locker rooms of the swimming pool. On the outside, the first floor is highlighted in white; the first floor contains a hall with a public waiting and meeting lounge, a gym with telescopically folding spectator seats, two rock-climbing walls, and a cafeteria.

Plan of the basement floor. Pechersk School International © Archimatika
Plan of the basement floor. Pechersk School International © Archimatika


Plan of the first floor. Pechersk School International © Archimatika
Plan of the first floor. Pechersk School International © Archimatika


Cafeteria. Pechersk School International © Archimatika
Cafeteria. Pechersk School International © Archimatika


The second floor is allotted to the creative activities. It contains music, drama, and dance studios. One of the rooms is called Black Box – all of its walls, its floor, and its ceiling are black to enhance the perception of the stage effects. The third floor consists of laboratories and spacious classrooms up to a 100 square meters for chemistry, biology, and physics studies. The fourth floor is occupied by a multifunctional auditorium that can be used for gatherings, theater performances, and other events: inside, there is a mobile stage and a movable lighting system.

Multifunctional auditorium. Pechersk School International © Archimatika
Multifunctional auditorium. Pechersk School International © Archimatika


The third last unit is essentially a gym. It is a simple volume but it looks rather solemn at the expense of white “column” piers, and rather resonant thanks to the dark window apertures, curtailed by color inserts to the “flat/sharp” keys view.''

Pechersk School International © Archimatika
Pechersk School International © Archimatika


The basement of this building contains two swimming pools for children of different ages. The rest of the space is occupied by a gym, which is also multifunctional. The spectator seats are telescopic – meaning, they can fold inside themselves, vacating more space. There is also a special partition, thanks to which the gym can be used by two different classes simultaneously. The school administration plans not only to coach the school teams here but also organize international sports competitions.

Pechersk School International © Archimatika
Pechersk School International © Archimatika


Gym. Pechersk School International © Archimatika
Gym. Pechersk School International © Archimatika


Between the old and new buildings, there is now a little yard that was also landscaped by ARCHIMATIKA. This will be the place where the junior class students and the kindergarten kids will meet high school students: next to the playground, there is an amphitheater, where outdoor extracurricular lessons can be conducted, or this place can be used just to hang out and visit with one another.

Pechersk School International © Archimatika
Pechersk School International © Archimatika


Pechersk School International © Archimatika
Pechersk School International © Archimatika


Pechersk School International © Archimatika
Pechersk School International © Archimatika


By the time of designing this project, most of the engineering lines had already been laid, and the electric power limit was setting the limits (no pun intended) for the selection of engineering equipment. ARCHIMATIKA opted for installing a heat pump unit, which not only saves the power but also makes the school building autonomous in terms of heating. Also, a 6-dimensional BIM model was developed – it included the three dimensions of space, the working schedule, evaluation of their cost, and, finally, the information model that will help to manage the energy expenditure, control the operation of the engineering equipment, and ensure its timely maintenance.

Pechersk School International © Archimatika
Pechersk School International © Archimatika


Pechersk School International © Archimatika
Pechersk School International © Archimatika


Pechersk School International © Archimatika
Pechersk School International © Archimatika


The interior of the school was developed by the SVOYA Studio. The designers tried to avoid overloading the space, making the accents chiefly by means of the lighting system. Their solutions also meet the change-on-the-fly requirements: the hall has modular furniture in it; there are pull-out bulletin boards on its walls, behind which there is a plasma TV panel; the niches in the opposite wall hold the awards and cups won by the students. One of the unconventional solutions is the white tile in the swimming pool. This way, the designers wanted to stress that the school does care about its children, and the water in the pool will always remain clean.

Hall. Pechersk School International © Archimatika
Hall. Pechersk School International © Archimatika


Hall. Pechersk School International © Archimatika
Hall. Pechersk School International © Archimatika


Pechersk School International © Archimatika
Pechersk School International © Archimatika


Thanks to its architecture and its interior design, the PSI got a space that works in unison with the modern pedagogy. The classrooms are spacious and beautiful, with plenty of light in them. The environment suggests itself to communication, contemplation and walking. There is every opportunity for studying, practicing, demonstrating one's skills, and, just as importantly, plenty of opportunities for recreation. The space does not set any rigid boundaries but it allows the architects to change it and fine-tune it to fit the needs of the future generations.

Recently, the building of the school was awarded the first prize of Ukrainian Urban Awards in the category “Public Object Architecture”.