Published on Archi.ru (https://archi.ru)

07.05.2018

​Low-rise City Blocks in the Orenburg Plains

Julia Tarabarina
Architect:
Igor Shvartsman
Studio:
Sergey Kisselev & Partners

Prepared by Sergey Kiselev and Partners, the concept of developing a 150-hectare chunk of land at the outskirts of Orenburg has at least two major string points: the presence of a fair number of what usually is considered to be the components of a comfortable city and the absence of any overly “marketing” techniques – in other words, the project is realistic to the bone.

Architectural and town planning concept of housing construction in the city of Orenburg © Sergey Kisselev and Partners
Architectural and town planning concept of housing construction in the city of Orenburg © Sergey Kisselev and Partners


Designed by Sergey Kiselev and Partners in 2016, the concept of a housing complex situated at the western outskirts of Orenburg, in terms of format resembles the pilot renovation projects and competition projects for new mass housing construction organized by the Housing Mortgage Lending Agency – the former resemble the project in question by the size of their land site (over a 100 hectares), and the latter – by the moderate number of five to seven floors that matches exactly the height restrictions proposed by KB Strelka. But then again, this project was prepared a year earlier, and it formally has nothing to do with the newly developed principles, albeit it is based on a similar approach.

“In Orenburg, the modern construction is represented by rather traditional-looking 17-20 story houses that remind the soviet building style of the perestroika period – explains the head of Sergey Kiselev and Partners, Igor Schwartzman – It feels like this mass of housing should be numerically enough to cover the needs of the city. And the investment company “Orenburgstroy” also has a few projects of this kind. The competition between the developers is stuck in a rut; everything goes by the rules that were formed along the way. They only compete in small details like the color of the façade, and that’s pretty much it.

Typical examples of Orenburg's modern housing construction. Photo courtesy by Sergey Kisselev and Partners
Typical examples of Orenburg's modern housing construction. Photo courtesy by Sergey Kisselev and Partners


Our client had this idea to try and compete in a different field by introducing a new product. This is how the task was born for designing low-rise buildings combined with a comfortable living environment – both in the yards and on the outside. A special stress was laid on the façades: they were to be reserved yet diverse, and at the same time systematic and inexpensive”.

The territory 150 hectares in size – half again as large as that of the new pilot renovation projects – borders on its west on the Zagorodnoe Highway, which basically serves the function of the ring road for Orenburg. Formally, the city territory stretches 14 kilometers further westward but it is not developed in any way and is occupied by meadows and plains (forests are scarce in these parts) with an odd dacha house here and there. It is a typical green field – even the secondary roads are only being designed here for the most part; they will appear simultaneously with the new housing complex.

Architectural and town planning concept of housing construction in the city of Orenburg. Project, 2016 © Sergey Kisselev and Partners
Architectural and town planning concept of housing construction in the city of Orenburg. Project, 2016 © Sergey Kisselev and Partners


The territory of construction. Photo courtesy by Sergey Kisselev and Partners
The territory of construction. Photo courtesy by Sergey Kisselev and Partners


Architectural and town planning concept of housing construction in the city of Orenburg. The current state © Sergey Kisselev and Partners
Architectural and town planning concept of housing construction in the city of Orenburg. The current state © Sergey Kisselev and Partners


Based on the terrain survey, the authors first of all paid their attention to a ravine that traversed the territory diagonally from southeast to northwest. The ravine becomes the axis of the park promenade that becomes the main public area of the district, strictly vehicle-free. At the very start of it, the architects were able to find a place for a church, on the topmost spot. Behind it, there is a square, and still further on, there is a chain of manmade creeks flowing down the terrain from south to north; some geoplastics for the sake of variety. “We were surveying this land, and, standing next to the north junction of the Zagorodnoe Highway, we saw this drainage pipe that was meant to route the water out of the ravine – shares the chief architect of the project, Anastasia Khomyakova – There is no river flowing here, so, we decided that an extra reservoir would add to the promenade’s variety and beauty”.

Architectural and town planning concept of housing construction in the city of Orenburg. The layout of the park area © Sergey Kisselev and Partners
Architectural and town planning concept of housing construction in the city of Orenburg. The layout of the park area © Sergey Kisselev and Partners


Architectural and town planning concept of housing construction in the city of Orenburg. The landscaping of the park area. Fragment 1 © Sergey Kisselev and Partners
Architectural and town planning concept of housing construction in the city of Orenburg. The landscaping of the park area. Fragment 1 © Sergey Kisselev and Partners


Architectural and town planning concept of housing construction in the city of Orenburg. The landscaping of the park area © Sergey Kisselev and Partners
Architectural and town planning concept of housing construction in the city of Orenburg. The landscaping of the park area © Sergey Kisselev and Partners


Architectural and town planning concept of housing construction in the city of Orenburg. The landscaping of the park area © Sergey Kisselev and Partners
Architectural and town planning concept of housing construction in the city of Orenburg. The landscaping of the park area © Sergey Kisselev and Partners


Architectural and town planning concept of housing construction in the city of Orenburg. The landscaping of the park area © Sergey Kisselev and Partners
Architectural and town planning concept of housing construction in the city of Orenburg. The landscaping of the park area © Sergey Kisselev and Partners


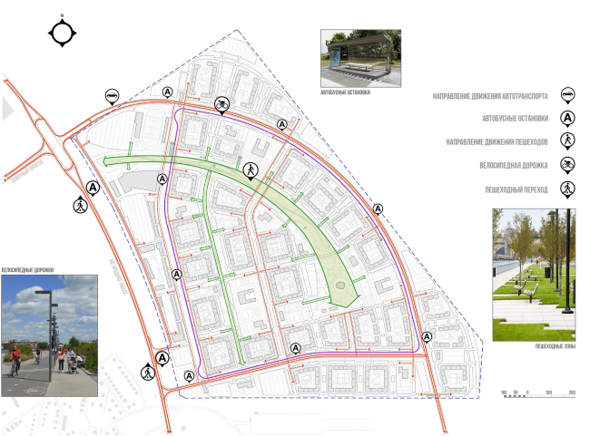
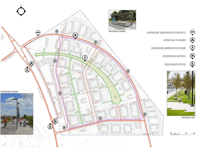
The park is traversed by two automotive roads, one of them going through a bridge. This bridge creates an extra spacial intrigue, at the same time allowing the cars to traverse the boulevard without intruding into the pedestrian zone. The park promenade is situated rather far away from the main and the busiest Zagorodnoe Highway, which must make this place peaceful and meditative. The main park is augmented by a few other parks of a smaller size that are situated between the city blocks and yet another promenade (also of a smaller size) running from north to south. There is also a bicycle road running along the perimeter of the complex.

Architectural and town planning concept of housing construction in the city of Orenburg. Vehicle and pedestrian streams © Sergey Kisselev and Partners
Architectural and town planning concept of housing construction in the city of Orenburg. Vehicle and pedestrian streams © Sergey Kisselev and Partners


Architectural and town planning concept of housing construction in the city of Orenburg. The layout of the location plan; the road network  © Sergey Kisselev and Partners
Architectural and town planning concept of housing construction in the city of Orenburg. The layout of the location plan; the road network © Sergey Kisselev and Partners


Architectural and town planning concept of housing construction in the city of Orenburg. Project, 2016 © Sergey Kisselev and Partners
Architectural and town planning concept of housing construction in the city of Orenburg. Project, 2016 © Sergey Kisselev and Partners


Architectural and town planning concept of housing construction in the city of Orenburg © Sergey Kisselev and Partners
Architectural and town planning concept of housing construction in the city of Orenburg © Sergey Kisselev and Partners


From the side of the highway, the architects designed a “buffer zone” consisting of retail stores catering for both the residents of the new neighborhood and the nearest city houses across the highway. The main accent of this pragmatic public area must be the sports center with an adjacent stadium – the authors proposed to place it in the north corner of the neighborhood, next to the junction. The transport layout provides several accessibility levels: the role of the main city artery is allotted to the highway; it is then joined by a semicircle of broad streets that frame the neighborhood and connect the north and south junctions. Two streets separate the residential buildings from the retail area next to the highway and provide a convenient driving access to the stores. The whole territory is permeated by more narrow capillaries: they surround the city blocks and connect them to one another. All of the parking lots are overland, situated along the drives between the blocks, plus, there are a few peripheral parking lots. The infrastructure of the neighborhood consists of 7 kindergartens, 3 schools, one “school of fine arts”, and 3 sports areas with hockey fields.

Architectural and town planning concept of housing construction in the city of Orenburg. Scheme of the functional zoning of the territory © Sergey Kisselev and Partners
Architectural and town planning concept of housing construction in the city of Orenburg. Scheme of the functional zoning of the territory © Sergey Kisselev and Partners


The houses themselves are 29 city blocks from 4 to 7 stories high. All of the yards are vehicle-free, closed in order to ensure the protection from the Orenburg winds: for this specific reason, the narrow slits between the houses are never situated one exactly opposite the other. The main entrances are situated on the outside but the hallways can be entered from the inside as well. The residents of the bottom floors are getting little gardens beneath their windows, while the retail stores are grouped closer to the highway.

Architectural and town planning concept of housing construction in the city of Orenburg. Project, 2016 © Sergey Kisselev and Partners
Architectural and town planning concept of housing construction in the city of Orenburg. Project, 2016 © Sergey Kisselev and Partners


Architectural and town planning concept of housing construction in the city of Orenburg. The scheme of the master plan © Sergey Kisselev and Partners
Architectural and town planning concept of housing construction in the city of Orenburg. The scheme of the master plan © Sergey Kisselev and Partners


Architectural and town planning concept of housing construction in the city of Orenburg. The scheme of allocating the residential blocks with the numbers of floors indicated © Sergey Kisselev and Partners
Architectural and town planning concept of housing construction in the city of Orenburg. The scheme of allocating the residential blocks with the numbers of floors indicated © Sergey Kisselev and Partners


Architectural and town planning concept of housing construction in the city of Orenburg. The scheme of distributing the residential sections © Sergey Kisselev and Partners
Architectural and town planning concept of housing construction in the city of Orenburg. The scheme of distributing the residential sections © Sergey Kisselev and Partners


Architectural and town planning concept of housing construction in the city of Orenburg. The development drawing of the yard facades of Residential Block #1 © Sergey Kisselev and Partners
Architectural and town planning concept of housing construction in the city of Orenburg. The development drawing of the yard facades of Residential Block #1 © Sergey Kisselev and Partners


The houses are of different height: closer to the edges and corners they are seven stories high, and closer to the center the number of floors incrementally decreases down to four – the height changes smoothly but steadily, the projections and indentations alternating in order to fight the visual monotony and create an impression of a big city.

Architectural and town planning concept of housing construction in the city of Orenburg. The development drawing of the street facades of Residential Block #1 © Sergey Kisselev and Partners
Architectural and town planning concept of housing construction in the city of Orenburg. The development drawing of the street facades of Residential Block #1 © Sergey Kisselev and Partners


Architectural and town planning concept of housing construction in the city of Orenburg © Sergey Kisselev and Partners
Architectural and town planning concept of housing construction in the city of Orenburg © Sergey Kisselev and Partners


Architectural and town planning concept of housing construction in the city of Orenburg. Project, 2016 © Sergey Kisselev and Partners
Architectural and town planning concept of housing construction in the city of Orenburg. Project, 2016 © Sergey Kisselev and Partners


Architectural and town planning concept of housing construction in the city of Orenburg. Project, 2016 © Sergey Kisselev and Partners
Architectural and town planning concept of housing construction in the city of Orenburg. Project, 2016 © Sergey Kisselev and Partners


Architectural and town planning concept of housing construction in the city of Orenburg. Scheme of the master plan of Residential Block #1 with the landscaping part © Sergey Kisselev and Partners
Architectural and town planning concept of housing construction in the city of Orenburg. Scheme of the master plan of Residential Block #1 with the landscaping part © Sergey Kisselev and Partners


There are neither multilevel nor underground parking garages here: this was the client’s decision; the parking lots are distributed over the contours of the houses, and a few more large ones are situated closer to the public zones.

Architectural and town planning concept of housing construction in the city of Orenburg. Plan of the main roads and parking lots © Sergey Kisselev and Partners
Architectural and town planning concept of housing construction in the city of Orenburg. Plan of the main roads and parking lots © Sergey Kisselev and Partners


The client, the company “Orenburgstroy”, owns a concrete goods factory of its own with a small affiliated project institute. The factory manufacturers the panels, out of which the bearing framework of the housing complex will be assembled – this is why the layouts and the proportions of the future complex are based on the panel module and the construction set that springs from it. This, specifically, accounts for the unconventional height of the floor – 2.86 meters and the bearing wall space grid of 3.3 meters.

Meanwhile, the architects were still able to do some creative work on the layouts of the chiefly small-sized apartments within the framework of the set proportions: among other things, they were able to avoid the “window to window” effect at the corners of the blocks, but, refraining on the south façades from the traditional technique “communication nucleus in the corner”, they were able to shift the stairway and get more sunlight for the residential rooms.

In accordance with the trends of the market, the apartments are rather small, about half of them are single-room ones but three-room apartments constitute about 15% of the total amount; there are even a few layouts with two bathrooms. All of the buildings are equipped with elevators, including the four-story sections.

Architectural and town planning concept of housing construction in the city of Orenburg. Section Ó-2. Plans. Facades © Sergey Kisselev and Partners
Architectural and town planning concept of housing construction in the city of Orenburg. Section Ó-2. Plans. Facades © Sergey Kisselev and Partners


Architectural and town planning concept of housing construction in the city of Orenburg. Section Ó-1. Plans. Facades © Sergey Kisselev and Partners
Architectural and town planning concept of housing construction in the city of Orenburg. Section Ó-1. Plans. Facades © Sergey Kisselev and Partners


Architectural and town planning concept of housing construction in the city of Orenburg. Section Ï-2. Plans. Facades © Sergey Kisselev and Partners
Architectural and town planning concept of housing construction in the city of Orenburg. Section Ï-2. Plans. Facades © Sergey Kisselev and Partners


Architectural and town planning concept of housing construction in the city of Orenburg. Sections Ï-1-1, Ï-1-2. Plans. Facades © Sergey Kisselev and Partners
Architectural and town planning concept of housing construction in the city of Orenburg. Sections Ï-1-1, Ï-1-2. Plans. Facades © Sergey Kisselev and Partners


Architectural and town planning concept of housing construction in the city of Orenburg. Sections Ï-1-3. Plans. Facades © Sergey Kisselev and Partners
Architectural and town planning concept of housing construction in the city of Orenburg. Sections Ï-1-3. Plans. Facades © Sergey Kisselev and Partners


While the construction panels will be manufactured at the local factory, the façade, according to the architects’ proposal, will be made of Sembrit, a kind of mass-colored fiber concrete. The façade design is based on a single technique: the staircase and elevator units are dark-gray, and the other walls are lighter, with inclusions of Sembrit that “sliced” in thin stripes and laid in an overlapping fashion, like colored wooden boards. The color also allows the architects to mark the houses and helps with the navigation, the fact that the material is mass-colored (or “bulk-tinted”) holding a promise of a longer service life. “We use the same kind of panels in the rainbow-colored “pixel” house “Avangard” on the Novocheremushkinskaya Ulitsa – Anastasia Khomyakova reminisces – And they haven’t lost any of their color since 2006”. All of the stanzas are glazed; the air conditioning units are hidden in special casings.

Architectural and town planning concept of housing construction in the city of Orenburg. Fragment of the facade of a residential section © Sergey Kisselev and Partners
Architectural and town planning concept of housing construction in the city of Orenburg. Fragment of the facade of a residential section © Sergey Kisselev and Partners


Architectural and town planning concept of housing construction in the city of Orenburg © Sergey Kisselev and Partners
Architectural and town planning concept of housing construction in the city of Orenburg © Sergey Kisselev and Partners


Architectural and town planning concept of housing construction in the city of Orenburg. Project, 2016 © Sergey Kisselev and Partners
Architectural and town planning concept of housing construction in the city of Orenburg. Project, 2016 © Sergey Kisselev and Partners


Architectural and town planning concept of housing construction in the city of Orenburg. Project, 2016 © Sergey Kisselev and Partners
Architectural and town planning concept of housing construction in the city of Orenburg. Project, 2016 © Sergey Kisselev and Partners




***

The possibilities that low-rise construction yields, its pluses and minuses, are widely discussed against the background of Moscow (and not only Moscow!) “anthills” of housing complexes. In addition, over the last few years, the design standards have grown significantly more demanding and complex; a whole “ABC” of comfortable housing techniques had formed. It’s easy to see that this project, developed in 2016, does have a lot of items from such “101 kit”. Possibly, it lacks some of the fashionable glitter or marketing details like super-state-of-the-art playgrounds, pitched roofs, roof terraces, two-level apartments and other elements that are meant to create a “wow” effect for the complex that will never be ultimately implemented.

In this instance – and the architects stress that – the projects was made in rigorous accordance with the client’s specifications, for whom it is the first experience of low-rise housing construction in Orenburg, and whose goal it is to understand just how well these apartments would sell, and how fast the complex will be built. The budget constraints were rather tight and no marketing twists were intended from the start. We will remind you here that the architects of Sergey Kiselev and Partners only worked on the concept that the client is planning to implement by the power of his concrete goods factory, and do that gradually, by degrees, maybe not even by quarters but by sections. Meanwhile, nonetheless, the complex does have a lot of up-to-date elements, such as little gardens beneath the windows of the bottom floors. The houses are standing not too densely; the architects were able to avoid the typical drawbacks of the city block planning, such as ineffective corners, at the same time keeping its advantages: weather protection and vehicle-free yards. Although the project is essentially devoid of any “flashy” details, one can see the style of the architects that did take the trouble of delving into the details of the future projects on all of its levels.

At the same time, the main charm of the project lies in its “reality” and in the happy medium that the architects found between the economy and delivering the necessary factors for comfort. The project is well-balanced and just asking to be implemented – and this is just the kind of example that we need for making the dream of “new format of urban spaces” come true.