Published on Archi.ru (https://archi.ru)

18.04.2018

​La Dolce Vita

Lara Kopylova
Studio:
PANACOM

In the project of the settlement with a telltale name of “Rafinad” (which literally translates as "Sugar Cubes"), located in the Khimki district of the Moscow area, PANACOM architects came up with the kind of housing that is versatile, human-friendly, and comfortable.

"Rafinad" settlement, project © PANACOM
"Rafinad" settlement, project © PANACOM


“Sewing seven hats out of a piece of sheepskin”

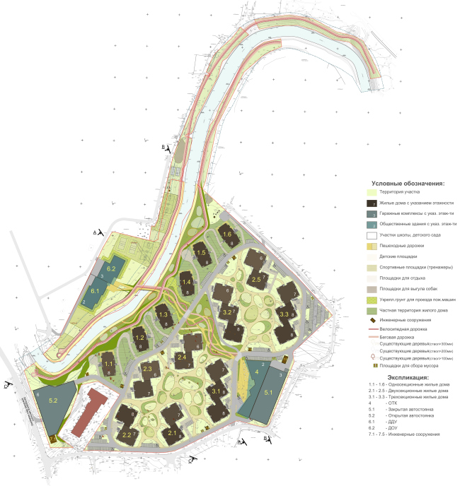
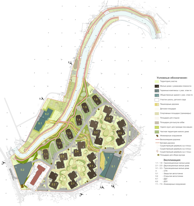
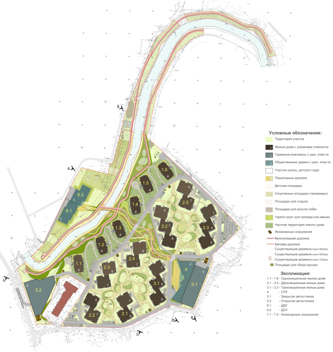
The task was to take the allotted 12 hectares and stuff them with as many apartments and parking places as possible, or, as the founder and chief architect of PANACOM, Arseniy Leonovich puts it, “sew seven hats from a small piece of sheepskin”. And the architects were able to do just that, proposing diverse façade designs and apartment layouts, designing various infrastructure projects, a bridge over the river, and a community center, combining human-friendly territory organization with art objects and a fitness promenade. The overall result is an exquisite project, its style probably best described as elegant retro modernism of the “pre-Strelka” epoch. There is no system of city blocks or streets here, the buildings being positioned in accordance with what might be called “seaside resort” principle amidst groves and meadows – which at once puts one in the relaxed kind of mood.

The traditional evening glass of kefir

Svistukha is a place remarkable in itself. One can still see the remains of the Stalin-era health resort here, almost exactly the kind that you will see in the “Volga-Volga” classic black-and-white Soviet movie – it feels as though the next minute you will see the characters in white pajamas sitting on the verandas of this health resort enjoying their evening glass of kefir.

As for the trees that were already there on the site, the architects tried to keep most of them intact, although they did not have much hope that all of these trees would survive the construction process. Not far away from “Rafinad”, there is a village named Trakhoneevo. Back in the day, it belonged to a son of the Greek Trachaniot who came to Russia in 1472 with the bride of Ivan the 3rd, Sophia Paleolog (Greek: Ζωή Σοφία Παλαιολογίνα).

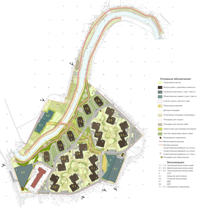
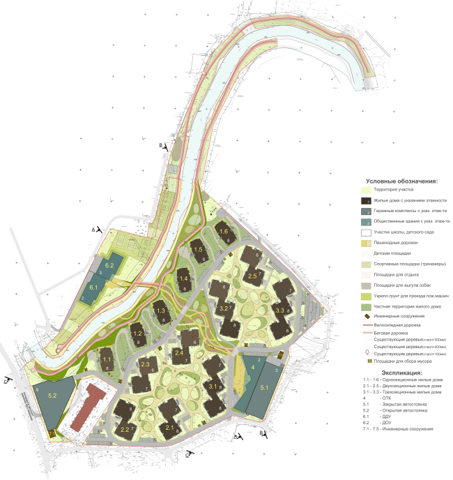
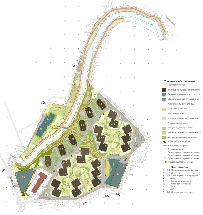
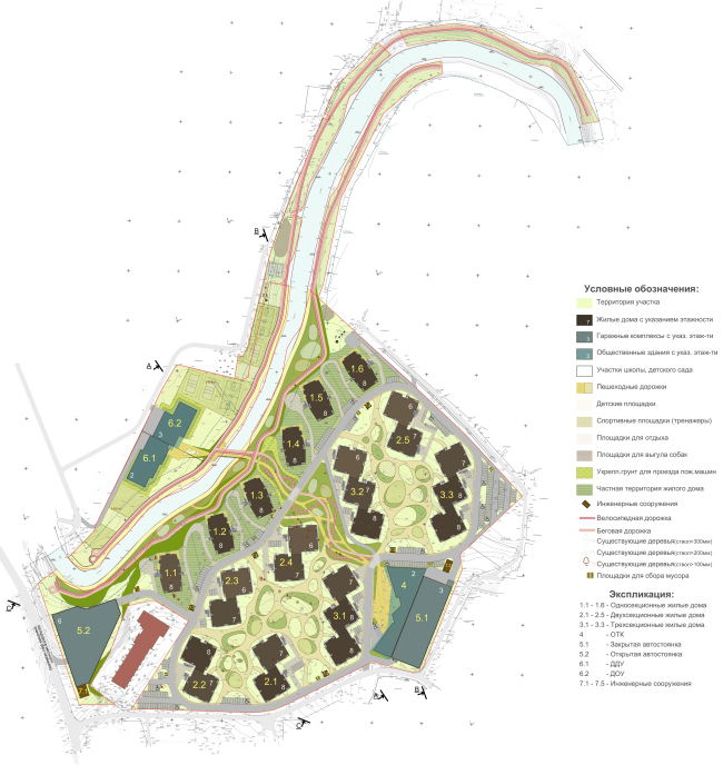
"Rafinad" settlement, project. Masterplan © PANACOM
"Rafinad" settlement, project. Masterplan © PANACOM


"Rafinad" settlement, project © PANACOM
"Rafinad" settlement, project © PANACOM


"Rafinad" settlement, project © PANACOM
"Rafinad" settlement, project © PANACOM


"Rafinad" settlement, project © PANACOM
"Rafinad" settlement, project © PANACOM


"Rafinad" settlement, project © PANACOM
"Rafinad" settlement, project © PANACOM


The signature fish figures as homage to the Gio Ponti Tower

Six fish-shaped houses are aligned along the riverside; still a little further on, there are five doubled towers and four blocks consisting of three towers each. All these buildings are human-proportionate, 7-8 stories tall. The apartments have terraces in them, while the “fish” buildings sport penthouses with green roofs. The architects were able to design these attributes of luxury as being quite budget-friendly – the anticipated cost of one square meter is 65 thousand rubles. But then again, the project has not been implemented yet, and the developer is putting the price on hold. The independently standing “fish” houses are PANACOM’s trademark technique running from one project to another. This form was partially inspired by the cutaway corners of the glass Gio Ponti Tower next to the Milano Centrale Railway Station. In actuality, however, things are still more complex than that. This type of layout is a favorite with PANACOM architects: the central staircase nucleus and apartments grouped around it. The architects developed this type of floor plan a few years ago, and since then it was implemented in a number of projects with different numbers of apartments. “This type of planning, one with a staircase in the middle and a short corridor, is extremely advantageous for future investment” – Arseniy Leonovich says .

"Rafinad" settlement, project © PANACOM
"Rafinad" settlement, project © PANACOM


"Rafinad" settlement, project © PANACOM
"Rafinad" settlement, project © PANACOM


"Rafinad" settlement, project. Section view © PANACOM
"Rafinad" settlement, project. Section view © PANACOM


Sugar cubes on a green meadow

The client took a long time coming up with the right name for the project. “At first, we tried to put an interesting spin on the form of the land site and find natural associations – Arseniy Leonovich shares – We also recommended to maybe pay attention to the architecture of the buildings: our white cubical houses do look like sugar cubes. This is how the name of “Rafinad” came about. This name very accurately conveys the image: white cubes on green meadows. When you see the pristine design of the façades dominated by horizontals, the avant-garde glass corners, the white sunken-in lower tier, thanks to which the buildings look as though they were hovering in the air, you think of the early romantic modernism.

"Rafinad" settlement, project © PANACOM
"Rafinad" settlement, project © PANACOM


"Rafinad" settlement, project © PANACOM
"Rafinad" settlement, project © PANACOM


"Rafinad" settlement, project © PANACOM
"Rafinad" settlement, project © PANACOM


"Rafinad" settlement, project © PANACOM
"Rafinad" settlement, project © PANACOM


"Rafinad" settlement, project © PANACOM
"Rafinad" settlement, project © PANACOM


Landscaping and art objects

The clusters of houses are organized around their own recreational areas: five clustered houses around one, three – around another, each house having a territory of its own. The parking lots are placed around the edges of the settlement, so as to free the “meadow” yards from vehicles. The landscaping idea is based on curvilinear shapes, which enhances the “seaside resort” effect: among the trees and shrubs, there run pedestrian boardwalks and bicycle trails. The pedestrian bridge thrown over the river leads to the school with a sports field. The individuality of the spaces is enhanced by art objects placed in each recreational zone. The waterfront is equipped with a fashionable glass railing, and there is a sports promenade running alongside the river.

French windows and grass roofs

The authors did everything they could to diversify and humanize the living environment, the façades, and the layouts. Different options for wall covering were invented: from stucco applied upon the heating agent to Russian-made brick and wood imitating panels. The “fish” houses are more expensive; they overlook the river. The studios have stanza balconies, while the two and three room apartments have terraces with great views, both of them – with glass railings. Terraces are essentially a luxury in the Russian conditions, and the very fact of their presence in a comfort-class housing project is a great tendency, of which one could only wish to spread more.

The result is a great “intelligent” project very much in the spirit of housing projects of the Northern Europe with great human-friendly spaces, comfortable housing density, and a reasonable price achieved at the expense of a lot of intellectual and creative effort.