Published on Archi.ru (https://archi.ru)

14.05.2018

​The Grand Façade

Elena Petukhova
Architect:
Ruurd Gietema
Patrick Meijers
Jeroen Schipper
Studio:
KCAP Architects & Planners
Orange Architects
A-Len

The project of “Golden City” housing complex is unique in many respects: as an example of consequential implementation of the results of the competition, as an experience of joint work of a Russian and a Dutch team, and as an experiment of developing a high-profile construction on the basis of the city block technology.

"Golden City" residential complex © KCAP + ORANGE + A.Len
"Golden City" residential complex © KCAP + ORANGE + A.Len


Boundary Regime

The houses that are built along the embankments, seaside or riverside alike, are subject to particularly high quality requirements. There is more than one objective reason for that. The architecture that exists at the borderline between the earth and the water, belonging at the same time to the material world and the “mirror wonderland”, thanks to being multiplied in its reflection in the water, adds a lot to the romantic flavor that subconsciously influences the mind of the designer and the observer. Of course, there are also arguments of a purely practical nature: at the expense of the broad space before the building’s façade, these buildings influence a far greater part of the city, although this statement is equally applicable for the modern broad avenues, which, by the way, never stopped the architects from experimenting with silhouettes when designing the longitudinal construction fronts. It is not out of the realm of possibility that the waterfront construction took on a special high-profile status thanks to a large number of great examples: it’s enough to recall Venice, Amsterdam, New York – the list can go on and on. Even Moscow has quite a few buildings to show, not to mention Saint Petersburg. The Saint Petersburg waterfronts, which create the legendary skyline, are the veritable treasure of this city, so it comes as no surprise that people of Saint Petersburg cherish these panoramas and are so wary of every new inclusion that is meant to violate the beauty of the picture.

Luckily, the negative examples of the last few years are few and far between. One of the major reasons for this is the fact that the building space of the waterfront areas within the city limits is extremely limited. Today, the town planning map of Saint Petersburg got a new vacant land site at the edge of the water. It literally appeared out of nowhere because it is of an artificial origin. We are speaking here about the alluvial land lying on the west end of the Vasilyevsky Island, the decision of recreating which was adopted by the government of Saint Petersburg in 2006. Currently, over 170 hectares out of the planned 476 rose above the sea level. The land that has already been washed up is witnessing a major construction boom, which comes as no surprise. This area is located rather close to the center of Saint Petersburg, and, with the launch of the Western High-Speed Diameter highway, its transport accessibility soared, new subway stations being built nearby as well.

Integrated public and housing construction on the Vasilyevsky Island. Location plan. Project, 2015 © KCAP + ORANGE + A.Len
Integrated public and housing construction on the Vasilyevsky Island. Location plan. Project, 2015 © KCAP + ORANGE + A.Len


In addition to the new complex of the new passenger sea port of Saint Petersburg with a terminal for cruise ships and ferries, built upon the project by “A.Len”, the city is planning to build here almost 500 000 square meters of housing stock, most of which will be comfort and business class. It is these buildings that will form the new “sea façade” of Saint Petersburg. Besides, building on the alluvial land is about the only chance for this city to form a new standard for the residential construction that will be modern and comfortable, the kind that will meet the high requirements of the “Nation’s Northern Capital”. Taking this task seriously, some of the developers and designers do strive to find a decent and harmonious solution for this “high-profile” type of construction meant to serve as the precursor of the famous city, to see which so many tourists come from near and far away.

"Golden City" residential complex. Block #7 © KCAP + ORANGE + A.Len
"Golden City" residential complex. Block #7 © KCAP + ORANGE + A.Len


Doubling the Advantages

An extra proof of the vital town planning and typological importance of building on the alluvial territory is the competition for the best concept of developing this new city land run by GLORAX Development upon the initiative of the government of Saint Petersburg. The organizer is the company TOPMARK, while the consultants are the architectural school MARCH and the research center MARCH Lab.

Several Russian and the world’s top architectural firms took part in the competition. Suffice it to say that the shortlist of the second round included “Ostozhenka”, “Studio 44”, and “A.Len” as well as Cino Zucñhi Architetti Srl. (Italy), KCAP Holding B.V. (Netherlands), and Snøhetta AS (Norway) that submitted six totally different but equally bright and promising concepts. The judging panel awarded the victory to two teams – the Russian firm “A.Len” and the Dutch “KCAP Holding B.V.” that participated in the competition together with its partner Orange. It seemed that, instead of solving the most complex problem, the results of the competition made things even more complicated by shifting to the developer’s shoulders the burden of responsibility for bringing two projects, albeit based on similar planning principles but still different, to one common denominator.

Integrated public and housing construction on the Vasilyevsky Island. Project, 2015 © KCAP + ORANGE + A.Len
Integrated public and housing construction on the Vasilyevsky Island. Project, 2015 © KCAP + ORANGE + A.Len


The obvious strong point of the project by KCAP+Orange was its freshness and clarity of idea, which consisted in the composition of rectangular city blocks composed of parallelepipeds of varying height and packed into an orthogonal façade structure. The laconic set was livened up by a few architectural and planning elements that were meant to make the Dutch concept look more authentic. Channels running between the city blocks were to be traced back to the image of the “Northern Venice”, while the asymmetrical tops of the towers – looking like the frameworks of the golden spears of Saint Petersburg – claimed the status of the new landmarks in the new reformed skyline. For all its flashiness, one could easily see significant discrepancies between the concept and the Russian construction rules and regulations, as well as the realities of the Russian building practice. It was only the input from a highly professional domestic team – which would be (a) experienced in implementing projects of similar magnitude and (b) working with foreign partners – that could ensure just as bright and high-quality realization of the idea. The best candidate for that was “A.Len”, whose project with clearly structured city blocks and a number of planning and façade design solutions similar to those proposed by the Dutch firm clearly was playing to win. Ultimately, according to the leader of “A.Len” Sergey Oreshkin, “the judging panel made a wise decision. They selected the two similar concepts and suggested that the developers and the authors (both the Russian and the European one) take the very absolute best from each concept, thus creating a single synchronized town planning and architectural system”.

"Golden City" residential complex © KCAP + ORANGE + A.Len
"Golden City" residential complex © KCAP + ORANGE + A.Len


The Integrated System

The land site, upon which “Golden City” will be built, borders on the U-shaped port bay, flanking its south corner. The narrow site stretches westward and is divided lengthwise into three blocks #7, 8, and 9. Two more blocks (#5 and 6) lie at a right angle in the direction of the last block #4, which is situated outside the main perimeter and is separated from the main body of the complex by a crossroads and a small square. Currently, the working documents of the corner block #4 are ready and the construction of its overland part is underway.

"Golden City" residential complex. Block #6. Location plan © KCAP + ORANGE + A.Len
"Golden City" residential complex. Block #6. Location plan © KCAP + ORANGE + A.Len


The perimeter type of the city block construction helps to protect the inner yard from the bone-chilling sea winds that blow here from October and well into the wintertime. At the same time, the architects are leaving a few breaks in the perimeter, designing them as arches, in order to keep the visual connection between the residential buildings and the world outside, particularly the bay. In order to further protect the residents from the wind and the rain, the architects designed covered galleries running along the first floors and resting on V-shaped columns.

Defining the sizes of the blocks, the architects proceeded from their historical prototypes, based on the measurements of the town planning grid of the center of Saint Petersburg, as well as on the expertise of modern suburban housing construction. The height of the buildings that form the blocks varies from 20 meters (the level of the cornice of the Winter Palace) for the main bulk of the houses to 50 and even 100 meters of the corner towers, which create extra compositional accents and add to the beauty of the silhouette of the complex. The façades are clad in a structural grid that is formed by the horizontal and vertical ribs marking the levels of the floors and a 3.3 meters regular axis span (the construction span being 6.6 meters, double that size). One of the things that also make this architectural concept different is the asymmetrical spears and rooftops of metallic framework painted gold. These “crowns” or, rather, architectural “headdresses”, are essentially an interesting compromise between the fashionably laconic and even minimalist style of the entire complex and the architects’ desire to accentuate its connection to the historically formed image of Saint Petersburg.

"Golden City" residential complex. Block #7 © KCAP + ORANGE + A.Len
"Golden City" residential complex. Block #7 © KCAP + ORANGE + A.Len


"Golden City" residential complex. Block #6 © KCAP + ORANGE + A.Len
"Golden City" residential complex. Block #6 © KCAP + ORANGE + A.Len


The inner yards are closed for the non-residents’ cars. Developed by the Gensler Company, the outside traffic and pedestrian infrastructure is meant to make the locomotion around the complex safe and easy.

The range of the apartments in “Golden City” meets the current trends of the market. Out of the 588 apartments, only 20% are three-room ones with a floor space of about 90 square meters. The rest are studios (10%) with a 25 square meter floor space, single-room apartments (20%), and double-room apartments (40%). “The Russian architects better feel the needs of the market – Sergey Oreshkin explains – And they are capable of proposing design solutions that are more effective in terms of ergonomics. The Russian conditions are harsher, and the market is much more volatile that the European one. Regretfully, the buying power rises and falls all the time. And now we are in yet another shrinking phase – in terms of the apartments’ floor space and the technology. Only because of the floor space alone our complex is marketed as comfort class. At the same time, the level of the architectural, engineering and design solutions, as well as the detailed work with landscape, façades, and public places, including the lobbies, the elevator halls, and such like, meets the world’s highest standards”.

"Golden City" residential complex. Block #6. Masterplan, draft © KCAP + ORANGE + A.Len
"Golden City" residential complex. Block #6. Masterplan, draft © KCAP + ORANGE + A.Len


Reality Check

Over two years that have elapsed since the results of the competition were announced, the project has moved a good deal ahead. The construction of block #6 is underway, the other four being in the phase of detailed design and definition engineering. The Russian and the Dutch teams are in constant contact, handling arising issues together. The designers of KCAP and Orange are focused on the development of the architectural image, striving to keep up the purity and clarity of solution that the judging panel liked so much. The Dutch teams work methodically, dividing their sub-projects into phases, each of which is preceded by a survey, and justifying their solutions by analytics.

"Golden City" residential complex. Block #7 © KCAP + ORANGE + A.Len
"Golden City" residential complex. Block #7 © KCAP + ORANGE + A.Len


Most of the solutions proposed in the competition concept proved efficient upon the detailed analysis but some of them did not pass the Russian reality check. The first thing that the architects had to give up in the beginning of their joint work on the project was changing the configuration of the construction blueprint and enlarging its size, which the Dutch proposed to do in their competition proposal “to harmonize the construction”. Then the developer for economic reasons decided to abandon the idea of the channels. This turned out to be a prohibitively expensive luxury for a housing complex that is officially marketed as “comfort class”. In connection with the specification of some of the clauses of the city’s town planning code, difficulties arose with getting the approvals for the maximum allowed height, including that of the golden spears.

"Golden City" residential complex. Block #7 © KCAP + ORANGE + A.Len
"Golden City" residential complex. Block #7 © KCAP + ORANGE + A.Len


“During the development of the project and specifying its details, a lot of the solutions proposed by the Dutch team had to be altered in favor of the ideas that were originally proposed by “A.Len” from the very start – Sergey Oreshkin shares – And this was a natural thing to do because we have a better knowledge of our regulatory structure, and we took it into consideration all along. Besides, we are experienced in working on alluvial lands, and we know just what kind of design and engineering solutions must be used in such a project. All of our structures rest on 30-meter piles that in turn are based on the natural hard ground below. Everything that’s above that mark must be designed with regard to the fact that this land was actually washed up. If you are aware of it and if you know how to deal with it, it’s not really a problem but if you are oblivious of the fact, you are in for a whole number of risks”.

"Golden City" residential complex. Block #7 © KCAP + ORANGE + A.Len
"Golden City" residential complex. Block #7 © KCAP + ORANGE + A.Len


In order to implement some of the key elements of the project, the architects oftentimes had to revise and improve their design and engineering solutions. For example, designing the units of the V-shaped columns which support the covered arcades running along the first floors of all of the buildings, the Russian proposal was to be revised in favor of the more elegant and aesthetically pleasing solution that the architects insisted upon, the Russian and the Dutch teams bring unanimous on this issue.

"Golden City" residential complex © KCAP + ORANGE + A.Len
"Golden City" residential complex © KCAP + ORANGE + A.Len


The architects also had to find the design solution for the railing structures of the top floors of the towers, from which spring the “golden” asymmetrical spears and the structural “crowns”. The diagonal elements of the grilles, necessary both for the rigidity of the structure, and for purely aesthetic purposes, would slice the window apertures, and the Russian designers were to find the optimum solution for each joint, turning a beautiful picture into a no-frills technological draft.

"Golden City" residential complex © KCAP + ORANGE + A.Len
"Golden City" residential complex © KCAP + ORANGE + A.Len


Rather serious changes had to be made to the floor plans of the buildings and apartments as well. In this respect, the team of “A.Len” also plays the leading part. Unlike their European colleagues, the Russian architects pay a great deal of attention to the orientation of the apartments, the insolation level, and the views that open up from the apartments’ windows, trying to smoothly distribute these qualities among the apartments within the limits of one floor. This approach is in fact inherited from the soviet design tradition but it is still relevant for the realities of the modern market economy, ensuring that there will be no non-sellers among the apartments.

"Golden City" residential complex. Block #7 © KCAP + ORANGE + A.Len
"Golden City" residential complex. Block #7 © KCAP + ORANGE + A.Len


On the other hand, in terms of their architectural solution, clarity of technique, and the absence of “fuss” in working with the façades, the Dutch architects, according to Sergey Oreshkin, outdo their Russian colleagues: “The Dutch have a very keen eye for the purity of architectural lines. It’s hard to say what exactly is the reason for that – maybe their market is adequately developed or the specific education is really up to the mark – but they do very well realize that any fuss, something like a couple of unnecessary details or frontons, is just not architecture. This is equally applicable to the design code of the façade and the silhouette of the building. They chisel away the surplus. The problem is that, as is often the case in this country, we often see the author trying to use a pileup of different techniques and complex shapes as a coverup for his inability to achieve architectural harmony”.

The team also collectively selects the construction materials from suppliers and contractors. What the Dutch designers propose cannot always be implemented in Russia – not all of the materials are available on the market, and you cannot always be sure in the quality of those that you do get, and the practical knowledge of “A.Len” helps to substitute the conceptual solutions to visually similar ones that are at the same time just as dependable.

"Golden City" residential complex © KCAP + ORANGE + A.Len
"Golden City" residential complex © KCAP + ORANGE + A.Len


In actuality, this, of course, is a whole different project now. The differences are considerable also on the level of the town planning solutions, and in terms of the volumetric composition. Which inevitability happens in the process of fine-tuning the competition project to reality anyway. What is amazing, however, is the fact that the international team was able to keep the original image and character of the project turning it into real sustainable architecture which did not lose a bit of its quality and preserved the message of the “sea façade” of Saint Petersburg – the purpose that all of the members of the project set two years ago.

"Golden City" residential complex. Block #7 © KCAP + ORANGE + A.Len
"Golden City" residential complex. Block #7 © KCAP + ORANGE + A.Len


"Golden City" residential complex. Block #7 © KCAP + ORANGE + A.Len
"Golden City" residential complex. Block #7 © KCAP + ORANGE + A.Len


"Golden City" residential complex. Block #7 © KCAP + ORANGE + A.Len
"Golden City" residential complex. Block #7 © KCAP + ORANGE + A.Len


"Golden City" residential complex. Block #7 © KCAP + ORANGE + A.Len
"Golden City" residential complex. Block #7 © KCAP + ORANGE + A.Len


"Golden City" residential complex. Block #6. Building 2. THe facade in axes 1-23 © KCAP + ORANGE + A.Len
"Golden City" residential complex. Block #6. Building 2. THe facade in axes 1-23 © KCAP + ORANGE + A.Len


"Golden City" residential complex. Block #6. Section view 2-2 © KCAP + ORANGE + A.Len
"Golden City" residential complex. Block #6. Section view 2-2 © KCAP + ORANGE + A.Len


"Golden City" residential complex. Block #6. Building 1, the underground floor © KCAP + ORANGE + A.Len
"Golden City" residential complex. Block #6. Building 1, the underground floor © KCAP + ORANGE + A.Len


"Golden City" residential complex. Block #6. Building 1, the 1st floor © KCAP + ORANGE + A.Len
"Golden City" residential complex. Block #6. Building 1, the 1st floor © KCAP + ORANGE + A.Len


"Golden City" residential complex. Block #6. Building 1, the standard floor © KCAP + ORANGE + A.Len
"Golden City" residential complex. Block #6. Building 1, the standard floor © KCAP + ORANGE + A.Len


"Golden City" residential complex. Block #6. Building 2, the standard floor © KCAP + ORANGE + A.Len
"Golden City" residential complex. Block #6. Building 2, the standard floor © KCAP + ORANGE + A.Len


"Golden City" residential complex. Block #6. Building 1, the standard plan of the tower © KCAP + ORANGE + A.Len
"Golden City" residential complex. Block #6. Building 1, the standard plan of the tower © KCAP + ORANGE + A.Len


"Golden City" residential complex. Block #6. Building 2, the standard plan of the towers © KCAP + ORANGE + A.Len
"Golden City" residential complex. Block #6. Building 2, the standard plan of the towers © KCAP + ORANGE + A.Len


"Golden City" residential complex. Block #7. Location plan © KCAP + ORANGE + A.Len
"Golden City" residential complex. Block #7. Location plan © KCAP + ORANGE + A.Len


"Golden City" residential complex. Block #7. Landscaping plan © KCAP + ORANGE + A.Len
"Golden City" residential complex. Block #7. Landscaping plan © KCAP + ORANGE + A.Len


"Golden City" residential complex. Block #7. Development drawing along the designed 13th Street © KCAP + ORANGE + A.Len
"Golden City" residential complex. Block #7. Development drawing along the designed 13th Street © KCAP + ORANGE + A.Len


"Golden City" residential complex. Block #7. Section view 2-2 © KCAP + ORANGE + A.Len
"Golden City" residential complex. Block #7. Section view 2-2 © KCAP + ORANGE + A.Len


 
"Golden City" residential complex. Block #6. Section view 1-1 © KCAP + ORANGE + A.Len
"Golden City" residential complex. Block #6. Section view 1-1 © KCAP + ORANGE + A.Len
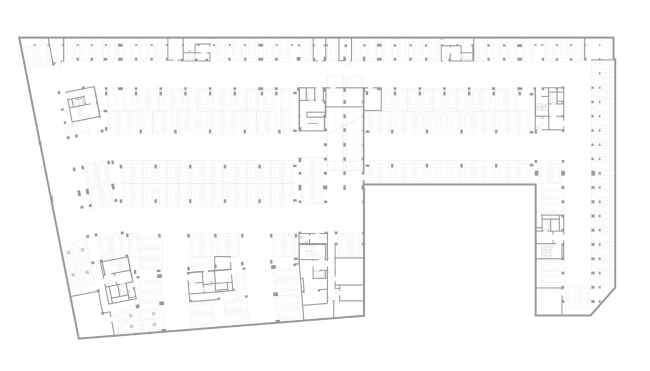
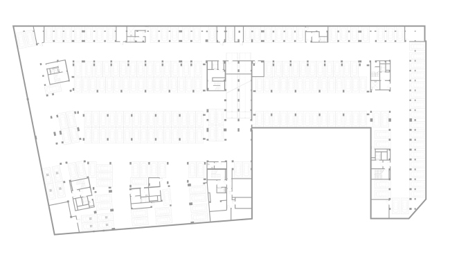
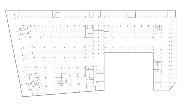
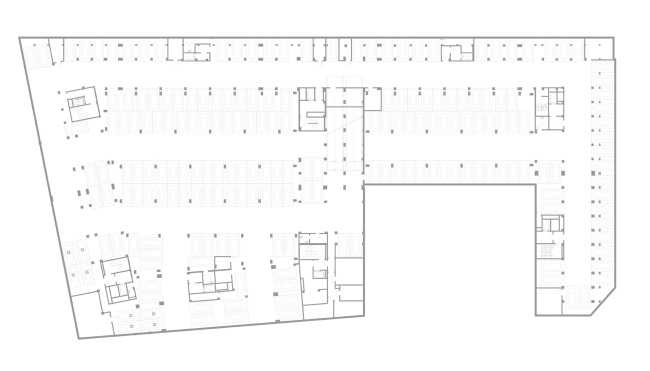
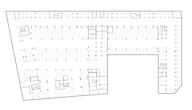
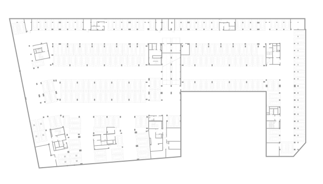
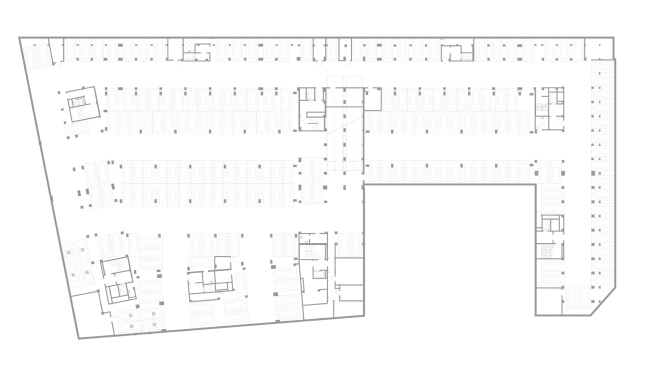
"Golden City" residential complex. Block #7. Plan of the parking lot © KCAP + ORANGE + A.Len
"Golden City" residential complex. Block #7. Plan of the parking lot © KCAP + ORANGE + A.Len
"Golden City" residential complex. Block #7. Plan of the standard floor © KCAP + ORANGE + A.Len
"Golden City" residential complex. Block #7. Plan of the standard floor © KCAP + ORANGE + A.Len
"Golden City" residential complex. Block #7. Plan of the standard floor of the tower © KCAP + ORANGE + A.Len
"Golden City" residential complex. Block #7. Plan of the standard floor of the tower © KCAP + ORANGE + A.Len
"Golden City" residential complex. Block #7. The facade in the axes 41'-1' © KCAP + ORANGE + A.Len
"Golden City" residential complex. Block #7. The facade in the axes 41'-1' © KCAP + ORANGE + A.Len
"Golden City" residential complex. Block #7. The facade in the axes Ö-À © KCAP + ORANGE + A.Len
"Golden City" residential complex. Block #7. The facade in the axes Ö-À © KCAP + ORANGE + A.Len