Published on Archi.ru (https://archi.ru)

21.02.2018

Continuing What Was Once Started

Julia Tarabarina
Architect:
Igor Shvartsman
Studio:
Sergey Kisselev & Partners

The project of an office-and-hotel complex located on the first kilometer of the Rublevo-Uspenskoe Highway develops their old ideas and responds to the architecture of the buildings that “Sergey Kisselev and Partners” had built earlier in this area.

Hotel and business complex on the Rublevo-Uspenskoe Highway. Photo visualization. View from the Rublevskoe Highway © Sergey Kisselev and Partners
Hotel and business complex on the Rublevo-Uspenskoe Highway. Photo visualization. View from the Rublevskoe Highway © Sergey Kisselev and Partners


The land site at the beginning of the Rublevo-Uspenskoe Highway has been explored by “Sergey Kisselev and Partners” for more than a decade now. In 2015, its south part saw the completion of the office center Pallau RB, the designing of which had been started still before the economic crisis of 2007. The north part of the territory lies vacant so far; it is meant to be used in another project that is now being considered by the government of the Moscow region.

This place, in spite of the proximity of Moscow’s main thoroughfare, is rather quiet: it is separated from the highway by two buildings of car dealerships; it is 170 away from the Moscow Ring Road, its north part borders on the villa community “Rublevo-10”, and its south part borders on the Romashkovsky Forest. For this reason, it was planned very early on that, in addition to offices, a hotel would be built here as well. Ultimately, the territory was divided into two parts: the part that is closer to the Moscow Ring Road got the office buildings “À” and “Á”, while the part that is closer to the forest got the hotel buildings “” and “Ô; each pair of the buildings is linked by a podium. Beneath the entire territory of the complex, there is single-level underground parking garage. The two pairs of volumes that stand in a fan-like fashion from north to south are separated by a landscaped triangle with a small pedestrian promenade. It is planned that the hotel complex will be built first; the offices and the landscaping part will become the second stage of construction and will appear later on down the line.

Hotel and business complex on the Rublevo-Uspenskoe Highway. Axonometry © Sergey Kisselev and Partners
Hotel and business complex on the Rublevo-Uspenskoe Highway. Axonometry © Sergey Kisselev and Partners


Hotel and business complex on the Rublevo-Uspenskoe Highway. Location plan © Sergey Kisselev and Partners
Hotel and business complex on the Rublevo-Uspenskoe Highway. Location plan © Sergey Kisselev and Partners


Hotel and business complex on the Rublevo-Uspenskoe Highway. Masterplan © Sergey Kisselev and Partners
Hotel and business complex on the Rublevo-Uspenskoe Highway. Masterplan © Sergey Kisselev and Partners


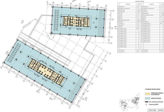
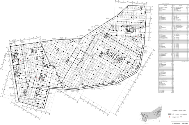
Hotel and business complex on the Rublevo-Uspenskoe Highway. Plan of the 1st floor © Sergey Kisselev and Partners
Hotel and business complex on the Rublevo-Uspenskoe Highway. Plan of the 1st floor © Sergey Kisselev and Partners


The two office buildings form a visual transition and follow the outlines of the Pallau buildings, inheriting not only the business function, but also the abundance of glass and the angles of the sloping planes, including those of the roofs – inwards from the outside, as if all the slabs turn their noses up before the formal border of the nation’s capital – the Moscow Ring Road. If one is to look from the southeast, the office buildings line themselves up as an incremental rhythmic array, alternating glittering glass and yellowish façades. But then again, while the façade panels of Pallau are metal, and their delicate metallic glitter can be traced back to the original concept of a glass volume clad in golden casing, it is planned that the new buildings will utilize Jurassic stone: its color and texture is different but, if viewed from a distance, they would still look pretty similar.

The glass casing is also designed in a “reverse” way to a certain degree: the new buildings will also have glass façades, only these will be the side ends instead of the longitudinal walls. Their pixel-like pattern, dark on the downside and light on the upside, is provided by this simple technique: instead of conjuring with various shades of blacked out glass (which inevitably leaves the building’s without some of the ambient light), the architects proposed to take some of the glass sections with the same UF-protection coefficient, and reverse them 180º – this way, the protective properties remained just as effective, while the sunlight reflection angle became different, which is meant to create an effect of soft pixel “dissolution” of the glass surfaces and a smooth transition to the sky. This is a technique that is cost-efficient and elegant at the same time.

Hotel and business complex on the Rublevo-Uspenskoe Highway. Photo visualization. View from the Moscow Ring Road © Sergey Kisselev and Partners
Hotel and business complex on the Rublevo-Uspenskoe Highway. Photo visualization. View from the Moscow Ring Road © Sergey Kisselev and Partners


Thanks to the chamfers of the roofs – together they go 5 meters upwards – the architects were able not only to hide mechanical rooms but also to make the western part of the roofs usable – they will serve as venues for the office parties. According to the chief architect of the project, Anastasia Khomyakova, this place is sure to command fine forest views. The usable parts of the roofs are fenced off from the Moscow Ring Road by the overhangs of the mechanical rooms.

Hotel and business complex on the Rublevo-Uspenskoe Highway. Land site A, Buildings À, Á (offices) © Sergey Kisselev and Partners
Hotel and business complex on the Rublevo-Uspenskoe Highway. Land site A, Buildings À, Á (offices) © Sergey Kisselev and Partners


Hotel and business complex on the Rublevo-Uspenskoe Highway. Land site A, Buildings À, Á (offices) © Sergey Kisselev and Partners
Hotel and business complex on the Rublevo-Uspenskoe Highway. Land site A, Buildings À, Á (offices) © Sergey Kisselev and Partners


The other three façades are subjugated to a large-cell grid that vertically groups from three to five floors, the inner side wall sporting a regular grid with constant horizontals and verticals becoming denser but more slender with each upward step. As for the outer side façades, their horizontals are displaced: the result looks like a gigantic jigsaw puzzle or a simplified picture of some tectonic shift. The depth of the ribs also grows downwards, strengthening the geological or maybe gothic associations.

Hotel and business complex on the Rublevo-Uspenskoe Highway © Sergey Kisselev and Partners
Hotel and business complex on the Rublevo-Uspenskoe Highway © Sergey Kisselev and Partners


The two hotel buildings that stand in the western part of the territory look more conservative. The façades of the one that is closer to the center of the construction site are designed in dark brick, the architects planning to use hand-formed solid brick with a grisaille effect, which is created by the strips of lighter bricks running along the vertically grouped windows that make visible the sunlit chamfers – in order to raise people’s spirits and enhance the volume of the windows. Here, though to a smaller scale than on the office façades, the play of horizontals is also visible: the interfloor lintels are sometimes thinner and sometimes wider, and thus they form a semblance of a small wave. The lintels in the groups of windows are made of dark-brown brick; the frequent hollows of the stanza balconies are clad in dark metal bars, and all of this, put together, creates deep volumetric chocolate-colored façades. The tall 5-meter (as is the hot trend of today) ground floors are occupied by a cafe turned in the direction of the small park.

Hotel and business complex on the Rublevo-Uspenskoe Highway. Computer model © Sergey Kisselev and Partners
Hotel and business complex on the Rublevo-Uspenskoe Highway. Computer model © Sergey Kisselev and Partners


Hotel and business complex on the Rublevo-Uspenskoe Highway. Computer model, fragment of building B © Sergey Kisselev and Partners
Hotel and business complex on the Rublevo-Uspenskoe Highway. Computer model, fragment of building B © Sergey Kisselev and Partners


Hotel and business complex on the Rublevo-Uspenskoe Highway. Computer model © Sergey Kisselev and Partners
Hotel and business complex on the Rublevo-Uspenskoe Highway. Computer model © Sergey Kisselev and Partners


Hotel and business complex on the Rublevo-Uspenskoe Highway. Computer model © Sergey Kisselev and Partners
Hotel and business complex on the Rublevo-Uspenskoe Highway. Computer model © Sergey Kisselev and Partners


The second building, i.e. the one that stands closer to the woodland, is notable for its light-colored brick which is even closer to the color of white stone. The bricks here are also hand-formed, with crumpled “white-clay” texture – finding the right brick manufacturer turned out to be quite a chore. Neither verticals nor horizontals prevail here; rather, they are mixed up: the textured stripes put one in the mind of constructivist city blocks, and the dark inserts between the windows look as if they were borrowed from the neighboring building. The resulting hybrid is akin to a fragment of a strip of lace blown out of size – everything looks rather cozy, countryside-style, like a dappled shade on a summer terrace. But then again, let’s not forget that the warmth of the sepia grisaille is meant to compensate for the scale of the complex: each building here has 17 floors in it, and is 60 meters high, although, by the standards of buildings situated just beyond the Moscow Ring Road, this falls short of the notion of a “giant scale”, the common number of floors here being 25.

Hotel and business complex on the Rublevo-Uspenskoe Highway. Fragment of Building à (hotel) © Sergey Kisselev and Partners
Hotel and business complex on the Rublevo-Uspenskoe Highway. Fragment of Building à (hotel) © Sergey Kisselev and Partners


Hotel and business complex on the Rublevo-Uspenskoe Highway. West facade © Sergey Kisselev and Partners
Hotel and business complex on the Rublevo-Uspenskoe Highway. West facade © Sergey Kisselev and Partners


Hotel and business complex on the Rublevo-Uspenskoe Highway. North facade © Sergey Kisselev and Partners
Hotel and business complex on the Rublevo-Uspenskoe Highway. North facade © Sergey Kisselev and Partners


Hotel and business complex on the Rublevo-Uspenskoe Highway. South facade © Sergey Kisselev and Partners
Hotel and business complex on the Rublevo-Uspenskoe Highway. South facade © Sergey Kisselev and Partners


Hotel and business complex on the Rublevo-Uspenskoe Highway. Development drawing along the Rublevskoe Highway © Sergey Kisselev and Partners
Hotel and business complex on the Rublevo-Uspenskoe Highway. Development drawing along the Rublevskoe Highway © Sergey Kisselev and Partners


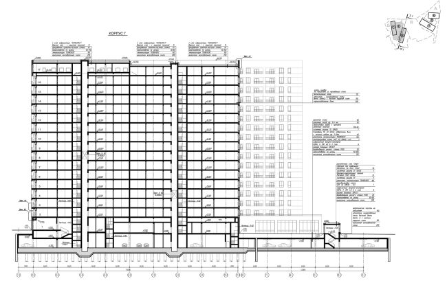
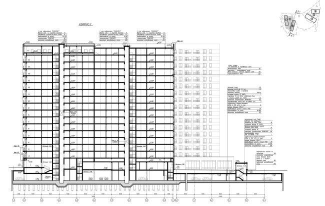
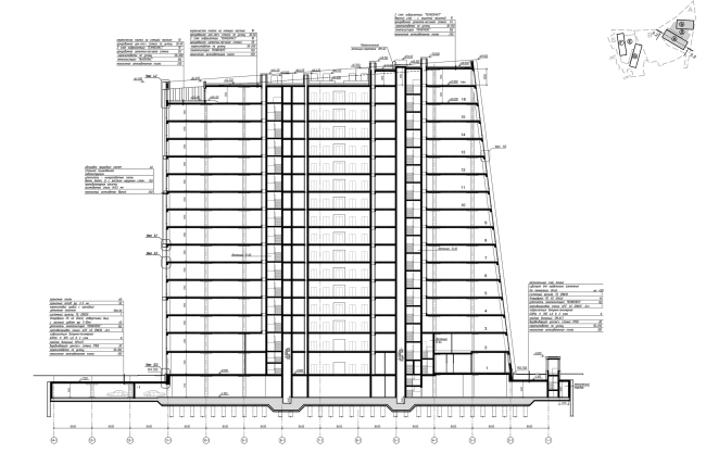
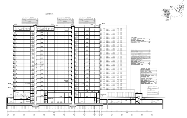
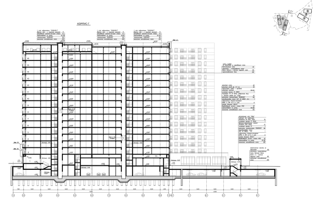
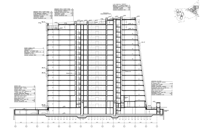
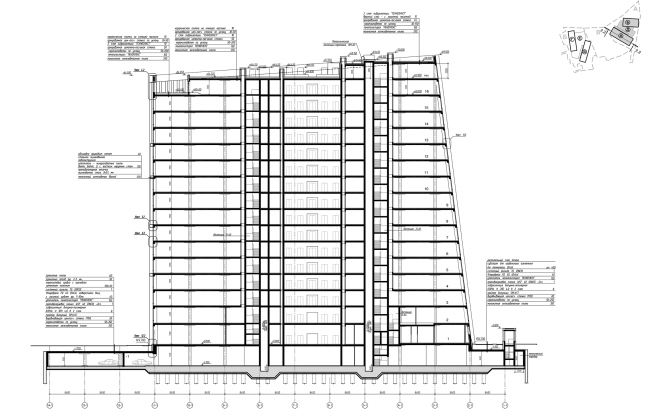
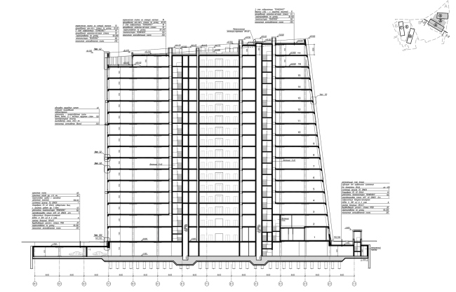
Hotel and business complex on the Rublevo-Uspenskoe Highway. Fragment of Buildings B,Ã (hotel). Section view 3.1-3.1 © Sergey Kisselev and Partners
Hotel and business complex on the Rublevo-Uspenskoe Highway. Fragment of Buildings B,Ã (hotel). Section view 3.1-3.1 © Sergey Kisselev and Partners


As we remember, the two hotel buildings are linked to each other by a podium which is the same 5 meters high as the public and commercial ground floors. It will host a fitness center with a spa; its landscaped roof will be turned into a walking promenade. This complex is interesting as the continuation of the work that “Sergey Kisselev and Partners” started here long ago. In this sense, their own creation (which, we have to admit, underwent some significant changes during the design process but still retained the architects’ original idea) becomes an important contextual fragment for the authors, requires a response, even some sort of resonance, to enhance and explore this theme even further. A keen observer may see here a kind of gothic tapering of the roofs of the office buildings that overlook the highway with two of their walls – and, at the same time, a slight transition to a different theme, which is homely, palpable, and is connected, let’s say, with the signs of the times; a theme which is defined by the functional requirements, and, possibly, by the relevance of the “Manhattan-type” high-rise brick imagery. The three blocks of buildings, the first of which is already complete, come together, one way or another, to form a certain chain, grow, turn around, change their materials, but remain parts of the same story.
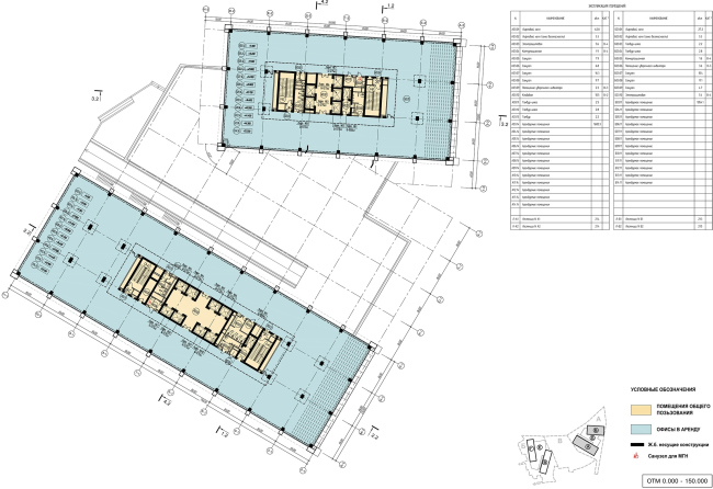
Hotel and business complex on the Rublevo-Uspenskoe Highway. Fragment of Buildings B,Ã (hotel). Plan of the 2nd floor © Sergey Kisselev and Partners
Hotel and business complex on the Rublevo-Uspenskoe Highway. Fragment of Buildings B,Ã (hotel). Plan of the 2nd floor © Sergey Kisselev and Partners
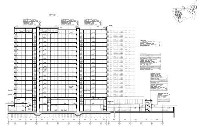
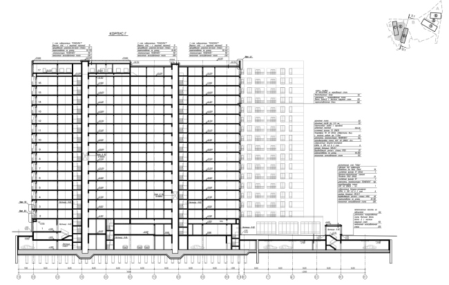
Hotel and business complex on the Rublevo-Uspenskoe Highway. Fragment of Buildings À,Á (offices). Section view 2.2-2.2 © Sergey Kisselev and Partners
Hotel and business complex on the Rublevo-Uspenskoe Highway. Fragment of Buildings À,Á (offices). Section view 2.2-2.2 © Sergey Kisselev and Partners
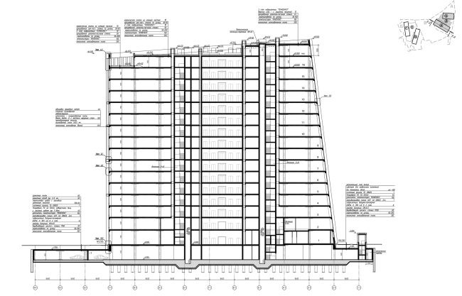
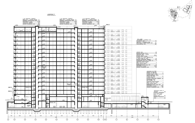
Hotel and business complex on the Rublevo-Uspenskoe Highway. Fragment of Buildings À,Á (offices). Section view 1.2-1.2 © Sergey Kisselev and Partners
Hotel and business complex on the Rublevo-Uspenskoe Highway. Fragment of Buildings À,Á (offices). Section view 1.2-1.2 © Sergey Kisselev and Partners
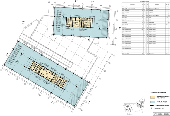
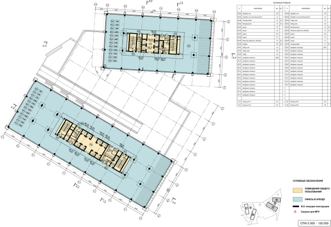
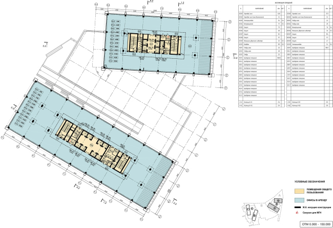
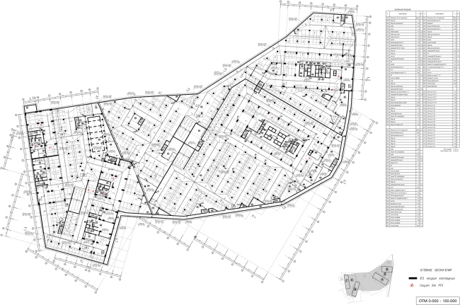
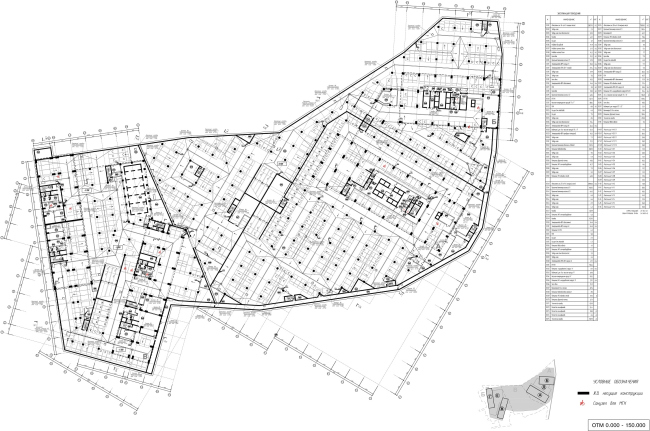
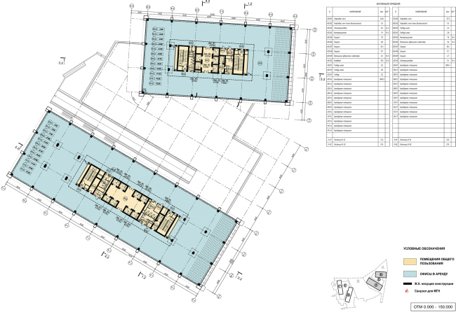
Hotel and business complex on the Rublevo-Uspenskoe Highway. Fragment of Buildings À,Á (offices). Plan of the 2nd floor © Sergey Kisselev and Partners
Hotel and business complex on the Rublevo-Uspenskoe Highway. Fragment of Buildings À,Á (offices). Plan of the 2nd floor © Sergey Kisselev and Partners
Hotel and business complex on the Rublevo-Uspenskoe Highway. Fragment of Buildings À,Á (offices). Planû of the 3rd-14th floors © Sergey Kisselev and Partners
Hotel and business complex on the Rublevo-Uspenskoe Highway. Fragment of Buildings À,Á (offices). Planû of the 3rd-14th floors © Sergey Kisselev and Partners
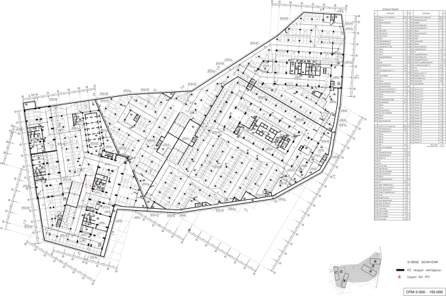
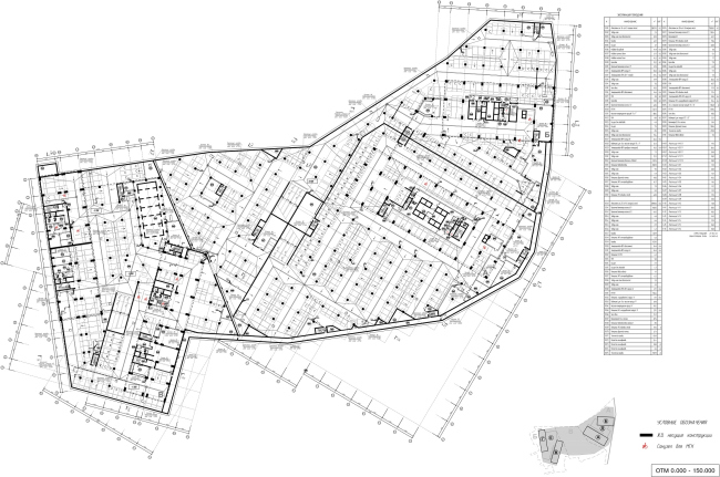
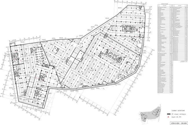
Hotel and business complex on the Rublevo-Uspenskoe Highway. Fragment of Buildings À,Á (offices). Plan of the basement at a - 5100 mark © Sergey Kisselev and Partners
Hotel and business complex on the Rublevo-Uspenskoe Highway. Fragment of Buildings À,Á (offices). Plan of the basement at a - 5100 mark © Sergey Kisselev and Partners