Published on Archi.ru (https://archi.ru)

12.12.2017

Openwork Experience

Alla Pavlikova, Julia Tarabarina
Studio:
Bureau of Architecture GREN.

The housing project at the Mikhailova Street skillfully uses the benefits of its surroundings to the advantage of its future residents, exploring numerous fashionable trends of today: the façades are meticulously elaborate, and the public spaces are well thought out from the standpoint of both city people and the residents of the complex.

Housing complex at the Mikhailova Street © Olimpproekt Group
Housing complex at the Mikhailova Street © Olimpproekt Group


This housing project is built in the southeast of Moscow, on a 2.4 hectare land plots, 700 meters away from the border of the Kuskovo Estate Park. But then again, the museum palace and its Large Creek are situated in the opposite side of the park, so the new building will not violate the historical panorama. The immediate surroundings of the complex consist of five-story houses swimming in greenery, including red-brick Stalin ones, with an odd inclusion of buildings with larger numbers of floors. The “Ryazansky Prospect” metro station is a 20 minutes’ walk away, and the “Plyushchevo” railroad station is 10 minutes away. In the nearest future, a new metro station named “Okskaya Ulitsa” will open, which will be a 15 minutes’ walk away from the complex.

Housing complex at the Mikhailova Street. Location plan © Olimpproekt Group
Housing complex at the Mikhailova Street. Location plan © Olimpproekt Group


The task of designing a large-scale housing project on a relatively small land plot with insolation limitations was far from easy – shares the chief architect of “Olimpproekt” Ekaterina Gren. The client wanted to see a flashy architectural concept that would at the same time fit in nicely with its surroundings, and answer the trends of modern construction. According to Ekaterina Gren, in the process of complicated work, the architects were able to find a solution that could satisfy both the client, and the future residents of the complex, and the residents of the surrounding area.

The complex consists of eight residential units from 12 to 19 stories high. Together, they form a semi-closed yard that opens up northeast towards the park. The front of the Mikhailova Street is formed by three 12-story sections – it is planned that here along the entire façade there will be a public space with cafes, shops, and an open-air promenade before them. The typology of the urban retail stores is generally familiar to the local residents: such stores are to be found on the first floors of the Stalin five-stories and the podiums of later-built 9-story buildings, but the new housing complex is expected to set the trend for a more modern type of busy public space of the ground floors.

Housing complex at the Mikhailova Street © Olimpproekt Group
Housing complex at the Mikhailova Street © Olimpproekt Group


Two 19-story buildings stretch into the depth of the land site. The east building is linked to the building that stands along the Mikhailova Street by a broad hypostyle connection. Its green roof will become a small additional park, while its supports will be coated with black polished granite. Across from it, in the west building, there is yet another entrance to the yard: a compact narrow passageway that functionally repeats the east “propylaea” – it is there for a reason, because, as is the custom nowadays, all the entrances to the residential sections are located in the yard, which pretty much turns the yard entrance into a home entrance.

Housing complex at the Mikhailova Street © Olimpproekt Group
Housing complex at the Mikhailova Street © Olimpproekt Group


The “Ryazansky Prospect” metro station, just as the future “Okskaya Ulitsa”, is situated east of the complex on the Mikhailova Street – so, the east façade is designed as being sort of a “grand” one, and, because, from this side the main bulk of the pedestrian stream will be coming, the main entrance to the yard is also situated here. For the same reason, the outward front of the east building, just as the first floors along the Mikhailova Street, is given to shops and restaurants. This is the “city side” façade, turned to the bustling Ryazansky Avenue.

But then again, yet another strong side of this place is the fact that with its fairly good transport accessibility it is not squeezed between overcrowded streets or highways. The nearest neighbor from the “grand” east side is a rank-and-file clinic building, overgrown with bushes; it is still good 65 meters to go to the narrow and quiet 1st Institutskaya Street. From the opposite side, the distance to the Lukhovitskaya Street is still further – 180 meters – and here the nearest neighbor of the complex is a three-story building of the former medical unit. From this side, the entire territory stretching up to that street belongs to the complex’s sphere of influence, and the architects are planning to organize here a transition zone – some sort of a quiet yard, going through which, without having to cross any automobile roads, one will be able to reach a football field, a children’s playground, and a library. Here the architects also place a guest overland parking lot with a turfstone paver. From this side, the two lower floors of the northeast building will house an over-2000-sqm kindergarten for 124 children.

Housing complex at the Mikhailova Street. Layout of the land site organization combined with the transport diagram © Olimpproekt Group
Housing complex at the Mikhailova Street. Layout of the land site organization combined with the transport diagram © Olimpproekt Group


Housing complex at the Mikhailova Street. Plan of the 1st and 2nd floor © Olimpproekt Group
Housing complex at the Mikhailova Street. Plan of the 1st and 2nd floor © Olimpproekt Group


Housing complex at the Mikhailova Street. Section view 1-1 © Olimpproekt Group
Housing complex at the Mikhailova Street. Section view 1-1 © Olimpproekt Group


Housing complex at the Mikhailova Street. Section view 2-2 © Olimpproekt Group
Housing complex at the Mikhailova Street. Section view 2-2 © Olimpproekt Group


The vehicle-free private yard is located on the roof of the underground parking garage; the yard is landscaped. The thought-out zoning allowed the architects to combine playgrounds with a highly developed landscape, abundance of greenery, a sufficient number of benches, and even a lilac garden that is capable of doing magic in any part of the city. A shallow strip of water – a miniature man-made river – forms in the main part of the yard a semblance of a short promenade, helps to divide the zones in an unconventional way, and fills the space with emotion. In the corner, where the south and west buildings meet, the “river” ends: there is a small square here, this time without greenery but adorned by a sculpture. The entrances to the underground parking garage are situated not inside the yard but outside of it, and at a sufficient distance to stop the exhaust fumes from poisoning the yard.

Housing complex at the Mikhailova Street © Olimpproekt Group
Housing complex at the Mikhailova Street © Olimpproekt Group


Housing complex at the Mikhailova Street © Olimpproekt Group
Housing complex at the Mikhailova Street © Olimpproekt Group


Housing complex at the Mikhailova Street © Olimpproekt Group
Housing complex at the Mikhailova Street © Olimpproekt Group


“In addition to the town-planning issues and the search for the volumetric and space solution, we had to stylistically inscribe the complex into its surroundings – says Ekaterina Gren – Ultimately, we came up with an austere and respectable image of housing, reserved in the plastique of the volumes and exquisite in the façade decoration”.

Indeed, if we are to speak about some full-scale play of volumes, the genre of a housing complex does not provide for it by definition, and the architects concentrated on the texture, color, and other details, combining two types of façade “matter”: white glass-fibre reinforced concrete è cream-colored clinker. The clinker is used in volumes of smaller height, the 12-story-tall ones, and their height this way echoes the scale of the neighboring panel houses, while their material echoes that of the Stalin five-stories. The clinker is also used to decorate the three sections standing on the Mikhailova Street, and the slabs that visually continue them, cut into the volumes of taller yard-side units. The “white” matter is allotted to taller volumes and is subjugated to the horizontal; the rows of windows look much like bands, but then again, this is compensated by the latent classics of the enlarged and laconic “flutes” in the piers.

Housing complex at the Mikhailova Street © Olimpproekt Group
Housing complex at the Mikhailova Street © Olimpproekt Group


Housing complex at the Mikhailova Street © Olimpproekt Group
Housing complex at the Mikhailova Street © Olimpproekt Group


The theme of two “matters”, which is important for the complex, is augmented and united by openwork inclusions of ornamental panels which are there in both colors and which form a sunken-in “inner” layer of the façades on a level with windows and inserts of dark ceramic granite. The theme is picked up by protruding wrought iron balconies – air conditioning units that look like French balconies from a distance. They protrude more than it is necessary for the air conditioning units: the façades are endowed with a noticeable depth of their surface, carefully drawn and sculptured. These little balconies can even host small planters – the authors of the project claim.

All the apartments have a stanza balcony in them, and 3-room apartments have even two. Totally, the project provides for 685 apartments of “comfort” class. The developer plans to sell them, as he puts it, “with partitions to be given a finishing touch later” – i.e. without decoration. The list of popular novelties includes, among other things, bathrooms with windows; in some apartments kitchens are united with living rooms; the project also provides for storage spaces for the residents in the basement. The entrances to the residential sections are designed on the “zero” level, so they do not need either stairways or ramps that would otherwise clog up the yard – one can just step inside.

Housing complex at the Mikhailova Street. Fragment of the facade © Olimpproekt Group
Housing complex at the Mikhailova Street. Fragment of the facade © Olimpproekt Group


Housing complex at the Mikhailova Street © Olimpproekt Group
Housing complex at the Mikhailova Street © Olimpproekt Group


Thus, this new housing complex embodies a lot of the trendy “signs of the times”: attention to detail and desire to rethink the architectural context, a vehicle-free landscaped yard, a developed public space in the bottom floors, thought-out pedestrian routes, and smart use of the benefits given by the surroundings.

One can also mention a few things that are NOT there in this housing complex. The fashion for bright “pixelated” façades came and (luckily) went; the architects found quite a different solution to make sure that comfort-class high-rises no longer look like line “medical thermometers” because of vertical arrays of stanza balconies. It turned out that it was enough to sink the stanzas into the space of the apartments, treating them from the outside as windows, to leave enough room for playing with the façade’s plastique. And as for the image of the buildings, in this specific instance, it teeters on the verge of respectable art-deco: hence the metal, openwork inclusions, vertical modules and flutes – and the modern decorated architecture. Possibly, we are witnessing the birth of a certain branch of Moscow art-deco of the XXI century: different versions of this style have been tried in this city for 20 years already; there have been a lot unsuccessful attempts. As for the new version, however, it is reasonably up-to-date, respectable-looking, and at the same time it answers the requirements of the market that wanted to get a large but “decent-looking” housing complex. One must admit that architecture of residential buildings developed in a similar manner in the XIX century: architects would answer, as best they could, to the requirements of the growing housing market; back in those days, in the beginning of the XX century, all the techniques were honed to perfection. Now we are observing the same process, only on a larger scale, resonant with the pace of the growing megalopolis.

The developer is promising to put the housing complex into operation in the second quarter of 2019; the construction worker is underway.
Housing complex at the Mikhailova Street © Olimpproekt Group
Housing complex at the Mikhailova Street © Olimpproekt Group
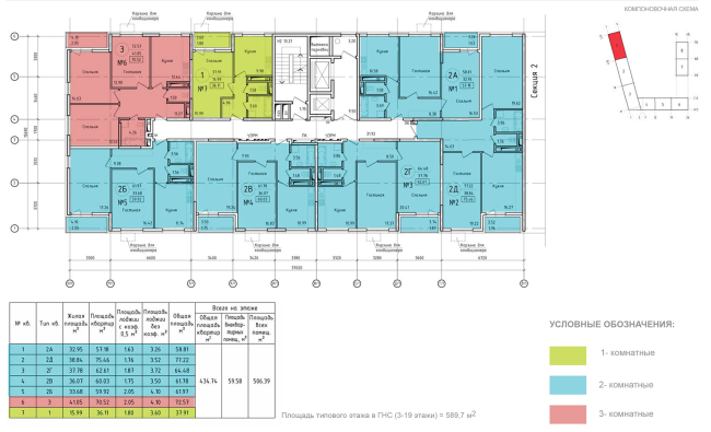
Housing complex at the Mikhailova Street. Plan of the standard floor floors 13-19 © Olimpproekt Group
Housing complex at the Mikhailova Street. Plan of the standard floor floors 13-19 © Olimpproekt Group
Housing complex at the Mikhailova Street. Plan of the standard floor floors 2-12 © Olimpproekt Group
Housing complex at the Mikhailova Street. Plan of the standard floor floors 2-12 © Olimpproekt Group
Housing complex at the Mikhailova Street. Development drawings © Olimpproekt Group
Housing complex at the Mikhailova Street. Development drawings © Olimpproekt Group
Housing complex at the Mikhailova Street. Elevation on grid in axes 1-26 © Olimpproekt Group
Housing complex at the Mikhailova Street. Elevation on grid in axes 1-26 © Olimpproekt Group
Housing complex at the Mikhailova Street. Elevation on grid in axes C1-A © Olimpproekt Group
Housing complex at the Mikhailova Street. Elevation on grid in axes C1-A © Olimpproekt Group
Housing complex at the Mikhailova Street. Elevation on grid in axes A2-Pb © Olimpproekt Group
Housing complex at the Mikhailova Street. Elevation on grid in axes A2-Pb © Olimpproekt Group
Housing complex at the Mikhailova Street. Elevation on grid in axes 1-26 © Olimpproekt Group
Housing complex at the Mikhailova Street. Elevation on grid in axes 1-26 © Olimpproekt Group
Housing complex at the Mikhailova Street. Elevation on grid in axes C1-A © Olimpproekt Group
Housing complex at the Mikhailova Street. Elevation on grid in axes C1-A © Olimpproekt Group
Housing complex at the Mikhailova Street. Elevation on grid in axes 4-b-1 © Olimpproekt Group
Housing complex at the Mikhailova Street. Elevation on grid in axes 4-b-1 © Olimpproekt Group
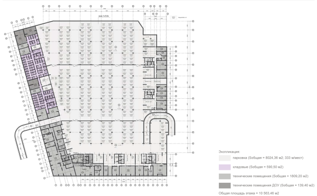
Housing complex at the Mikhailova Street. Plan of the 1st floor © Olimpproekt Group
Housing complex at the Mikhailova Street. Plan of the 1st floor © Olimpproekt Group
Housing complex at the Mikhailova Street. Plan of the standard floor of Section 1 © Olimpproekt Group
Housing complex at the Mikhailova Street. Plan of the standard floor of Section 1 © Olimpproekt Group
Housing complex at the Mikhailova Street. Plan of the standard floor of Section 2 © Olimpproekt Group
Housing complex at the Mikhailova Street. Plan of the standard floor of Section 2 © Olimpproekt Group
Housing complex at the Mikhailova Street. Plan of the standard floor of Section 4 © Olimpproekt Group
Housing complex at the Mikhailova Street. Plan of the standard floor of Section 4 © Olimpproekt Group
Housing complex at the Mikhailova Street. Plan of the standard floor of Section 5 © Olimpproekt Group
Housing complex at the Mikhailova Street. Plan of the standard floor of Section 5 © Olimpproekt Group
Housing complex at the Mikhailova Street. Plan of the standard floor of Section 6 © Olimpproekt Group
Housing complex at the Mikhailova Street. Plan of the standard floor of Section 6 © Olimpproekt Group
Housing complex at the Mikhailova Street. Plan of the standard floor of Sections 7 and 8 © Olimpproekt Group
Housing complex at the Mikhailova Street. Plan of the standard floor of Sections 7 and 8 © Olimpproekt Group