Published on Archi.ru (https://archi.ru)

18.10.2017

​Cross Stitch

Julia Tarabarina
Studio:

In their project of “Bolshevik” housing complex, IND architects revised the factory architecture of Oscar Didio and the design code for the renovation of John McAslan in an ornamental key.

"Bolshevik" apartment housing complex, organization of the inside yard © IND Architects
"Bolshevik" apartment housing complex, organization of the inside yard © IND Architects


The housing complex designed by IND architects, is situated in the depth of the territory of the “Bolshevik” business center, the successor of the factory bearing the same name. The master plan of renovating the factory buildings, which included (1) opening the territory of the business center to city people, (2) retention, clearance, and renovation of the ornamental style of the brick buildings designed by Oscar Didio and built back in 1884, and (3) building a private Impressionism museum of Boris Mints, was implemented by the architects of John McAslan + Partners in 2012-2016, and became a rather noticeable event in Moscow’s cultural life, even more so in the context of the trend of reconstructing industrial parks. From the very start, it was known that the neighbor of the business center would be a residential complex; its project within the framework of the master plan and the design code of John McAslan was developed by IND architects.

"Bolshevik" apartment housing complex © IND Architects
"Bolshevik" apartment housing complex © IND Architects


Three apartment buildings are situated in the center of the territory between the Impressionism Museum and the atrium of the business center, and surround a small rectangular yard. Some of the façades were retained – obviously, the architects kept intact what it was possible to keep intact: according to the authors, the façades of Building 9 “were left totally unchanged”. Their large windows are grouped into verticals, while the brick surfaces are decorated with white ornament. It is different from the slightly more classical decor of the other buildings with the prevalence of a non-motivated ornament of a cross-stitched towel – and, picking up the motif and making it a little more geometric, IND architects spread it over the elements of the new inclusions. The “cross stitch” pattern adorns backlighted surfaces of the marquees above the entrances of all the three buildings, the ceilings of the lobbies, metallic railings of the staircases and the first floors, multiplying the Russophile idea proposed by the French Didio and raising it to the level of a trendy ornament. As for the brightest element of their design solution, the architects say that it is the metallic staircase adjacent to Building 9 from the yard side, covered with a glass casing: at night it will glow with the same cross-stitch pattern.

"Bolshevik" apartment housing complex © IND Architects
"Bolshevik" apartment housing complex © IND Architects


"Bolshevik" apartment housing complex © IND Architects
"Bolshevik" apartment housing complex © IND Architects


"Bolshevik" apartment housing complex © IND Architects
"Bolshevik" apartment housing complex © IND Architects


"Bolshevik" apartment housing complex, entrance group © IND Architects
"Bolshevik" apartment housing complex, entrance group © IND Architects


"Bolshevik" apartment housing complex, entrance group © IND Architects
"Bolshevik" apartment housing complex, entrance group © IND Architects


"Bolshevik" apartment housing complex © IND Architects
"Bolshevik" apartment housing complex © IND Architects


"Bolshevik" apartment housing complex, fragment of the facade and the staircase © IND Architects
"Bolshevik" apartment housing complex, fragment of the facade and the staircase © IND Architects


"Bolshevik" apartment housing complex, organization of the inside yard © IND Architects
"Bolshevik" apartment housing complex, organization of the inside yard © IND Architects


"Bolshevik" apartment housing complex, organization of the inside yard © IND Architects
"Bolshevik" apartment housing complex, organization of the inside yard © IND Architects


Across from the complex, there are the more reserved and obviously more modern façades of Building 28; its windows are smaller than in the XIX-century building, and they alternate in a staggered order; the black-colored bottom floor “tears” the main volume “up” from the ground in a modernist fashion.

"Bolshevik" apartment housing complex © IND Architects
"Bolshevik" apartment housing complex © IND Architects


"Bolshevik" apartment housing complex, facade fragment © IND Architects
"Bolshevik" apartment housing complex, facade fragment © IND Architects


All the buildings are crowned with penthouses made of glass and dark-colored metal: one or two stories tall, they step back from the edge of the roof and form terraces; here, on the top floors, the “down-to-the-ceiling” windows form an ethereal border between the living room, the balcony that surrounds it, and the cityscape behind the tubs with flowers. Slightly larger terraces are designed on the roof of the three-story-high Building 35; terraces and greenery (especially the trendy grass plants and field flowers) are generally abundant here, while the roof of the entrance to the underground parking garage is fully covered by a lawn.

"Bolshevik" apartment housing complex © IND Architects
"Bolshevik" apartment housing complex © IND Architects


"Bolshevik" apartment housing complex, the balcony © IND Architects
"Bolshevik" apartment housing complex, the balcony © IND Architects


"Bolshevik" apartment housing complex © IND Architects
"Bolshevik" apartment housing complex © IND Architects


"Bolshevik" apartment housing complex, green roof © IND Architects
"Bolshevik" apartment housing complex, green roof © IND Architects


"Bolshevik" apartment housing complex, the terrace © IND Architects
"Bolshevik" apartment housing complex, the terrace © IND Architects


"Bolshevik" apartment housing complex, green roof © IND Architects
"Bolshevik" apartment housing complex, green roof © IND Architects


"Bolshevik" apartment housing complex, organization of the inside yard © IND Architects
"Bolshevik" apartment housing complex, organization of the inside yard © IND Architects


"Bolshevik" apartment housing complex © IND Architects
"Bolshevik" apartment housing complex © IND Architects


The architects not only developed the projects of all the housing units, organization of the yard, and the interior design of the lobbies, but they also came up with a few designs for the apartments, a cafe, and a restaurant; they also took part in designing the complex's trademark style.

"Bolshevik" apartment housing complex, interior of the hall © IND Architects
"Bolshevik" apartment housing complex, interior of the hall © IND Architects


"Bolshevik" apartment housing complex, fragment of the interior of the public zones © IND Architects
"Bolshevik" apartment housing complex, fragment of the interior of the public zones © IND Architects


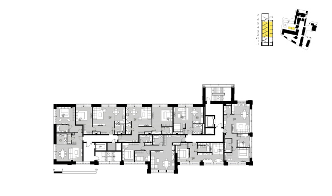
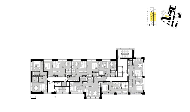
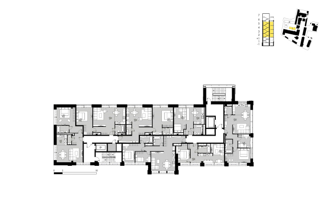
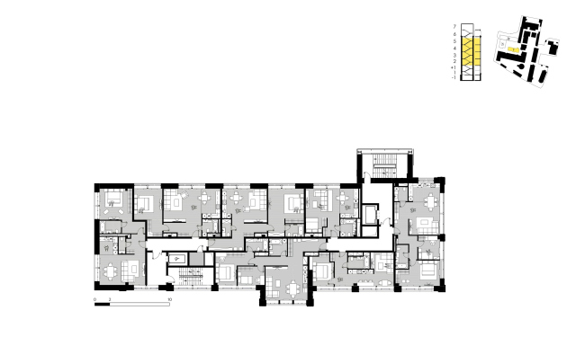
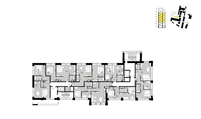
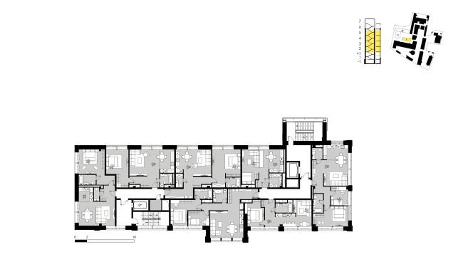
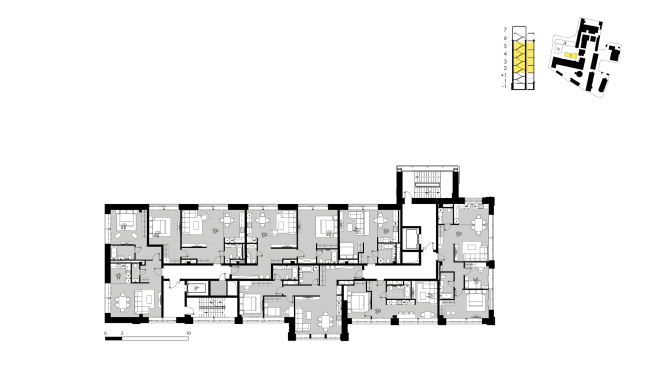
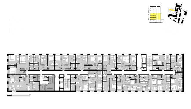
"Bolshevik" apartment housing complex, plan of the floor of Building 28 © IND Architects
"Bolshevik" apartment housing complex, plan of the floor of Building 28 © IND Architects


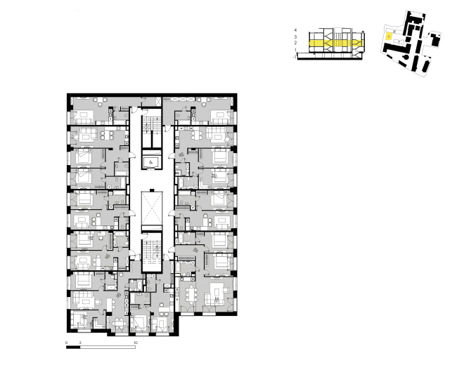
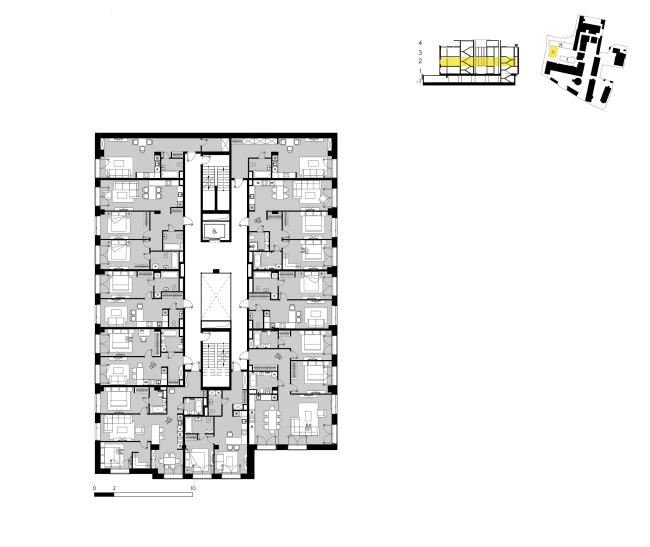
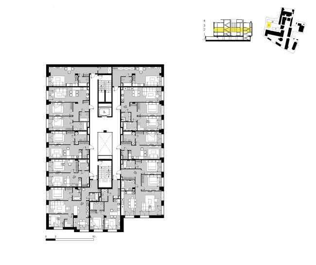
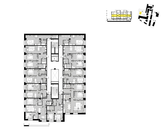
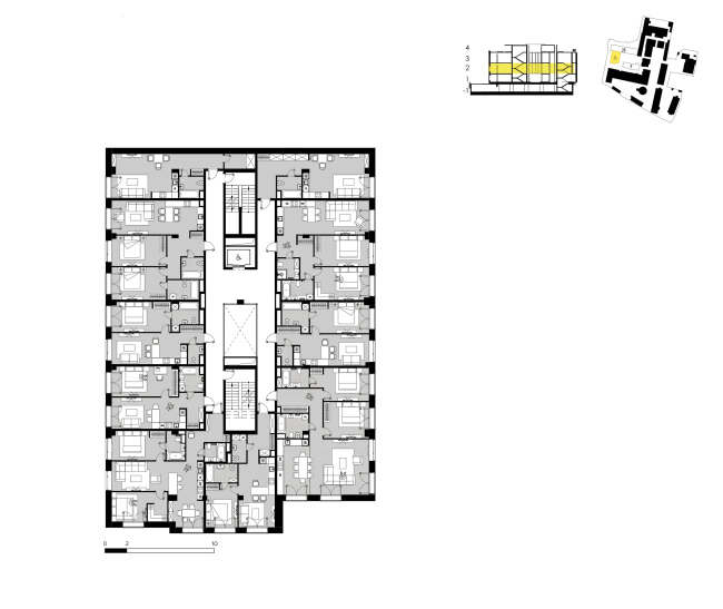
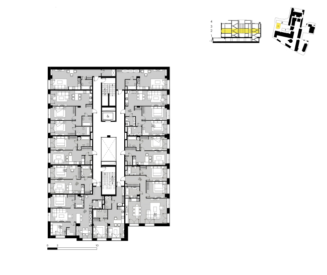
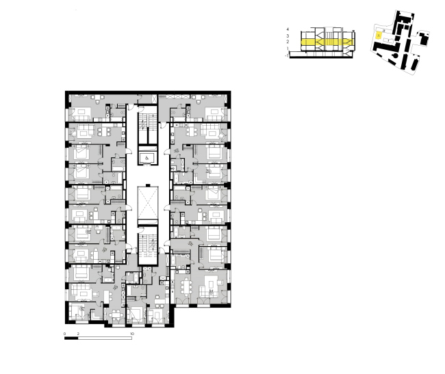
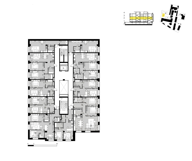
"Bolshevik" apartment housing complex, plan of the floor of Building 9 © IND Architects
"Bolshevik" apartment housing complex, plan of the floor of Building 9 © IND Architects


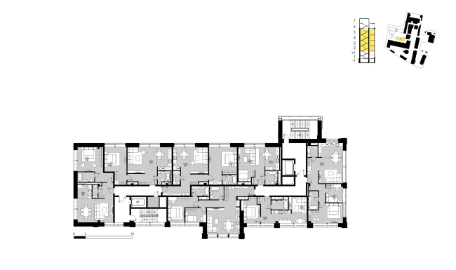
"Bolshevik" apartment housing complex, plan of the floor of Building 35 © IND Architects
"Bolshevik" apartment housing complex, plan of the floor of Building 35 © IND Architects


"Bolshevik" apartment housing complex, interior © IND Architects
"Bolshevik" apartment housing complex, interior © IND Architects


"Bolshevik" apartment housing complex, interior © IND Architects
"Bolshevik" apartment housing complex, interior © IND Architects


The range of apartments is quite broad: from 35 square meters for 9 million rubles to 230 square meters for about 66 million rubles; there are also double-room apartments from 70 to 120 square meters, which by definition is designed for a wide range of market proposals, including the promo offerings, and is meant to attract different buyers, from singles to wealthy families. The construction work is underway, and the keys will be handed out in December of 2017.
"Bolshevik" apartment housing complex © IND Architects
"Bolshevik" apartment housing complex © IND Architects
"Bolshevik" apartment housing complex. Materials © IND Architects
"Bolshevik" apartment housing complex. Materials © IND Architects
"Bolshevik" apartment housing complex. Facades © IND Architects
"Bolshevik" apartment housing complex. Facades © IND Architects
"Bolshevik" apartment housing complex. Facades © IND Architects
"Bolshevik" apartment housing complex. Facades © IND Architects
"Bolshevik" apartment housing complex. Facades © IND Architects
"Bolshevik" apartment housing complex. Facades © IND Architects
"Bolshevik" apartment housing complex. Facades © IND Architects
"Bolshevik" apartment housing complex. Facades © IND Architects
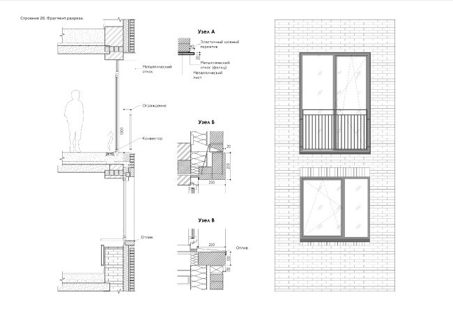
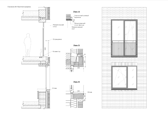
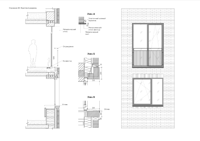
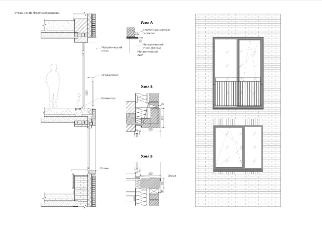
"Bolshevik" apartment housing complex. Fragment of the section view © IND Architects
"Bolshevik" apartment housing complex. Fragment of the section view © IND Architects
"Bolshevik" apartment housing complex. Cross-section over the metallic facades © IND Architects
"Bolshevik" apartment housing complex. Cross-section over the metallic facades © IND Architects
"Bolshevik" apartment housing complex. Section view © IND Architects
"Bolshevik" apartment housing complex. Section view © IND Architects