Published on Archi.ru (https://archi.ru)

28.08.2017

​Model Suburbia

Lilya Aronova
Studio:
Arhitekturium

The implementation of “Andersen” residential area designed by Arkhitekturium: success and losses

"Andersen" residential complex. Construction, 2016 © Arkhitekturium
"Andersen" residential complex. Construction, 2016 © Arkhitekturium


A few years ago we already wrote about the project of the Moscow-area residential settlement named “Andersen” designed by Arkhitekturium company headed by Vladimir Bindeman. At that point, the construction of the area was only just beginning; most of it is complete now, and even some residents have moved in, so it is now the perfect time to get back to the project and check just which of the architects’ ideas were ultimately implemented the way the architects envisioned them. All the more so, because, based on the example of this project, we can draw several important conclusions that could prove very useful in developing the vast expanses of the Moscow suburbs.

But then again, when the history of Andersen was just beginning, nobody so much as guessed about the oncoming expansion of Moscow. The territory with an area of twenty hectares located 11 kilometers outside the Moscow Ring Road down the Kaluzhskoe Highway and on the bank of the Desna River seemed at that point to be the perfect location for a countryside settlement consisting of villas and townhouses. Based on these presuppositions, the construction density was calculated, and after this land was officially joined to Moscow, the housing typology was logically changed into low-rise urban buildings, the architects facing the necessity of making sure that whatever they design fits in with the already approved master plan. The conditional semicircle that follows the bend of the Desna, its traverse facing the highway, is divided into two unequal parts by a segment of woodland; we must make a reservation at this point that right now we are only speaking about the construction that is performed on the larger land site, the fate of the smaller one is yet unknown.

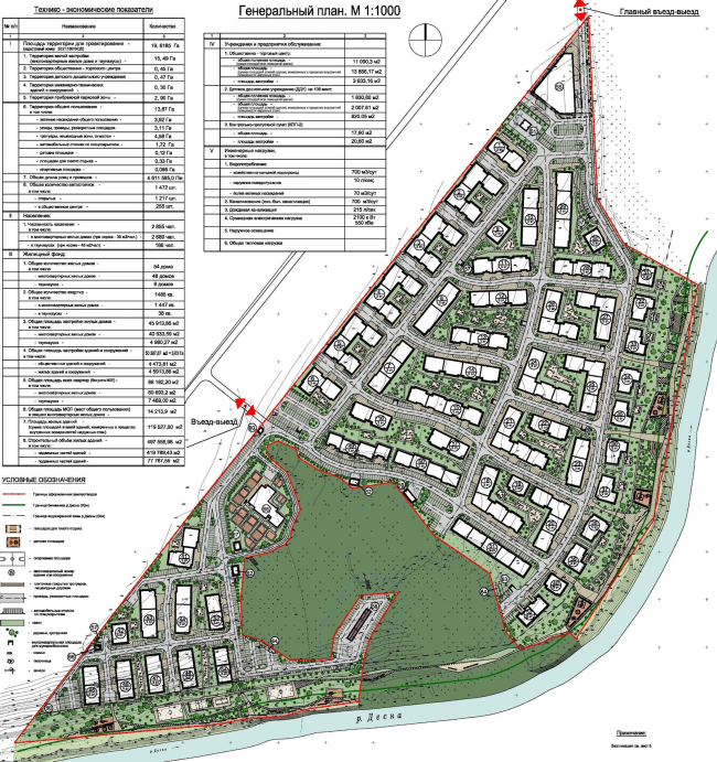
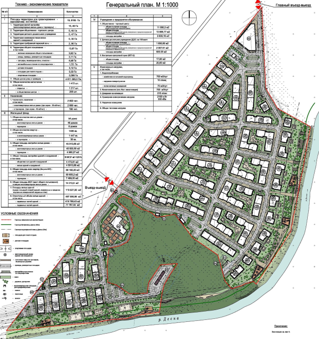
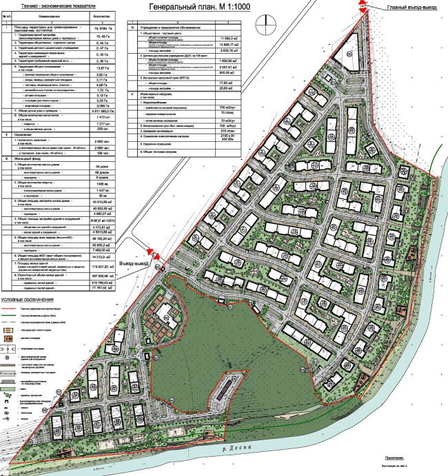
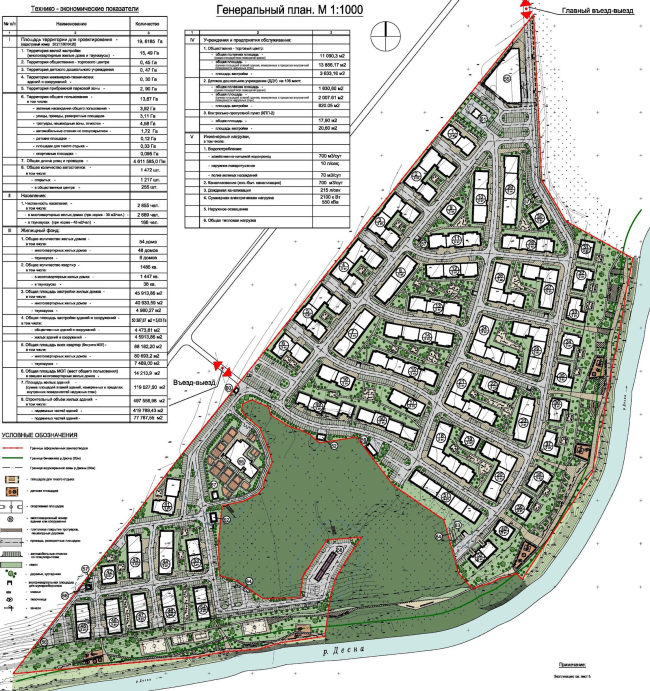
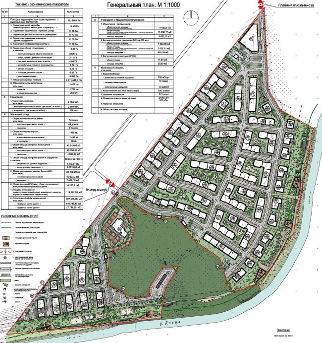
"Andersen" residential complex. Master plan, 2014 © Arkhitekturium
"Andersen" residential complex. Master plan, 2014 © Arkhitekturium


The territory Is subdivided into equal city blocks formed by three longitudinal streets that come together at the north entrance and cross shorter streets leading to the waterfront. The width of the streets is 15-17 meters, the size of the yard squares us about 20 by 20, which is adequate for a countryside settlement, a bit too close for a city but for a low-rise suburb (provided professional town-planning solutions are in place) is rather harmonious and proportional. And this is the first conclusion, quite optimistic.

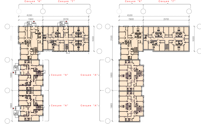
From the very start, one of the main tasks that the company set for itself was providing for visual diversity of the construction. As practice showed, this was also quite achievable, and with quite a modest range of techniques, too. With just eleven typical sections and a few types of city blocks consisting of two L-shaped buildings or three straight ones forming a U, or one L-shaped and one single-section, the blocks never repeat themselves. The result was achieved solely thanks to the facade design solutions: alternating of red and light-colored brick, shifting of pylons, inserts of aluminum matrix composite material and shake panels, choice of white or gray window frames. So, now Andersen has in it city blocks that are “white”, “red” with white windows and fractions of dark-green panels, “mosaic”, and “striped” like a fashionable knitted sweater. Although the general name for this place is “New Moscow”, this is still Moscow, and a fair share of color diversity will only make it look better.

"Andersen" residential complex. Construction, 2016. Photograph © Denis Esakov
"Andersen" residential complex. Construction, 2016. Photograph © Denis Esakov


"Andersen" residential complex. Construction, 2016. Photograph © Denis Esakov
"Andersen" residential complex. Construction, 2016. Photograph © Denis Esakov


"Andersen" residential complex. Construction, 2016. Photograph © Denis Esakov
"Andersen" residential complex. Construction, 2016. Photograph © Denis Esakov


"Andersen" residential complex. Construction, 2016. Photograph © Denis Esakov
"Andersen" residential complex. Construction, 2016. Photograph © Denis Esakov


"Andersen" residential complex. Construction, 2016. Photograph © Denis Esakov
"Andersen" residential complex. Construction, 2016. Photograph © Denis Esakov


"Andersen" residential complex. Construction, 2016. Photograph © Denis Esakov
"Andersen" residential complex. Construction, 2016. Photograph © Denis Esakov


"Andersen" residential complex. Construction, 2016. Photograph © Denis Esakov
"Andersen" residential complex. Construction, 2016. Photograph © Denis Esakov


"Andersen" residential complex. Construction, 2016. Photograph © Denis Esakov
"Andersen" residential complex. Construction, 2016. Photograph © Denis Esakov


“We can say that what we planned in terms of creating an architectural environment also came to pass” – says Vladimir Bindeman. Indeed, it is easy to see that the newcomers are settling down and interiorizing here: they install flower boxes on the balcony railings, make flower beds, and put curious vases beneath the windows... This all creates a feeling of a small cozy European town, rather democratic, without any restrictions imposed on the people’s movements, and without class stratification. At the same time, curiously, the residents of Andersen do not seem to be in a hurry to develop their local community as such – so much so that the residents asked to delete all the in-block trails and benches from the land organization plans and turn the yard squares into lawns. It is still an open question what conclusions can be drawn from this fact, if any at all, but it is still something to think about.

But then again, Andersen will hardly suffer from shortage of space for communication: along the tall bank of the Desna, the architects are designing a long waterfront with a promenade, bicycle trails, sports facilities, children’s playgrounds, and other attributes of modern community. The waterfront, just as the windows of the houses standing on the first line, command beautiful natural views: across the river, there is a strip of woodland that obscures the next construction site of the New Moscow. It should be said that from its opposite side Andersen is protected from the noise and grime as well: the field that separates the settlement from the Kaluzhskoe highway is situated on a slightly higher level. There are plans for building on this field yet another settlement, with taller buildings, but this will also bring Andersen benefits of its kind: residents of the settlement will get an opportunity to use the public services of that place, because in the line of infrastructure Andersen will only have to offer its residents a kindergarten in the stead of the former strip of woodland and a minimum set of retail at the entrance.

"Andersen" residential complex. Construction, 2016. Photograph © Denis Esakov
"Andersen" residential complex. Construction, 2016. Photograph © Denis Esakov


"Andersen" residential complex. Construction, 2016. Photograph © Denis Esakov
"Andersen" residential complex. Construction, 2016. Photograph © Denis Esakov


"Andersen" residential complex. Construction, 2016. Photograph © Denis Esakov
"Andersen" residential complex. Construction, 2016. Photograph © Denis Esakov


"Andersen" residential complex. Construction, 2016. Photograph © Denis Esakov
"Andersen" residential complex. Construction, 2016. Photograph © Denis Esakov


"Andersen" residential complex. Construction, 2016. Photograph © Denis Esakov
"Andersen" residential complex. Construction, 2016. Photograph © Denis Esakov


"Andersen" residential complex. Construction, 2016. Photograph © Denis Esakov
"Andersen" residential complex. Construction, 2016. Photograph © Denis Esakov


"Andersen" residential complex. Construction, 2016. Photograph © Denis Esakov
"Andersen" residential complex. Construction, 2016. Photograph © Denis Esakov


"Andersen" residential complex. Construction, 2016. Photograph © Denis Esakov
"Andersen" residential complex. Construction, 2016. Photograph © Denis Esakov


"Andersen" residential complex. Construction, 2016. Photograph © Denis Esakov
"Andersen" residential complex. Construction, 2016. Photograph © Denis Esakov


"Andersen" residential complex. Construction, 2016. Photograph © Denis Esakov
"Andersen" residential complex. Construction, 2016. Photograph © Denis Esakov


"Andersen" residential complex. Construction, 2016 © Arkhitekturium
"Andersen" residential complex. Construction, 2016 © Arkhitekturium


"Andersen" residential complex. Construction, 2016 © Arkhitekturium
"Andersen" residential complex. Construction, 2016 © Arkhitekturium


In the project of Andersen, the eternal parking problem (which grew much worse because of the fact that developers insisted on making the yards vehicle-free) was solved in an unconventional way, by using for the parking garage three floor of the community center that initially was supposed to become the settlement’s “visiting card”. However, recently it turned out that the community center will not be built in its original form: its place will be occupied by an eight-story residential building with a few retail stores on the first floor. Still, people have to park their cars somewhere, and the architects, with pinpoint accuracy, observing, of course, the appropriate rules and regulations, would cut out here and there parking stalls for five or ten cars, plus parallel parking along the streets. At the end of the day, the parking catastrophe was averted – it looks like there is enough parking space for everyone. Consequently, even considering the densely packed master plan, such low-rise residential areas can do without underground parking garages.

"Andersen" residential complex. Project of the community center © Arkhitekturium
"Andersen" residential complex. Project of the community center © Arkhitekturium


However, the very fact that the project of the community center is not to be ever implemented cannot be considered to be anything but a serious loss. The dynamic and ingenious architecture of this building gave Andersen a character that was acutely modern; it combined solving the practical tasks with a bright aesthetic statement. “Well, – Vladimir Bindeman comments pensively – This is not the first time in history when matter triumphs over mind”. But even in spite of this loss, the settlement, which has already won a few professional awards, can serve as a model example of the modern suburbia which is in great demand in this country and in Moscow for obvious reasons: it is economical, comfortable, and democratic, and (this is particularly valuable) having a unique individual face of its own. So far, this is rather an exception than a rule but, as the example of Andersen shows, this task is quite achievable – desire creates power.
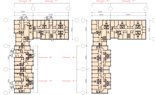
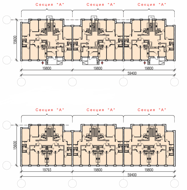
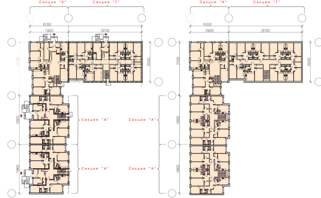
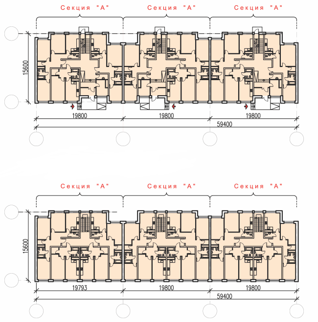
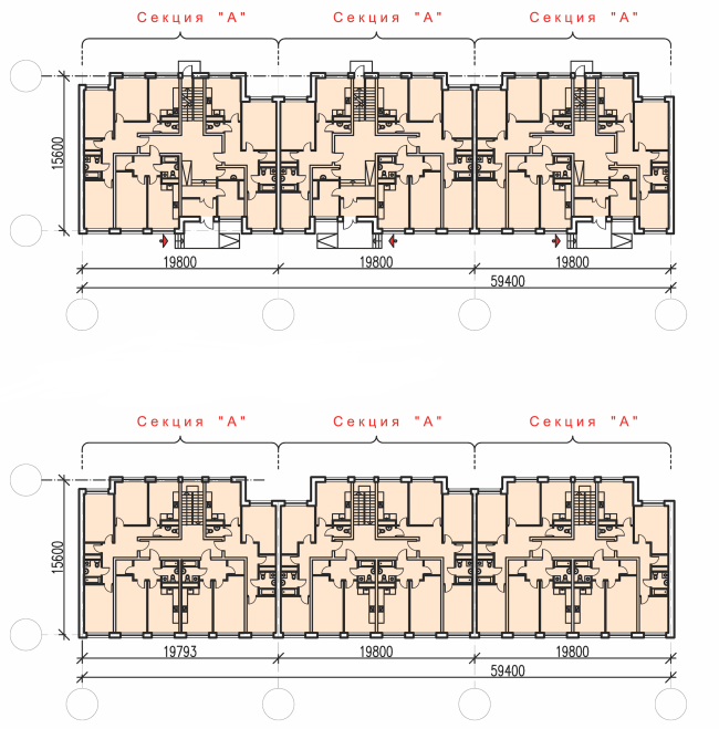
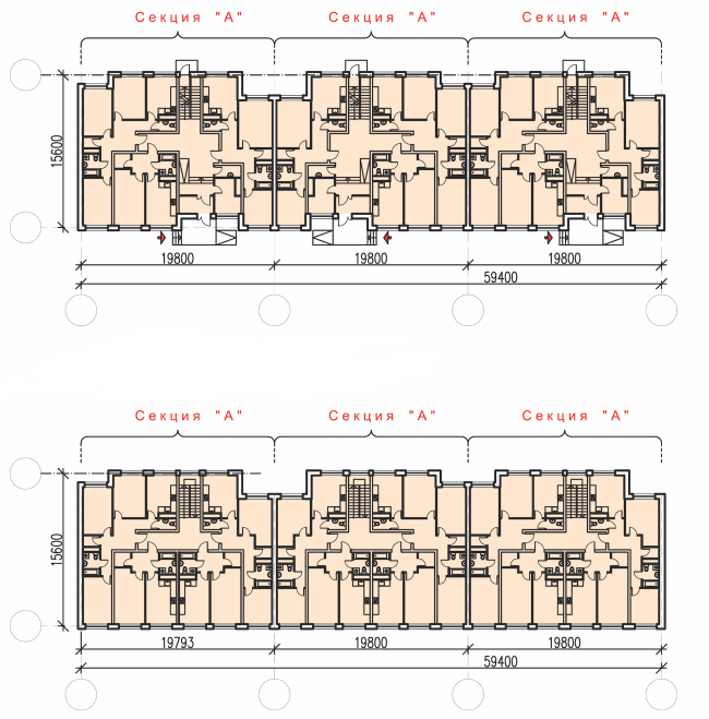
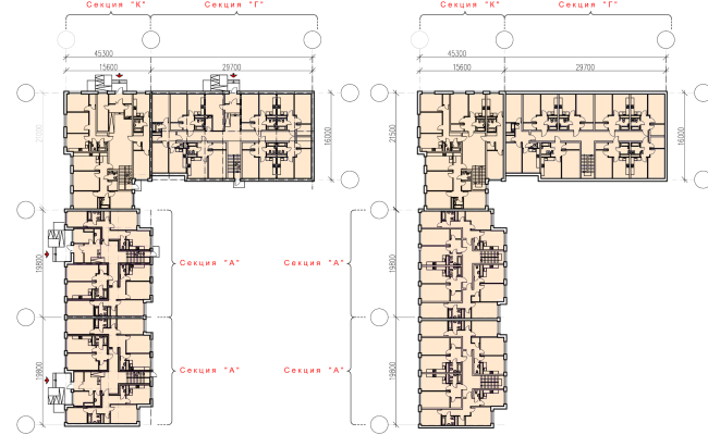
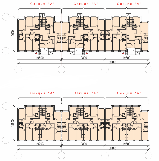
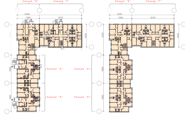
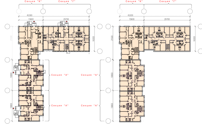
"Andersen" residential complex. Plans of the first and typical floors © Arkhitekturium
"Andersen" residential complex. Plans of the first and typical floors © Arkhitekturium
"Andersen" residential complex. Plans of the first and typical floors © Arkhitekturium
"Andersen" residential complex. Plans of the first and typical floors © Arkhitekturium
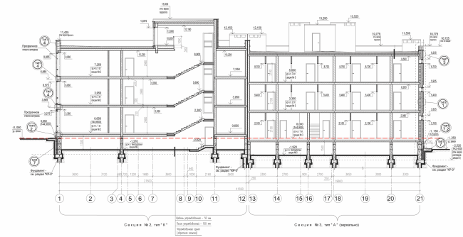
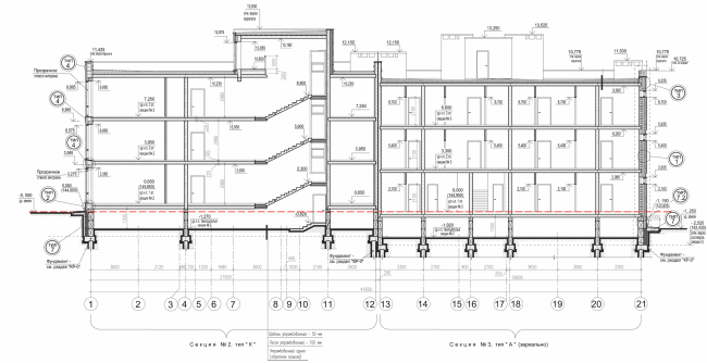
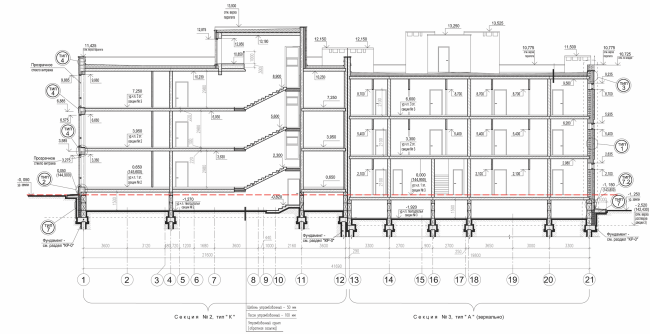
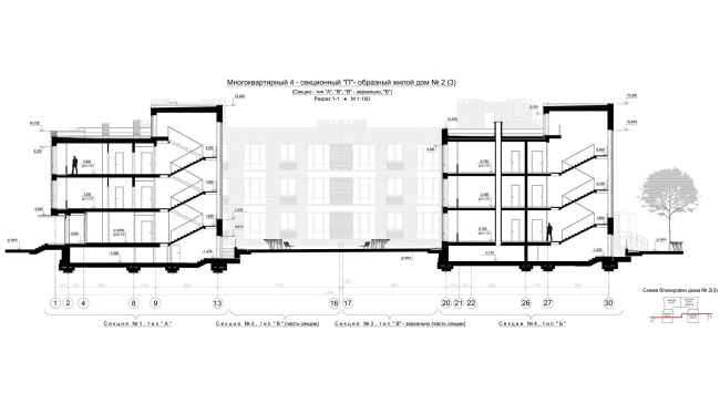
"Andersen" residential complex. Section 1-1 © Arkhitekturium
"Andersen" residential complex. Section 1-1 © Arkhitekturium
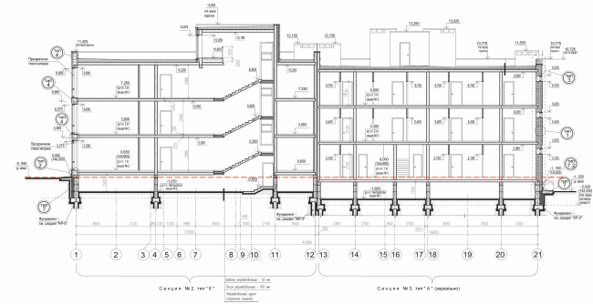
"Andersen" residential complex. Section view © Arkhitekturium
"Andersen" residential complex. Section view © Arkhitekturium
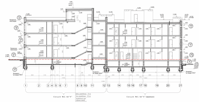
"Andersen" residential complex. Section 1-1 © Arkhitekturium
"Andersen" residential complex. Section 1-1 © Arkhitekturium