Published on Archi.ru (https://archi.ru)

07.09.2017

​Mirrors and Fir Trees

Alla Pavlikova
Studio:
4izmerenie

A new office center will be built in the place of the former antibiotics factory – the architects have a task of preserving a few existing buildings, and, more importantly, the fir trees that were planted here more than half a century ago.

"Yolki-Park" multifuctional complex © The Fourth Dimension
"Yolki-Park" multifuctional complex © The Fourth Dimension


The territory of the former antibiotics factory is situated on the Nagatinskaya street, a seven minutes’ walk away from the metro station and 350 meters off the Moskva River waterfront. Across the river stands the former ZIL plant. This territory is full of promise, it is being actively developed now but so far the former factory or, to be more precise, the Government Research Centre for Antibiotics, is surrounded by industrial parks on either side: on its west, from the metro station side, stands the pharmaceutical factory “Ferane”, and on its west there is a sewing factory.

The main buildings of the future business center were erected back in 1953, the same year as the fir trees were planted. For a long time, this publicly owned antibiotics factory was the nation’s largest but in the 1990, after the buildings were transferred into private ownership, it was closed down; currently, some of the buildings are rented out, others fell into decay and stand empty. Nonetheless, the central building and its two wings (between which a little fir park is situated) are still in a pretty decent condition. One can easily read a symmetrical composition with an inner yard turned to the Nagatinskaya Street.

The current situation. The building of the Government Research Centre for Antibiotics. Photo courtesy: The Fourth Dimension
The current situation. The building of the Government Research Centre for Antibiotics. Photo courtesy: The Fourth Dimension


Integration. "Yolki-Park" multifuctional complex © The Fourth Dimension
Integration. "Yolki-Park" multifuctional complex © The Fourth Dimension


The idea of transforming the old factory into a modern office and shopping center occurred to the owners chiefly because of the transformation activities going on at the neighboring territories. The main impulse was given by the ZIL plant renovation and the program of developing the waterfront lands of the Moskva River. The northwest and northeast borders of the land site in question will become new streets – which will instantly make the territory of the former Government Research Centre for Antibiotics open and permeable. The territory of the neighboring Ferane factory will get a few residential blocks. The role of the community center of this, yet-nonexistent, residential area will be played by the “Yolki-Park” center (literally translating as “Fir Park” but rhyming pretty accurately with “Gorky Park” in Russian – translator’s note) – this is the working name of the complex that the designers came up with.

One of the authors of the concept is an architect and a pedagogue Oscar Mamleev. His proposal became an alternative to the earlier project that provided for tearing down all the buildings and cutting down all the trees. Oscar Mamleev was able to convince the investors in the necessity of preserving not only the fir trees (which are of doubtless natural and historical value) but also the central building and its wings – although these do not boast a status of a cultural heritage site, they still play an important town-planning role in the ensemble of the Nagatinskaya Street. As for the new commercial areas, Oscar Mamleev proposed to place them in the depth of the site behind the central building keeping the existing average height of construction. The client was inspired by the idea, and for further design, the architectural firm “Chetvertoe Izmerenie” (“The Fourth Dimension”) was invited.

"Yolki-Park" multifuctional complex © The Fourth Dimension
"Yolki-Park" multifuctional complex © The Fourth Dimension


"Yolki-Park" multifuctional complex © The Fourth Dimension
"Yolki-Park" multifuctional complex © The Fourth Dimension


The project consists of three basic constituent parts: restoration, renovation, and new construction – explains one of the company leaders, Vsevolod Medvedev. Special attention was given to the administrative building. Despite the absence of any abundant decor, this building can be referred to the legacy of Stalin-era architecture: well-balanced composition and window proportions, impressive interiors with a double-height lobby, columns with column caps, and a grand staircase convince us that this building must be preserved as the monument of urban environment of the 1950’s – the architect stresses. We are not speaking about any scientific restoration in this case but the project still provides for restoration of the façades and repair of the inner premises with adjustments necessary for them to perform the new functions.

"Yolki-Park" multifuctional complex © The Fourth Dimension
"Yolki-Park" multifuctional complex © The Fourth Dimension


The four-story buildings flanking the yard, according to Vsevolod Medvedev, were preserved significantly worse than the central one, and therefore required more effort. It was decided that one of them would be renovated to become a small hotel, the other – an office building. After the reconstruction, both buildings will become one story higher. The brickwork of the façades will be preserved. The authors propose to paint it dark gray, stretching on top of it a “shirt” of composite textile industrial-use fabric. At night, the semitransparent shroud will be softly backlit from inside, accentuating open galleries running along the perimeters of the buildings.

"Yolki-Park" multifuctional complex © The Fourth Dimension
"Yolki-Park" multifuctional complex © The Fourth Dimension


"Yolki-Park" multifuctional complex © The Fourth Dimension
"Yolki-Park" multifuctional complex © The Fourth Dimension


As for the territory of the front yard with its fir trees, the architects propose to turn it into a public city space. Instead of the tall fence that currently runs along the Nagatinskaya Street, there will be small transparent pavilions with shops, cafes, recreation zones and open-air terraces. From here, anybody can step over into the landscaped park. This solution was particularly important in view of the large flow of pedestrians headed for the metro station.

"Yolki-Park" multifuctional complex © The Fourth Dimension
"Yolki-Park" multifuctional complex © The Fourth Dimension


"Yolki-Park" multifuctional complex © The Fourth Dimension
"Yolki-Park" multifuctional complex © The Fourth Dimension
 

In the depth of the site, behind the main building, where now there are factory structures to be torn down, the architects are planning to make new construction. A building with a rectangular plan is designed as a broad “mono-volume” put up against the central building. “We deliberately designed the modern part in such a laconic way – Vsevolod Medvedev explains – In our project we looked to bring out the merits of the historical building. The new construction, which was not to exceed the seven floor limit, was only to become a backdrop for it. For this reason, we took the simplest rectangular form, cut it lengthwise and crosswise with atriums, and then put it back together like a 3D jigsaw puzzle”.

"Yolki-Park" multifuctional complex © The Fourth Dimension
"Yolki-Park" multifuctional complex © The Fourth Dimension


"Yolki-Park" multifuctional complex © The Fourth Dimension
"Yolki-Park" multifuctional complex © The Fourth Dimension


"Yolki-Park" multifuctional complex © The Fourth Dimension
"Yolki-Park" multifuctional complex © The Fourth Dimension


"Yolki-Park" multifuctional complex © The Fourth Dimension
"Yolki-Park" multifuctional complex © The Fourth Dimension


What the architects ultimately got was four compact independent blocks connected on the level of the four bottom floors. One of the atriums cuts the volume lengthwise filling it with ambient light and accentuating the main entrance to the new building from the side of the west façade. The central atrium crosses the volume from north to south, supporting the direction of the movement of the pedestrian flow from the park and the historical building to the new office center. As for the connection between old and new volumes, the authors of the project provide it by means of a “ramp” bridge. It starts in the park, then cuts through the historical building on the level of the second floor, runs it through, getting into the atrium of the new building that commands the river views, and lets people out of the building through the north entrance. As Vsevolod Medvedev notes, the bridge not only unites the complex but also supports an important town-planning axis. “This bridge that came around as a result of the necessity to compensate for the height drop and to tie in the historical and new parts, as well as make the complex more permeable, this bridge follows the direction of the axis that proceeds to one of the boulevards of the ZIL territory, and its main centerpiece – the Khani Rashid “Gateway” tower – Vsevolod Medvedev says – the atrium of the new building will command a great view of the entire panorama of the opposite bank of the Moskva River”. Looking to concentrate people’s attention on the historical part, the architects were still able to come up with a reserved yet quality solution for the façades of the new building. For coverage, structural glazing is used. The west and north façades (the ones that are turned to the river and the designed streets) look a little more dramatic thanks to the curved glass that creates soft reflections. Along their entire perimeter, the façades are dissected with vertical “flutes”, because of which the reflections, being deflected and distorted, become very flexible and capable of changing the building’s image depending on the weather conditions and ambient light. It is obvious that, apart from tactful treatment of the history of its location, the main merit of “Yolki-Park” is its openness. All the buildings are easy to walk from end to end or circle along the perimeter under the awnings of the street galleries. The bottom floors, which are essentially fully transparent shop windows, are occupied by retail stores, cafes, a fitness center, and a swimming pool. The whole territory of the complex is vehicle-free. The underground parking capable of serving the office workers and visitors of the complex will be built underneath the new building, without encroaching on the territory of the park and the existing buildings. And, as bonus for the future office workers, there are inside yards and green terraces on a usable roof of the new building on the 4th and 6th floor levels.

“Yolki-Park” is the perfect answer to the question: what should be contextual architecture like in the case when the nearest surroundings are yet unknown and not even being designed: it is neutral to the point of mimicry; instead of reflecting, it dissolves the yet-nonexistent neighbors. If the surroundings turn out to be great, this architecture will not get in their way, and, if otherwise, they will be not worth reflecting anyway... This architecture reacts to uncertainty with uncertainty. On the other hand, in respect to what is really known to be valuable, it is definitely respectful: it keeps whatever it can, be that buildings or trees, it fixes the views of the most famous panoramas, and it works on cohesiveness and permeability as opposed to the closeness of the industrial past. The project is aimed at the future; furthermore, it is already walking into the future, combining the known and the indefinite.
"Yolki-Park" multifuctional complex © The Fourth Dimension
"Yolki-Park" multifuctional complex © The Fourth Dimension
"Yolki-Park" multifuctional complex. Plan of the -2nd floor © The Fourth Dimension
"Yolki-Park" multifuctional complex. Plan of the -2nd floor © The Fourth Dimension
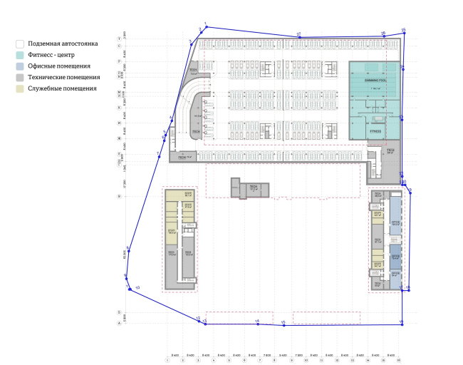
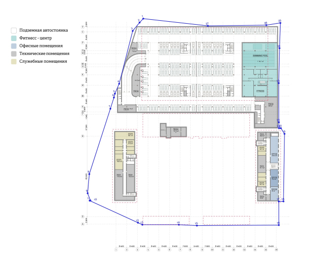
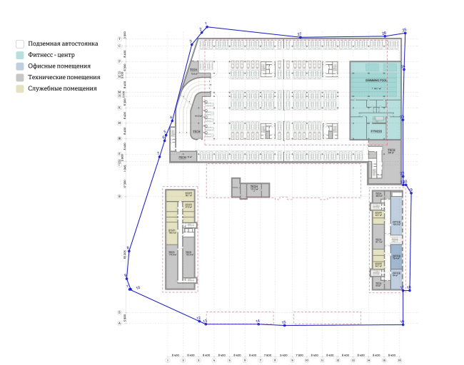
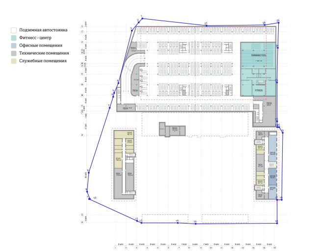
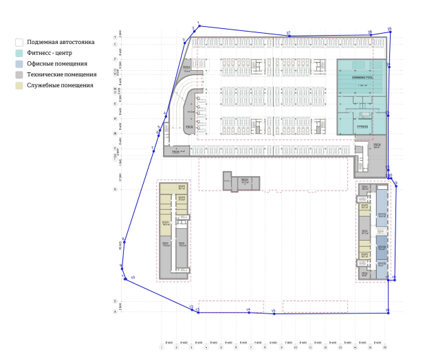
"Yolki-Park" multifuctional complex. Plan of the -1st floor © The Fourth Dimension
"Yolki-Park" multifuctional complex. Plan of the -1st floor © The Fourth Dimension
"Yolki-Park" multifuctional complex. Plan of the 1st floor © The Fourth Dimension
"Yolki-Park" multifuctional complex. Plan of the 1st floor © The Fourth Dimension
"Yolki-Park" multifuctional complex. Plan of the 2nd floor © The Fourth Dimension
"Yolki-Park" multifuctional complex. Plan of the 2nd floor © The Fourth Dimension
"Yolki-Park" multifuctional complex. Plan of the 3rd floor © The Fourth Dimension
"Yolki-Park" multifuctional complex. Plan of the 3rd floor © The Fourth Dimension
"Yolki-Park" multifuctional complex. Plan of the 4th floor © The Fourth Dimension
"Yolki-Park" multifuctional complex. Plan of the 4th floor © The Fourth Dimension
"Yolki-Park" multifuctional complex. Plan of the 5th floor © The Fourth Dimension
"Yolki-Park" multifuctional complex. Plan of the 5th floor © The Fourth Dimension
"Yolki-Park" multifuctional complex. Plan of the 6th floor © The Fourth Dimension
"Yolki-Park" multifuctional complex. Plan of the 6th floor © The Fourth Dimension
"Yolki-Park" multifuctional complex. Plan of the 7th floor © The Fourth Dimension
"Yolki-Park" multifuctional complex. Plan of the 7th floor © The Fourth Dimension
"Yolki-Park" multifuctional complex. Key plan © The Fourth Dimension
"Yolki-Park" multifuctional complex. Key plan © The Fourth Dimension
"Yolki-Park" multifuctional complex. Master plan © The Fourth Dimension
"Yolki-Park" multifuctional complex. Master plan © The Fourth Dimension
"Yolki-Park" multifuctional complex. Master plan with regard to prospective development of the street and road network © The Fourth Dimension
"Yolki-Park" multifuctional complex. Master plan with regard to prospective development of the street and road network © The Fourth Dimension