Published on Archi.ru (https://archi.ru)

03.11.2017

Along the Beach

Julia Tarabarina
Studio:
Ginzburg Architects

In the city of Gelendzhik, “Ginsburg Architects” have designed a house over 250 meters long, making it at the same time visually discrete and putting an interesting spin on a few volumetric “resort” narratives connected with contemplation, sunbathing, and going for walks.

The project of an apratment hotel in Gelendzhik. Perspective view. The central south entrance © Ginsburg Architects
The project of an apratment hotel in Gelendzhik. Perspective view. The central south entrance © Ginsburg Architects


The bottom floor of the building of the western unit of the apartment hotel “Torik”, which is situated on the Tonky Cape in the city of Gelendzhik, is already cast in concrete and is essentially a very long – about 260 meters – foundation that stretches along the first line of a leveed beach which slightly encroaches on the sea with its promenade running along the very edge of water.

The project of an apratment hotel in Gelendzhik. Location plan © Ginsburg Architects
The project of an apratment hotel in Gelendzhik. Location plan © Ginsburg Architects


The house will command a great seaside view; the airport is relatively near; the place is surrounded by seaside resorts and privately owned cottages; the nearest settlement bears the same name of “Torik”, having been built by the owners of the apartment hotel slightly earlier. The place is quiet: the Naberezhnaya Street, which runs on the inner side of the apartment hotel, leads to a cedar forest. Next to the unfinished building, there is an orange three-story block of the hotel; it has been finished and already put into operation. The builders have yet to finish the eastern part that froze at the zero mark in concrete. While the east block consists of two sections, the west one, designed by Aleksey Ginsburg on the existing foundation, consists of five.

The project of an apratment hotel in Gelendzhik. The current situation © Ginsburg Architects
The project of an apratment hotel in Gelendzhik. The current situation © Ginsburg Architects


The project of an apratment hotel in Gelendzhik. The current situation © Ginsburg Architects
The project of an apratment hotel in Gelendzhik. The current situation © Ginsburg Architects


At this point, we will allow ourselves to suppose that if Aleksey Ginsburg had designed the west building of the apart-hotel from the very start, he would have probably proposed a different plan of the building, for example, one that would have been broken into several volumes. However, the architect was required to work with the pre-built foundation, which defined his main task of making the building visually lighter and discrete and taking away as much as possible of its likeness to “the Great Wall of China” – all the more so, because the west unit, unlike the three-story east one, has five stories in it.

The architects proposed a section-and-corridor type of floor planning. Small studio apartments are lined up in two rows on either side of a corridor which runs through the building from end to end. From the side of the sea, the architects placed 42-square meter “pencil-box” apartments, their structure being simple: a large 10.5 square meter stanza commands a sea view; behind it, there is a living room, a kitchen, and the entrance door. From the opposite (the city) side, the architects placed smaller apartments 33.9 square meters each, oriented not crosswise but lengthwise along the axis of the building. Among these, there are apartments (one in each section) with a rectangular ledge 2x3 meters, each of them boasting a large window the size of the wall. Such ledges (they are turned northward) might nicely house some sort of studies – there is little direct sunlight there but the ambient light will be enough.

The project of an apratment hotel in Gelendzhik. Plan of the typical floor © Ginsburg Architects
The project of an apratment hotel in Gelendzhik. Plan of the typical floor © Ginsburg Architects


On the outside, the ledges form white tower-like verticals that break the “city façade” of each of the sections in two. This secondary fracturing is made by the staircases and elevators that are also brought slightly forward but are coated with wood and covered by the thin verticals of the grilles. This way, it turns out that from the city side the five sections are divided into 11 smaller fragments which makes one perceive the building not as a “beam” or a “slab” or a 260-meter snake but rather as a row of houses rhythmically similar to a street, which further enhances the “city” nature of the rear façade. At the same time, the main material of the north façade is brown wood; it is planned that it will be covered with natural veneer sheet.

The project of an apratment hotel in Gelendzhik. Perspective view. The central north entrance © Ginsburg Architects
The project of an apratment hotel in Gelendzhik. Perspective view. The central north entrance © Ginsburg Architects


The project of an apratment hotel in Gelendzhik. Perspective view. The north facade © Ginsburg Architects
The project of an apratment hotel in Gelendzhik. Perspective view. The north facade © Ginsburg Architects


The project of an apratment hotel in Gelendzhik. Perspective view. Overview of the north facade © Ginsburg Architects
The project of an apratment hotel in Gelendzhik. Perspective view. Overview of the north facade © Ginsburg Architects


The project of an apratment hotel in Gelendzhik. Development drawing of the facades along the Naberezhnaya Street © Ginsburg Architects
The project of an apratment hotel in Gelendzhik. Development drawing of the facades along the Naberezhnaya Street © Ginsburg Architects


The seaside façade is designed in a different manner, in large masses: the continuous pattern of deep white stanzas is divided by six large wooden inserts matching the same number of section entrances, plus the main atrium. What is interesting is the fact that the wooden verticals of the entrances – and this is plainly visible from above – grow wider as they get closer to the sea; while on the north side the entrances only take up one module, their “shadows” on the “sea” side of the hotel correspond to three apartments, and at the same time on the beach side the wooden inserts no longer mark the entrances but only become their coloristic continuation. Thus, both south and north façades are essentially the inversions of each other to a certain degree. From the sea side, white, or, rather, a light shade of gray prevails: textured stucco with fragments of stone, and the ribs of the stanzas that make up the entire seaside façade will resemble a layered cut-off of calcareous rock – a stone wall that stretches almost the entire length of the Black Sea shore, if one is to walk along the water’s edge. From the floor side, on the other hand, the façade will put one in the mind of forests in which we will find ourselves when we climb up the limy slope. The two material constituent parts of the building – imitation stone and natural wood – put an interesting spin on the two main themes of the seaside nature, while the sea and the sand (in this case, leveed) also come with the package.

The project of an apratment hotel in Gelendzhik. Perspective view. Overview of the south facade © Ginsburg Architects
The project of an apratment hotel in Gelendzhik. Perspective view. Overview of the south facade © Ginsburg Architects


The project of an apratment hotel in Gelendzhik. Perspective view. The south facade © Ginsburg Architects
The project of an apratment hotel in Gelendzhik. Perspective view. The south facade © Ginsburg Architects


The project of an apratment hotel in Gelendzhik. Development drawing of the facades along the beach line © Ginsburg Architects
The project of an apratment hotel in Gelendzhik. Development drawing of the facades along the beach line © Ginsburg Architects


At about two thirds of its length, the “slab” building makes a slight bend, following the direction of the Naberezhnaya (“Waterfront”) Street – this is where the central lobby will be situated, which will be widening in the direction of the beach in a trumpet-shaped opening, literally “opening up” the sea view for those who will enter it.

It will also include the “main” elevator and staircase, a direct passage to the sea, and an atrium with inside balconies on the second floor: the balconies are strung upon the corridors of each floor, for which the point of crossing with the atrium will become some sort of a special climax – this place commands both sea and mountain views, upwards and downwards. The walls of the atriums on both sides are stained glass. The roofs of the two central sections on either side of the atrium will be usable – these landscaped roofs will support terraces with parasols for sunbathing; thus, here up in the roof, the surroundings of the atrium also play the climax role.

The project of an apratment hotel in Gelendzhik. Roof plan © Ginsburg Architects
The project of an apratment hotel in Gelendzhik. Roof plan © Ginsburg Architects


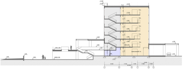
The main end-to-end passage to the sea, which runs through the atrium, is complemented by two others that run through the extreme left and right units (third and seventh) – this way, the building becomes permeable, and people will not need to find their way around it in order to get to the beach. From the side of the sea, there is a little green park stretching along the building on the ground floor level, and then, parallel to the greenery, there runs a two-tier promenade, its top terrace sunlit, and its bottom terrace in the shade; it is lit by a few skylights. What is interesting is the fact that the level of greenery and the sea-facing terrace is two meters higher than the level of the city side driveway – at this point, the terrain makes a peculiar zigzag, going up between the sea and the building, which is plain to see on the section view. The basement, whose floor lies but a meter and a half higher than the sea level – meaning, it can hardly be even called “basement” because of that – will house 32 car stalls and a rather large number of storage cells, one for each apartment, at the same time the basement of all the four central sections is essentially a public space.

The project of an apratment hotel in Gelendzhik. Plan of the first floor © Ginsburg Architects
The project of an apratment hotel in Gelendzhik. Plan of the first floor © Ginsburg Architects


The resulting space turned out to be of a double-tier kind thanks to the 4-meter height difference; from the top gallery, one can get to the sea by five evenly spaced staircases. The sixth staircase, which is situated in front of the main entrance, is more complex – this is the point where the earthen berm stops short, and the building gets yet another three-flight staircase that makes a turn. On the evening promenade, there are four latticed gazebos, and, above the edge, there are pergolas of the same kind that mark the boundary between the sunny and the shady part – this is a quite frequently used technique of resort architecture that puts one in the mind of the parterre terraces of the Arkhangelskoe and the Sochi health centers designed by Zholtovsky; in this particular case, it makes the entire composition more sophisticated, and the walks that people will take more eventful. If watched from the beach, the hotel grows up in distinct tiers: sand, then a strip of granite of the lower waterfront, the pergolas of the upper promenade, then the greenery, and, finally, the stanzas of the apartments. The whole thing looks consequent, spacious, and even ethereal; the building does not in the least distance itself from its surroundings but, rather, opens up to the sea like a sponge.

The project of an apratment hotel in Gelendzhik. Section 2-2 © Ginsburg Architects
The project of an apratment hotel in Gelendzhik. Section 2-2 © Ginsburg Architects


The project of an apratment hotel in Gelendzhik. Section 1-1 © Ginsburg Architects
The project of an apratment hotel in Gelendzhik. Section 1-1 © Ginsburg Architects


Thus, in spite of their being a lot of “givens”, including the pre-built foundation, Aleksey Ginsburg was still able to fill the house with a few meaningful nuances: from the space pivot of the atrium that forms in the center of each corridor a public nucleus that commands fine views on all cardinal points to a ñîëÿðèÿ on the roof and a two-tier promenade; at the same time, the architect did not for a second forget about the permeability of the inner space and its connection to the building’s outward appearance. All of this livens up the rather habitual task and endows the seaside resort with a highlight that it so desperately needed.
The project of an apratment hotel in Gelendzhik. Master plan layout © Ginsburg Architects
The project of an apratment hotel in Gelendzhik. Master plan layout © Ginsburg Architects
The project of an apratment hotel in Gelendzhik. Traffic flows © Ginsburg Architects
The project of an apratment hotel in Gelendzhik. Traffic flows © Ginsburg Architects