Published on Archi.ru (https://archi.ru)

14.09.2017

Where Best Cars Belong

Lilya Aronova
Architect:
Sergey Pereslegin
Nikolay Pereslegin
Georgy Trofimov
Studio:
Kleinewelt Architekten

The project of reconstructing the model-making workshop of the ZIL plant into a Mercedes-Benz and Audi dealership is unique even by the standards of the legendary complex. It is planned that the workshop will be restored using the elements of the dismantled building that was erected back in the 1930’s. It will become a part of the “ZIL’s Gate”, viewable from the Third Ring Road. In addition, this building will be the only one that will keep the “automotive” function – at least to some extent.

Dealership center of Mercedes-Benz and Audi on the territory of ZIL Plant. Project, 2016 © Kleinewelt Architekten
Dealership center of Mercedes-Benz and Audi on the territory of ZIL Plant. Project, 2016 © Kleinewelt Architekten


The combined dealership of Audi and Mercedes-Benz, which is promising to become the largest one in Europe, is being built for the “Avilon” holding within the framework of “Park of Legends” cluster on the territory of the former ZIL automotive plant. Even by the ZIL standards, where today just about every project is a significant event in itself, this project of reconstructing the former model-making workshop will become, without exaggeration, an iconic one. First of all, unlike the other workshops under reconstruction, where the architects plan to organize theaters, shopping malls, and other public services, the model-making workshop is the only location in the legendary ensemble of soviet industrial architecture that will keep the memory of the former function of this place. It is this very building that, back in the day, saw new automobiles being designed, it is here that the final bodywork was done, and then the cars were forwarded to be retailed – even considering the embarrassing difference between the production of the Soviet and the German automotive industries, the continuity of tradition is obvious in this case.

And, second of all, in accordance with the master plan of the plant developed in 1933 by the “First Architecture and Design Workshop of Narkomtyazhprom” headed by the Vesnins brothers, the workshop building, stretching along the Avtozavodskaya Street (which is now in fact a segment of the Third Transport Ring), together with the instrumental workshop, served as the ZIL’s grand entrance. It is here that the plant’s central inner thoroughfare started that was formed by the buildings of the main workshops, each of which today bears the status of a monument of industrial constructivist architecture. Due to the fact that it was decided to leave the layout structure of the plant intact as an architectural heritage site, the ex-workshop will also retain its “grand entrance” function.

Dealership center of Mercedes-Benz and Audi on the territory of ZIL Plant. Project, 2016 © Kleinewelt Architekten
Dealership center of Mercedes-Benz and Audi on the territory of ZIL Plant. Project, 2016 © Kleinewelt Architekten


Dealership center of Mercedes-Benz and Audi on the territory of ZIL Plant. Project, 2016 © Kleinewelt Architekten
Dealership center of Mercedes-Benz and Audi on the territory of ZIL Plant. Project, 2016 © Kleinewelt Architekten


The original building of the workshop itself – just like most of the other constituent parts of the grandiose ensemble – did not survive into the present. A historian of architecture, Denis Romodin, notes: “Regretfully, the dilapidation of the building was significant because for the last 12 years it was out of operation, neither was it treated for preservation. Besides, the function of the workshop was always changing, and the last reconstruction that took place in the 1970’s proved fatal to the building’s framework. Strengthening of the framework and further operation of the building were impossible”.

After careful measurement taking, the structure was almost completely dismantled by laser cutting, its parts carefully stored here on the plant territory.

Kleinewelt Architekten was invited to take part in the competition for the project development already after the previous task was elaborated. The architects are planning to use as many as possible of the surviving elements integrating them to the structure of the new building. The technologies for that are really cutting-edge, and the architects are in for a huge piece of work assembling this “construction set”, which requires pinpoint accuracy, but the ultimate goal of recreating the historical building maximally true to life is worth it. The new project will essentially be a rectangular five-story building with a six-story protrusion of a pylon, on a level with which the architects are planning to build a mansard structure on top of the building.

Dealership center of Mercedes-Benz and Audi on the territory of ZIL Plant. Project, 2016 © Kleinewelt Architekten
Dealership center of Mercedes-Benz and Audi on the territory of ZIL Plant. Project, 2016 © Kleinewelt Architekten


The new Mercedes-Benz and Audi center will include showrooms, trade-in and service centers, and all this is going to be doubled without copying each other even in tiny details by any means – this was the necessary condition stipulated by the two competing brands. “We, of course, have the experience of complex negotiations with our clients, with subcontractors, and with approval boards – shares one of the authors of the project Nikolai Pereslegin – but what a really complicated dialogue look like, we have understood just recently, in the course of getting all the appropriate approvals from Stuttgart and Ingolstadt, where the headquarters of the two automakers are situated”. The competitors got separated by an impenetrable wall, and not in the figurative but in the most literal sense of the word: the two parts of the building are separated by a huge firewall, and one will only be able to get from one showroom to the other by getting outside. Not a single detail inside will be repeated: if, for example, on the Audi side at some place there is a staircase, on the Mercedes-Benz side it’s going to be an escalator, and so on, this rule allowing for no exception. The separation starts as early as on the façade which is vertically divided by a broad cutaway running from top to bottom; the entrance portals, although designed in a single style, sport contrastive colors corresponding to the colors of the logos of the two automotive giants.

Dealership center of Mercedes-Benz and Audi on the territory of ZIL Plant. Project, 2016 © Kleinewelt Architekten
Dealership center of Mercedes-Benz and Audi on the territory of ZIL Plant. Project, 2016 © Kleinewelt Architekten


Dealership center of Mercedes-Benz and Audi on the territory of ZIL Plant. Project, 2016 © Kleinewelt Architekten
Dealership center of Mercedes-Benz and Audi on the territory of ZIL Plant. Project, 2016 © Kleinewelt Architekten


As far as the interior design is concerned, the authors produced a whole range of possible scenarios, meant to showcase the cars to their best advantage to potential customers. The “Avilon” company attaches a lot of importance to showcasing its product in a grand manner – it is enough to remember the Mercedes-Benz dealership on the Volgogradsky Avenue designed by “Asadov Architectural Bureau”. The local specifics of ZIL consists also in the fact that thanks to a large area of glazing, the future showroom will be maximally open to the city, or, to be more precise, to the Third Transport Ring, a large highway, upon which (if there is no traffic jams) the cars race at a 100 km per hour. “In this situation, our project (which we called among ourselves “Where best cars belong”) will be perceived as a single whole, like some kind of sculpture – says Nikolai Pereslegin – At the same time, the driver’s gaze must have the time, while tearing down the highway, to get hooked on something amazing – like the smartly backlit silhouettes of relic and new cars”. According to the architects, such thematic installation behind the restored stained glass windows of the model-making workshop will be an adequate homage to the great past of this legendary site.
Dealership center of Mercedes-Benz and Audi on the territory of ZIL Plant. In the process of construction, 2017 © Kleinewelt Architekten
Dealership center of Mercedes-Benz and Audi on the territory of ZIL Plant. In the process of construction, 2017 © Kleinewelt Architekten
Dealership center of Mercedes-Benz and Audi on the territory of ZIL Plant. In the process of construction, 2017 © Kleinewelt Architekten
Dealership center of Mercedes-Benz and Audi on the territory of ZIL Plant. In the process of construction, 2017 © Kleinewelt Architekten
Dealership center of Mercedes-Benz and Audi on the territory of ZIL Plant. In the process of construction, 2017 © Kleinewelt Architekten
Dealership center of Mercedes-Benz and Audi on the territory of ZIL Plant. In the process of construction, 2017 © Kleinewelt Architekten
Dealership center of Mercedes-Benz and Audi on the territory of ZIL Plant. In the process of construction, 2017 © Kleinewelt Architekten
Dealership center of Mercedes-Benz and Audi on the territory of ZIL Plant. In the process of construction, 2017 © Kleinewelt Architekten
Dealership center of Mercedes-Benz and Audi on the territory of ZIL Plant. In the process of construction, 2017 © Kleinewelt Architekten
Dealership center of Mercedes-Benz and Audi on the territory of ZIL Plant. In the process of construction, 2017 © Kleinewelt Architekten
Dealership center of Mercedes-Benz and Audi on the territory of ZIL Plant. In the process of construction, 2017 © Kleinewelt Architekten
Dealership center of Mercedes-Benz and Audi on the territory of ZIL Plant. In the process of construction, 2017 © Kleinewelt Architekten
Dealership center of Mercedes-Benz and Audi on the territory of ZIL Plant. In the process of construction, 2017 © Kleinewelt Architekten
Dealership center of Mercedes-Benz and Audi on the territory of ZIL Plant. In the process of construction, 2017 © Kleinewelt Architekten
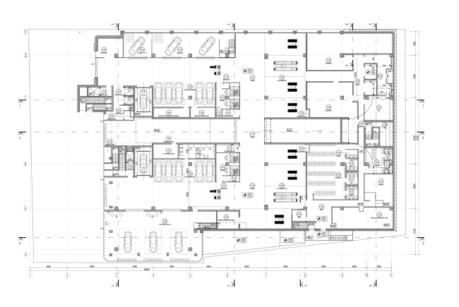
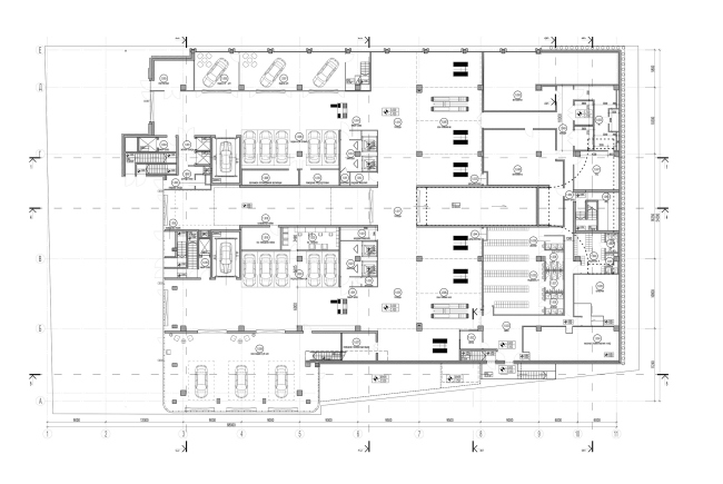
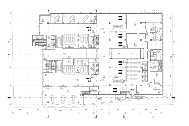
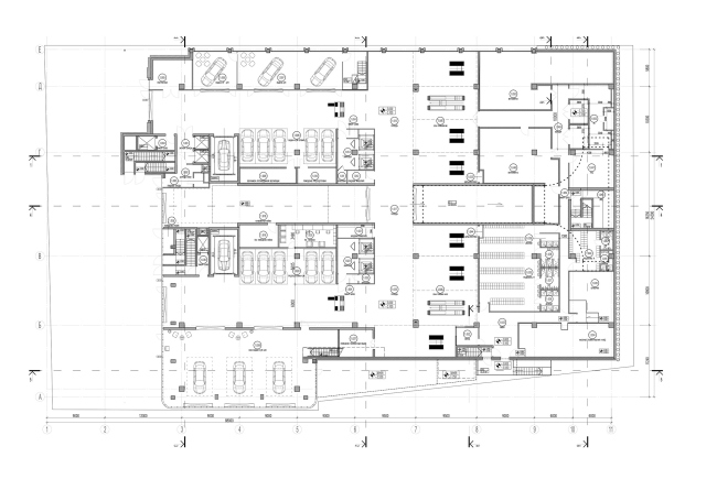
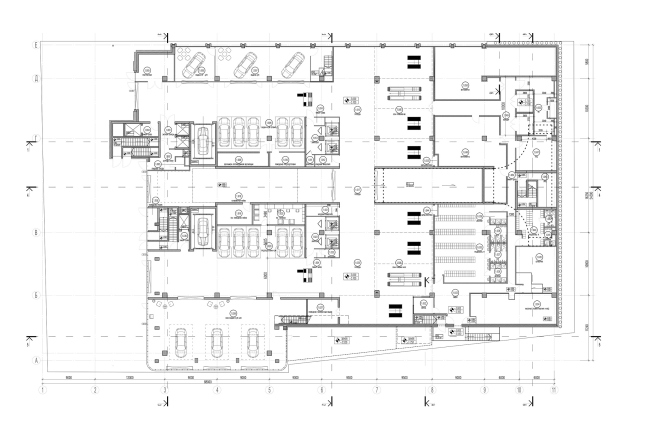
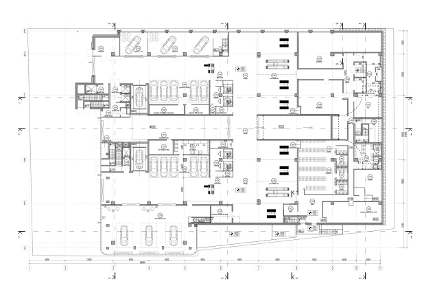
Dealership center of Mercedes-Benz and Audi on the territory of ZIL Plant. Plan of the -1st floor. Project, 2016 © Kleinewelt Architekten
Dealership center of Mercedes-Benz and Audi on the territory of ZIL Plant. Plan of the -1st floor. Project, 2016 © Kleinewelt Architekten
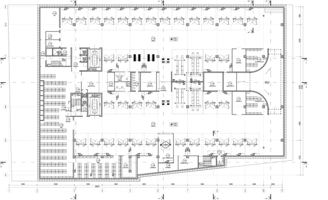
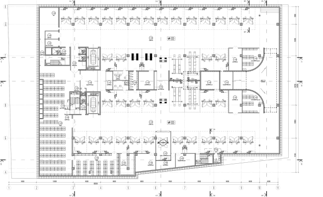
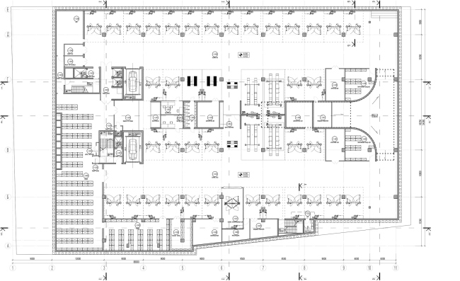
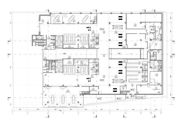
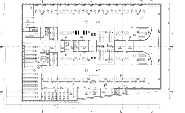
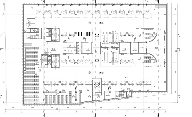
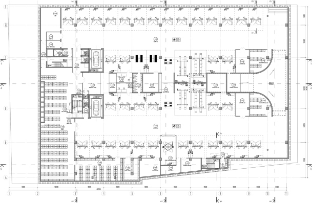
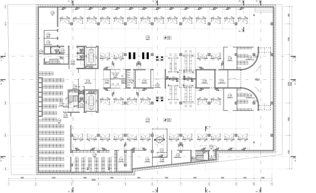
Dealership center of Mercedes-Benz and Audi on the territory of ZIL Plant. Plan of the 1st floor. Project, 2016 © Kleinewelt Architekten
Dealership center of Mercedes-Benz and Audi on the territory of ZIL Plant. Plan of the 1st floor. Project, 2016 © Kleinewelt Architekten
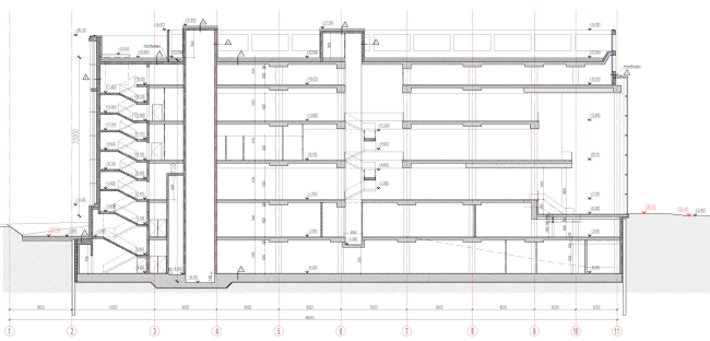
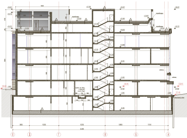
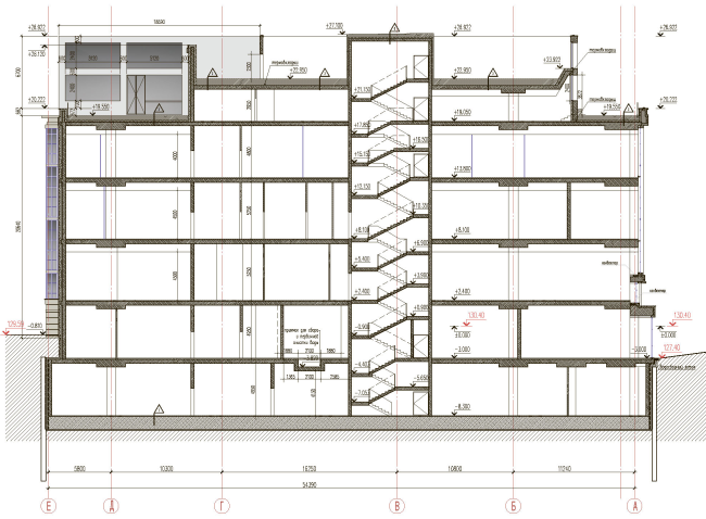
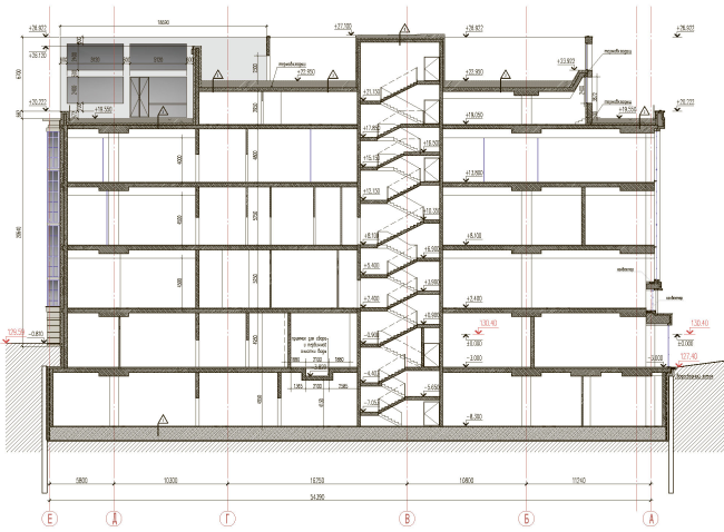
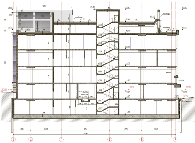
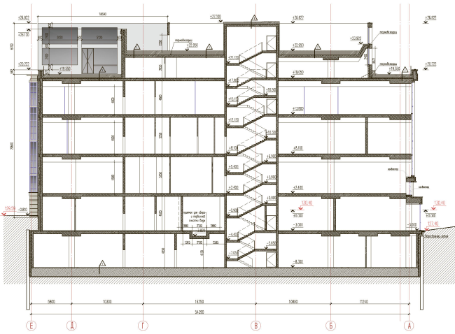
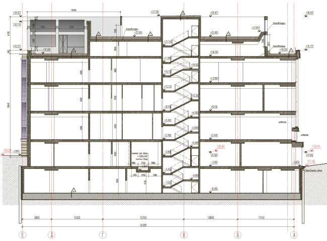
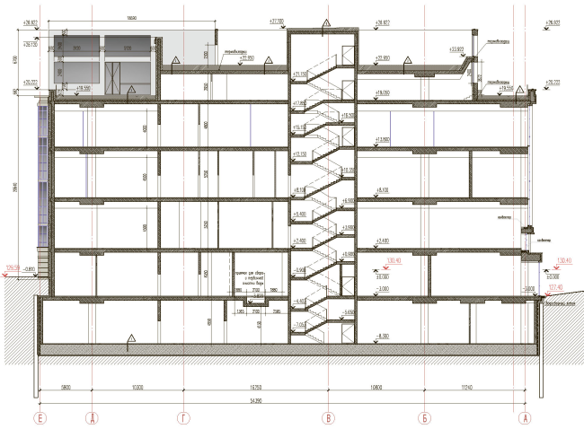
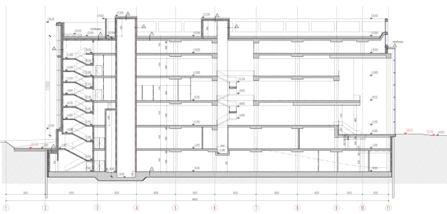
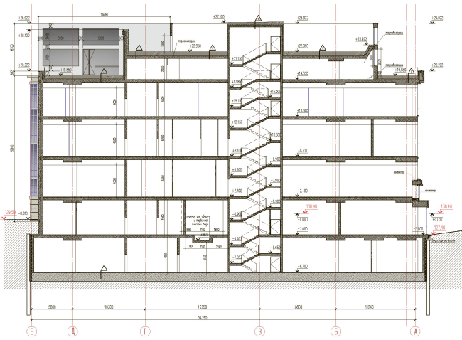
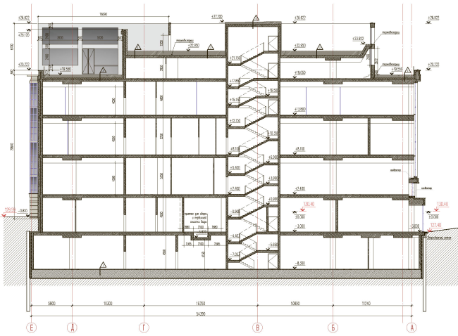
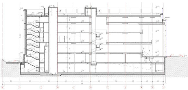
Dealership center of Mercedes-Benz and Audi on the territory of ZIL Plant. Section view. Project, 2016 © Kleinewelt Architekten
Dealership center of Mercedes-Benz and Audi on the territory of ZIL Plant. Section view. Project, 2016 © Kleinewelt Architekten
Dealership center of Mercedes-Benz and Audi on the territory of ZIL Plant. Section view. Project, 2016 © Kleinewelt Architekten
Dealership center of Mercedes-Benz and Audi on the territory of ZIL Plant. Section view. Project, 2016 © Kleinewelt Architekten