Published on Archi.ru (https://archi.ru)

02.12.2016

A Big "×" for Chelyabinsk

Darya Gorelova
Studio:
GrandProektCity

The proposal by Karen Saprichyan for Archchel 2020

Hotel complex and media center in Chelyabinsk. Project, 2016 © GrandProjectCity
Hotel complex and media center in Chelyabinsk. Project, 2016 © GrandProjectCity


The project developed by the bureau GrandProjectCity headed by Karen Saprichyan took part in the open international competition Archchel 2020, the results of which were announced on the 30th of November this year. A total of 350 applications was submitted for the competition. Ultimately, the organizers shortlisted about 120 projects dealing with three tasks: reconstruction of the city airport, organization of the waterfront of the Miass River, and the project of building a convention center on its bank – in 2020 it will be hosting the summit meeting of the leaders of Shanghai Cooperation Organization that is already scheduled to take place in Chelyabinsk.

The bureau of Karen Saprichyan submitted a project of the convention center. The place where it is supposed to be built is a green spot between the circus building and a road junction bridge above the river, this bridge being a continuation of the Bratyev Kashirinykh Street. The historical center of Chelyabinsk is situated on the opposite side of the river, while this area is filled with shopping centers and post-soviet bulky housing projects.

Hotel complex and media center in Chelyabinsk. Location plan. Project, 2016 © GrandProjectCity
Hotel complex and media center in Chelyabinsk. Location plan. Project, 2016 © GrandProjectCity


Hotel complex and media center in Chelyabinsk. Master plan. Project, 2016 © GrandProjectCity
Hotel complex and media center in Chelyabinsk. Master plan. Project, 2016 © GrandProjectCity


According to the specifications, in addition to the 2500-seat conference hall, the convention center was to include a large hotel, offices, and a media center – as for the latter, the architects proposed to build it literally above the water, following the bend of the neighboring automobile bridge with a broad crescent of a roofed public territory which would in fact become a pedestrian bridge thrown over to the "Garden Island" with a hybrid library and a double-height exhibition space inside. It is encircled by a metallic bearing beam, while its curvilinear façade (that is turned southwest and overlooks the river and the city's park center) will be designed as having an open-air gallery. On the island, starting from the hybrid library, begins the pedestrian route proposed by the architects: the slender bridge first runs above the water, then above the opposite bank – about half a kilometer before it meets the Kirovsky Bridge - and then the walking person gets back to the square of the convention center, passing underneath the glass galleries of the elongated two-story buildings that skirt the gallery along its perimeter.

Hotel complex and media center in Chelyabinsk. Functional diagram. Project, 2016 © GrandProjectCity
Hotel complex and media center in Chelyabinsk. Functional diagram. Project, 2016 © GrandProjectCity


"Media bridge". Hotel complex and media center in Chelyabinsk. Project, 2016 © GrandProjectCity
"Media bridge". Hotel complex and media center in Chelyabinsk. Project, 2016 © GrandProjectCity


Pedestrian bridge starting from the media center. Hotel complex and media center in Chelyabinsk. Project, 2016 © GrandProjectCity
Pedestrian bridge starting from the media center. Hotel complex and media center in Chelyabinsk. Project, 2016 © GrandProjectCity


None
None


The southwest part of the gallery buildings is occupied by offices, the eastern one – by a parking lot, and, closer to the "media bridge", the contour is closed by the volume of a winter garden that also serves as a roofed public square that adds another third to the open square itself. Together with the bridge, the gallery buildings form a "×"-shaped plan – a symbolic echo of the city's name – while the "beam" façades, according to the architects, are in fact a tribute to the industrial park surroundings. 

Hotel complex and media center in Chelyabinsk. Birds-eye view. Project, 2016 © GrandProjectCity
Hotel complex and media center in Chelyabinsk. Birds-eye view. Project, 2016 © GrandProjectCity


Hotel complex and media center in Chelyabinsk. View from the Bratye Kashirinykh Street. Project, 2016 © GrandProjectCity
Hotel complex and media center in Chelyabinsk. View from the Bratye Kashirinykh Street. Project, 2016 © GrandProjectCity


As for the convention hall itself, in the project it occupied the north corner of the territory: decorated by a large pale of white slabs, its curves of different levels are the main design accent of those elements that organize the inner square.

Hotel complex and media center in Chelyabinsk. Project, 2016 © GrandProjectCity
Hotel complex and media center in Chelyabinsk. Project, 2016 © GrandProjectCity


Hotel complex and media center in Chelyabinsk. Project, 2016 © GrandProjectCity
Hotel complex and media center in Chelyabinsk. Project, 2016 © GrandProjectCity


The façades of the 35-story tower of the hotel are also predominantly white – they consist of large-cell white grid with wide chamfers of vertical proportions grouping the floors in pairs. What is peculiar, the tower is not just a prism – it consists of two tall and slender slabs, clearly referring to early avant-garde fantasies, turned at 180º in respect to one another, one of the sides circularly rounded, the other square. The towers are connected by a wide glass overpass; below at the corners there are circular glass "cutaways" – all this makes the slender tower look very much like a lighthouse, and also like the "×" letter.

Hotel complex and media center in Chelyabinsk. Project, 2016 © GrandProjectCity
Hotel complex and media center in Chelyabinsk. Project, 2016 © GrandProjectCity


Hotel complex and media center in Chelyabinsk. Yard. Project, 2016 © GrandProjectCity
Hotel complex and media center in Chelyabinsk. Yard. Project, 2016 © GrandProjectCity


Hotel complex and media center in Chelyabinsk. Project, 2016 © GrandProjectCity
Hotel complex and media center in Chelyabinsk. Project, 2016 © GrandProjectCity


The project did not make it to the prize list. "The way I see it, this competition leaves a lot of questions unanswered – says Karen Saprichyan – my main question being how the judging panel was able to consider, within a span of a few days, 350 projects, and, furthermore, arrive at a collective decision?"

Video of the project: 

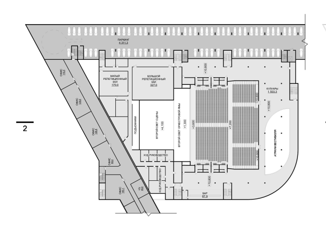
Hotel complex and media center in Chelyabinsk. Section view and plan of the 1st floor of the hotel. Project, 2016 © GrandProjectCity
Hotel complex and media center in Chelyabinsk. Section view and plan of the 1st floor of the hotel. Project, 2016 © GrandProjectCity
Hotel complex and media center in Chelyabinsk. Plan of the 2nd floor of the hotel. Project, 2016 © GrandProjectCity
Hotel complex and media center in Chelyabinsk. Plan of the 2nd floor of the hotel. Project, 2016 © GrandProjectCity
Hotel complex and media center in Chelyabinsk. Plan of the typical floor of the hotel. Project, 2016 © GrandProjectCity
Hotel complex and media center in Chelyabinsk. Plan of the typical floor of the hotel. Project, 2016 © GrandProjectCity
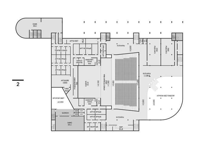
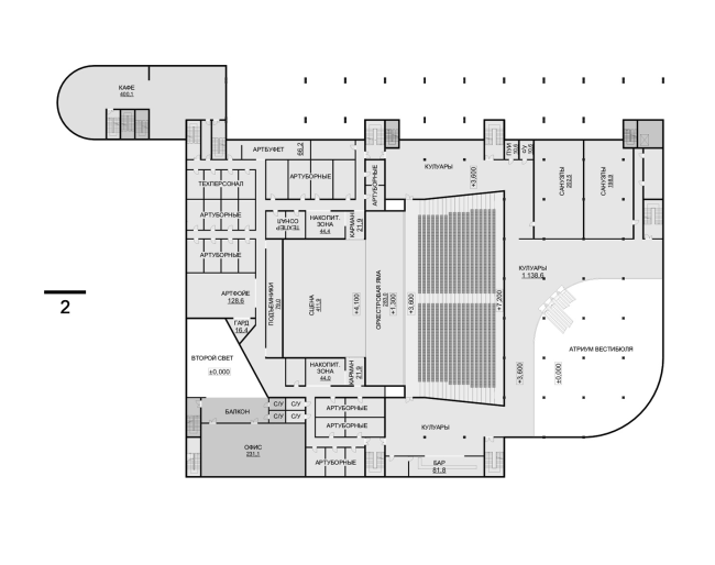
Hotel complex and media center in Chelyabinsk. Plan of the 2nd floor of the media center. Project, 2016 © GrandProjectCity
Hotel complex and media center in Chelyabinsk. Plan of the 2nd floor of the media center. Project, 2016 © GrandProjectCity
Hotel complex and media center in Chelyabinsk. Plan of the 3rd floor of the media center. Project, 2016 © GrandProjectCity
Hotel complex and media center in Chelyabinsk. Plan of the 3rd floor of the media center. Project, 2016 © GrandProjectCity
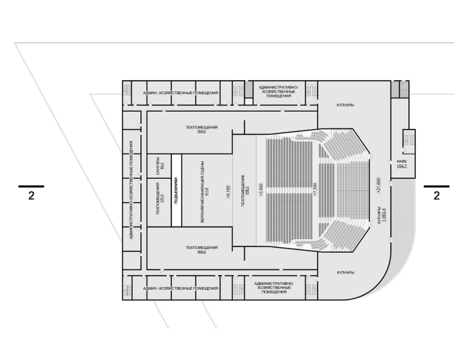
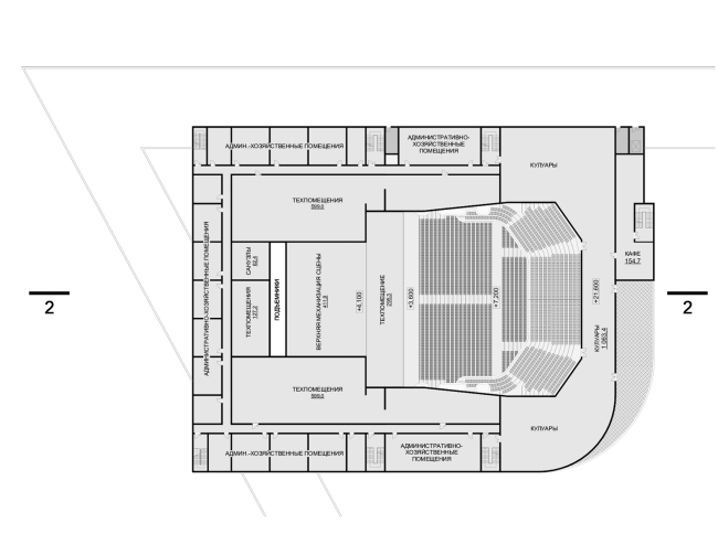
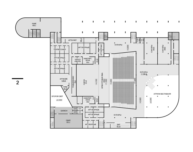
Hotel complex and media center in Chelyabinsk. Section view and plan of the 1st floor of the convention hall. Project, 2016 © GrandProjectCity
Hotel complex and media center in Chelyabinsk. Section view and plan of the 1st floor of the convention hall. Project, 2016 © GrandProjectCity
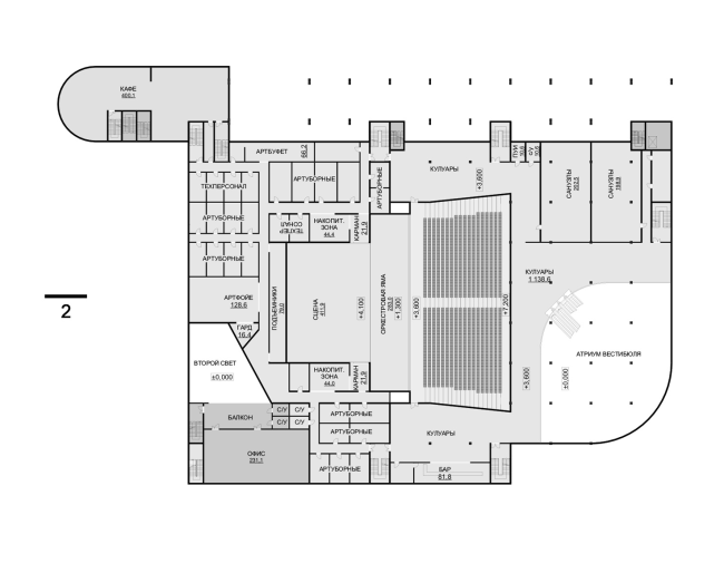
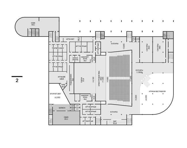
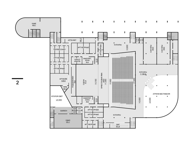
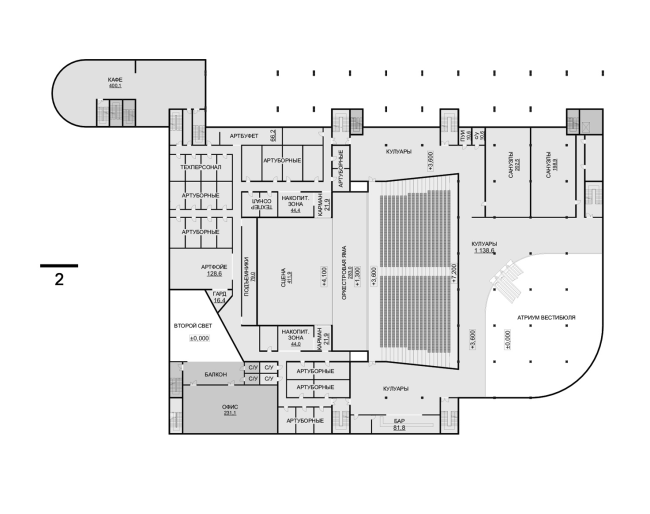
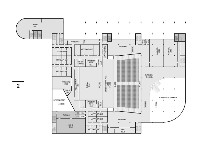
Hotel complex and media center in Chelyabinsk. Plan of the 2nd floor of the convention hall. Project, 2016 © GrandProjectCity
Hotel complex and media center in Chelyabinsk. Plan of the 2nd floor of the convention hall. Project, 2016 © GrandProjectCity
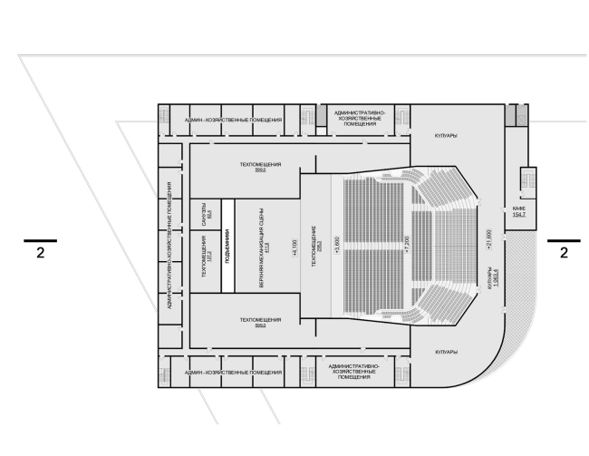
Hotel complex and media center in Chelyabinsk. Plan of the 3rd floor of the convention hall. Project, 2016 © GrandProjectCity
Hotel complex and media center in Chelyabinsk. Plan of the 3rd floor of the convention hall. Project, 2016 © GrandProjectCity
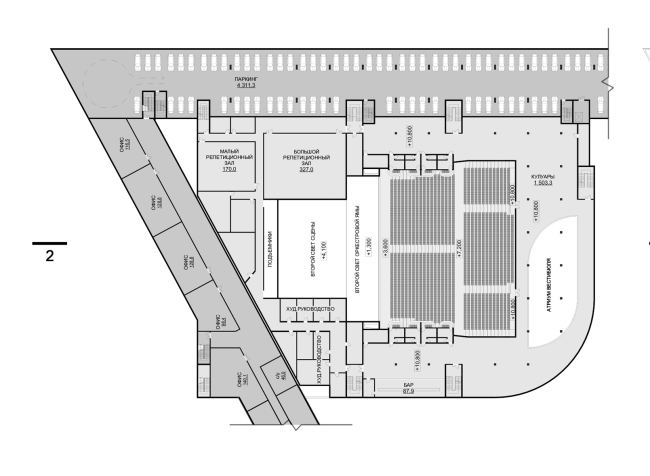
Hotel complex and media center in Chelyabinsk. Plan of the 4th floor of the convention hall. Project, 2016 © GrandProjectCity
Hotel complex and media center in Chelyabinsk. Plan of the 4th floor of the convention hall. Project, 2016 © GrandProjectCity