Published on Archi.ru (https://archi.ru)

17.11.2016

Next to Foster

Irina Bembel
Studio:
Sergey Tsytsin’s studio

About the project of a villa community and a winery in the city of Yalta – built by Sergey Tsytsin architects.

The villa complex and a winemaking center in Yalta. The villas. Project, 2016 © Sergey Tsytsin architects
The villa complex and a winemaking center in Yalta. The villas. Project, 2016 © Sergey Tsytsin architects


Two years ago on the Yalta shore in the vicinity of Foros opened a new world-class seaside resort called "Mria", designed by Norman Foster. Looking like a giant exotic flower, it became the new centerpiece for this picturesque landscape and the catalyst for its further development.

According to the client's plan, west of the Sports and Concert Complex, the 8.5-hectare adjacent territory was to get a VIP-class villa community with a restaurant, a cosmetology center, a children educational center, and a spa center, while east of the complex the 14-hectare territory was to be occupied by vineyards and a winemaking complex. Raising the bar even higher, the client announced an international competition for both concepts. One of the shortlisted projects was the one by Sergey Tsytsin that we are now bringing to your attention.

The villa complex and a winemaking center in Yalta. The villas. Project, 2016 © Sergey Tsytsin architects
The villa complex and a winemaking center in Yalta. The villas. Project, 2016 © Sergey Tsytsin architects


The villa complex and a winemaking center in Yalta. The master plan and the location of the winery. Project, 2016 © Sergey Tsytsin architects
The villa complex and a winemaking center in Yalta. The master plan and the location of the winery. Project, 2016 © Sergey Tsytsin architects


The author's attention was concentrated on two major tasks: on the one hand, opening up the greatest possible views to the future residents, on the other – to provide them with maximum privacy and visual independence. It was these two factors that first of all defined the inside layouts of the villas and their positions in the outside space. There were a few other important factors that influenced the design solution: a rather significant relief drop, the already-formed system of access driveways, and the task of preserving the unique local flora. But also just as important was the question of style of the future buildings.

By the moment the competition was announced, next to the Sports and Concert Complex "Mria" there were already two government villas and one "family village", both setting quite specific imagery confined to the designers. These two were based on a repeating module in the shape of an elongated two-story parallelepiped, and the planning technique based on the contrast between the smooth outlines of the landscape and the square-corner volumes of the buildings. Sergey Tsytsin took the existing module and created on its basis several new projects: three "doubled" villas with their main volumes shifted in respect to each other, and a children education center where the four modules are "strung" upon a hoof-shaped master plan.

The villa complex and a winemaking center in Yalta. The villas. Project, 2016 © Sergey Tsytsin architects
The villa complex and a winemaking center in Yalta. The villas. Project, 2016 © Sergey Tsytsin architects


The villa complex and a winemaking center in Yalta. The villas. Project, 2016 © Sergey Tsytsin architects
The villa complex and a winemaking center in Yalta. The villas. Project, 2016 © Sergey Tsytsin architects


The villa complex and a winemaking center in Yalta. The villas. Project, 2016 © Sergey Tsytsin architects
The villa complex and a winemaking center in Yalta. The villas. Project, 2016 © Sergey Tsytsin architects


The villa complex and a winemaking center in Yalta. Plans of the villas. Project, 2016 © Sergey Tsytsin architects
The villa complex and a winemaking center in Yalta. Plans of the villas. Project, 2016 © Sergey Tsytsin architects


In my view, the authors were able to soften somewhat the obtrusively utilitarian character of the original module. Their refraining from using the flat blind walls, the variety of the wall finishes with the use of light-colored stones, and the protruding marquees – all this gave the new villas a more lively and welcoming look, while the fan-shaped twist of the children center, repeating the common technique of the "family village", takes away the slight "barracks" aftertaste that it leaves.

All the three villas are situated at different levels, with driveways leading up to private terraces. Part them runs a serpentine trail that leads down to the beach; in addition, the slope is equipped with an amazing underground elevator that has an exit at a 23-meter height above the sea level.

The villa complex and a winemaking center in Yalta. The villas. Project, 2016 © Sergey Tsytsin architects
The villa complex and a winemaking center in Yalta. The villas. Project, 2016 © Sergey Tsytsin architects


The villa complex and a winemaking center in Yalta. The villas. Project, 2016 © Sergey Tsytsin architects
The villa complex and a winemaking center in Yalta. The villas. Project, 2016 © Sergey Tsytsin architects


The project provides for creating a public territory for the residents of the new and already-built villas. The mentioned children educational center logically stands next to the already-existing playgrounds. The empty building on the north of the land site is remodeled into a cosmetological center. And finally, in the extreme south part, the authors positioned a spa center. Situated at the foot of the slope and opened to the beach, it is separated from the private cluster, rather belonging, both from the design and architecture standpoint, to the waterfront area. The authors opted out of applying here the common single style, and created quite an independent one-story building with a semicircular veranda standing out.

The villa complex and a winemaking center in Yalta. The villas. Project, 2016 © Sergey Tsytsin architects
The villa complex and a winemaking center in Yalta. The villas. Project, 2016 © Sergey Tsytsin architects


The villa complex and a winemaking center in Yalta. The master plan and the location of the winery. Project, 2016 © Sergey Tsytsin architects
The villa complex and a winemaking center in Yalta. The master plan and the location of the winery. Project, 2016 © Sergey Tsytsin architects


On the neighboring hill, surrounded by vineyards, there will be a winemaking complex consisting of a production facility, a wine cellar, a factory store, and a restaurant with a tasting hall. Unlike the villa area, the form of the winemaking complex is all about the dialogue with the surrounding landscape.

The building is situated on a land plot with almost a 10-meter height difference, and is in fact a multilevel volume of a sophisticated faceted shape, with a clear reference to the images of the surrounding landscape. But then again, its architecture is not devoid of some dramatist of its own, different from the idyl of the gently sloping Crimean Mountains.

The villa complex and a winemaking center in Yalta. The winery. Project, 2016 © Sergey Tsytsin architects
The villa complex and a winemaking center in Yalta. The winery. Project, 2016 © Sergey Tsytsin architects


The villa complex and a winemaking center in Yalta. The winery. Project, 2016 © Sergey Tsytsin architects
The villa complex and a winemaking center in Yalta. The winery. Project, 2016 © Sergey Tsytsin architects


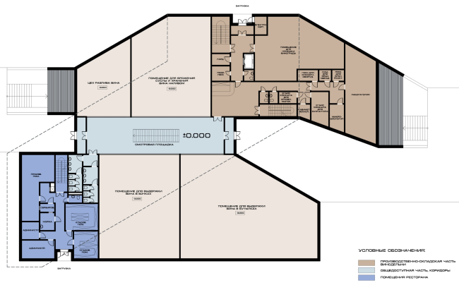
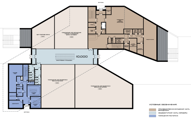
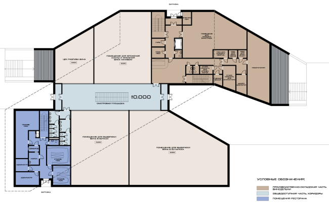
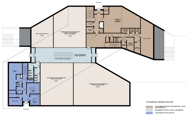
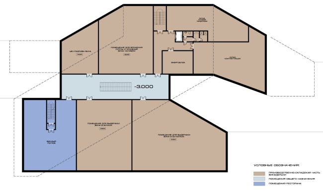
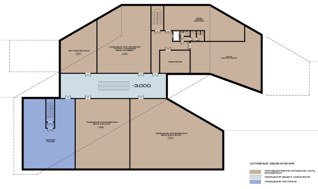
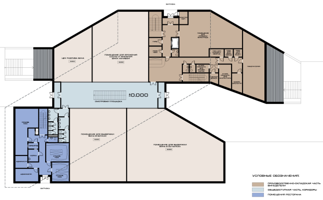
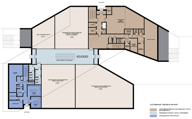
The villa complex and a winemaking center in Yalta. Plan of the first floor of the winery. Project, 2016 © Sergey Tsytsin architects
The villa complex and a winemaking center in Yalta. Plan of the first floor of the winery. Project, 2016 © Sergey Tsytsin architects


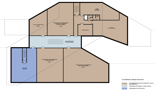
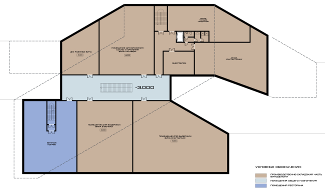
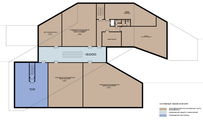
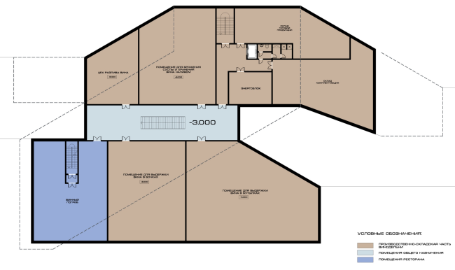
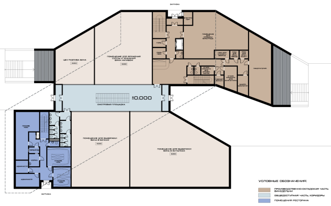
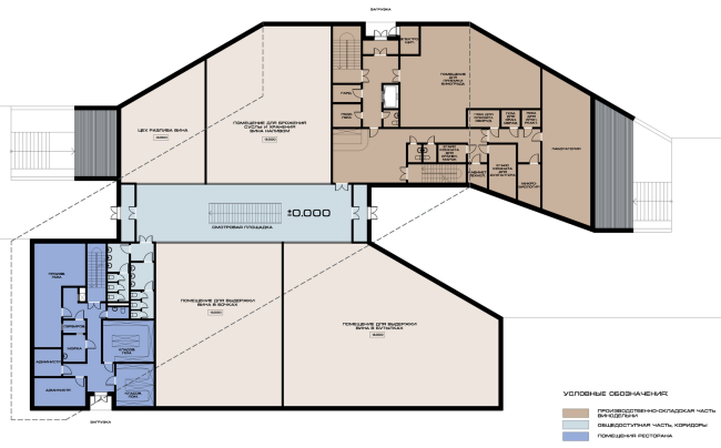
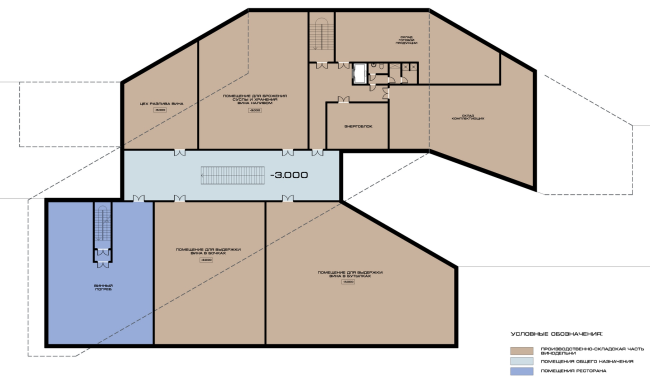
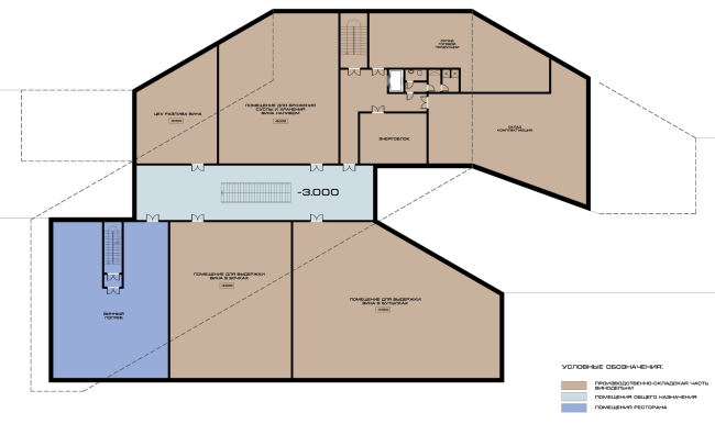
The villa complex and a winemaking center in Yalta. Plan of the second floor of the winery. Project, 2016 © Sergey Tsytsin architects
The villa complex and a winemaking center in Yalta. Plan of the second floor of the winery. Project, 2016 © Sergey Tsytsin architects


The authors made as much as possible out of the area of the usable roof, placing here the tasting hall and sightseeing platforms. Thanks to the end-to-end gallery of a lobby, one can get inside the building from any side and virtually from any level. The gallery also served as the viewing platform for organizing guided tours with a possible to observe all the key stages of the wine production process. 

The villa complex and a winemaking center in Yalta. The winery. Project, 2016 © Sergey Tsytsin architects
The villa complex and a winemaking center in Yalta. The winery. Project, 2016 © Sergey Tsytsin architects


The project also provides for a smooth walking ascent to the winery over the slopes of the hill, from where amazing panoramas open up, with a gradual development of the architectural narrative. "What we were looking to do was use as much of the "architecture of the landscape" as possible, with its mountain ledges, panorama views, and the decorative comb of the vineyards – says Sergey Tsytsin – this is why the tourist bus stop is situated a slight distance away from the facility. Here the visitors find themselves in a small garden surrounding the winemaking center. From here, they will need to walk around a hundred and fifty meters up the trail enjoying the great views and the architecture in motion".  

The villa complex and a winemaking center in Yalta. The winery. Project, 2016 © Sergey Tsytsin architects
The villa complex and a winemaking center in Yalta. The winery. Project, 2016 © Sergey Tsytsin architects


Between the two hills and above the motor road running between them, the architects throw a sixty-meter pedestrian bridge. Connecting the two complexes, it harmoniously entwined in the overall exotic picture becoming an interest part of the winemaking center.