Published on Archi.ru (https://archi.ru)

20.10.2016

Moscow-Berlin

Julia Tarabarina
Architect:
Andrey Romanov
Ekaterina Kuznetsova
Studio:
ADM

The club house Gorokhovsky’12 is a vivid example of a laconic and integral, although by no means minimalist or scarce, architectural solution that its author considers to be slightly Berlin-ish. The injection was a success because there is a fair share of Moscow in this house as well.

The club house in the Gorokhovsky Lane. Construction, 2016 © ADM architects
The club house in the Gorokhovsky Lane. Construction, 2016 © ADM architects


The land site at the Gorokhovsky Lane, 12 has been explored by ADM architects for over ten years: it was one of their first contracts that they landed immediately after they founded their company back in 2006. Originally it was planned that this would be an office building with its façades stuccoed at the customer’s request. After 2008, it was turned into a club house consisting of apartments. The building changed everything: its function, its plan, its volume, and the look of its façades. The only thing that must have remained the same was its location.

The house, whose construction began in 2014 and was completed in the spring of 2016, is situated deep inside of the block behind the embassy of Ecuador, on the spot where until the early 2000’s there was a derelict orphanage building. Still earlier, in the beginning of the XX century, when the Von Derviz Gymnasium, located a bit further to the west, was attended by the little Marina Tsvetaeva who was later to become a famous Russian poetess, half of the site belonged to the gymnasium’s garden, where beautiful roses were grown. And in the 1980’s, passing through the block in the direction of the Kazakova Street, one could now and then accidentally notice batches of oversized bricks bearing the seal of a two-headed eagle – somebody was obviously collecting what was left of the demolished houses to use it as building materials for his dacha later on. This area is as ancient as it is unique – located on the borderline between the Basmannaya and the German quarters, it is but a fifteen minutes’ walk away from the palaces of the Supporters of Peter the Great standing on the Yauza River, while Ivan Demidov’s “Golden House”, the masterpiece of Moscow classism, or, for example, the en route imperial palace of the King Ivan III are but a five minutes’ stroll away. This area is quite historical, although a bit tainted by fractions of the soviet-era “slabs” and towers. Its historical environment is fragmentary and intermittent, so the new club house that offers to its new inhabitants the peace and quietness of the Moscow “almost-downtown-immediately-behind-the-garden-ring”, did not violate the integrity of the environment at all: it is but seven floors high. Quite the contrary: glittering beautifully from behind the two-story mansions, it tactfully fills in the void that otherwise would have been quite inappropriate here.

The Gorokhovsky Lane, view from the east. On the left: mansion of the peasant Morozov. On the right: Ecuador embassy. In the center: club house "Gorokhovsky, 12" Photograph © Julia Tarabarina, Archi.ru
The Gorokhovsky Lane, view from the east. On the left: mansion of the peasant Morozov. On the right: Ecuador embassy. In the center: club house "Gorokhovsky, 12" Photograph © Julia Tarabarina, Archi.ru


The Gorokhovsky Lane, view from the west. On the left: Ecuador embassy. On the right: the former Von Derviz Gimnasium, later the Karbyshev School. In the center: club house "Gorokhovsky, 12" Photograph © Julia Tarabarina, Archi.ru
The Gorokhovsky Lane, view from the west. On the left: Ecuador embassy. On the right: the former Von Derviz Gimnasium, later the Karbyshev School. In the center: club house "Gorokhovsky, 12" Photograph © Julia Tarabarina, Archi.ru


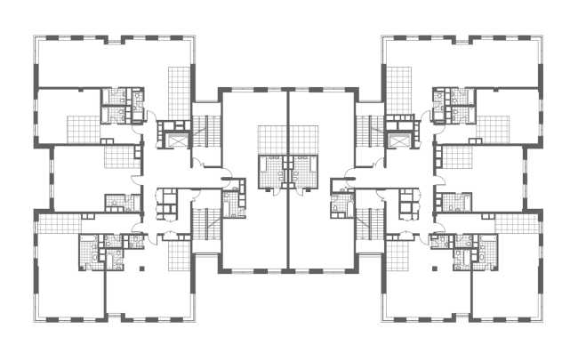
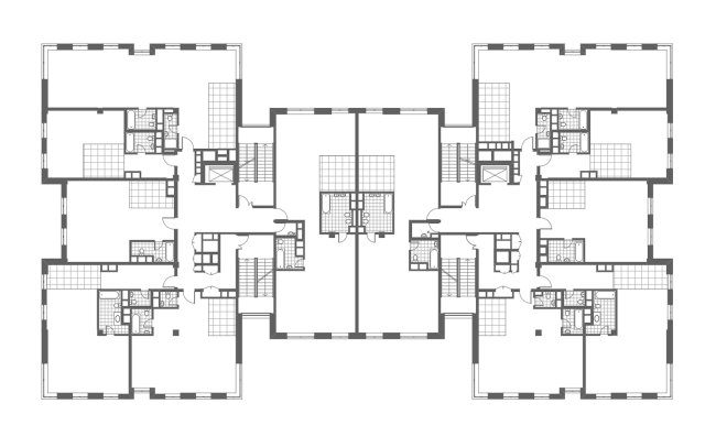
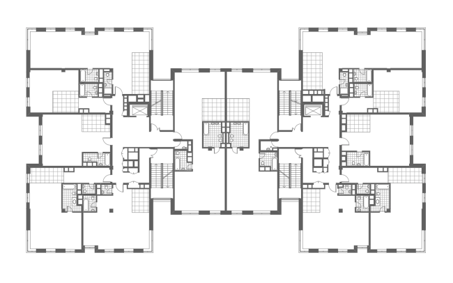
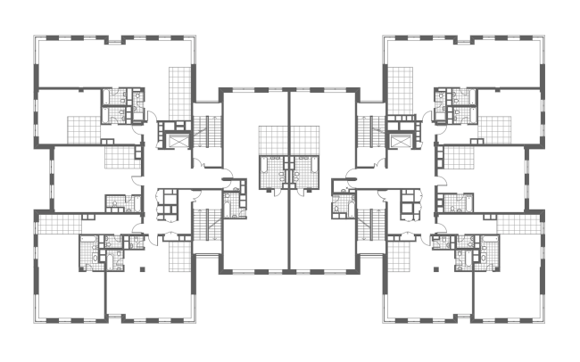
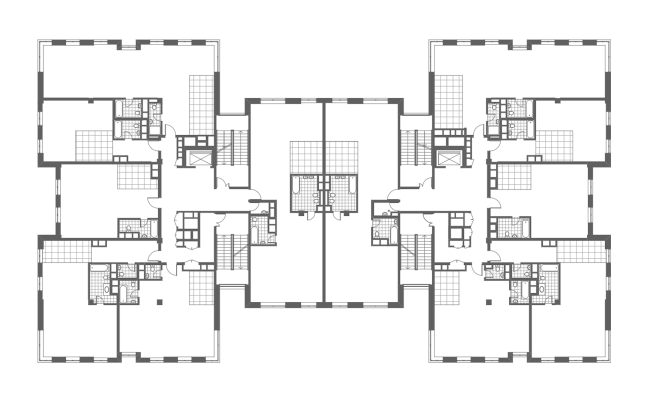
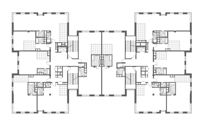
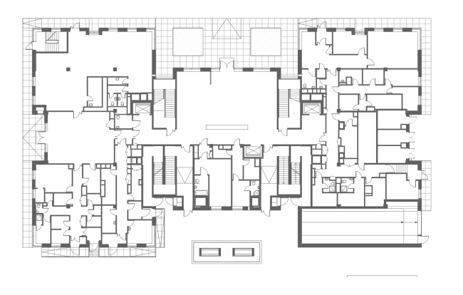
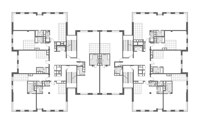
The plan of the house looks like the letter H with symmetric volumes of projections that stand out at the ends of two longitudinal façades. Compact and rational to the point of being exquisite in its efficiency, this plan is almost the quintessence of the axial symmetry. The entrance is sunken in a bit; there is a small green square in front of it with a couple of benches. Inside, in the middle of the house, there is a reception desk flanked by four symmetrical glass verticals of the staircases that are sunk into the volume and at the same time well-lit, and thus are quite easy to find. From the outside, the staircases look like lintel blocks between the projections and the core part of the building. Such vertical “ledge” lintels – and this is plainly seen on the model – visually fracture the volume in numerous places: the "letter H" is slit at its side ends – the cutaways conceal the smallest apartments. The elongated façades of the projections also sport slim sunken-in verticals. This way, the plan starts to look like a very much stylized quadrifoil, four sections adjoining one common core. Everything that is on the outside perfectly matches the layouts of the apartments. Underneath, there is a parking garage.

The club house in the Gorokhovsky Lane. Model © ADM architects
The club house in the Gorokhovsky Lane. Model © ADM architects


The club house in the Gorokhovsky Lane. Mini-square in front of the entrance. Construction, 2016 © ADM architects
The club house in the Gorokhovsky Lane. Mini-square in front of the entrance. Construction, 2016 © ADM architects


The club house in the Gorokhovsky Lane. Plan of the 3rd floor, 2016 © ADM architects
The club house in the Gorokhovsky Lane. Plan of the 3rd floor, 2016 © ADM architects


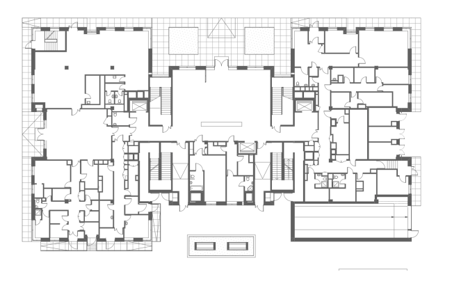
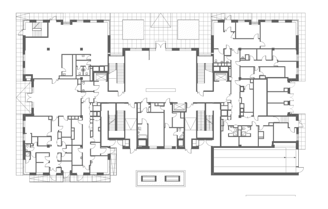
The club house in the Gorokhovsky Lane. Plan of the 1st floor, 2016 © ADM architects
The club house in the Gorokhovsky Lane. Plan of the 1st floor, 2016 © ADM architects


On the outside, the building is just as rational. The façades consist of evenly spaced verticals that are crossed just as neatly by broad horizontals of the ceramic bands running between the floors and imitating plaster in the bindings of the metallic protrusions of the same color at the top and bottom. As for the verticals, they consist of alternating bands of the window panes and the terra-cotta partition walls glazed in a slightly darker tone. The glazing luster of two tones – a darker and a smaller one – forms a slightly mottled pattern.

The club house in the Gorokhovsky Lane. Construction, 2016 © ADM architects
The club house in the Gorokhovsky Lane. Construction, 2016 © ADM architects


The club house in the Gorokhovsky Lane. Construction, 2016 © ADM architects
The club house in the Gorokhovsky Lane. Construction, 2016 © ADM architects


The club house in the Gorokhovsky Lane. Construction, 2016. The facade tiles. Photograph © Julia Tarabarina, Archi.ru
The club house in the Gorokhovsky Lane. Construction, 2016. The facade tiles. Photograph © Julia Tarabarina, Archi.ru


The club house in the Gorokhovsky Lane. Construction, 2016 © ADM architects
The club house in the Gorokhovsky Lane. Construction, 2016 © ADM architects


The club house in the Gorokhovsky Lane. Construction, 2016 © ADM architects
The club house in the Gorokhovsky Lane. Construction, 2016 © ADM architects


The verticals of the window panes on the elongated façades are about the same width as the partition walls, and this is why they look not so much like windows as an element of the general rhythm. On the corners, the glass verticals come together and they become more numerous which gives the apartments more light and visually takes a considerable weight off the volume because, instead of stone, the corners are marked by windows that are either transparent or, depending on the angle of view, dark, and slightly sunken in, giving way to the ribs of the friezes that shoot out at the corners, revealing the building's framework.

The club house in the Gorokhovsky Lane. Construction, 2016 © ADM architects
The club house in the Gorokhovsky Lane. Construction, 2016 © ADM architects


The club house in the Gorokhovsky Lane. Construction, 2016 © ADM architects
The club house in the Gorokhovsky Lane. Construction, 2016 © ADM architects


The club house in the Gorokhovsky Lane. Construction, 2016 © ADM architects
The club house in the Gorokhovsky Lane. Construction, 2016 © ADM architects


The club house in the Gorokhovsky Lane. Construction, 2016 © ADM architects
The club house in the Gorokhovsky Lane. Construction, 2016 © ADM architects


The club house in the Gorokhovsky Lane. Construction, 2016. The north facade, a fragment. Photograph © Julia Tarabarina, Archi.ru
The club house in the Gorokhovsky Lane. Construction, 2016. The north facade, a fragment. Photograph © Julia Tarabarina, Archi.ru


“I see a note of Berlin in this house – Andrew Romanov says – all these glass corners, efficient planning, terra-cotta tiles on the façades... On the whole, we are happy with the solution that we ultimately came to, working on this land site”.

The club house in the Gorokhovsky Lane. Construction, 2016 © ADM architects
The club house in the Gorokhovsky Lane. Construction, 2016 © ADM architects


The club house in the Gorokhovsky Lane. Construction, 2016 © ADM architects
The club house in the Gorokhovsky Lane. Construction, 2016 © ADM architects


The club house in the Gorokhovsky Lane. Construction, 2016 © ADM architects
The club house in the Gorokhovsky Lane. Construction, 2016 © ADM architects


The club house in the Gorokhovsky Lane. The master plan of the territory improvement © ADM architects
The club house in the Gorokhovsky Lane. The master plan of the territory improvement © ADM architects


The club house in the Gorokhovsky Lane. Construction, 2016 © ADM architects
The club house in the Gorokhovsky Lane. Construction, 2016 © ADM architects


As is the custom with ADM, the area around the building is thoroughly organized. The architects carefully preserved the old lime trees that meet the incomers and even form a pedestrian boulevard with a few benches and street lights leading directly to the entrance. Lots of different pavement patters are used; there are backlighting bands running along the line of the basement floor, and figured metallic stripes on the slopes before the pedestrian overpasses. The grass around the house is green; the numerous bushes are trimmed to fit the height of the low-rise street lights – they are about a third of their height. In a word, under your feet the texture is even more diverse than on the façades.

The club house in the Gorokhovsky Lane. Construction, 2016 © ADM architects
The club house in the Gorokhovsky Lane. Construction, 2016 © ADM architects


The club house in the Gorokhovsky Lane. Construction, 2016 © ADM architects
The club house in the Gorokhovsky Lane. Construction, 2016 © ADM architects


The club house in the Gorokhovsky Lane. Construction, 2016. Fragment of the pavement pattern and the window frame of the 1st floor. Photograph © Julia Tarabarina, Archi.ru
The club house in the Gorokhovsky Lane. Construction, 2016. Fragment of the pavement pattern and the window frame of the 1st floor. Photograph © Julia Tarabarina, Archi.ru


The club house in the Gorokhovsky Lane. Construction, 2016. Fragment of the pavement pattern with the backlighting. Photograph © Julia Tarabarina, Archi.ru
The club house in the Gorokhovsky Lane. Construction, 2016. Fragment of the pavement pattern with the backlighting. Photograph © Julia Tarabarina, Archi.ru


The club house in the Gorokhovsky Lane. Construction, 2016 © ADM architects
The club house in the Gorokhovsky Lane. Construction, 2016 © ADM architects


The club house in the Gorokhovsky Lane. Construction, 2016 © ADM architects
The club house in the Gorokhovsky Lane. Construction, 2016 © ADM architects


As for the façades, they win you over with the simplicity of their design solution, balancing on the verge of traditional material and deliberately exposed technology. Meanwhile, just as the Moscow tradition prescribes, the house stands in the depth of the site, surrounded by the garden and the lime tree promenade. However “Berlin” it is, the house took root in this place – in the Gorokhovsky Lane where Rokotov lived and where little Marina Tsvetaeva went to school.