Published on Archi.ru (https://archi.ru)

13.10.2016

House Turned Inside Out

Alla Pavlikova
Architect:
Roman Leonidov
Studio:
Studio of Roman Leonidov

In Moscow Area, Roman Leonidov designed a private residence called Hampton House, the insides of which echo its outer shell and continue it, thus making the architecture of the house not only laconic but also integral - in full accordance with the principles set by the gurus of modernism.

Hampton House. Country residence. Construction, 2016 © Roman Leonidov architectural bureau
Hampton House. Country residence. Construction, 2016 © Roman Leonidov architectural bureau


The house in which one can easily discern the signature techniques of Roman Leonidov Architectural Studio is built on an open and well-lit land site in one of Moscow-area villa communities. The considerable size of the site and the beautiful surroundings allowed the architects to create a horizontal composition placing the volume across the yard, opening the windows to the green lawns and the forest situated a bit off to the side. The clients that ordered the house are a young family couple with kids, they value minimalism, cleanness, and breathing space. These three qualities were embodied almost par excellence in its outward appearance, as well as in its interiors. 

Hampton House. Country residence. Construction, 2016 © Roman Leonidov architectural bureau
Hampton House. Country residence. Construction, 2016 © Roman Leonidov architectural bureau


Hampton House. Country residence. Construction, 2016 © Roman Leonidov architectural bureau
Hampton House. Country residence. Construction, 2016 © Roman Leonidov architectural bureau


Hampton House. Country residence. Construction, 2016 © Roman Leonidov architectural bureau
Hampton House. Country residence. Construction, 2016 © Roman Leonidov architectural bureau


The architects strictly followed the logic of building a house "from inside out", each projection or recession corresponding to an independent room. Just by looking at the outer shell of the building one can tell what's inside: the robust central block has in it a double-height living room; on the left, there is a large dining room; the right single-story elongated wing contains a swimming pool and a spa, on the roof of which there is an open-air terrace, while the left-side blind wing contains a garage and personnel's rooms. This way, form grows from content, not a single detail being accidental here. In their project, the authors see both constructivist and hi-tech traits. What first meets the eye, however, is the inherently modernist laconism and functionality.

Hampton House. Country residence. Construction, 2016 © Roman Leonidov architectural bureau
Hampton House. Country residence. Construction, 2016 © Roman Leonidov architectural bureau


Hampton House. Country residence. Construction, 2016 © Roman Leonidov architectural bureau
Hampton House. Country residence. Construction, 2016 © Roman Leonidov architectural bureau


The main entrance is not readable at once. It is shifted to the left, into the recession between the glass cube of the living room and the blind wing. The transparent doors merge with the glass wall surface. The entrance is not marked by an expectable marquee either, the protection from the rain provided by a small balcony on the second floor. At the same time, above the open-air terrace in front of the living room, there are even two marquees - pointed in different directions, growing one from beneath the other. The upper one correlates with the scale of the flat roof that covers the whole building; the lower one is visually lighter, made of glass and supported by wooden ribs. It is obvious that by designing in such a way the architects try to pull all of the observer's attention to the cube of the living room situated at the central axis of the land site. This technique helps them to achieve compositional balance of an asymmetric volume.

Hampton House. Country residence. Construction, 2016 © Roman Leonidov architectural bureau
Hampton House. Country residence. Construction, 2016 © Roman Leonidov architectural bureau


Hampton House. Country residence. Construction, 2016 © Roman Leonidov architectural bureau
Hampton House. Country residence. Construction, 2016 © Roman Leonidov architectural bureau


Hampton House. Country residence. Construction, 2016 © Roman Leonidov architectural bureau
Hampton House. Country residence. Construction, 2016 © Roman Leonidov architectural bureau


Hampton House. Country residence. Construction, 2016 © Roman Leonidov architectural bureau
Hampton House. Country residence. Construction, 2016 © Roman Leonidov architectural bureau


Hampton House. Country residence. Construction, 2016 © Roman Leonidov architectural bureau
Hampton House. Country residence. Construction, 2016 © Roman Leonidov architectural bureau


On entering the building, we realize that the design of its inner space is still a little bit more complex than it might seem from the outside. Behind the spacious sunlit veranda, there is a long corridor or, should we say, a gallery with floor-to-ceiling stained glass windows. Through this gallery, one can walk the building from end to end, bypassing the staircase lobby, the cloakroom, and the dining room - to make it directly to the spa complex. In addition to the swimming pool, it also has a sauna and a massage room. From the side of the yard, the wing of the spa complex is completely made of glass, thanks to which a visual connection to the living room is established. The excess of light is cut off by the Venetian blinds.

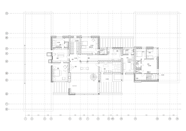
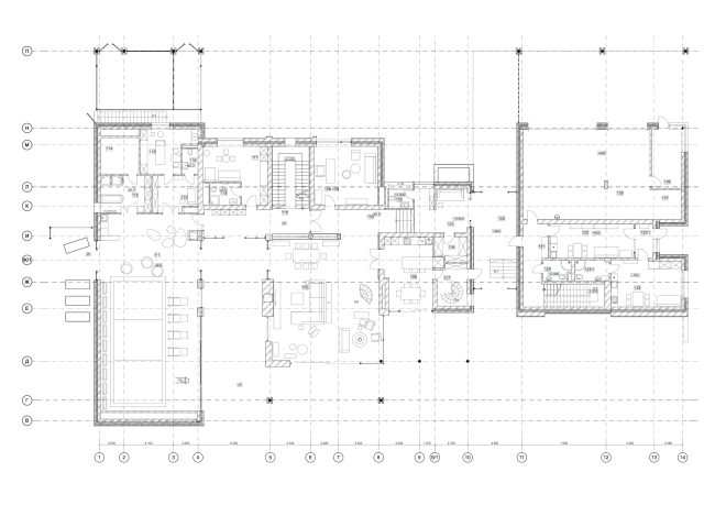
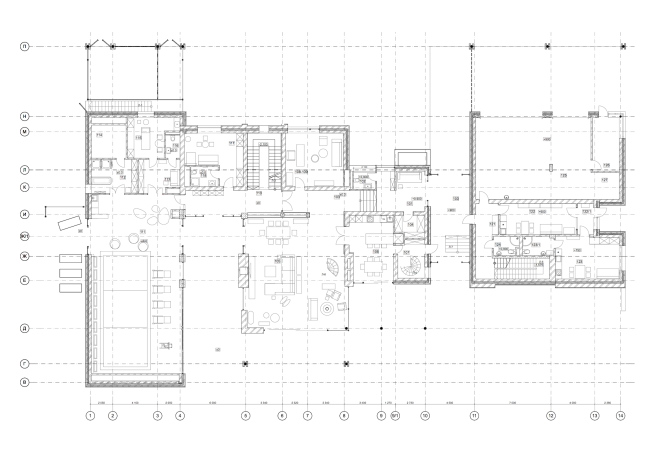
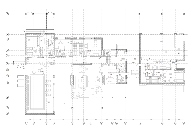
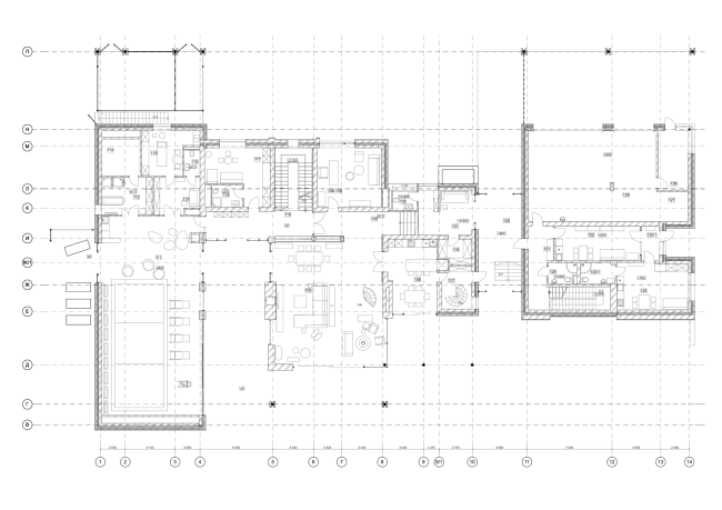
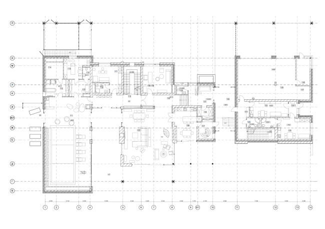
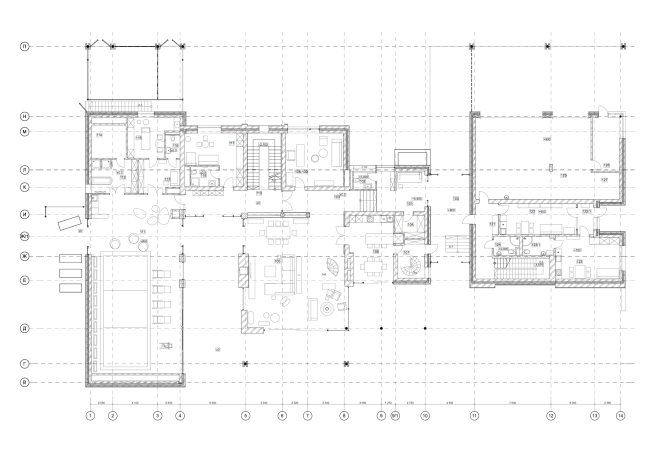
Hampton House. Country residence. Plan of the 1st floor © Roman Leonidov architectural bureau
Hampton House. Country residence. Plan of the 1st floor © Roman Leonidov architectural bureau


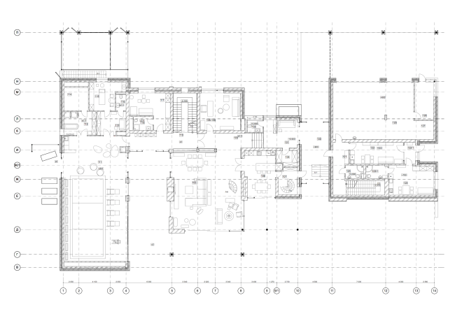
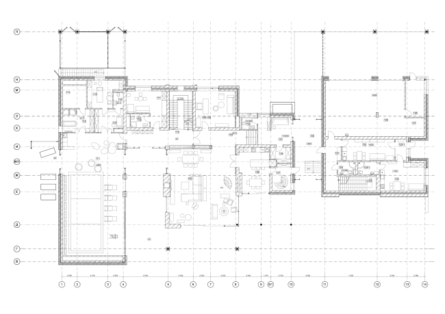
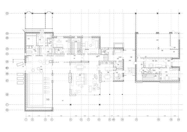
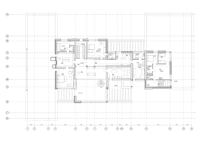
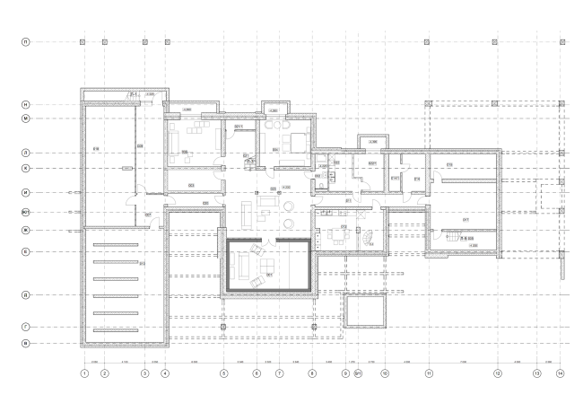
Hampton House. Country residence. Plan of the 2nd floor © Roman Leonidov architectural bureau
Hampton House. Country residence. Plan of the 2nd floor © Roman Leonidov architectural bureau


Hampton House. Country residence. Plan of the basement © Roman Leonidov architectural bureau
Hampton House. Country residence. Plan of the basement © Roman Leonidov architectural bureau


Hampton House. Country residence. Swimming pool. Construction, 2016 © Roman Leonidov architectural bureau
Hampton House. Country residence. Swimming pool. Construction, 2016 © Roman Leonidov architectural bureau


While the first floor is occupied by the spaces meant predominantly for social interaction and visiting with the guests, the second floor is private. It includes the masters and their kids' bedrooms, a study, and a playroom. The loft that is in the double-height space is turned into a library. A basement floor that the building has is also actively used. In addition to the maintenance rooms, it includes a movie theater, a mini-golf course, guests' bedrooms, and yet another living room designed in a "loft" style with an extremely reserved color solution interspersed with colorful furniture accents. 

Hampton House. Country residence. The loft floor with a library. Construction, 2016 © Roman Leonidov architectural bureau
Hampton House. Country residence. The loft floor with a library. Construction, 2016 © Roman Leonidov architectural bureau


Hampton House. Country residence. Basement floor designed in a loft style. Construction, 2016 © Roman Leonidov architectural bureau
Hampton House. Country residence. Basement floor designed in a loft style. Construction, 2016 © Roman Leonidov architectural bureau


Hampton House. Country residence. Bright accents of the furniture in the living room designed in the loft style. Construction, 2016 © Roman Leonidov architectural bureau
Hampton House. Country residence. Bright accents of the furniture in the living room designed in the loft style. Construction, 2016 © Roman Leonidov architectural bureau


As was already said, the role of the nucleus of the building is played by the living room and the adjacent dining room. The zones of the first floor are separated from one another rather conditionally, by means of glass partitions that allow the sunlight to reach every nook and cranny virtually unhindered. The main centerpieces of the interior are the sculptural spiral staircase leading from the living room to the loft floor and a large fire place with a relax zone around it. The fireplace of a rich graphite color looks as if it doesn't touch the floor, gracefully hovering in the air. Just as striking looks the staircase - black, with exquisite metal railings. As the interior design artist, Elena Volgina, explains, most of the solutions were inspired by the 1950-1970's style - "the period when the furniture design and the search for new avant-garde forms was at their peak". Hence the intensive work with space - instead of decorating it and/or filling with various objects. 

Hampton House. Country residence. Living room with a spiral staircase. Construction, 2016 © Roman Leonidov architectural bureau
Hampton House. Country residence. Living room with a spiral staircase. Construction, 2016 © Roman Leonidov architectural bureau


Hampton House. Country residence. Spiral staircase and the fireplace in the living room. Construction, 2016 © Roman Leonidov architectural bureau
Hampton House. Country residence. Spiral staircase and the fireplace in the living room. Construction, 2016 © Roman Leonidov architectural bureau


Hampton House. Country residence. Main living room. Construction, 2016 © Roman Leonidov architectural bureau
Hampton House. Country residence. Main living room. Construction, 2016 © Roman Leonidov architectural bureau


Hampton House. Country residence. Dining room table. Construction, 2016 © Roman Leonidov architectural bureau
Hampton House. Country residence. Dining room table. Construction, 2016 © Roman Leonidov architectural bureau


On the outside, most of the walls of this residence are made of glass and natural slate stone. Some of the façade fragments are made of larch wood. The same materials are used in the interior decoration - and because of this it may look as if the building was turned inside out. This trademark technique is to be traced in many of Roman Leonidov's works, but in this case, considering the clients' inclination towards minimalism, this technique is used particularly extensively. For example, the inside walls are decorated with the same slate as the outside ones, whilst the pavement of the outdoor terrace continues in the dining and the living rooms. The barely noticeable borderline between the indoor and the outdoor world is only the thin stained-glass window. The ceiling is covered in larch sheets. The glass partition behind the dining room table that separates it from the straight staircase is decorated with horizontal wooden planks that echo the planks on the façade. The same decoration fragments are used in the bedrooms and bathrooms.

Hampton House. Country residence. Dining room. Construction, 2016 © Roman Leonidov architectural bureau
Hampton House. Country residence. Dining room. Construction, 2016 © Roman Leonidov architectural bureau


Hampton House. Country residence. Master's study. Construction, 2016 © Roman Leonidov architectural bureau
Hampton House. Country residence. Master's study. Construction, 2016 © Roman Leonidov architectural bureau


Hampton House. Country residence. Bedroom. Construction, 2016 © Roman Leonidov architectural bureau
Hampton House. Country residence. Bedroom. Construction, 2016 © Roman Leonidov architectural bureau


Hampton House. Country residence. Kitchen in the basement floor. Construction, 2016 © Roman Leonidov architectural bureau
Hampton House. Country residence. Kitchen in the basement floor. Construction, 2016 © Roman Leonidov architectural bureau


Hampton House. Country residence. bathroom. Construction, 2016 © Roman Leonidov architectural bureau
Hampton House. Country residence. bathroom. Construction, 2016 © Roman Leonidov architectural bureau


Hampton House. Country residence. Childrens' playrooms. Construction, 2016 © Roman Leonidov architectural bureau
Hampton House. Country residence. Childrens' playrooms. Construction, 2016 © Roman Leonidov architectural bureau


The architects also deliberately replicated the outside colors in the interior of the house: the cold gray, graphite, beige, and white tones are diluted by warm wooden and honey hues of the wall and floor fragments made from solid Birman teak. It so coincided that this is a favorite color set with Elena Volgina and the clients as well. It is only the children's rooms that are designed in a different way. In them, the author stepped away from the main shades of color, splashing the walls and the furniture with all the colors of the rainbow. 

Hampton House. Country residence. Nighttime backlighting. Construction, 2016 © Roman Leonidov architectural bureau
Hampton House. Country residence. Nighttime backlighting. Construction, 2016 © Roman Leonidov architectural bureau


Hampton House. Country residence. Light in the interior. Construction, 2016 © Roman Leonidov architectural bureau
Hampton House. Country residence. Light in the interior. Construction, 2016 © Roman Leonidov architectural bureau


An important role in forming the interior was played by the lighting. The modern spotlights together with tiny wall-mounted lamps set the rhythm of the bypass zones and the staircases, the linear and the inbuilt lights highlighting the austere structure of the different-level ceilings, and the recognizable designer lights accentuating the central rooms. The light became the final chord that breathed life and warmth into the reserved modernist spaces, and make them feel, in spite of their considerable size - and the total area of the floor space is 1500 square meters - cozy and warm. 
Hampton House. Country residence. Construction, 2016 © Roman Leonidov architectural bureau
Hampton House. Country residence. Construction, 2016 © Roman Leonidov architectural bureau
Hampton House. Country residence. Construction, 2016 © Roman Leonidov architectural bureau
Hampton House. Country residence. Construction, 2016 © Roman Leonidov architectural bureau
Hampton House. Country residence. Construction, 2016 © Roman Leonidov architectural bureau
Hampton House. Country residence. Construction, 2016 © Roman Leonidov architectural bureau
Hampton House. Country residence. Construction, 2016 © Roman Leonidov architectural bureau
Hampton House. Country residence. Construction, 2016 © Roman Leonidov architectural bureau