Published on Archi.ru (https://archi.ru)

14.10.2016

Dudergoff Paradise

Irina Bembel
Studio:
Sergey Tsytsin’s studio

"Dudergoff Club" – built upon a project by Sergey Tsytsin on the shore of the Finnish Gulf in Saint-Petersburg.

Buildings of "Baltiyskaya Zhemchuzhina" complex (Dudergoff Club residential project). Construction, 2016 © Sergey Tsytsin Architects
Buildings of "Baltiyskaya Zhemchuzhina" complex (Dudergoff Club residential project). Construction, 2016 © Sergey Tsytsin Architects


Situated in the southwest residential area of Saint-Petersburg, the complex "Baltiyskaya Zhemchuzhina" ("Gem of the Baltic") is one of the largest Russian-Chinese housing projects. Its investor, ZAO "Baltiyskaya Zhemchuzhina" is a daughter company of Shanghai Overseas United Investment Company Ltd. The project that started in 2005 included not only construction of residential blocks but also beach nourishment, reinforcing the shoreline of the Finnish Gulf, and restoration of the Matisov and the Dudergoff Channels with throwing new bridges over them. The total area of construction amounts to 1760000 square meters, the sum of investment exceeding 3 billion dollars. And for a good reason, too – the location of Baltiyskaya Zhemchuzhina is unique in terms of its landscape properties: its territory embraces the Finnish Gulf, and it straddles the Dudergoff and the Matisov channels; to the west of it, the Yuzhno-Primorsky park is situated. In spite of its suburban location, this area still is a part of the history of Saint-Petersburg: close to it, runs the Peterhof Highway that leads to Strelna with its gem of the Konstantinovsky Palace; quite near, the religious retreat of Troitse-Sergieva Pustyn'.

Buildings of "Baltiyskaya Zhemchuzhina" complex (Dudergoff Club residential project). Construction, 2016 © Sergey Tsytsin Architects
Buildings of "Baltiyskaya Zhemchuzhina" complex (Dudergoff Club residential project). Construction, 2016 © Sergey Tsytsin Architects


A fairly decent public transportation accessibility is conditioned, among other things, by the proximity of the Saint Petersburg ring road and the recently-launched bridge. In one of our installments, we already covered the building of "Baltiyskaya Zhemchuzhina" business center that in fact became the flagship of the entire project. Its author, Sergey Tsytsin, is also one of the designers of the general master plan of this territory. At the first stage, the client organized an international competition for developing this territory, the results of which were to ultimately remain on paper – Sergey Tsytsin shares – Then there was a closed tender where we and two other companies participated without defining the winner. The project of integrated development of the territory that formed the basis of the construction project is indeed an "integrated" one because it took in all the proposals of the participating companies". 

Dissected by highways and water channels, the territory of this district consists in fact of several residential projects designed by different architects, one of them also being Sergey Tsytsin. His residential project got a name of "Dudergoff Club", a reference to the name of the emperor's dacha, and a popular vacationing place for the people of Saint Petersburg later on. Situated on the bank of the Matisov Channel, right across from the park, it was devised as a premium-grade condominium combining the advantages of both urban and rural lifestyles. The territory of the complex has a rectangular shape of about 800x200 meters, elongated from north to south along the Dudergoff Channel. The two and five story buildings are grouped together into mini-blocks of perimeter-like layout with a courtyard inside.

Buildings of "Baltiyskaya Zhemchuzhina" complex (Dudergoff Club residential project). Project, 2007 © Sergey Tsytsin Architects
Buildings of "Baltiyskaya Zhemchuzhina" complex (Dudergoff Club residential project). Project, 2007 © Sergey Tsytsin Architects


Buildings of "Baltiyskaya Zhemchuzhina" complex (Dudergoff Club residential project). Master plan © Sergey Tsytsin Architects
Buildings of "Baltiyskaya Zhemchuzhina" complex (Dudergoff Club residential project). Master plan © Sergey Tsytsin Architects


The line of houses closest to the shore consists of independent villas and townhouses. Then the building lines rise up like an amphitheater providing a maximum view from the windows, balconies, and terraces, as well as from the usable roofs and penthouses. All the apartments have deep recesses verandas with windows, up to 15 square meters each. At the top floors of the penthouses, there are large open-air terraces. The two-apartment sectional houses with land plots of their own stand facing the channel with their side walls. In the center of the complex, there is a nursery and an elementary school. The yards are designed as systems of enfilades strung on compositional axes running through arched pedestrian zones.

Buildings of "Baltiyskaya Zhemchuzhina" complex (Dudergoff Club residential project). Project, 2007 © Sergey Tsytsin Architects
Buildings of "Baltiyskaya Zhemchuzhina" complex (Dudergoff Club residential project). Project, 2007 © Sergey Tsytsin Architects


Buildings of "Baltiyskaya Zhemchuzhina" complex (Dudergoff Club residential project). Construction, 2016 © Sergey Tsytsin Architects
Buildings of "Baltiyskaya Zhemchuzhina" complex (Dudergoff Club residential project). Construction, 2016 © Sergey Tsytsin Architects


Buildings of "Baltiyskaya Zhemchuzhina" complex (Dudergoff Club residential project). Construction, 2016 © Sergey Tsytsin Architects
Buildings of "Baltiyskaya Zhemchuzhina" complex (Dudergoff Club residential project). Construction, 2016 © Sergey Tsytsin Architects


Buildings of "Baltiyskaya Zhemchuzhina" complex (Dudergoff Club residential project). Construction, 2016 © Sergey Tsytsin Architects
Buildings of "Baltiyskaya Zhemchuzhina" complex (Dudergoff Club residential project). Construction, 2016 © Sergey Tsytsin Architects


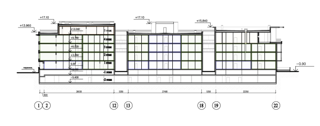
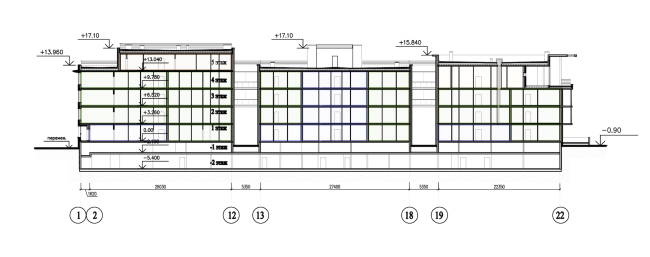
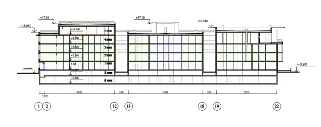
Buildings of "Baltiyskaya Zhemchuzhina" complex (Dudergoff Club residential project). Section view (a blocked residential house) © Sergey Tsytsin Architects
Buildings of "Baltiyskaya Zhemchuzhina" complex (Dudergoff Club residential project). Section view (a blocked residential house) © Sergey Tsytsin Architects


Buildings of "Baltiyskaya Zhemchuzhina" complex (Dudergoff Club residential project). Section view (a sectional residential house) © Sergey Tsytsin Architects
Buildings of "Baltiyskaya Zhemchuzhina" complex (Dudergoff Club residential project). Section view (a sectional residential house) © Sergey Tsytsin Architects


""Dudergoff Club" is in fact a strip of land that stretches along the channel and the waterfront promenade, oriented eastward, and open to water and parkland – says Sergey Tsytsin – Ninety percent of the apartments were to command a river view. The scale of the courtyards teeters on the verge of our idea of coziness and the operating construction regulations. What I was after was creating not just courtyards but specifically a "club". The yards are interconnected by a system of parallel and perpendicular arches inspired by the famous Tolstoy House designed by Theodor Lidval. The more expensive apartments are turned to the water and are oriented southward. The owners of the apartments on the first floor own little gardens of their own. We were not able to implement all of our plans because many good ideas seem to "slide away" or slip through your fingers in the process of their implementation. We did get our point across, though, and that is a great landscaping job".

Buildings of "Baltiyskaya Zhemchuzhina" complex (Dudergoff Club residential project). Construction, 2016 © Sergey Tsytsin Architects
Buildings of "Baltiyskaya Zhemchuzhina" complex (Dudergoff Club residential project). Construction, 2016 © Sergey Tsytsin Architects


Buildings of "Baltiyskaya Zhemchuzhina" complex (Dudergoff Club residential project). Construction, 2016 © Sergey Tsytsin Architects
Buildings of "Baltiyskaya Zhemchuzhina" complex (Dudergoff Club residential project). Construction, 2016 © Sergey Tsytsin Architects


The architecture of the complex is light and modern, with a broad variety of geometric combination and a prevailing "terrace" leitmotif. It is obvious that the authors looked to create a living and breathing silhouette and open their architecture to nature as much as possible – not only functionally but also in terms of its image – by making it transparent and reflecting the surrounding landscape, at the same time penetrating into it. The austere and rational forms are not devoid of exquisiteness, the arched enfilades of the yards and "Pompeii" motifs of the upper terraces entwining with the overall modernist colors. The harmony between the buildings and the landscape is also achieved at the expense of natural materials: brick, stone, ceramics, and large window panes. 

Buildings of "Baltiyskaya Zhemchuzhina" complex (Dudergoff Club residential project). Construction, 2016 © Sergey Tsytsin Architects
Buildings of "Baltiyskaya Zhemchuzhina" complex (Dudergoff Club residential project). Construction, 2016 © Sergey Tsytsin Architects


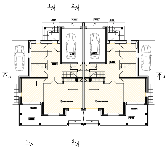
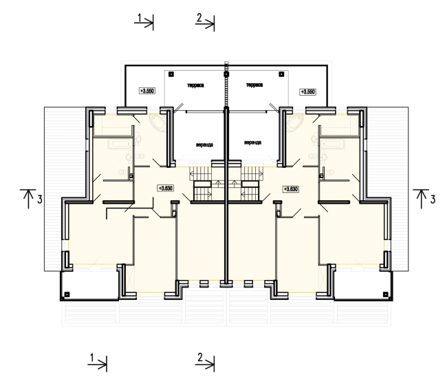
Buildings of "Baltiyskaya Zhemchuzhina" complex (Dudergoff Club residential project). Plan of the 1st floor © Sergey Tsytsin Architects
Buildings of "Baltiyskaya Zhemchuzhina" complex (Dudergoff Club residential project). Plan of the 1st floor © Sergey Tsytsin Architects


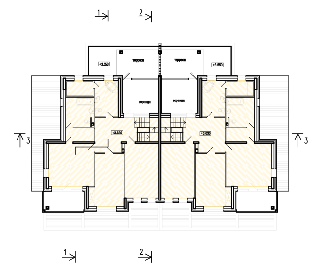
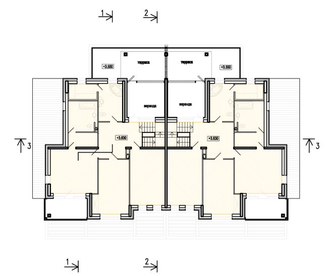
Buildings of "Baltiyskaya Zhemchuzhina" complex (Dudergoff Club residential project). Plan of the 2nd floor © Sergey Tsytsin Architects
Buildings of "Baltiyskaya Zhemchuzhina" complex (Dudergoff Club residential project). Plan of the 2nd floor © Sergey Tsytsin Architects


The main sight – the Dudergoff Channel – is landscape by a promenade, even though the bridges, regretfully, never were built. In the future, considering the fact that there are channels and the Finnish Gulf available, a network of pleasure boats will be developed here. Of course, this will add new colors to the Dudergoff Paradise.
Buildings of "Baltiyskaya Zhemchuzhina" complex (Dudergoff Club residential project). Construction, 2016 © Sergey Tsytsin Architects
Buildings of "Baltiyskaya Zhemchuzhina" complex (Dudergoff Club residential project). Construction, 2016 © Sergey Tsytsin Architects
Buildings of "Baltiyskaya Zhemchuzhina" complex (Dudergoff Club residential project). Construction, 2016 © Sergey Tsytsin Architects
Buildings of "Baltiyskaya Zhemchuzhina" complex (Dudergoff Club residential project). Construction, 2016 © Sergey Tsytsin Architects
Buildings of "Baltiyskaya Zhemchuzhina" complex (Dudergoff Club residential project). Construction, 2016 © Sergey Tsytsin Architects
Buildings of "Baltiyskaya Zhemchuzhina" complex (Dudergoff Club residential project). Construction, 2016 © Sergey Tsytsin Architects
Buildings of "Baltiyskaya Zhemchuzhina" complex (Dudergoff Club residential project). Project, 2007 © Sergey Tsytsin Architects
Buildings of "Baltiyskaya Zhemchuzhina" complex (Dudergoff Club residential project). Project, 2007 © Sergey Tsytsin Architects
Buildings of "Baltiyskaya Zhemchuzhina" complex (Dudergoff Club residential project). Plan of the roof © Sergey Tsytsin Architects
Buildings of "Baltiyskaya Zhemchuzhina" complex (Dudergoff Club residential project). Plan of the roof © Sergey Tsytsin Architects
Buildings of "Baltiyskaya Zhemchuzhina" complex (Dudergoff Club residential project). Section view (a blocked residential house) © Sergey Tsytsin Architects
Buildings of "Baltiyskaya Zhemchuzhina" complex (Dudergoff Club residential project). Section view (a blocked residential house) © Sergey Tsytsin Architects
Buildings of "Baltiyskaya Zhemchuzhina" complex (Dudergoff Club residential project). Section view (a sectional residential house) © Sergey Tsytsin Architects
Buildings of "Baltiyskaya Zhemchuzhina" complex (Dudergoff Club residential project). Section view (a sectional residential house) © Sergey Tsytsin Architects