Published on Archi.ru (https://archi.ru)

22.09.2016

Five Towers

Nina Frolova
Architect:
Sergei Tchoban
Studio:
SPEECH

Pristine lines of the façade grid on the outside and picturesque drawings by Sergey Tchoban on the inside: the housing project "Vodny" – designed by SPEECH.

"Vodny" housing project. Construction, 2015. Photograph © Dmitry Chebanenko
"Vodny" housing project. Construction, 2015. Photograph © Dmitry Chebanenko


This housing project was built for MR Group, and it bears the same name as another object owned by the same developer - the nearby shopping and business center designed by "Atrium" architects. However, the "Vodny" designed by SPEECH is completely independent: separated from its neighbor by the Avangardnaya Street, the land site proudly presents five 26-story towers that look like a self-sufficient composition that yields an equally great view from close-range and distant vantage points.

"Vodny" housing project. Construction, 2015. Photograph © Dmitry Chebanenko
"Vodny" housing project. Construction, 2015. Photograph © Dmitry Chebanenko


The surroundings of "Vodny Stadion" metro station cannot yet boast any memorable appearance, the potential of this district of Moscow, mostly still occupied by industrial parks, still underdeveloped, even though there are plenty of parks and creeks around - the Khimky reservoir, the Golovinsky Creeks, and the Likhoborka River. The appearance of these large-scale buildings, as well as the sheer magnitude of "Vodny", is quite capable of making a difference. The fact that the leading architects are coming to the outskirts of Moscow is reminiscent of another similar case that took place at a different continent more than half a century ago. In the late 1950's, a new satellite town of Mexico - that was candidly called Ciudad Satélite - got five obelisk towers of different height, Torres de Satélite. This famous work by Louis Barragan became the symbol of a new neighborhood yet devoid of an image – it indeed looked pretty much like “Vodny” does: the same five towers of different colors, the project also capable of becoming an image-forming factor for the surrounding territory.

"Vodny" housing project. Construction, 2015. Photograph © Dmitry Chebanenko
"Vodny" housing project. Construction, 2015. Photograph © Dmitry Chebanenko


However, an important difference of the Moscow project from the Mexican one lies in the fact that "Vodny" is more than functional. The five towers house more than 15 hundred apartments with an area of 39 to 97 square meters – studios and two and three-room apartments alike. The lower floors include a kindergarten and a children center, a fitness center, a representation office of the managing company, multiple services, and cafés; part of the premises is rented out as offices. Underground, there is a multilevel parking garage. The territory that surrounds this geometric composition of rectangular-plan towers, is landscaped, it has a playground on it – which pretty much makes "Vodny" quite a self-sufficient entity. 

"Vodny" housing project. Construction, 2015. Photograph © Dmitry Chebanenko
"Vodny" housing project. Construction, 2015. Photograph © Dmitry Chebanenko


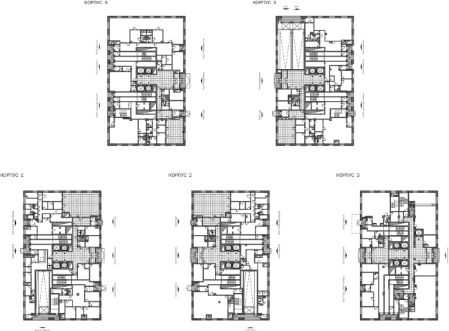
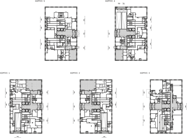
"Vodny" housing project. Plan of the 1st floor © SPEECH
"Vodny" housing project. Plan of the 1st floor © SPEECH


"Vodny" housing project. Plan of the typical floor © SPEECH
"Vodny" housing project. Plan of the typical floor © SPEECH


"Vodny" housing project. Section view © SPEECH
"Vodny" housing project. Section view © SPEECH


For the façade decoration, the architects opted for the glazed ceramic tiles, each of the towers getting a shade of color and a panel texture of its own. This solution will help keep the brightness and the richness of color for a long time - which is quite a factor for Moscow's environment that can become pretty aggressive at times.

"Vodny" housing project. Construction, 2015. Photograph © Dmitry Chebanenko
"Vodny" housing project. Construction, 2015. Photograph © Dmitry Chebanenko


"Vodny" housing project. Construction, 2015. Photograph © Dmitry Chebanenko
"Vodny" housing project. Construction, 2015. Photograph © Dmitry Chebanenko


The entrances to the towers are marked by deep recessions. Behind them, there are lobbies, decorated with Sergey Tchoban's drawings from his "City and Water" series. Saint Petersburg, Venice, and other cities that immediately bring up associations with rivers, channels, and seas, come up on a large scale just as romantically as on paper: they are digitally printed on the glass that covers the walls. The author picked his drawings for "Vodny" together with the client: fifteen pictures were considered optimum for this purpose, each lobby getting three of them. Rich in overtones and interesting transitions, Sergey Tchoban's graphics in the interiors looks as if it enhances the austerity of the geometry of the complex's outward look, thus highlighting the symbolism of its name.
"Vodny" housing project. Construction, 2015. Interior of the entrance lobby. Photograph © Dmitry Chebanenko
"Vodny" housing project. Construction, 2015. Interior of the entrance lobby. Photograph © Dmitry Chebanenko
"Vodny" housing project. Construction, 2015. Interior of the entrance lobby. Photograph © Dmitry Chebanenko
"Vodny" housing project. Construction, 2015. Interior of the entrance lobby. Photograph © Dmitry Chebanenko
"Vodny" housing project. Construction, 2015. Interior of the entrance lobby. Photograph © Dmitry Chebanenko
"Vodny" housing project. Construction, 2015. Interior of the entrance lobby. Photograph © Dmitry Chebanenko
"Vodny" housing project. Construction, 2015. Interior of the entrance lobby. Photograph © Dmitry Chebanenko
"Vodny" housing project. Construction, 2015. Interior of the entrance lobby. Photograph © Dmitry Chebanenko
"Vodny" housing project. Construction, 2015. Interior of the entrance lobby. Photograph © Dmitry Chebanenko
"Vodny" housing project. Construction, 2015. Interior of the entrance lobby. Photograph © Dmitry Chebanenko
"Vodny" housing project. Construction, 2015. Interior of the entrance lobby. Photograph © Dmitry Chebanenko
"Vodny" housing project. Construction, 2015. Interior of the entrance lobby. Photograph © Dmitry Chebanenko
"Vodny" housing project. Construction, 2015. Interior of the entrance lobby. Photograph © Dmitry Chebanenko
"Vodny" housing project. Construction, 2015. Interior of the entrance lobby. Photograph © Dmitry Chebanenko
"Vodny" housing project. Construction, 2015. Interior of the entrance lobby. Photograph © Dmitry Chebanenko
"Vodny" housing project. Construction, 2015. Interior of the entrance lobby. Photograph © Dmitry Chebanenko
"Vodny" housing project. Section view © SPEECH
"Vodny" housing project. Section view © SPEECH