Published on Archi.ru (https://archi.ru)

29.08.2016

Framework in Space

Julia Tarabarina
Architect:
Nikita Yavein
Studio:
Company:

Developed by "Studio 44", the project of a judo school is based on the opposition of the modernist principle of point support and the openness of deconstruction - with their sources lying in the traditional Japanese architecture. A fair share of abstraction helps to add some stylistic discourse to the necessary level of generalization.

Sports and recreation complex of the judo school. Project, 2016 © Studio 44
Sports and recreation complex of the judo school. Project, 2016 © Studio 44


The judo school whose design "Studio 45" completed a few months ago will be built on the Vyborg side in the district of Polyustrovo - an area that was once occupied by large Dukes dachas, then factories, and now predominantly by Soviet-type apartment buildings with an odd fraction of smaller dachas and spots of die-hard industrial parks. The judo school will occupy a large rectangle on the borderline between the Academic Sakharov Park and a residential area that consists predominantly of the 1970's panel nine-story houses interspersed with later additions. The city backdrop here is a habitual checkered gray; anyone who was born in the Soviet Union would recognize this view from a mile away. And, as for the park, it is not just any park, but a descendant of the Abamelek-Lazarevs' dacha, which pretty much turns it into a piece of the preindustrial suburbs that were later merged with the industrial Saint Petersburg. Later on, it was renamed into a "Young Pioneer" Park, and its northern park has kept this name to this day, the southern part having been renamed into the "Sakharov" Park and getting a monument to the victims of Hiroshima and Nagasaki - a copy brought all the way down from Japan. And, not so much by design as by coincidence, it turned out that this Japanese theme took root here: across from the monument, a new school of a Japanese martial art will be built. The school will have in it training and performance halls - not only for judo but for gymnastics as well; it will also have a highly developed infrastructure that will include, among other things, about a dozen rooms for guest athletes. This is going to be a great up-to-date school the height of a nine-story house (28.8 meters), the height measurements of the building fitting in nicely with the surroundings.  

Sports and recreation complex of the judo school. Location plan, 2016 © Studio 44
Sports and recreation complex of the judo school. Location plan, 2016 © Studio 44


Sports and recreation complex of the judo school. Project, 2016 © Studio 44
Sports and recreation complex of the judo school. Project, 2016 © Studio 44


The school building consists of a voluminous "grid" framework with a large cell span of 7.2x7.2 meters. It is planned that the framework will be coated with wood that will bring out the wood construction both on the inside and outside, following its structural logic. To an outside observer it will look - just as it looks now on the project visualizations - that the building's framework is indeed made of wood. In an odd checkered pattern, it is at some places covered in glass and at some places is coated with panels but still mostly it is transparent, viewable, and is designed prominently on the outside. The walls recede into the depth of the building forming on the facade an intermediate space that is akin to shallow stanzas - but still uninhabited. The outer plane of the facade is touched by the "legs" of the glazed stairwells. Just like all the other pillars, they support the bowl of the main competition hall - an inverted stepping pyramid whose volume is partially readable from the outside. The entire building turns into a support for the bowl of the main hall elevated 12 meters above the ground, its edges "resting" on the outside framework, and its basis - on the volumes of the minor halls of the bottom floors that are still pierced with point supports, just as they should be in accordance with the tradition of the architecture of today. The narrow verticals of the stairwells are evenly placed, like buttresses of a gothic temple, and, coupled with the crowning band of panoramic windows, they form on the facade a composition that reminds, on the one hand, a horizontal skyscraper on slender pillars, and, on the other hand (especially when viewed from a distance of the park) - a temple portal of the Far East architectural tradition: an array of colums that support a beam with two long protruding "tails" of the cantilevers. The likeness is still further enhanced by the steps of the spectators’ stalls which add characteristic bulges to the silhouettes of the cantilevers. The whole façade is turned into a portal - a gate to sport, which is more than symbolic. This portal is, however, far from classic - it has a pillar in its middle which made the architects shift the entrance with its broad marquee to the left: the geometry of the main façade took on some "irresponsible" quality, while the likeness to the hyper portal stopped being literal. Behind the top glass horizontal, there are cafes that circle the stalls along their perimeter that will command, just like the stairwells, a great panoramic view of the park and the city. 

Sports and recreation complex of the judo school. Project, 2016 © Studio 44
Sports and recreation complex of the judo school. Project, 2016 © Studio 44


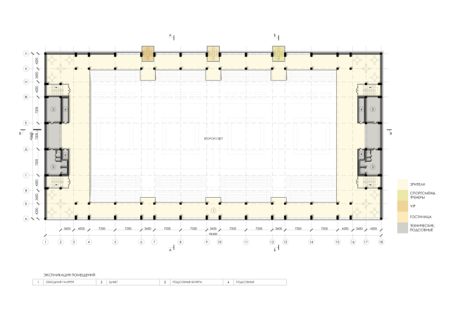
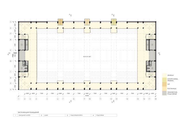
Sports and recreation complex of the judo school. Plan of the first floor © Studio 44
Sports and recreation complex of the judo school. Plan of the first floor © Studio 44


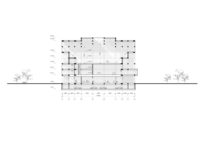
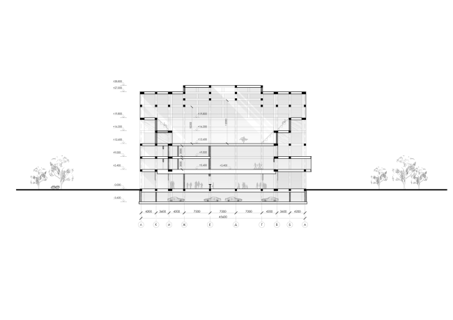
Sports and recreation complex of the judo school. Section view © Studio 44
Sports and recreation complex of the judo school. Section view © Studio 44


Sports and recreation complex of the judo school. Section view © Studio 44
Sports and recreation complex of the judo school. Section view © Studio 44


Sports and recreation complex of the judo school. Section view © Studio 44
Sports and recreation complex of the judo school. Section view © Studio 44


This mixture of avant-grade and modernism with a tilt to Japanese postwar metabolic architecture - with references to the traditional Japanese house, and, most importantly, the classic judo halls - are to be found everywhere in this building. One grows into the other, which seems more or less self-explanatory, as one abstracts himself from the form. Just like on a Picasso painting, where somebody's nose can be at the same time an abstract triangle, we can see here, depending on our mood and angle of vision, either a Japanese temple with a broad roof or a wooden pavilion, the kind that is popular today at architectural festivals, or a huge building designed in full accordance with the rules of modern architecture (which it actually is). So - and it comes as no surprise at all - what we see is a curious version of Pompidou Center's Piano&Rogers Pyramid, only tested with squares of wooden structure and changed almost beyond recognition, the masterpiece and the manifesto of the deconstruction architecture. And why not? The staircases are brought forward, behind them, there is the "bustle" of the building works crossed by diagonal metallic beams - the likeness to the famous escalator and the metallic grids on the main façade of the Paris museum is obvious, even though here, in Saint Petersburg, everything is a lot more reserved and farther away from hi-tech, and, even, conversely, sunk in the tradition of wooden construction. Another thing that comes to mind is Nikolai Plissky's "Hadron Collider", a hint at the mechanism of state-of-the-art technologies, built from rough timber - but then again, the distance from the prototype is not so great. And if we are to talk about deconstruction, it is something that is contained inside here - the building does not cast any "protuberances" outside and stays compact; the main façade looks more like a cut or a section of some part of the building's structure. No irony is in sight - quite the opposite, what we see is, for all intents and purposes, quite a serious discourse on the subject of the basics of modernist culture and its origin lying in the traditional oriental cultures.

Sports and recreation complex of the judo school. Project, 2016 © Studio 44
Sports and recreation complex of the judo school. Project, 2016 © Studio 44


Sports and recreation complex of the judo school. Project, 2016 © Studio 44
Sports and recreation complex of the judo school. Project, 2016 © Studio 44


Sports and recreation complex of the judo school. Project, 2016 © Studio 44
Sports and recreation complex of the judo school. Project, 2016 © Studio 44


And that's as true as it's going to get - the bare staircases that are brought forward here can be seen not only in Pompidou but also in many other modernist masterpieces - for example, in Andrew Meerson's "Pilots' House" with its oval stairwell towers. The crossings of sliced verticals and horizontals, on the other hand, put one in the mind of the Fuji Television building designed by Kenzo Tange, as well as some projects done by "Studio 44" itself where a "centipede" beam elevated on a multitude of supporting pillars is one of the favorite techniques; it is to be found, for example, in their contest project of a multifunctional complex on the alluvial land of the Vasilyevsky Island; or in the building of the defense ministry of Kazakhstan. 

On the whole, however, the project is immersed in the Japanese tradition. The most obvious prototype is, of course, the Japanese house and the judo gyms with their wooden frameworks, lattices, and partitions covered in rice paper, light, transparent, agile, just as the spirit of a judo school should suggest. To a certain degree, the building of the Saint Petersburg school IS such a gym, only magnified manifold: 72x29 meters,12.6 meters to reach the beams, and 16 meters together with them - strictly speaking, it could contain a couple of 5-story residential buildings. Three tiers of ceiling beams - its main pride - also work to "explore the subject" directly referring us to the prototype of the Japanese red ceilings that in the old houses sometimes occupy a significant share of the home space dividing it into cubes. The ambient light that falls from all sides, including from the ceiling, is softened but still with a voluminous quality to it, and it enhances the Japanese framework feel of the space in which mass is seemingly completely inferior to structure.  

Sports and recreation complex of the judo school. Project, 2016 © Studio 44
Sports and recreation complex of the judo school. Project, 2016 © Studio 44


Sports and recreation complex of the judo school. Project, 2016 © Studio 44
Sports and recreation complex of the judo school. Project, 2016 © Studio 44


But, as was already said, the modernist basis and the Japanese prototypes are closely connected here. The architecture of contemporary history is all about framework, which accounts for 90% of its beauty and success; this is also one of the principles of Le Corbusier. The point supports are derived from the specifics of the technology of reinforced concrete, and they help save building materials and space, as well as make walls light and transparent. But at the same time this technology dates back to all framework houses known to man, less to modernism in its European half-timber form, and more to the framework of a Japanese house that so many classics of the wooden tradition fell for. In other words, this evergreen technology of framework construction that has been around for at least a century has its roots in a tradition. In this case, the theme luckily coincided with the theme of the judo school, making the meaning complete or getting back to the sources at the new helix of development. 

One cannot help recalling that "Studio 44" has already done another project built upon a wooden framework - the science museum in the city of Tomsk. Back then, it seemed that the architect revived the sculptural tradition of the early Soviet wooden avant-garde architecture, and that he was going to keep on using that language teetering on the verge of the literal, the recognizable, and the generalized. It is clear now that "Studio 44" views the idea - one of a wooden framework in this case - from many different angles, studying its numerous prototypes suggested by the context. Viewing the building's framework as a voluminous grid whose content is conditioned by the building's function, and, as a consequence, is rather flexible, is interesting in itself, and, besides, all through the XX century a lot was said on the subject, so the architects had a lot of starting points to lean on.

Sports and recreation complex of the judo school. Master plan © Studio 44
Sports and recreation complex of the judo school. Master plan © Studio 44


Sports and recreation complex of the judo school. Plan of the -1 floor © Studio 44
Sports and recreation complex of the judo school. Plan of the -1 floor © Studio 44


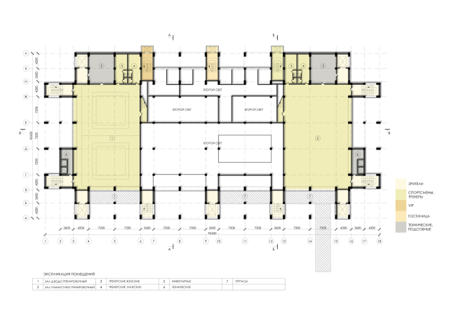
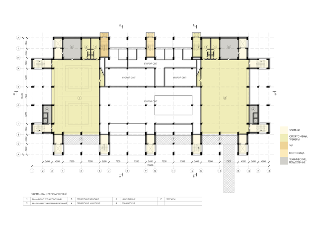
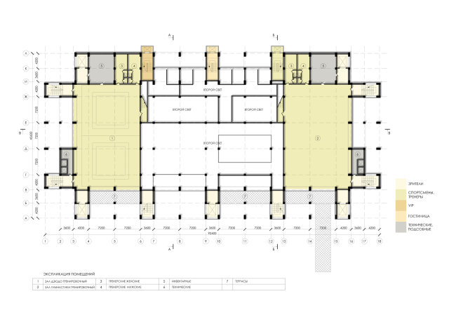
Sports and recreation complex of the judo school. Plan of the 2nd floor © Studio 44
Sports and recreation complex of the judo school. Plan of the 2nd floor © Studio 44


Sports and recreation complex of the judo school. Plan of the 3rd floor © Studio 44
Sports and recreation complex of the judo school. Plan of the 3rd floor © Studio 44


Sports and recreation complex of the judo school. Plan of the 4th floor © Studio 44
Sports and recreation complex of the judo school. Plan of the 4th floor © Studio 44


Sports and recreation complex of the judo school. Plan of the 5th floor © Studio 44
Sports and recreation complex of the judo school. Plan of the 5th floor © Studio 44


Sports and recreation complex of the judo school. Plan of the 6th floor © Studio 44
Sports and recreation complex of the judo school. Plan of the 6th floor © Studio 44


Sports and recreation complex of the judo school. Plan of the 7th floor © Studio 44
Sports and recreation complex of the judo school. Plan of the 7th floor © Studio 44