Published on Archi.ru (https://archi.ru)

01.09.2016

Meander with a Metallic Glitter

Nina Frolova
Architect:
Sergei Tchoban
Sergey Kouznetsov
Studio:
SPEECH

The multifunctional project of "Danilov Plaza" - built by SPEECH Architects on the Novodanilovskaya Embankment in Moscow

"Danilov Plaza" multifunctional project. Construction, 2016. Photograph © Aleksey Naroditskiy
"Danilov Plaza" multifunctional project. Construction, 2016. Photograph © Aleksey Naroditskiy


The multifunctional project of "Danilov Plaza", about which we already wrote in 2009, is situated on the waterfront of the Moskva River comparatively close to the city center: the Svyato-Danilov Monastery and the square of Serpukhovskaya Zastava are its immediate neighbors. Historically, however, this district was an industrial one, and, hence, not exactly cheerful-looking, and it was not until the beginning of the XXI century that its reconstruction began. The new and remodeled office buildings are advantageously situated near the waterfront, and one of them is Danilov Plaza, two of its 13-story units overlooking the river and the ZIL Peninsula where lots of lifting cranes are busy now building the new "ZILART" project - also partially developed by SPEECH.

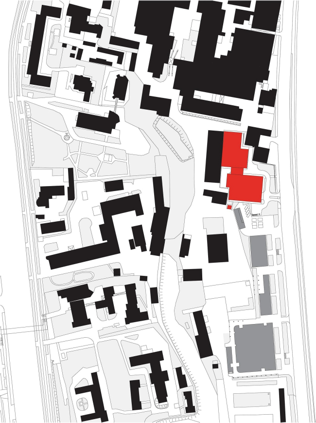
"Danilov Plaza" multifunctional project. Location plan © SPEECH
"Danilov Plaza" multifunctional project. Location plan © SPEECH


Danilov Plaza stands out against the background of the other buildings, and brings a noticeable variety to its predominantly red-brick surroundings: the SPEECH project is flanked by Sergey Skuratov's "Danilovsky Fort" and the historical complex of "Danilovskaya Manufactura" that was reconstructed by Valery Lukomsky. Their red-brick sophisticated forms serve as the perfect backdrop for Danilov Plaza that literally stands out thanks to its laconic rectangular volumes and light-colored façades with a metallic glitter. The building that stands closer to the waterfront is coated with aluminum panels that give off a silvery glitter, while the one that is farther away from the river is clad in panels of a golden hue. Their surfaces - and, together with them, the whole complex - change its color with the changing of the ambient light but this visual responsiveness depends just as much on the textured pattern that covers all the façades of Danilov Plaza.

"Danilov Plaza" multifunctional project. Construction, 2016. Photograph © Aleksey Naroditskiy
"Danilov Plaza" multifunctional project. Construction, 2016. Photograph © Aleksey Naroditskiy


"Danilov Plaza" multifunctional project. Construction, 2016. Photograph © Aleksey Naroditskiy
"Danilov Plaza" multifunctional project. Construction, 2016. Photograph © Aleksey Naroditskiy


"Danilov Plaza" multifunctional project. Construction, 2016. Photograph © Aleksey Naroditskiy
"Danilov Plaza" multifunctional project. Construction, 2016. Photograph © Aleksey Naroditskiy


The ornamental theme has always been interesting to the SPEECH architects, and in this particular case they did something very much like running vertical meandering snakes down the façades, silvery and golden. They entwine the square window apertures as little "perspective portals" (a term coined by the authors of the project): each snake looks as if it consists of three layers stepping away from the glass. This bas-relief idea gives the wall surfaces a rich textured and tactile feel which is then beautifully highlighted by the simplicity of the silhouettes of the complex - even though a small ledger sticking away from the rectangular plan of each of the buildings creates extra perspective views where the façades and their meanders "overlap" one another. 

"Danilov Plaza" multifunctional project. Construction, 2016. Photograph © Aleksey Naroditskiy
"Danilov Plaza" multifunctional project. Construction, 2016. Photograph © Aleksey Naroditskiy


"Danilov Plaza" multifunctional project. Construction, 2016. Photograph © Aleksey Naroditskiy
"Danilov Plaza" multifunctional project. Construction, 2016. Photograph © Aleksey Naroditskiy


"Danilov Plaza" multifunctional project. Construction, 2016. Photograph © Aleksey Naroditskiy
"Danilov Plaza" multifunctional project. Construction, 2016. Photograph © Aleksey Naroditskiy


The ornamental surface of the walls is visually completed by the "attic" (again, a term used by the architects): an array of narrow window apertures two stories high. The borderline between the stories in each of them is marked by a horizontal glass strip. The two lower tiers are fully glazed, their area is a little smaller than that of the rest of the building; the floors here are also separated by a glass band covering the intermediate floors - this way, the architects achieve clarity of the building's image whose logical inner structure manifests itself on the façades. For the convenience of the users of Danilov Plaza, its two building are linked with overpasses at levels of eighth and eleventh floors. 

"Danilov Plaza" multifunctional project. Construction, 2016. Photograph © Aleksey Naroditskiy
"Danilov Plaza" multifunctional project. Construction, 2016. Photograph © Aleksey Naroditskiy


"Danilov Plaza" multifunctional project. Construction, 2016. Photograph © Aleksey Naroditskiy
"Danilov Plaza" multifunctional project. Construction, 2016. Photograph © Aleksey Naroditskiy


"Danilov Plaza" multifunctional project. Construction, 2016. Photograph © Aleksey Naroditskiy
"Danilov Plaza" multifunctional project. Construction, 2016. Photograph © Aleksey Naroditskiy


The territory around the buildings is open to public, and it smoothly flows into the territories of the neighboring office buildings, the parking garage hidden underground. Thus, viewed not only in perspective but also from a close range, Danilov Plaza is perceived as an imposing-looking project in its own right, quite capable of holding its own against such a mottled background as the Novodanilovskaya Embankment. 
"Danilov Plaza" multifunctional project. Construction, 2016. Photograph © Aleksey Naroditskiy
"Danilov Plaza" multifunctional project. Construction, 2016. Photograph © Aleksey Naroditskiy
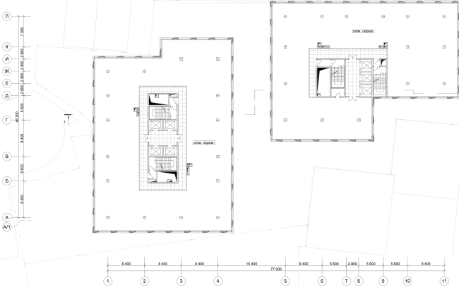
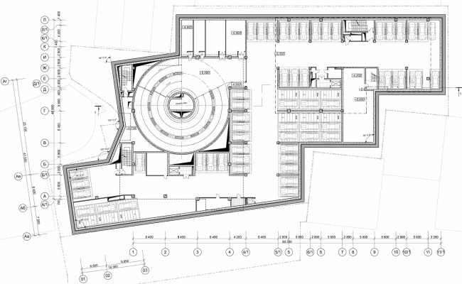
"Danilov Plaza" multifunctional project. Plan of the underground floor © SPEECH
"Danilov Plaza" multifunctional project. Plan of the underground floor © SPEECH
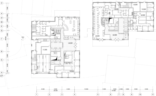
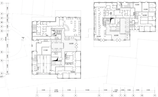
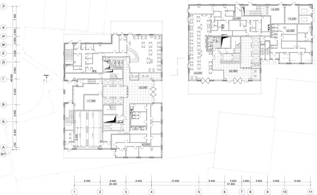
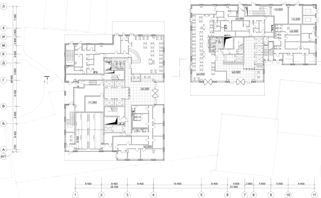
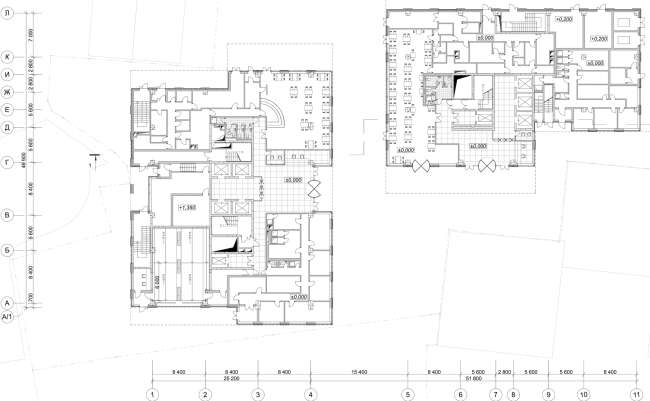
"Danilov Plaza" multifunctional project. Plan of the fist floor © SPEECH
"Danilov Plaza" multifunctional project. Plan of the fist floor © SPEECH
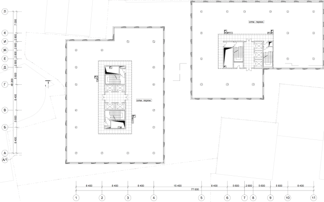
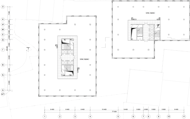
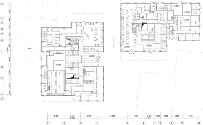
"Danilov Plaza" multifunctional project. Plan of the typical floor © SPEECH
"Danilov Plaza" multifunctional project. Plan of the typical floor © SPEECH
"Danilov Plaza" multifunctional project. Section view © SPEECH
"Danilov Plaza" multifunctional project. Section view © SPEECH