Published on Archi.ru (https://archi.ru)

11.08.2016

The Emblem of a Building Estate

Irina Bembel
Studio:
Sergey Tsytsin’s studio

A building with a curving, bionic shape was built by Sergey Tsytsyn in the middle of a future building estate within a single year. It became the locomotive of the whole development.

The headquarters of Baltic Pearl LTD © Sergey Tsytsin Architects
The headquarters of Baltic Pearl LTD © Sergey Tsytsin Architects


“The Baltic Pearl” – a huge building estate, consisting of several residential blocks of different density and comfort level – appeared in the south eastern part of St. Petersburg by efforts of the architects of St. Petersburg and investors from China. Its location is exceptionally convenient: right beside it, is the Gulf of Finland, which the houses approach down a gentle slope. The Dudergof and Matisov Channels cross the complex and Yuzhno-Primorsky Park adjoins it on the east.

The main sculptural dominant is placed in the middle of the estate: it is an administration and developers’ building – Sales and Territory Development Center – a curving construction with a spherical glass volume of the sunroom, which reminds an open shell with a pearl and literally represents the name of the district. This architectural device is based on opposition of strict geometry and spontaneous curving: the vertical walls and the cut-glass ball are integrated into a bionic body. The flex-walls are faced with decorative aluminum panels: combined with glazed surfaces, they create a striking and dynamic image, which suits its role of the main accent. Behind its unusual facades, the compact volume places four floors; an additional underground floor houses a parking garage.

The headquarters of Baltic Pearl LTD. Model © Sergey Tsytsin Architects
The headquarters of Baltic Pearl LTD. Model © Sergey Tsytsin Architects


The headquarters of Baltic Pearl LTD © Sergey Tsytsin Architects
The headquarters of Baltic Pearl LTD © Sergey Tsytsin Architects


The center of the large composition is a spacious vestibule with two tiers of windows, service and information stands, sitting areas, a sunroom and exhibition halls. On the ground floor, there is a reception for VIP-clients, exhibition halls, meeting rooms and a leisure area. The main expressive accent here is the spherical sunroom with rich vegetation, waterfalls and runlets. 

The headquarters of Baltic Pearl LTD. Interior © Sergey Tsytsin Architects
The headquarters of Baltic Pearl LTD. Interior © Sergey Tsytsin Architects


On the first floor, the same functional areas are added with office and service premises. The second and third floors were originally intended for locating offices, sales departments and the administration of “The Baltic Pearl”, but in future is actually planned to be used as clubs, divided by floors into standard and VIP-zones. Vertical connections are provided by two elevator groups and three staircases. The carcass of the metal constructions supports the solid armored floors. The building is surrounded with a public area with a swimming pool that reflects the “pearl” of the sunroom and – something very unexpected in our practical age – with a sculpture, demonstrating an attempt to revive the forgotten fusion of arts.

The headquarters of Baltic Pearl LTD. Sculpture in front of the winter garden. Photo © Irene Bembel
The headquarters of Baltic Pearl LTD. Sculpture in front of the winter garden. Photo © Irene Bembel


“I was happy to work on this project, because it changed my ideas of real estate development,” says Sergey Tsytsyn, the head of the team. “Back then, in the early 2000s, nobody used to deal with projects on complex territory development, since they are extremely financially challenging and take up a lot of time. Here, for the first time, I saw this kind of approach to development of a 300 hectares territory. Originally, the building was created as the center and the starting point of the housing estate, whereas usually we come across the opposite practice, when some one-off hut of the sales department is placed on the empty territory, and gradually becomes surrounded with the residential buildings. In our case, an emphatic, interesting object posed a high threshold for the whole future estate”.

The process of planning and construction of “The Baltic Pearl” was rather complicated. According to Sergey Tsytsyn, only a year passed from the moment of conclusion of the contract until the ceremonial ribbon-cutting. In order to achieve the unusual shape of the “shell”, the architects had to make a thousand and four hundred drafts only of the main carcass! The constructive, bearing function of the shell surfaces also required financial expenses. Nevertheless, the investor agreed to it, to get the wanted artistic effect.

“It turns out, that planning and construction of an expressive object is not that much more expensive, as some might imagine,” says Sergey Tsytsyn, “only one and a half times more. And I am sure, that these costs pay off by the reputation that the investor wins. This is the first step to creating the high-quality environment, which a certain customer category is looking for”.

“The Baltic Pearl” housing estate and business center is a rare example of cooperation of the city, investors, urban planners and architects. The position of the main dominant, determined in the master-plan, gave the authors the necessary space: when a bold experiment is in the right place and freedom of self-expression helps to solve the general task. We can only hope that this approach to territory development will become general practice for all cases.
The headquarters of Baltic Pearl LTD. Location plan © Sergey Tsytsin Architects
The headquarters of Baltic Pearl LTD. Location plan © Sergey Tsytsin Architects
The headquarters of Baltic Pearl LTD. Axonometry © Sergey Tsytsin Architects
The headquarters of Baltic Pearl LTD. Axonometry © Sergey Tsytsin Architects
The headquarters of Baltic Pearl LTD. Master plan © Sergey Tsytsin Architects
The headquarters of Baltic Pearl LTD. Master plan © Sergey Tsytsin Architects
The headquarters of Baltic Pearl LTD. Plan fragments © Sergey Tsytsin Architects
The headquarters of Baltic Pearl LTD. Plan fragments © Sergey Tsytsin Architects
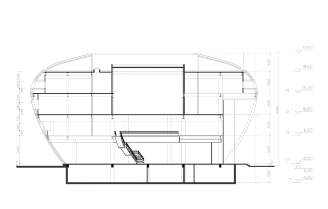
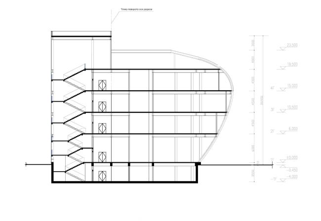
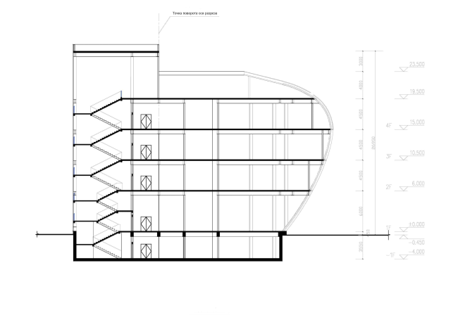
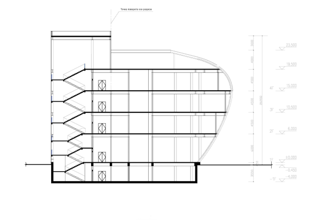
The headquarters of Baltic Pearl LTD. Section view © Sergey Tsytsin Architects
The headquarters of Baltic Pearl LTD. Section view © Sergey Tsytsin Architects
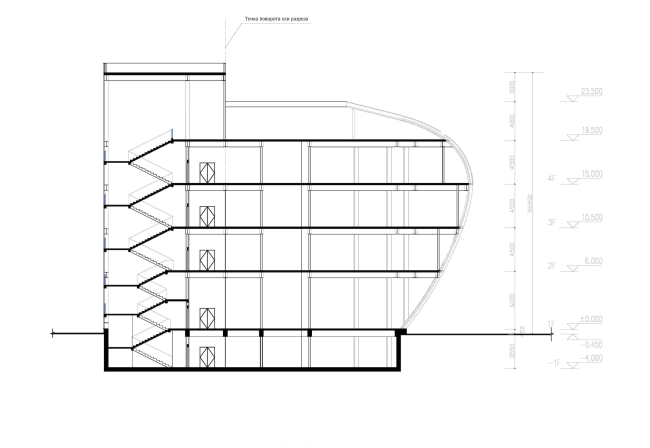
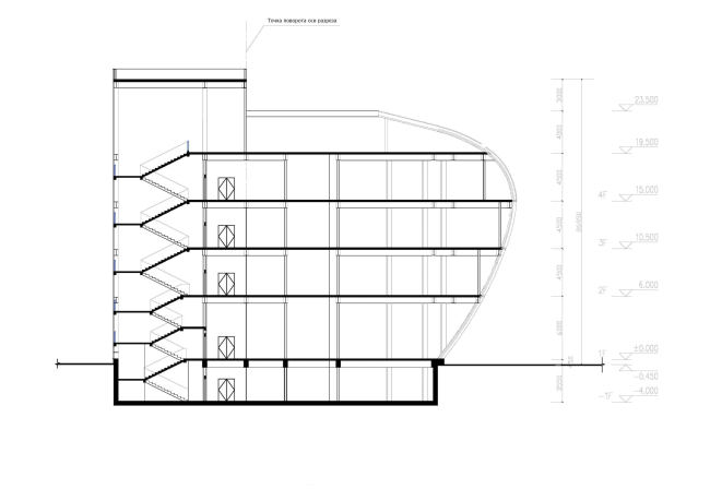
The headquarters of Baltic Pearl LTD. Section view © Sergey Tsytsin Architects
The headquarters of Baltic Pearl LTD. Section view © Sergey Tsytsin Architects
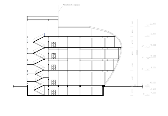
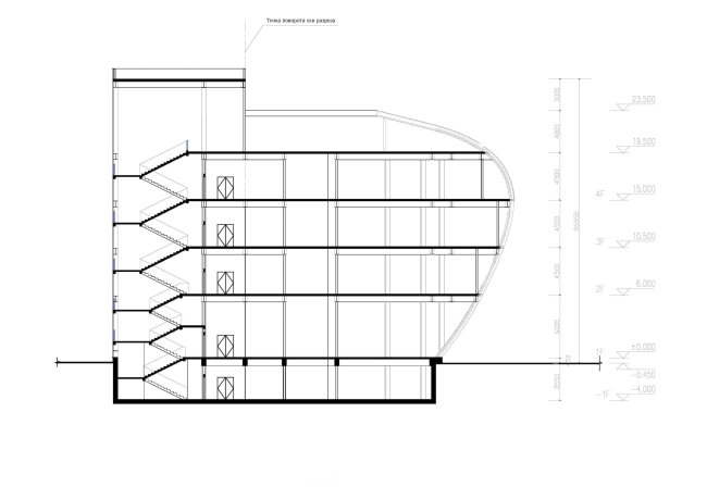
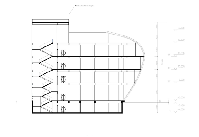
The headquarters of Baltic Pearl LTD. Section view © Sergey Tsytsin Architects
The headquarters of Baltic Pearl LTD. Section view © Sergey Tsytsin Architects