Published on Archi.ru (https://archi.ru)

15.08.2016

Taganka Gate

Julia Tarabarina
Architect:
Alexsey Ginzburg
Studio:
Ginzburg Architects

This multifunctional complex that Aleksey Ginsburg has been designing for more than seven years now is going to occupy a land site on the outside part of the Garden Ring right before the tunnel entrance, and become a vis-à-vis of the building of the Taganka Theater.

Multifunctional complex on the Zemlyanoy Val Street. Project, 2014 © Ginsburg Architects
Multifunctional complex on the Zemlyanoy Val Street. Project, 2014 © Ginsburg Architects


Aleksey Ginsburg has already shared a bit about this project of his in an interview with Archi.ru - the building's proximity to the Taganka Theater, a fine example of Moscow "brutalist" architecture is something that he considers particularly important. "I would bring brick samples in my car and I would put them down next to the theater walls to make sure that their tone matches the theater's - but is still not exactly the same" - the architect shares - I did not want it to be a 100% match". But then again, the context of the Taganskaya Square is pretty diverse, and the theater building is not the only element in it, even though one of the main ones. 

The complex form of the land site leans toward a rectangular triangle whose hypotenuse stretched along the red line of the Zemlyanoy Val Street, the right angle being there in the depth of the site. This form is convenient for organizing retail stores here because it will allow for making a huge line of shop windows stretching along the street. This same triangular shape will provide for the necessary square footage for the storage space and maintenance premises: inside, there are five floors of retail stores, a supermarket, a food court, and a movie theater - all grouped around a predictably triangular atrium. Its comparatively small space - the fact that it is small is plainly visible on the section-view drawings - is tilted a little, not unlike the Tower of Pisa: floor after floor it shifts off center in the direction of the Garden Ring - toward a flat and gently sloping street light whose glass is tilted southward. This way, the glass-covered courtyard, which is almost the inevitable part of a modern shopping center, gets maximum possible sunlight. There is a two-level parking garage underground.

Multifunctional complex on the Zemlyanoy Val Street. Location plan. Project, 2014 © Ginsburg Architects
Multifunctional complex on the Zemlyanoy Val Street. Location plan. Project, 2014 © Ginsburg Architects


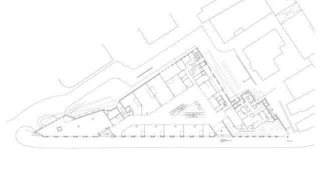
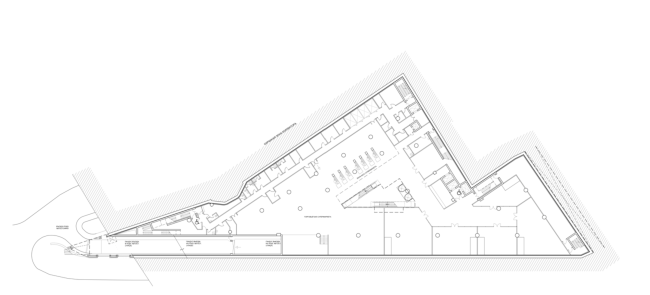
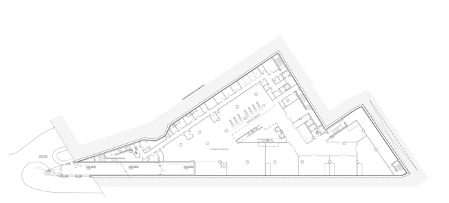
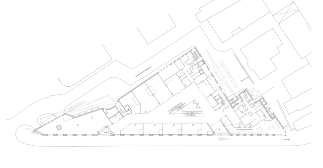
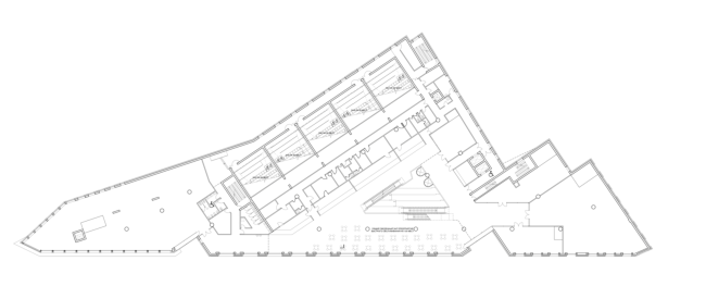
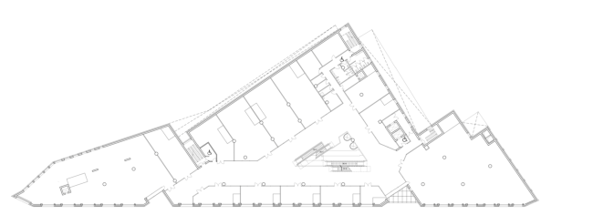
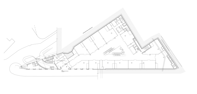
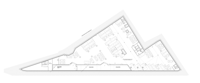
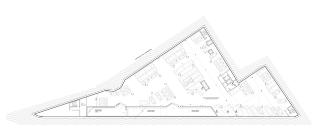
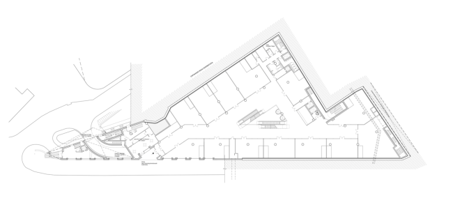
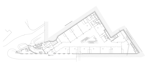
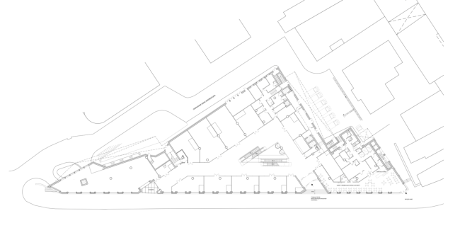
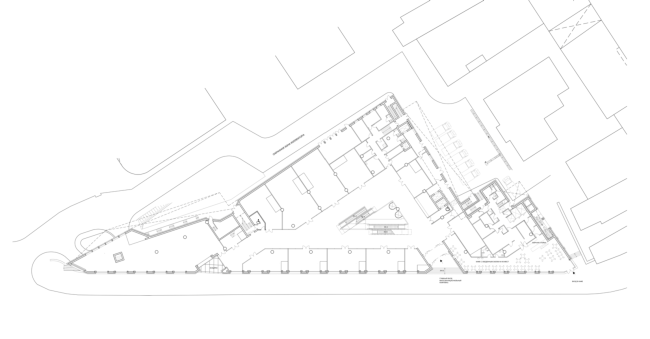
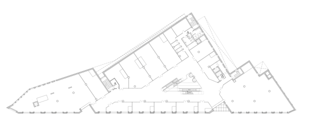
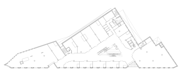
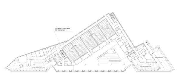
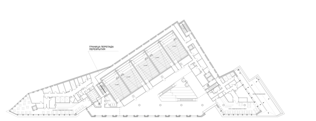
Multifunctional complex on the Zemlyanoy Val Street. Plan of the 1st floor © Ginsburg Architects
Multifunctional complex on the Zemlyanoy Val Street. Plan of the 1st floor © Ginsburg Architects


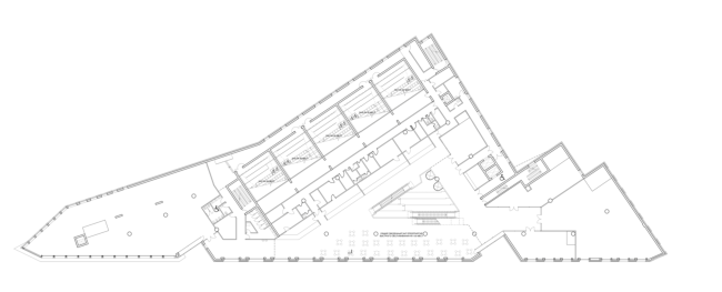
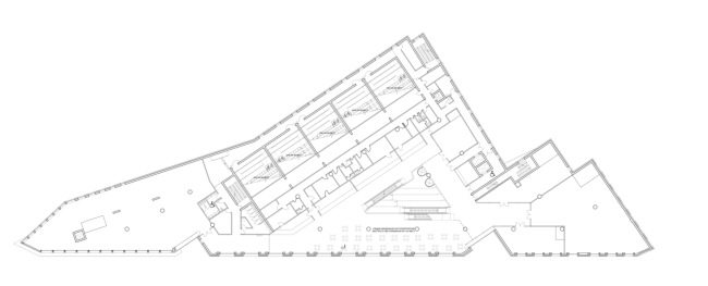
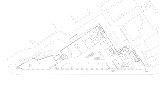
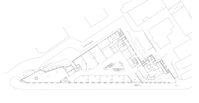
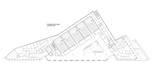
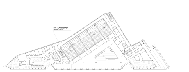
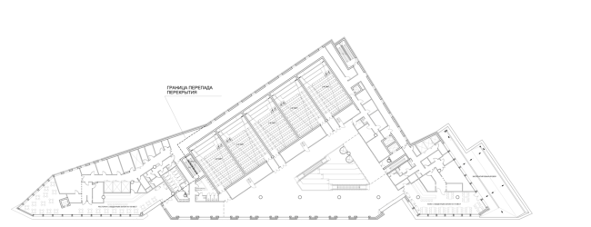
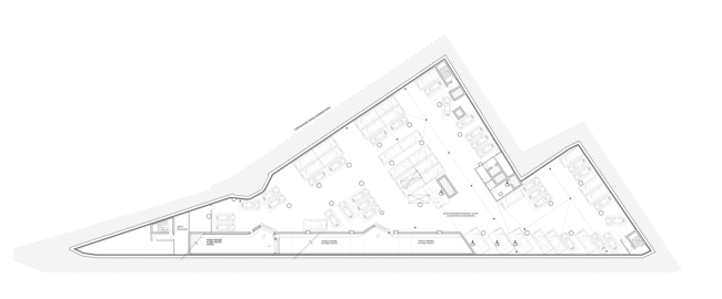
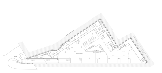
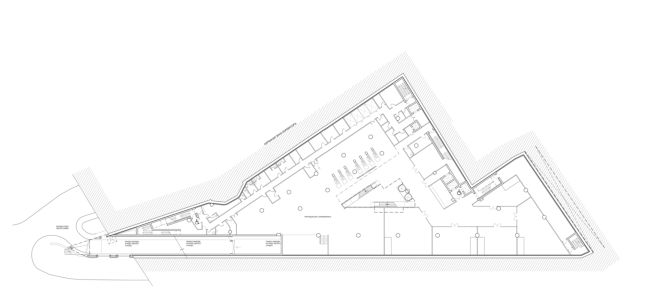
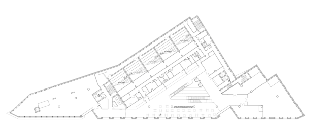
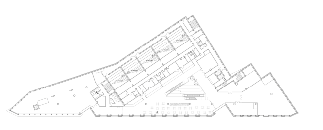
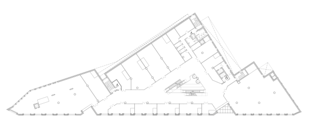
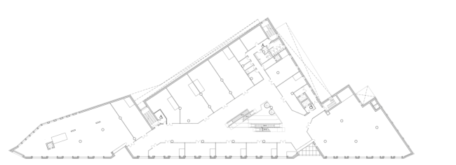
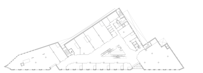
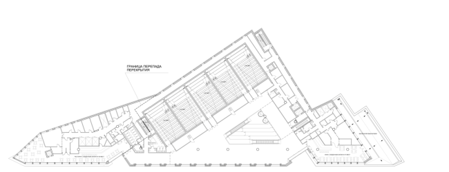
Multifunctional complex on the Zemlyanoy Val Street. Plan of the 2nd floor © Ginsburg Architects
Multifunctional complex on the Zemlyanoy Val Street. Plan of the 2nd floor © Ginsburg Architects


Multifunctional complex on the Zemlyanoy Val Street. Section view © Ginsburg Architects
Multifunctional complex on the Zemlyanoy Val Street. Section view © Ginsburg Architects


Multifunctional complex on the Zemlyanoy Val Street. Needs analysis. Project, 2014 © Ginsburg Architects
Multifunctional complex on the Zemlyanoy Val Street. Needs analysis. Project, 2014 © Ginsburg Architects


Right now, the site is empty for the exception of a small parking lot in a corner of a grass-covered hill. Formerly, however, it was occupied by the Taganka shopping arcade, a building that was ascribed by some architectural historians to Osip Bove himself. The trapeze-shaped contour of the arcade almost completely coincided with the now-empty triangle, even though there were plenty of bazaar stores beyond its confines as well. The arcade was taken down in the 1960's; right about that time they dug a tunnel underneath the square, turning the square itself into one of the most spacious and at the same time most confusing road junctions a-la "Moscow highway" style. The place remained an empty spot, especially vivid by the contrast with the large volume of the Taganka Theater that was built in the 1980's. The new multifunctional complex was to occupy exactly the stead of the former arcade, and it is the arcade's descendant not only because it revives the retail function in this place but also because of, let's say, the architectural and generic factors: the space between the partitions on the main façade of the new building is literally copied from the Taganka Shopping Arcade.  

Multifunctional complex on the Zemlyanoy Val Street. Search for rhythm. Project, 2014 © Ginsburg Architects
Multifunctional complex on the Zemlyanoy Val Street. Search for rhythm. Project, 2014 © Ginsburg Architects


One should mention that even the soviet power in its pre-collapse period recognized that the Taganskaya Square is not only about theater but about shopping as well - the panel buildings in this area are all equipped with very broad floor-to-ceiling windows on their ground floors. In the free-market 1990's, this theme was picked up by the various shops and kiosks next to the exits from the metro station - most of them have also fallen victim to the "hunt for outlaw construction". Never really dying, Taganka's shopping culture would move from the organized shops in the old Moscow arcade with its arches and inevitable courtyards - to the soviet over-regulated "fish bowls" - and to the raunchy charm of the retail wildlife of the 1990's. Now the time has come for a shopping center. Whether or not we should lament the sad demise of the small shops and kiosks is everyone's personal choice (I am sorry they are gone) but it was still pretty obvious anyway that sooner or later these unpretentious affairs in the center of the nation's capital must give way to something else. But then again, we will remind you that Aleksey Ginsburg's work on this project has nothing to do with the demolition of these kiosks - because it started still under the former city mayor.   

I will stress that when he was in the process of getting all the necessary permits and approvals, Aleksey Ginsburg was able to insist on the "Moscow" format of the store, with large shop windows and a street promenade. A store akin to European malls and large department stores, very much like the Parisian Le Bon Marché, and his "relative", the GUM department store at Moscow's red square, whose predecessor, incidentally, was also built by Osip Bove.

Multifunctional complex on the Zemlyanoy Val Street. Entrance form the taganskaya Square. Project, 2014 © Ginsburg Architects
Multifunctional complex on the Zemlyanoy Val Street. Entrance form the taganskaya Square. Project, 2014 © Ginsburg Architects


The third important part of the context - after the theater and the shopping arcade - is the small houses built back in the XIX century that stretch on the same side of the Zemlyanoy Val in an almost unbroken line in the direction of the Yauza River. In order not to "crush" them with a massive volume, the architect divided the main façade of the complex into three projections. These three are separated by the glass entrances recessed inside in a triangular way - which is clearly visible on the floor plan. In an almost mirror-like fashion, they respond to the theater building across the street that also has two brick triangular projections of similar size. The plan clearly shows: the two buildings are pieces of one and the same jigsaw puzzle, their projections and recessions being the clue that prompts to bring them together. However, they are separated by the Garden Ring, and the new building's main façade turned out to be porous, as we were looking at the section view of the building.

Multifunctional complex on the Zemlyanoy Val Street. Master plan. Project, 2014 © Ginsburg Architects
Multifunctional complex on the Zemlyanoy Val Street. Master plan. Project, 2014 © Ginsburg Architects


Paired with the theater, the new building forms propylaea of the entrance to the square - and this is what its town-planning meaning is all about: it will become the second (now missing) pylon of the new version of the Taganka gate.

The screen of the façade, very much like a giant shop window, is positioned alongside the Garden Ring like a shield resting on a triangular base of the building. Its surface is even stretched a little between north and south angles of the triangle that a play a role of important accents turned to the people driving down the thoroughfare. The form of the pointed and sophisticatedly faceted sides of the building is enough to attract people's attention as it is but in addition there will be two media screens playing commercials set on each of the corners. The pointed nose of the north side-end gets suspended in space - conflicting the inertia of the slope with an elegant grace. Underneath it, there is a slim concrete stairway that leads to the second floor straight through the tall glass that is also backlighted at night. Below the stairway, there is the entrance/exit of the underground parking garage: the architect took advantage of the slope both from a functional and a plastique standpoint.

Multifunctional complex on the Zemlyanoy Val Street. Project, 2014 © Ginsburg Architects
Multifunctional complex on the Zemlyanoy Val Street. Project, 2014 © Ginsburg Architects


The height difference of the land site is eight meters which is neither much nor little - Aleksey Ginsburg's portfolio includes project built on even steeper slopes, and, furthermore, the architect says he likes working with sloping terrain because he considers it to be more of an interesting challenge than an issue. Our case is no exception: the building does not crawl down the slope but soars up to end in a perfectly horizontal cornice. From a practical standpoint, this means that the north end of the building gets two extra floors. From the plaza side, the building has four floors in it, although, if we are to take into consideration the delicate contextual cutaway on top, then there are but three floors, while on the north Yauza side there are six of them which makes quite a different "flying" impression. The pattern of the façades also evolves: the south projection is finely chopped, floor by floor, responding to the scale of the historical city, the central projection - the one directly opposite to the theater - gets a steady rhythm, its floors grouped in twos and even threes vertically. The north one, which is the tallest, gets a second horizontal lintel block. But then again, the varied rhythm is united by the overall structure and logic of the project.

Multifunctional complex on the Zemlyanoi Val Street. Project, 2014 © Ginsburg Architects
Multifunctional complex on the Zemlyanoi Val Street. Project, 2014 © Ginsburg Architects


Multifunctional complex on the Zemlyanoy Val Street. View from the Zemlyanoy Val. Project, 2014 © Ginsburg Architects
Multifunctional complex on the Zemlyanoy Val Street. View from the Zemlyanoy Val. Project, 2014 © Ginsburg Architects


Multifunctional complex on the Zemlyanoy Val Street. Project, 2014 © Ginsburg Architects
Multifunctional complex on the Zemlyanoy Val Street. Project, 2014 © Ginsburg Architects


Multifunctional complex on the Zemlyanoy Val Street. Project, 2014 © Ginsburg Architects
Multifunctional complex on the Zemlyanoy Val Street. Project, 2014 © Ginsburg Architects


Multifunctional complex on the Zemlyanoy Val Street. Project, 2014 © Ginsburg Architects
Multifunctional complex on the Zemlyanoy Val Street. Project, 2014 © Ginsburg Architects


Multifunctional complex on the Zemlyanoy Val Street. View from the Taganskaya Square. Project, 2014 © Ginsburg Architects
Multifunctional complex on the Zemlyanoy Val Street. View from the Taganskaya Square. Project, 2014 © Ginsburg Architects


Multifunctional complex on the Zemlyanoy Val Street. Project, 2014 © Ginsburg Architects
Multifunctional complex on the Zemlyanoy Val Street. Project, 2014 © Ginsburg Architects


The work on the project took a long time, the authors considering many coating versions. In this case, the final version was indeed a lucky, well-deserved, and an up-to-date one. The main decorative element is the slope steepers - their arrays neatly stand out one after another half the width of the bond-stone. This deceptively simple technique looks really great with the play of light and shade: the façade gazes westward, and the slanting rays of the setting sun will enhance the texture in a really cool way. 

To say that the task that this project posed was a challenging one and that it incurred great responsibility would be an understatement. A high-profile place, a monument of modernist architecture that, as he confesses, Aleksey Ginsburg studied while still a student... And, generally speaking, this is a key place for the Moscow history of the 1970's - after all, it's the famous "Taganka", and this is where Moscow followed Vladimir Vysotsky to his grave. The city space in this area is so over-saturated with different layers of meaning that even the few empty spaces are just as eloquent; at the same time building something devoid of any character, or, worse still, some historical stylization, would have been the poorest possible choice. In this case, it seems to me, the architect was able to find a good balance and at the same time avoid any unnecessary timidity, opting for the best possible resonant solution - a "mirror" shield that deserves to be a match for the famous theater and interpret the current epoch in a unique way of its own. Yes, our "shopping" epoch that is comfort-twisted but one that hopefully has not forgotten itself altogether. 

Multifunctional complex on the Zemlyanoy Val Street. Fragment of the facade. Project, 2014 © Ginsburg Architects
Multifunctional complex on the Zemlyanoy Val Street. Fragment of the facade. Project, 2014 © Ginsburg Architects


Multifunctional complex on the Zemlyanoy Val Street. Facade versions. Project, 2014 © Ginsburg Architects
Multifunctional complex on the Zemlyanoy Val Street. Facade versions. Project, 2014 © Ginsburg Architects


Multifunctional complex on the Zemlyanoy Val Street. facades and development drawings. Project, 2014 © Ginsburg Architects
Multifunctional complex on the Zemlyanoy Val Street. facades and development drawings. Project, 2014 © Ginsburg Architects


Multifunctional complex on the Zemlyanoy Val Street. Development drawings. Project, 2014 © Ginsburg Architects
Multifunctional complex on the Zemlyanoy Val Street. Development drawings. Project, 2014 © Ginsburg Architects


Multifunctional complex on the Zemlyanoy Val Street. View from the Taganskaya Square. Project, 2014 © Ginsburg Architects
Multifunctional complex on the Zemlyanoy Val Street. View from the Taganskaya Square. Project, 2014 © Ginsburg Architects


Multifunctional complex on the Zemlyanoy Val Street. Facade © Ginsburg Architects
Multifunctional complex on the Zemlyanoy Val Street. Facade © Ginsburg Architects


Multifunctional complex on the Zemlyanoy Val Street. Facade © Ginsburg Architects
Multifunctional complex on the Zemlyanoy Val Street. Facade © Ginsburg Architects


Multifunctional complex on the Zemlyanoy Val Street. Project, 2014 © Ginsburg Architects
Multifunctional complex on the Zemlyanoy Val Street. Project, 2014 © Ginsburg Architects


Multifunctional complex on the Zemlyanoy Val Street. Project, 2014 © Ginsburg Architects
Multifunctional complex on the Zemlyanoy Val Street. Project, 2014 © Ginsburg Architects


Multifunctional complex on the Zemlyanoy Val Street. Facade © Ginsburg Architects
Multifunctional complex on the Zemlyanoy Val Street. Facade © Ginsburg Architects


Multifunctional complex on the Zemlyanoy Val Street. Location plan. Project, 2014 © Ginsburg Architects
Multifunctional complex on the Zemlyanoy Val Street. Location plan. Project, 2014 © Ginsburg Architects


Multifunctional complex on the Zemlyanoy Val Street. Master plan. Project, 2014 © Ginsburg Architects
Multifunctional complex on the Zemlyanoy Val Street. Master plan. Project, 2014 © Ginsburg Architects


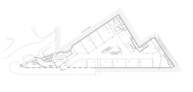
Multifunctional complex on the Zemlyanoy Val Street. Plan of the -1st floor © Ginsburg Architects
Multifunctional complex on the Zemlyanoy Val Street. Plan of the -1st floor © Ginsburg Architects


Multifunctional complex on the Zemlyanoy Val Street. Plan of the -2nd floor © Ginsburg Architects
Multifunctional complex on the Zemlyanoy Val Street. Plan of the -2nd floor © Ginsburg Architects


Multifunctional complex on the Zemlyanoy Val Street. Plan of the -3rd floor © Ginsburg Architects
Multifunctional complex on the Zemlyanoy Val Street. Plan of the -3rd floor © Ginsburg Architects


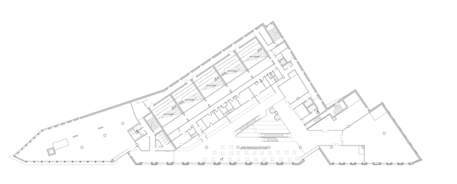
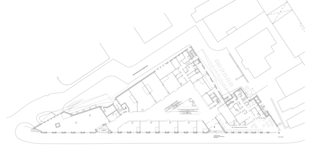
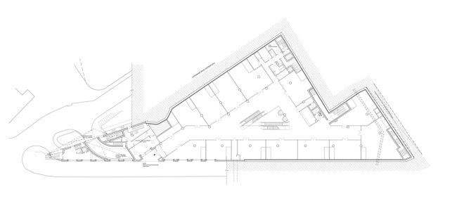
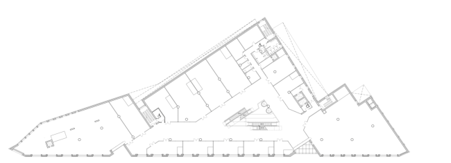
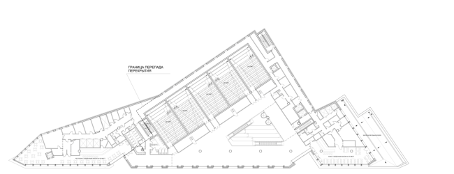
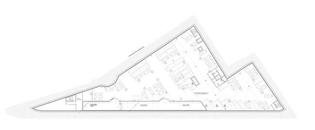
Multifunctional complex on the Zemlyanoy Val Street. Plan of the 3rd floor © Ginsburg Architects
Multifunctional complex on the Zemlyanoy Val Street. Plan of the 3rd floor © Ginsburg Architects


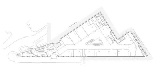
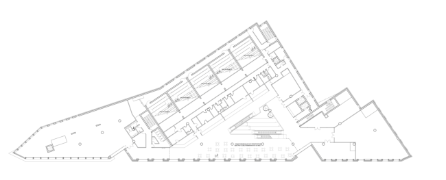
Multifunctional complex on the Zemlyanoy Val Street. Plan of the 4th floor © Ginsburg Architects
Multifunctional complex on the Zemlyanoy Val Street. Plan of the 4th floor © Ginsburg Architects


Multifunctional complex on the Zemlyanoy Val Street. Plan of the basement floor © Ginsburg Architects
Multifunctional complex on the Zemlyanoy Val Street. Plan of the basement floor © Ginsburg Architects


Multifunctional complex on the Zemlyanoy Val Street. Plan of the roof © Ginsburg Architects
Multifunctional complex on the Zemlyanoy Val Street. Plan of the roof © Ginsburg Architects


Multifunctional complex on the Zemlyanoy Val Street. Section view © Ginsburg Architects
Multifunctional complex on the Zemlyanoy Val Street. Section view © Ginsburg Architects