Published on Archi.ru (https://archi.ru)

04.08.2016

More Atmosphere

Lilya Aronova
Architect:
Andrey Romanov
Ekaterina Kuznetsova
Studio:
ADM

A housing project on the Novoslobodskaya Street: a fragment of a historical brick façade, modern stone and glass... and a grand green semi-hill cascading down from the roofs of the stores into the yard.

Residential project at Novoslobodskaya Street. Project, 2016 © ADM
Residential project at Novoslobodskaya Street. Project, 2016 © ADM


A few years ago, ADM Architects finished a rather long and painstaking work on turning the former industrial buildings between the Mendeleevskaya metro station and the Sushchevskaya Street into a business center named "Atmosphere". The architects even went as far as to move their head office later on to this business center that they built.  

Continuing to explore this area, ADM architects designed nearby - between "Atmosphere" and the Novoslobodskaya Street - a new housing project. It is situated in the place of a former weaving mill of the XIX century, the architects planning to tear down most of the factory buildings, but at the same time recreate the main one - a fine four-story red-brick sample of industrial architecture of the late XIX century. "Historical architecture is something that you simply cannot examine from a logical standpoint; back then people would design buildings based more on emotion - Andrew Romanov comments - and this paradox, that's the beauty of it!"  

Residential project at Novoslobodskaya Street. Master plan © ADM
Residential project at Novoslobodskaya Street. Master plan © ADM


Residential project at Novoslobodskaya Street. The current state © ADM
Residential project at Novoslobodskaya Street. The current state © ADM


Residential project at Novoslobodskaya Street. The current state © ADM
Residential project at Novoslobodskaya Street. The current state © ADM


Residential project at Novoslobodskaya Street. Organization of the yard © ADM
Residential project at Novoslobodskaya Street. Organization of the yard © ADM


Residential project at Novoslobodskaya Street. The yard facade. Project, 2016 © ADM
Residential project at Novoslobodskaya Street. The yard facade. Project, 2016 © ADM


Residential project at Novoslobodskaya Street. Organization of the yard © ADM
Residential project at Novoslobodskaya Street. Organization of the yard © ADM


Coated with large slabs of natural light-colored stone, the façades display the signature ADM technique that was used in many of its previous projects. The "plaid" pattern of windows (grouped in twos) is livened up (but not thrown off rhythm) by a freehand alternation of pylons of varying size whose slim stone belts unobtrusively mark the borderline between the levels, while the subtle striped faceting of the rugged rock-face sends "ripples" over the wall surface, so delicate that they are barely visible. Some extra color is also introduced by vertical imposts made of ARCH-SKIN ceramic granite the tone of natural wood. But this time around, the architects decided to add to the laconic purity of their project just a tiny note of glamour. "Because this project for us is sort of our "reputation" one - Andrew Romanov explains - we decided to add this twist to it. This language seems quite up-to-date to me". 

The material embodiment of the play devised by the architects is the wrought iron balconies and the flower pots with a stone pattern that decorated the façades. They are arranged in the following way: the living room windows on the even floors are slightly sunken in as compared to the wall surface, and the space they yield is partially taken by the stone box with flowers, while next to it appears a semicircular, light, and totally French-style single-person balcony whose metallic railing follows the stylized floral ornament of the flower box. On every next even floor, these two elements reverse: for example, on the forth floor the balcony is on the left, and the flowerbed is on the right, while on the sixth it's the other way around. On the other floors the windows are also of the floor-to-ceiling kind but they do not fully open being stopped by the glass screens with silk printing done by the authors' designs.

Residential project at Novoslobodskaya Street. Fragment of the facade. Project, 2016 © ADM
Residential project at Novoslobodskaya Street. Fragment of the facade. Project, 2016 © ADM


Residential project at Novoslobodskaya Street. Fragment of the facade. Project, 2016 © ADM
Residential project at Novoslobodskaya Street. Fragment of the facade. Project, 2016 © ADM


Residential project at Novoslobodskaya Street. Organization of the yard © ADM
Residential project at Novoslobodskaya Street. Organization of the yard © ADM


Residential project at Novoslobodskaya Street. The yard facade. Project, 2016 © ADM
Residential project at Novoslobodskaya Street. The yard facade. Project, 2016 © ADM


Residential project at Novoslobodskaya Street. Organization of the yard © ADM
Residential project at Novoslobodskaya Street. Organization of the yard © ADM


Residential project at Novoslobodskaya Street. Project, 2016 © ADM
Residential project at Novoslobodskaya Street. Project, 2016 © ADM


In addition to the two residential buildings, the land site has yet another volume upon it - a single-story stylobate with a retail function. It stretches along the south border of the site and closes the yard - this solution gave an impulse for yet another plastique fable. The roof of the stylobate became the top level of the yard from where it smoothly descends to the natural ground level. The architects dissect this man-made hill with diagonal trails that form elongated diamond-shaped sections: this is both beautiful and functional because anybody who has ever climbed up the hill on skis without a chairlift knows - a diagonal route is longer but less grueling. Due to the fact that the height difference turns out to be a significant one - almost a whole floor - the filled-up earth will be enough to plant any plants in it, up to full-scale trees. Furthermore, each of the diamonds also has a volume of its own; meaning that the resulting spaces will feel closed enough for the people taking a test in them to feel the bliss of solitude. The natural decoration of the inside yard will be enhanced by grates of that same "wooden" ceramic granite ARCH-SKIN that will be used for decorating the first floor of the main building. So, the yard is standing every chance of turning into a blossoming hill. The theme of the mini-garden is picked up by the punctured lines of the flower pots - the architects hope that the residents of the apartments will support this idea and take it higher up to the very roofs. 

The Sminex Company has already launched the construction process.

Residential project at Novoslobodskaya Street. Fragment of the facade. Project, 2016 © ADM
Residential project at Novoslobodskaya Street. Fragment of the facade. Project, 2016 © ADM


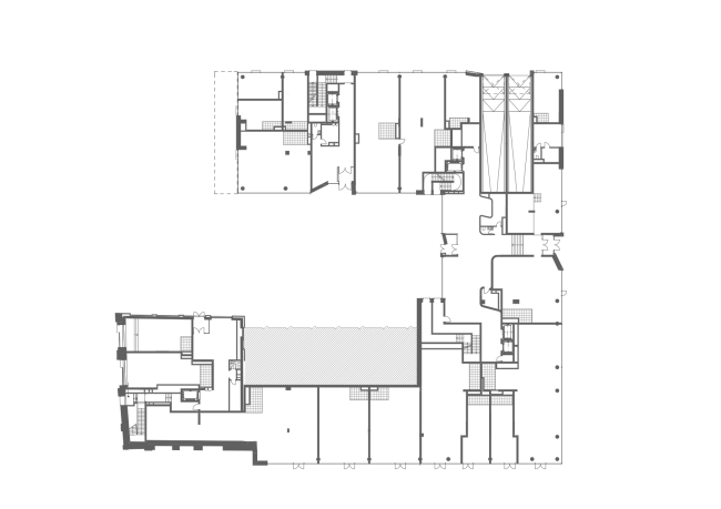
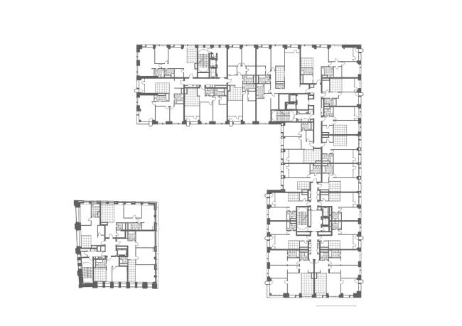
Residential project at Novoslobodskaya Street. Plan of the 2nd floor © ADM
Residential project at Novoslobodskaya Street. Plan of the 2nd floor © ADM


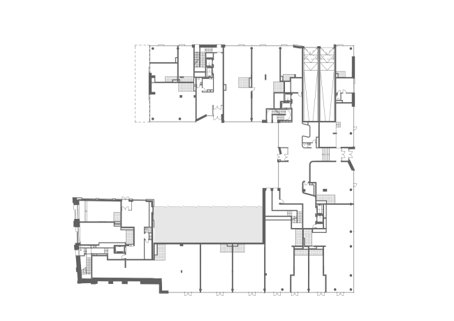
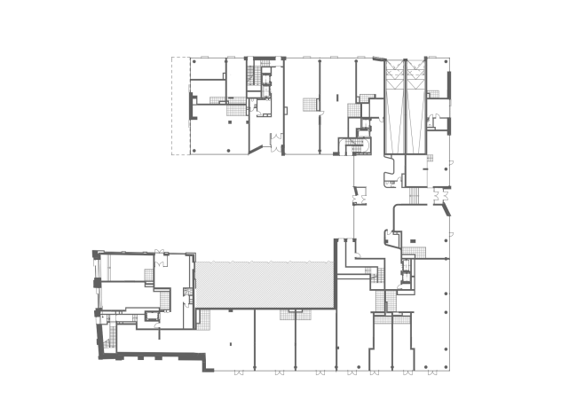
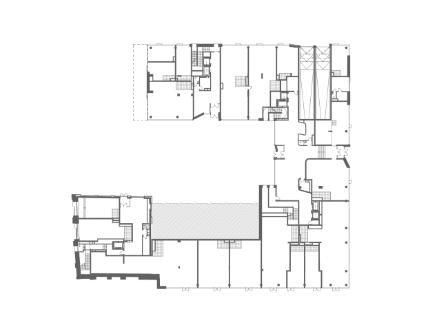
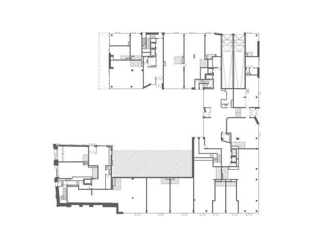
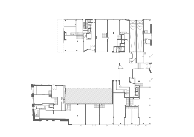
Residential project at Novoslobodskaya Street. Plan of the 1st floor © ADM
Residential project at Novoslobodskaya Street. Plan of the 1st floor © ADM


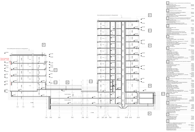
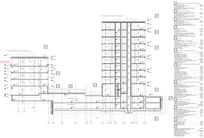
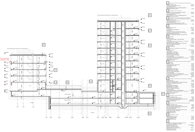
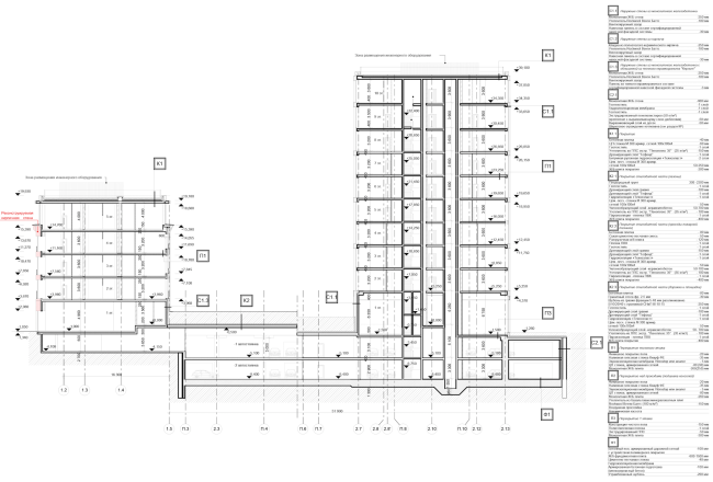
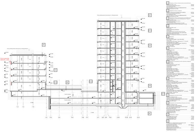
Residential project at Novoslobodskaya Street. Section view © ADM
Residential project at Novoslobodskaya Street. Section view © ADM