Published on Archi.ru (https://archi.ru)

06.06.2016

Rurbanism

Julia Tarabarina,
Architect:
Daniel Lorenz
Natalia Sidorova
Konstantin Khodnev
Studio:
DNK Architectural Group

Working on a real-life project, the architects of DNK ag saw in it a great opportunity to test the principles of compact but at the same time diverse and comfortable construction.

"Gorky" residential area. Birds-eye view. Project, 2015 © DNK ag
"Gorky" residential area. Birds-eye view. Project, 2015 © DNK ag


The housing project in question is anything but speculative - its construction is already underway - and it is quite a large-scale one, too: 110 000 square meters of floor space on a 14-hectare land site located 10 kilometers away from Moscow down the Kashirskoe Highway. The architects of DNK ag are convinced that in this specific case they have been lucky: they were able to work consecutively on each stage of the project and all of its constituent parts from the master plan to the landscaping design, and reach an understanding with the customer on the majority of issues. As for the height and budget restrictions, just as the considerable 28-meter relief drop, the architects also consider them as a great piece luck because these factors put the project into a certain framework and molded it to ultimately become what it is. Thus, the architects view the residential area that they've built not just as yet another implementation of their project but a model example of how residential projects are meant to be designed and built. A positive example which demonstrates firsthand the building strategy that the architects (and most of us all, for that matter) would gladly stick to but which is rarely found in this country. 

Here is the thing - what we mostly see just outside the circle of the Moscow Ring Road is 25-30-story monsters. These are the ever-growing "edges of the Moscow saucer" that the town-planners warned us about as early on as in the eighties. Behind this "great walls of China" that the municipally-funded giants form, and sometimes even intermixed with them, one will be able to see all sorts of houses, from dacha huts to luxury villas; the make-believe Singapore shoots up through the soviet-era construction and the entire picture cannot be called harmonious by any stretch of the imagination – it is neither town nor country.

Thus, the architects of DNK ag, half-jokingly, half-seriously, call their project "rurbanism" because: "the concept is based on the idea of this project being a hybrid between town and country". 

The architects were to design residential stock that had to be comparatively inexpensive - which ruled out villas or even townhouses very early on. However, the architectural proposal was to be diversified and had be designed for different buyer categories: from "lone wolf" bachelors (that were expected to buy studios) to large families. The height restrictions were defined by the fact that in the east direction, behind the woodland, there is the so-called "Gorky Leninskie" reserve - close to the woodland, you could only build three-story houses, closer to the highway - five-story ones, and the question of the buildings' height was not negotiable. The third peculiarity was about the complex but interesting terrain, with a slope and full of hills.

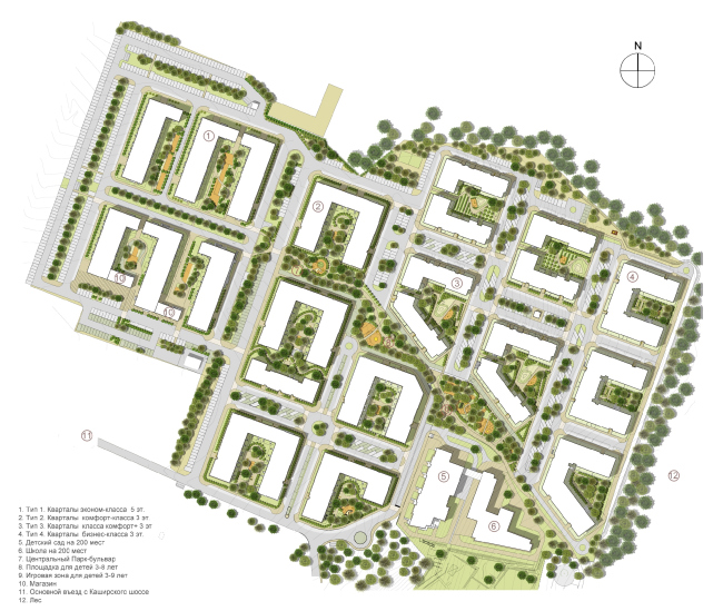
"Gorky" residential area. Layout. Project, 2015 © DNK ag
"Gorky" residential area. Layout. Project, 2015 © DNK ag


The slope issue was addressed in the following way: the architects put upon it an orthogonal Hippodamus grid pattern with 60x60 meters cells, and then did exactly what the Ancient Greeks would do who also would build their cities on slopes: they altered the grid wherever it was needed. This is why the cells of the perimeter construction - "block" houses - are mostly based on the quadratic "double-L"-shaped plan, the top "strokes" of each "L" looking in whichever direction provides better meadow or forest views in every specific case. Along the diagonal of the boulevard, however, one of the L's bends its longer stroke outwards, and, as one approaches the highway, the buildings form tighter figures turning into zigzags and eights. Each building has no more than four sections in it - which meets the principle of a compact town.

"Gorky" residential area. Layout. Project, 2015 © DNK ag
"Gorky" residential area. Layout. Project, 2015 © DNK ag


The planning grid, just as it should do in accordance with the Hippodamus rules, is strung upon two boulevards crossing at a right angle. It is planned that these two boulevards will be landscaped and turned into vehicle-free little parks with playgrounds and other urbanist joys - the architects call this structure a "linear park". What is also important is the fact that the routes of the boulevards are not at all arbitrary: they were born not by abstract geometry in a designer's mind but they are closely tied to the terrain context, literally born from it. The first boulevard runs parallel to the strip of woodland that, in turn, runs parallel to the highway: the architects kept the big trees intact, added new young ones to them, and used this improved piece of woodland as a borderline between the first and the second stages of construction. The first stage will consist of the five-story buildings standing next to the highway. 

The second, perpendicular, boulevard starts from the highway and runs in the direction of the woodland but about two thirds into its way veers off southeast. This diversion is not accidental either: the boulevard point in the direction of Gorky Leninskie and it must become the beginning of the road that will lead to it through the woodland in the future - down to the Vladimir Lenin museum that was designed by Leonid Pavlov. In this same direction, kids will be able to go to school in Gorky Leninskie - it is but two kilometers away by a straight line; now going round to it takes up six kilometers, and the new trail will be about 3 kilometers long - one can walk this distance within a little over half an hour.

In addition, the boulevards are connected by two community centers of the new residential area, one of them being a small shopping center, a few stores, and a "service center" in the five-story houses standing closer to the highway, the other being a kindergarten and a nursery school on the hill in the southeast part of the territory, in the end of the diagonal boulevard, on the way to Gorky Leninskie. Thus, the younger kids will go to the nursery school and kindergarten down the boulevard, while the older kids, seeing their younger brothers and sisters off to school, will move on on their way through the forest to the junior high in Gorky Leninskie. The nursery school and the kindergarten are being designed by another architectural company but in a modern style very close to that of DNK ag, even with some architectural rhymes, so the integrity of the complex will not be violated.

The boulevards are vehicle-free, and there are no underground parking garages provided. In order to prevent a situation when the cars hurdle in rows on asphalt fields, like they would in front of a supermarket, the architects developed a map of parking pockets that sometimes alternate with trees and sometimes are enemy spread over the territory - but always stay on the outside contours of the buildings: the yards are private and completely car-free.

For all the noticeable integrity of their modules, scale, and planning pattern, the houses look pretty different. According to the specifications, the new residential area includes four classes of apartments - economy, comfort, comfort plus, and business. The architects distributed them in a "gradient" pattern, smoothly stretching the typology from the five-story economy houses to the most comfortable and spacious houses near the woodland. Still, all the buildings are multi-apartment ones, all the apartments being of the one-tier kind. Elevators are only there in the five-story houses of the first stage; in these houses, one-room apartments alternate with studios. All the other houses, from Type 2 to Type 4, are three stories high, but the views from their windows improve as one descends the slope, the size of the apartments growing accordingly larger, the eastern part of the area mostly having in it two and three-room apartments.

"Gorky" residential area. Master plan. Project, 2015 © DNK ag
"Gorky" residential area. Master plan. Project, 2015 © DNK ag


"Gorky" residential area. Section view. Project, 2015 © DNK ag
"Gorky" residential area. Section view. Project, 2015 © DNK ag


Stretching over the slope in a typological gradient, the houses also visually cascade down in a step-like fashion. The "steps" of the flat roofs are echoed by terraces and cantilevers on the sidewalls, and the volumes look as if they were composed of large and "flat" apartment layers. In this, they echo the structure of the landscape on the slope - sometimes also terrace-like, with lots of prop-up walls. It must be mentioned at this point that experimenting with the possibilities of their residential stock, the architects provided for cute little gardens for the first-floor apartments, some of these gardens also capable of being used as mini-kitchen-gardens as well. The little gardens that accompany the houses from Type 1 to Type 3 look rather modest but the yards of Type 4 boast real cascade gardens, the authors considering the possibility of the people creating their little kitchen-gardens and flowerbeds not only on the land plots in front of the hallway entrance but also in the middle of the yard - which, again, refers us to the practice of urban farms so popular now in the European cities and created by the city people themselves. This is why on the plan the houses of Type 2 and 3 have these little gardens next to their hallway entrances, and the expensive houses of Type 4, standing next to the forest, get such a splendid terraced garden in the middle of the yard. But then again, the slope is not only developed by the terraces, it has also winding "serpentine" trails on it - which lets the architects meet all the standards connected with the accessibility for the people of limited mobility.

"Gorky" residential area. Houses of Type 4. Project, 2015 © DNK ag
"Gorky" residential area. Houses of Type 4. Project, 2015 © DNK ag


"Gorky" residential area. Houses of Type 4. Project, 2015 © DNK ag
"Gorky" residential area. Houses of Type 4. Project, 2015 © DNK ag


The terrace houses next to the forest are particularly beautiful. Their usable roofs are accessible by spiral staircases. The vertically striped façades look as if they were composed of wooden planks of different shades of color, from vintage dark to almost pink; the balconies stand out in triangles - as if it had been pouring down here, and the wooden walls warped, what with the wallboards aging unevenly because some of them had gotten more linseed oil, and some less. This effect, even if a bit exaggerated, is achieved by using the fiber cement boards Eternit Cedral that display a wooden texture. Vertically placed, the boards slightly overlap one another, completely following the Norwegian decorating pattern; the triangular protrusions of the balconies conceal air-conditioning blocks. The multicolored fiber cement is echoed by the mottled terra-cotta of the bricks of the prop-up walls accentuated by the grass-green frames of the entrance jambs. The feel of countryside warms mixed with the dampness of fresh green plants turns out to be rather intense, even though somewhere at the back of your mind you still realize that a three-story building is not a dacha with a veranda. Still, from the imagery standpoint, these houses represent the "countryside" part of the project: they have kitchen-gardens, and the step-like terraces on their sidewalls are literally meant for someone to step upon to watch the sun come up above the forest. 

"Gorky" residential area. Houses of Type 4. Project, 2015 © DNK ag
"Gorky" residential area. Houses of Type 4. Project, 2015 © DNK ag


"Gorky" residential area. Houses of Type 4. Project, 2015 © DNK ag
"Gorky" residential area. Houses of Type 4. Project, 2015 © DNK ag


"Gorky" residential area. Houses of Type 4. Project, 2015 © DNK ag
"Gorky" residential area. Houses of Type 4. Project, 2015 © DNK ag


"Gorky" residential area. Facade. Project, 2015 © DNK ag
"Gorky" residential area. Facade. Project, 2015 © DNK ag


The higher up the slope, the more reserved the façades look. The fiber cement boards are used here as well, now in combination with brick, but the latter does not prevail - which, again, supports the "rural" atmosphere. The bricks are just as multicolored here, while the boards are monochrome, but the façades of neighboring sections are designed differently - which makes them distantly resemble separate houses placed in a row (a similar technique, only on a greater scale, was used by the DNK ag architects in the Project of "Rassvet 3.34". The cantilevers that appear on the sidewalls also support the theme of an "old town" or just the city center - but they do it very delicately, bringing to mind Europe's famous low-rise buildings, such as "Residential Hybrid" MVRDV that the authors possibly drew their inspiration from.

"Gorky" residential area. Houses of Types 2,3. Project, 2015 © DNK ag
"Gorky" residential area. Houses of Types 2,3. Project, 2015 © DNK ag


"Gorky" residential area. Houses of Types 2,3. Project, 2015 © DNK ag
"Gorky" residential area. Houses of Types 2,3. Project, 2015 © DNK ag


"Gorky" residential area. Houses of Types 2,3. Project, 2015 © DNK ag
"Gorky" residential area. Houses of Types 2,3. Project, 2015 © DNK ag


"Gorky" residential area. Houses of Types 2,3. Project, 2015 © DNK ag
"Gorky" residential area. Houses of Types 2,3. Project, 2015 © DNK ag


"Gorky" residential area. Facade. Project, 2015 © DNK ag
"Gorky" residential area. Facade. Project, 2015 © DNK ag


"Gorky" residential area. Facade. Project, 2015 © DNK ag
"Gorky" residential area. Facade. Project, 2015 © DNK ag


The five-story houses look most urban of all here; furthermore, closer to the highway that serves as the "urban" boundary of the complex, they are made of bricks, and then they get fractured into individual vertical "sectional" houses, light-beige, orange, and really bright-looking. We will remind you at this point that there are shops, services, and even a doctor's office situated here.  

"Gorky" residential area. Houses of Type 1. Project, 2015 © DNK ag
"Gorky" residential area. Houses of Type 1. Project, 2015 © DNK ag


"Gorky" residential area. Houses of Type 1. Project, 2015 © DNK ag
"Gorky" residential area. Houses of Type 1. Project, 2015 © DNK ag


"Gorky" residential area. Houses of Type 1. Project, 2015 © DNK ag
"Gorky" residential area. Houses of Type 1. Project, 2015 © DNK ag


"Gorky" residential area. Houses of Type 1. Project, 2015 © DNK ag
"Gorky" residential area. Houses of Type 1. Project, 2015 © DNK ag


One should say that the complex looks as diverse as integral and recognizable - it does not fall apart visually at all. Uniting it was made possible by using, in addition to the single planning grid, a number of handful techniques: unity of the facade materials where the fiber cement boards alternate with brick, the latter prevailing closer to the highway, the former - closer to the forest. Besides, the façades of all the houses are livened up by transparent bay windows that look like drawers that have been pulled out of the chest - this popular technique of modern architecture helps to make the building look more dramatic and give a person that stands by such a bay window a feeling of flight and levitating above the ground. 

The "gradient" idea also goes a long way to hold the area together: the architects use it as a pedal tone, sometimes raising and sometimes lowering the key. The organization of green plants, incidentally, is also subjected to the gradient pattern - only, while the density, the number of floors, and the urban feel increase towards the west (meaning - towards the highway), the greenery increased and, let's say, comes undone towards the east and closer to the woodland. In the most urbanized part, the trees are planted into circles on the pavement; the middle part displays the nicely trimmed Versailles baskets, and the terraced slope sports something creeping and clambering. But then again, there is no excessive landscape work here. "The types of green plants are divided into zones in accordance with the hierarchy of the public territories - Konstantin Khodnev explains - we could not afford doing a sophisticated landscape design job all over the entire territory of the complex because it requires a significant initial investment and is pretty expensive to maintain. For this reason, the places that are most eventful from the landscaping standpoint are the gardens and the linear park - where people are directly exposed to nature. We would like people to spend as much time as possibly outdoors, and a thought-out landscaping environment is a great incentive for that".
 
***
The project looks interesting as it is but still more interesting is the authors' desire to view this work as a study of the elements and current principles of today's residential co construction, not all of which have taken root in the Russian reality yet, while those that have are often misconstrued. Hereinafter, we will make an attempt to define what is the ideal residential construction that the authors are trying to achieve. What is it like? 

1. Inexpensive 

In this project, this is proven by at least the fact of the absence of any underground parking lots, two-level apartments, and villas, as well as by the comparatively low-cost but durable facade material.

2. Low-rise but not single-story 

The format of a compact town - from 3 to 5 floors. Because of the small height of the buildings, the yards also take on an intimate quality, being considerably smaller than they were, for example, in Stalin-era houses. In addition, the fact of there being not one but several floors provides an opportunity to keep the prices at a reasonable level.  

3. Quarter planning 

The "super-hot" idea of quarter planning, or a semi-closed square, does not always get adequately implemented: Moscow and Moscow area are swarming with giant pseudo-quarters, limited by square frames - but unreasonably tall. In our particular case, the authors found (and this was also prompted by the circumstances) just the right scale and size of the area.

4. Diverse 

If you're using inexpensive building materials, you still can be diverse if you approach your task in a creative way.

5. Correlation to the terrain and context 

Oftentimes, the first thing that the developer cuts costs on the the work of the architects themselves, even though it is obvious that this is not the most expensive every of the cost sheet of any construction, let alone with the Russian modest average royalties. Here we can clearly see that the architects put in a lot of analytical and creative effort: the authors used a lot of "tips", both close-by (the terrain properties) and distant (the school in Gorky Leninskie), and they were really able to "grow" their project based on these tips. This project is highly individual because, instead of complaining about the difficulties, the authors found a way to turn them into advantages.

6. Integral 

In spite of its diversity, the project has a lot of elements in it that unite it to become a single whole - from the boulevards to the facade decoration techniques.

7. Pedestrian boulevard 

Also known as the "linear park", it stretches along the pedestrian promenade. The axis of the public life of the residential area offers a comfortable walk between the stores and the school building. The boulevard also becomes a natural limiting factor for transit traffic inside the area. 

8. Vehicle-free yards 

A popular principle that is commonly used now, its benefits being obvious. A yard must be cozy and safe.

9. The garden yards

A relatively new principle, although already known but still rarely employed. Other Russian examples are "Skolkovo Park" in Zaryadye, more expensive, and a house in Kronstadt, less expensive. The architects of DNK ag not only organize these little gardens next to the first-floor apartments but they also take this idea to a whole new level by placing these private gardens in the centers of the yards. In such cases the critics usually write: "Let's live and learn". 

10. Cars between the trees

The parking stalls are not organized in fields but are evenly spread outside around the houses. 

11. Terraces and serpentine roads

A convenient solution for organizing a hilly land plot, the terraces help to contain the soil, prevent landslides, and they look beautiful, too: the winding roads and trails provide automotive access, and they are convenient for people with limited mobility. In addition, the winding road belongs to the class of passive traffic speed modifiers - which will increase the traffic safety of this area.

12. A smooth transition from town to country

Also a commonly used solution but here the architects literally put their souls into it and came up with a "stretch" that goes beyond the framework of the common multistory typology - meaning does not literally embody the transition from one to the other but provides a smooth change of what one night call "thematic chords", enhancing the diversity as much as the unobtrusiveness of combining four types of residential construction, less and more expensive.

***