Published on Archi.ru (https://archi.ru)

12.05.2016

A Cute "Garden" Town


Architect:
Andrey Asadov
Studio:
ASADOV architects

Located not far away from the Kurskaya metro station, the Maly Poluyaroslavsky Alley got a new nursery school built upon the project by Asadov Bureau - a fine example of out-of-the-box thinking when it comes to designing preschool facilities in the nation's capital.

Nursery school in the Maly Poluyaroslavsky Alley. Construction, 2016 © Asadov Bureau
Nursery school in the Maly Poluyaroslavsky Alley. Construction, 2016 © Asadov Bureau


Custom-designed nursery schools and kindergartens are still quite a rarity for the nation's capital, as much as they are for any other Russian city or town, and thus are generally perceived as a luxury one could only possibly dream of. However, people who live in the vicinity of the Kurskaya and Chkalovskaya metro stations were lucky to get one: the Maly Poluyaroslavsky Alley got a nursery school that was custom-designed by Asadov Bureau. As a matter of fact, this was a case when a virtue was made out of necessity - squeezed from all sides by the buildings of this old Moscow neighborhood, the tiny land plot was initially meant to get a standard municipal preschool facility. However, placing a standard building in this tiny area and meeting, at the same time, all the necessary construction requirements proved to be clearly impossible. It was at that point that the city announced a competition that was subsequently won by one of Moscow's oldest private schools, "Shkola Sotrudnichestva" ("School of Cooperation") - and Asadov Bureau landed a commission that was as challenging as it was exciting to work on. 

Nursery school in the Maly Poluyaroslavsky Alley. Master plan © Asadov Bureau
Nursery school in the Maly Poluyaroslavsky Alley. Master plan © Asadov Bureau


Nursery school in the Maly Poluyaroslavsky Alley. Construction, 2016 © Asadov Bureau
Nursery school in the Maly Poluyaroslavsky Alley. Construction, 2016 © Asadov Bureau


According to the company's leader, Andrew Asadov, the architectural concept of the building developed by degrees, in the course of the architects solving the problems of meeting this or that requirement that regulate the construction of preschool facilities in this country. Not a single solution in the architectural image of the building is accidental, each and every one of them being conditioned by this or that necessity. For example, the two-part form and the situation of the volume on the land plot have been dictated by the optimum orientation by the cardinal points. As one can see from the plan, the building consists of two wings perpendicular to one another. One wing stretches along the north border of the plot, the other - along the west one. The two parts protect the yard from the most unpleasant winds, at the same time opening it from the east and from the south. The maximum number of windows that let as much sunlight as possible into the children's rooms, also opens up to the south and east sides - which allowed the architects to meet the rigorous insolation requirements. (According to Moscow construction rules and regulations for preschool educational facilities, the maximum allowed orientation of the windows of the children's rooms on the cardinal points must be within a range of 85 to 275 degrees but 180 degrees is considered optimum, i.e. the windows are turned exactly southward). 

The beautiful-looking semicircular glass insert on the west façade owes its appearance to the necessity of finding, next to the emergency exit, enough room for the fire engine turnaround area. 

Nursery school in the Maly Poluyaroslavsky Alley. Construction, 2016 © Asadov Bureau
Nursery school in the Maly Poluyaroslavsky Alley. Construction, 2016 © Asadov Bureau


Nursery school in the Maly Poluyaroslavsky Alley. Construction, 2016 © Asadov Bureau
Nursery school in the Maly Poluyaroslavsky Alley. Construction, 2016 © Asadov Bureau


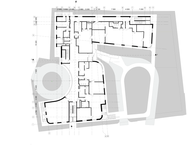
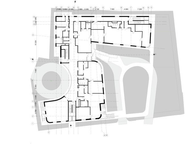
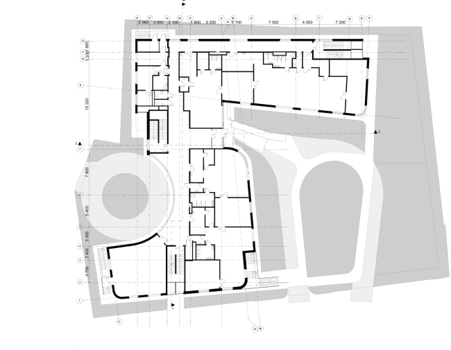
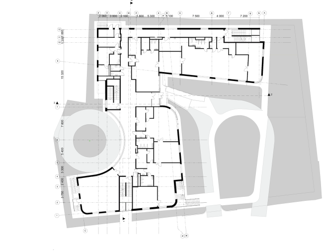
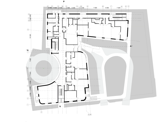
Nursery school in the Maly Poluyaroslavsky Alley. Plan of the 1st floor © Asadov Bureau
Nursery school in the Maly Poluyaroslavsky Alley. Plan of the 1st floor © Asadov Bureau


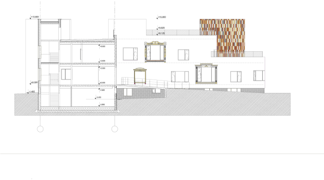
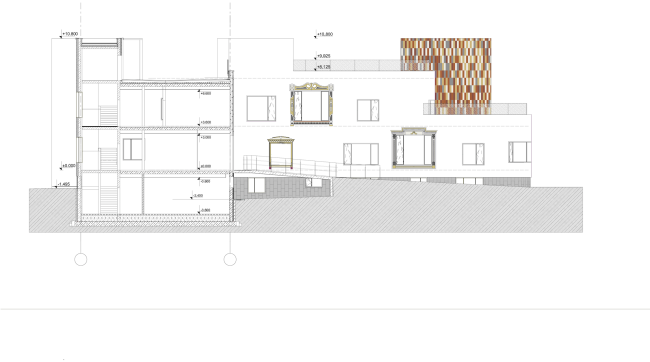
The small area of the land plot also significantly influenced the design of the kindergarten. What was left from the construction blueprint was still not enough to provide each group of children with a walking area of their own (again, according to Moscow Construction Rules and Regulations, it is 108 square meters for children under 3 years old, 80 square meters for children from 3 to 7 years old, plus verandas with an area of 40 square meters, plus a common playground 250 square meters). So it comes as no surprise that the authors of the project placed the extra walking areas and the verandas on the building's usable roofs. Interesting is the fact that there are such "roof" areas both on the level of the second and third floors. All this conditioned the recognizable look of the building: both of its wings descend in steps, very much like a ship's decks. The "ship" associations also appear thanks to the rounded contours of the walls and the railings on the roofs. 

Nursery school in the Maly Poluyaroslavsky Alley. Construction, 2016 © Asadov Bureau
Nursery school in the Maly Poluyaroslavsky Alley. Construction, 2016 © Asadov Bureau


The authors liken the new kindergarten building to their earlier "Loskutki" ("Quilts") project: a concept of a low-rise urban settlement, based on the self-organization principles very much like those of a medieval town. "Loskutki" are notable for their nonlinear asymmetric plan where each block is in fact a miniature town; diversity of forms and decoration techniques, and ultimately, forming of a rather dense but at the same time human-friendly environment with a multitude of convenient social connections inside each quarter. And the starting point that gives momentum to this social and cultural process is this thought-out architectural organization of the urban area. 

The kindergarten on the Maly Poluyaroslavsky Alley - with its sophisticated system of roofs of different height, changing its look when viewed from different angles, with windows spread unevenly over the building's façades - could also easily become part of such "quilted" city area. This, however, is but one side of the story. On the other side, the entire complex - with the playground and the verandas that are there both on the ground and on the roofs - looks like a miniature version of "Loskutki" settlement. This, again, is achieved at the expense of the building's dramatic multilevel appearance: upon the verandas, the architects designed a "playground" environment that resembles a toy town with silhouettes of imaginary houses, just as multilevel and multicolored as the building itself. Thus, this "run-through" design ties the main building and its verandas together to become a single "fairy tale town" complex.

Nursery school in the Maly Poluyaroslavsky Alley. Construction, 2016 © Asadov Bureau
Nursery school in the Maly Poluyaroslavsky Alley. Construction, 2016 © Asadov Bureau


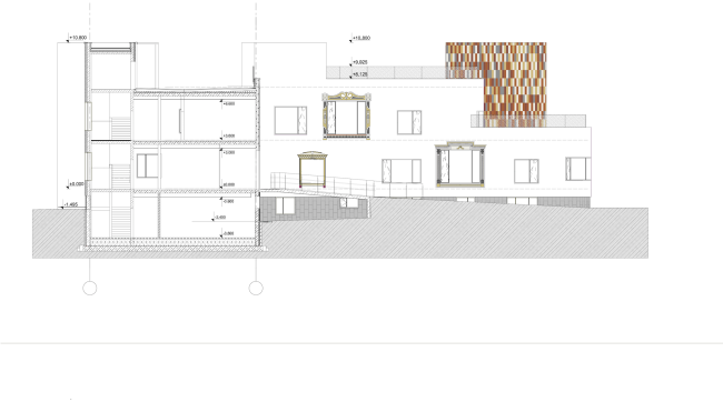
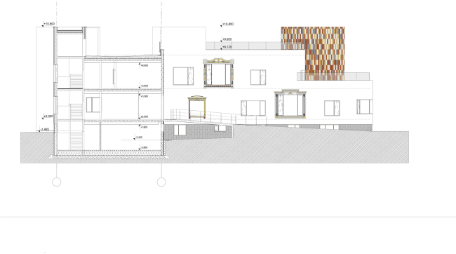
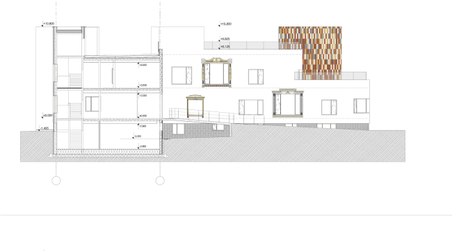
Nursery school in the Maly Poluyaroslavsky Alley. Section view © Asadov Bureau
Nursery school in the Maly Poluyaroslavsky Alley. Section view © Asadov Bureau


The landscaping solution of the land site is visually connected to the architectural one. The "rounded" planning of the trails echoes the rounded outlines of the building. They are also accentuated by smooth man-made knolls that were made in order to avoid the monotony of the flat terrain. However, the architects opted out of supplying the roofs with any plants or artificial terrain so as not to make the construction work too complicated. They limited themselves to colorful rubber mats. 

Nursery school in the Maly Poluyaroslavsky Alley. Construction, 2016 © Asadov Bureau
Nursery school in the Maly Poluyaroslavsky Alley. Construction, 2016 © Asadov Bureau


The façades got a very emotional finish, in the best sense of the word. Most of the walls are covered with champagne-colored stucco. This is a great background for the several volumes covered with multicolored terra-cotta tiles. Their tonality ranges from the light-sand to dark crimson, with an odd fraction of gray. The same color solution was chosen for the verandas, only here everything is made of wood painted with wood stain of various shades. While in the main building the color sections of the façades are visually fractured into peculiar pixels - in accordance with the "tile" format - the verandas took on a striped look: at the expense of the painted pillars that support the roofs, and the wall-decorating laths.

Nursery school in the Maly Poluyaroslavsky Alley. Construction, 2016 © Asadov Bureau
Nursery school in the Maly Poluyaroslavsky Alley. Construction, 2016 © Asadov Bureau


Nursery school in the Maly Poluyaroslavsky Alley. Construction, 2016 © Asadov Bureau
Nursery school in the Maly Poluyaroslavsky Alley. Construction, 2016 © Asadov Bureau


The façade windows that overlook the playground are placed at different distances from one another, and there is yet another thing that meets the eye - the windows are also of different size, some being taller and wider, some - lower abs narrower, which, again, brings in an informal twist to the building's look. One could say that the principle of "Loskutki" - uniting unlike buildings into a single "painting" - in this case is recreated in the compositing of the window apertures on the façades.

Nursery school in the Maly Poluyaroslavsky Alley. Construction, 2016 © Asadov Bureau
Nursery school in the Maly Poluyaroslavsky Alley. Construction, 2016 © Asadov Bureau


The idea of decorating the windows with wooden carved window surrounds also originates from the "Loskutki" concept. An important role was also played by the customers from "School of Cooperation". They took an active part in choosing the facade finishes and it was them who proposed to look for interesting designs of the window surrounds. Ultimately, not only all the surrounds turned out to be different - each one of them is a collective image of the window surround characteristic for this or that region of Russia. These images were designed based on the collection of the online museum of window surrounds that has for years been developed by the Moscow photographer Ivan Khafizov. Then, the surrounds were brought into reality by the hereditary woodcarver from a remote region of Russia, Yakov Velnikov. Ultimately, the decor of the façades turns into something like an educational project: if one is to approach them creatively, such windows could become a starting point for teaching the kinds interesting local lore and geography.

Nursery school in the Maly Poluyaroslavsky Alley. Window surrounds. Construction, 2016 © Asadov Bureau
Nursery school in the Maly Poluyaroslavsky Alley. Window surrounds. Construction, 2016 © Asadov Bureau


The inside planning of the nursery school building was developed in accordance with the applicable standards, according to which each group of children is to have a certain set of premises of their own: a locker room, a playroom, a dining room, a bedroom, a buffet room, and a bathroom. On the first floor, next to the entrance, there is a large hall with panoramic glazing. The hall flows into a wide semicircular corridor (also glazed), this corridor being the contour that appeared due to the necessity of making the turnaround point outside. On the inside, the architects got a fair number of rooms of curvilinear irregular contours - which can become an extra amusement point for the children. Besides the three above-ground levels, there is also a basement floor that contains the maintenance rooms and some of the management offices. 

Thus, the strict constraints set by the Moscow Construction Rules and Regulations for preschool facilities did not in the least prevent the architects of Asadov Bureau from creating a project with a whole bunch of original solutions. One even gets an impression that the restrictions - both legal and territorial - became an interesting challenge for the architects and gave extra momentum to their creative insights. 
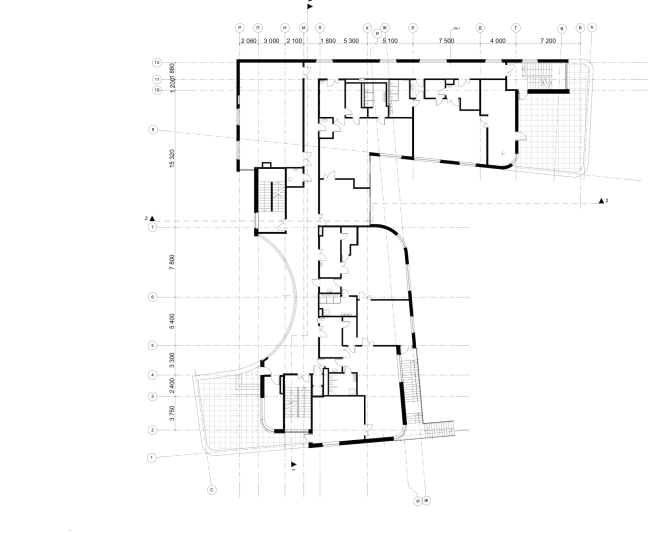
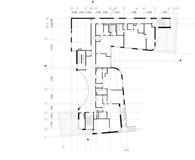
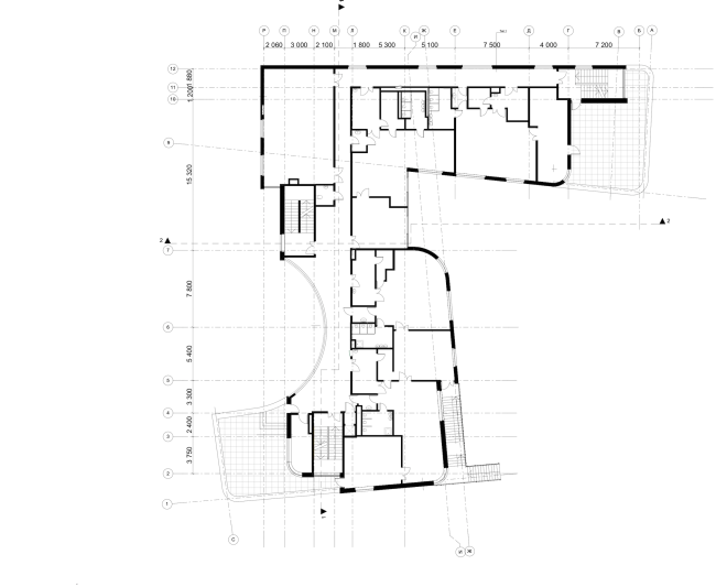
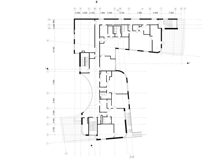
Nursery school in the Maly Poluyaroslavsky Alley. Plan of the 2nd floor © Asadov Bureau
Nursery school in the Maly Poluyaroslavsky Alley. Plan of the 2nd floor © Asadov Bureau