Published on Archi.ru (https://archi.ru)

16.05.2016

Vladimir Bindeman: "An urbanist's mission is making a positive difference in people's lives".

Lilya Aronova
Studio:
Arhitekturium

An interview with the leader of "Arkhitekturium" Bureau about the urban planning situation in the Moscow area, regional specifics of the quarter planning, and help coming from nature in the cause of "humanizing" the out-of-town construction.

Archi.ru: 

- It's been almost two years since the exhibition dedicated to the tenth anniversary of Arkhitekturium. What are you working on now? 

Vladimir Bindeman: 

- Today, we mostly do architectural proposals and concepts, and we are also finishing the Novgorod cluster. Due to the economic situation, the number of investors that are ready to out and actually switch over from concept to implementation has significantly shrunk, but still, some attempts are made out there. Of what we started, we are now finishing the construction of the "Andersen" area in the New Moscow, and the residential complex "Opalikha-Village" in the town of Krasnogorsk. 

Vladimir Bindeman © Arkhitekturium
Vladimir Bindeman © Arkhitekturium


Multifunctional sports and public center in Novogorsk Olympic Village. Construction, 2016 © Arkhitekturium
Multifunctional sports and public center in Novogorsk Olympic Village. Construction, 2016 © Arkhitekturium


Residential complex "Novogorsk Olympic Village. Apartmets". Construction, 2015 © Arkhitekturium
Residential complex "Novogorsk Olympic Village. Apartmets". Construction, 2015 © Arkhitekturium


Residential complex "Novogorsk Olympic Village. Resort". Construction, 2015 © Arkhitekturium
Residential complex "Novogorsk Olympic Village. Resort". Construction, 2015 © Arkhitekturium


- How is the environment changing in the area of out-of-town residential construction? What new challenges are the designers faced with? 

- Just as expected, the tough competition environment dictates cutting costs, and, consequently, simplification. The developers are trying to make up for their objective losses with reducing their production self-cost as much as possible. At the same time, the urban planning situation in the Moscow area, that has been over the recent years going from bad to worse under the burden of the unbalanced mass residential construction, have come today to a number of critical points, mainly in its transportation and social aspects. The decision of the government of the Moscow region about a moratorium on the residential construction in the suburban cities of Balashikha and Korolev, and about the suspension of it in the town of Khimki really proves that we've hit a crisis here. As far as the goals and plans are concerned, it is kind of embarrassing to speak of new ones. What our town planning needs is solving the old issues in the first place - making up for the "contract empty spaces" of the recent years when it comes to schools and kindergartens, social projects, and parking lots that are meant to be there by default but which were blithely forgotten the moment the residential property itself was sold. The question remains, however, who will do this, where, and who will pay for it. In 2016, the government of the Moscow Region is expected to ratify 238 documents on territory planning; at the same time, in about 300 federation subjects, the master plans have not been approved yet. The final approval of these settlement master plans is, of course, meant to put some regulations on the functional zones, and prevent further juggling the land from "agricultural" to "residential" and vice versa, but we know from experience that there is a long way to go from good intentions to actual practical results. 

- What are the main challenges that you have to deal with when designing out-of-town settlements? How do you go about communicating with your customers? Which issues get negotiated over most of all? 

- What the customer always wants is make a silk purse out of a sow's ear. This is the objective truth, there are practically no exceptions to it. When you make feeble attempts to refer to construction rules and regulations, let alone such abstract and ethereal notion as "composition", these are always crushed by the will of the collective body (board of directors or shareholders). The only obstacle that can hold them back is a real prospect of getting no approval from the appropriate authorities. Realizing that changing this situation is, regretfully, beyond our power, in each of our projects we still try to fight for the public spaces and functions, trying to create boulevards, parks, and squares.

- It seems like nature itself is helping us. Most of our projects have been built on the sites running along rivers or situated next to lakes that have the water protection zones where you simply cannot build. This is why we have been able to build riverside promenades with recreation spaces and public venues. And, wherever the situation is different from what I've just described, we propose to make what we call "green breaks" between the houses - and we try to orient as many windows as possible to these green zones. It is understood that the economic situation is challenging but, at the same time, the market of real estate is also saturated. In order to get an edge, the developer must take care about the attractiveness factors of what he's selling, must create an environment that is comfortable to live in - not only inside the apartment but also outside of it. 

"Opalikha-Village" residential area. Project, 2014 © Arkhitekturium
"Opalikha-Village" residential area. Project, 2014 © Arkhitekturium


Low-rise residential complex "Novoarkhangelskoe". Constructio, 2008 © Arkhitekturium
Low-rise residential complex "Novoarkhangelskoe". Constructio, 2008 © Arkhitekturium


Residential and sports complex "Novogorsk Olympic Village". Construction, 2013 © Arkhitekturium
Residential and sports complex "Novogorsk Olympic Village". Construction, 2013 © Arkhitekturium


Concept of a low-rise residential complex in Sestroretsk. Project, 2012 © Arkhitekturium
Concept of a low-rise residential complex in Sestroretsk. Project, 2012 © Arkhitekturium


- If, like you many times said, townhouses for you are a past stage, then what typology of residential buildings is the most interesting to you today, and why? 

- We do projects of integrated territory development - because this is what is interesting for us today. The multistory typology that dominates today's construction is something that is 100% dictated by the market situation. As for us, we lean towards the low-rise and medium-height residential buildings, all the more so in the realities of the Moscow area where most new construction sites are located exactly next to the low-rise stuff - dachas or cottages. To my mind, an optimum Moscow area residential quarter must be from three to six stories high, eight at the very maximum. Of course, in a specific town-planning situation there's nothing wrong with including high-rise centerpieces as your landmarks; it's something that you even have to do. But this is also something quite different from the 17-story "prison" closed-perimeter monsters with faceless standards interiors. If we are to go back to the subject of townhouses, then it's quite possible that the developers will be showing interest to them again, only in a different format. Of course, nobody will build 250-300 square meter sections today but the alternative to the regular city apartments, the so-called "apartments on the ground" with an area below 100 square meters - quite possible. And such attempts are already being made. 

"Villagio" residential district. Project, 2014 © Arkhitekturium
"Villagio" residential district. Project, 2014 © Arkhitekturium


Residential and sports complex "Novogorsk Olympic Village". Construction, 2013 © Arkhitekturium
Residential and sports complex "Novogorsk Olympic Village". Construction, 2013 © Arkhitekturium


- What are your stylistic preferences, and how often are you able to tie them in with the context? 

- The most difficult question you can ask an architect is "What style do you work in?" Especially today! We allow of no vulgar stylizations; we do modern architecture, and we try to do it with expression. Our context is mostly the natural environment, and this is why we try to find solutions that help us to fit in as gracefully as we can with the surrounding landscape. 

- Are there any projects that you did that you can call your favorite ones or "milestones" in your career? 

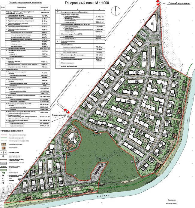
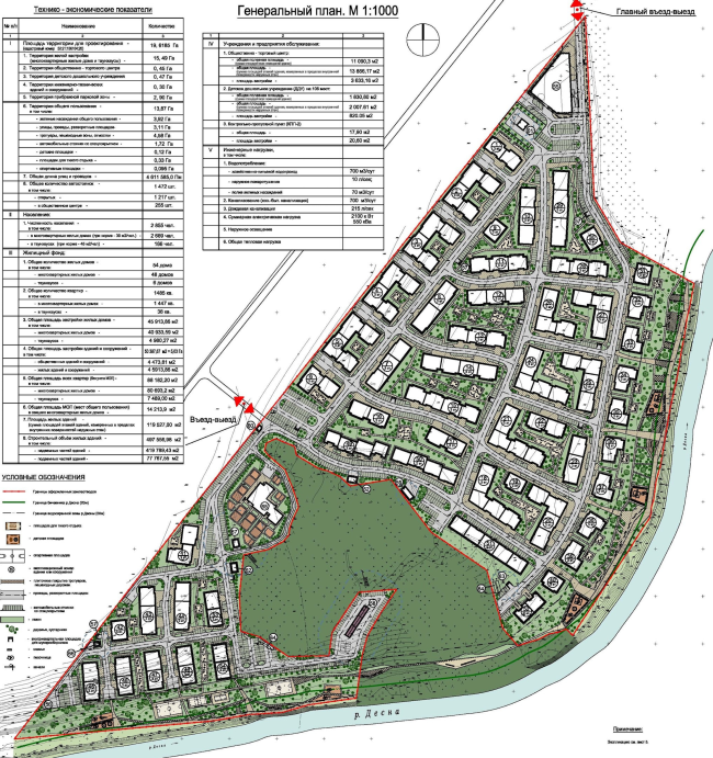
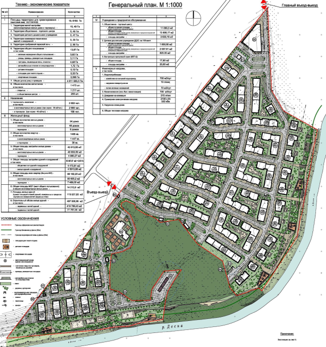
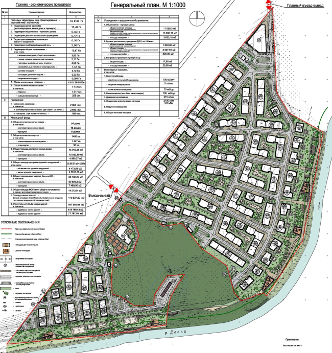
- During our "villa" period, I built the "Yacht" house, and "Krasny Klin" ("Red Wedge"), as well as the "terrace" resort in Sochi in 2014. These projects did not go unnoticed. They also had great customers, great decision makers. Out of today's projects, I could name the Novogorsk project and "Andersen" residential complex where we were able, albeit with some losses, to implement our idea of several quarters different in their architecture. Developing nine sections of typical layouts, we then made the challenge still more interesting and introduced variability of their façades, depending on which section is used in which quarter. This is how on the 19-hectare area "Andersen" got "red", "white", "mosaic", and "striped" quarters, and a fee combinations of them. 

"Rizhsky Quarter" villa community. Construction, 2013 © Arkhitekturium
"Rizhsky Quarter" villa community. Construction, 2013 © Arkhitekturium


Multifunctional sports and community center in "Novogorsk Olympic Village". Construction, 2013 © Arkhitekturium
Multifunctional sports and community center in "Novogorsk Olympic Village". Construction, 2013 © Arkhitekturium


Multifunctional sports and community center in "Novogorsk Olympic Village". Construction, 2016 © Arkhitekturium
Multifunctional sports and community center in "Novogorsk Olympic Village". Construction, 2016 © Arkhitekturium


Residential complex "Novogorsk Olympic Village. Apartmets". Construction, 2015 © Arkhitekturium
Residential complex "Novogorsk Olympic Village. Apartmets". Construction, 2015 © Arkhitekturium


Residential complex "Novogorsk Olympic Village. Resort". Construction, 2016 © Arkhitekturium
Residential complex "Novogorsk Olympic Village. Resort". Construction, 2016 © Arkhitekturium


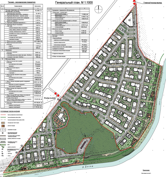
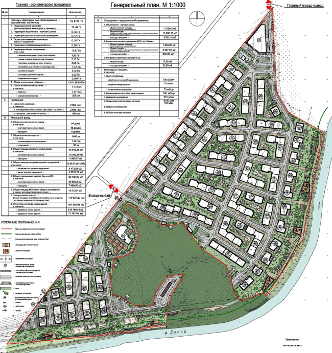
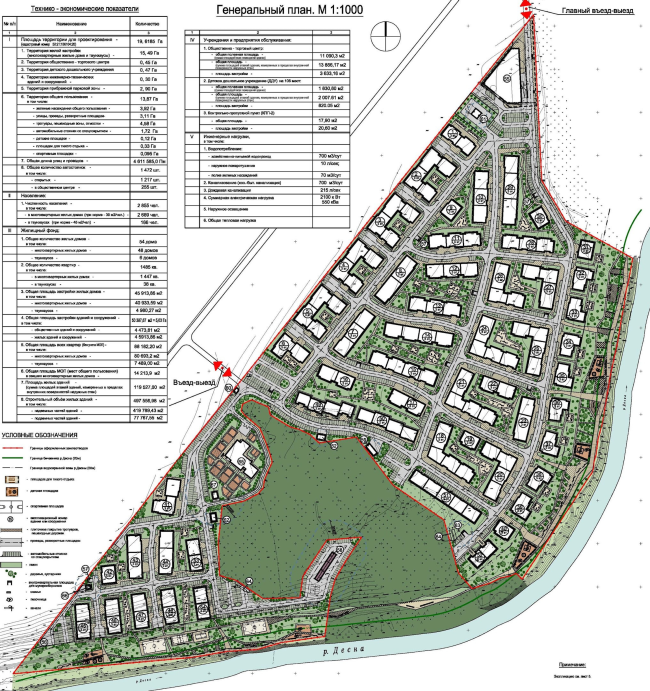
"Andersen" residential complex. Master plan, 2014 © Arkhitekturium
"Andersen" residential complex. Master plan, 2014 © Arkhitekturium


"Andersen" residential complex. Construction, 2016 © Arkhitekturium
"Andersen" residential complex. Construction, 2016 © Arkhitekturium


"Andersen" residential complex. Construction, 2016 © Arkhitekturium
"Andersen" residential complex. Construction, 2016 © Arkhitekturium


- What, in your opinion, is the main difference between working in Moscow and in the regions. How does the proximity of this or that regional center influence the project?  

- I think that in this digital Information Age the very notion of "region" is rapidly losing its original meaning. No architects now consider the "remoteness" as a critical factor, reserving sophisticated projects for the capital cities and leaving more simple projects for the provinces. Rather, this is a mistake that the developers make, applying standard methods for defining the class of this or that project (more expensive - less expensive). Great architecture is "appropriate" anywhere, it pays respect to the specifics of the place, and this is what actually makes it great, among other things. The town of Sestroretsk, for example, has been included today in the city boundaries of Saint Petersburg, and we treated that project as a task of creating a European-class suburban town that is a great place to live in. We wanted to show how one can make a great residential area of city-type townhouses - two-story houses without land plots forming quarters of various layouts. We took the planning grid that is characteristic for Saint Petersburg and inscribed into it a city square decorated by a public and shopping center and a school building. Next to the school, we made a cute little "summer garden". In our planning structure, we found a place for two blocks of "city" townhouses with small land plots (but with no fences!). Along the streets, we planted strings of ball-shaped lime trees that separate the parallel parking spots from the bicycle lanes... With all due modesty, what we ultimately got was a "dream" city with paved sidewalks, corner stores or cafes at the corners of the blocks. But so far the dream remains a dream - probably, the town is not ready for such projects yet. 

"Andersen" residential complex. Construction, 2016 © Arkhitekturium
"Andersen" residential complex. Construction, 2016 © Arkhitekturium


Concept of the low-rise residential complex in Sestroretsk. Project, 2012 © Arkhitekturium
Concept of the low-rise residential complex in Sestroretsk. Project, 2012 © Arkhitekturium


Concept of the low-rise residential complex in Sestroretsk. Project, 2012 © Arkhitekturium
Concept of the low-rise residential complex in Sestroretsk. Project, 2012 © Arkhitekturium


Concept of the low-rise residential complex in Sestroretsk. Project, 2012 © Arkhitekturium
Concept of the low-rise residential complex in Sestroretsk. Project, 2012 © Arkhitekturium


Concept of the low-rise residential complex in Sestroretsk. Project, 2012 © Arkhitekturium
Concept of the low-rise residential complex in Sestroretsk. Project, 2012 © Arkhitekturium


Concept of the low-rise residential complex in Sestroretsk. Project, 2012 © Arkhitekturium
Concept of the low-rise residential complex in Sestroretsk. Project, 2012 © Arkhitekturium


Concept of the low-rise residential complex in Sestroretsk. Project, 2012 © Arkhitekturium
Concept of the low-rise residential complex in Sestroretsk. Project, 2012 © Arkhitekturium


- What do you think of architectural contests? 

- I think they are a great thing; it's just saddening that we don't always get a chance to take part in them. What is interesting about the true contest is the fact that you don't have to care about the customer's opinion in the course of work. You do a project that solely reflects your personal vision of the task that you get to do, and you submit it to the contest substantiating it with the proof that your solution is best one. And from that moment on, it's a matter of coincidence and the match between the judging panel's and the architect's outlook. And as for the open contests, they are a whole separate subject to talk about. You never quite understand the organizer's attitude or his real intentions - but you can go as crazy as you like and get your fill. As for the closed contests, however, the ones that pay the architects for the sole fact of participating therein, the situation is still more complex here. One of such recent contests stipulated a condition of mandatory intermediate showcases for all the participants and coordinating all the intermediate stages without which you could not go on. The customer wanted "to be in the loop" so as to avoid getting an unpredictable result for his hard-earned money.

- What was interesting to you about the Nizhny Novgorod contest? 

- First of all, the task itself. At the first stage, one was to propose a concept of developing a 450-hectare territory in the south part of town. This is a very big chunk of land, and not only by the Nizhny Novgorod standards. The task was made even more complex by the prominent terrain and the numerous power lines that crossed the land site. We proposed a planning structure that was based on the four major districts connected with city highways and situated along two recreation and landscape axes. Each district had a nucleus of its own; there was a thought-out system of public green areas set by the terrain curves. The town-planning paradigm was based on the hierarchical principle: from the private space of the apartment to the neighbors' space of the yard to the public space of the street, city square, and park. In the second round of the contest, we proposed to develop these ideas at the example of one of the four areas with detailed elaboration of residential and public projects. 

Concept of the low-rise residential complex in Sestroretsk. Project, 2012 © Arkhitekturium
Concept of the low-rise residential complex in Sestroretsk. Project, 2012 © Arkhitekturium


Town-planning concept in Nizhny Novgorod. 1st contest round. Master plan. Project, 2014 © Arkhitekturium
Town-planning concept in Nizhny Novgorod. 1st contest round. Master plan. Project, 2014 © Arkhitekturium


Town-planning concept in Nizhny Novgorod. 1st contest round. Master plan. Project, 2014 © Arkhitekturium
Town-planning concept in Nizhny Novgorod. 1st contest round. Master plan. Project, 2014 © Arkhitekturium


Town-planning concept in Nizhny Novgorod. 2nd contest round. Master plan. Project, 2014 © Arkhitekturium
Town-planning concept in Nizhny Novgorod. 2nd contest round. Master plan. Project, 2014 © Arkhitekturium


Town-planning concept in Nizhny Novgorod. 2nd contest round. Master plan. Project, 2014 © Arkhitekturium
Town-planning concept in Nizhny Novgorod. 2nd contest round. Master plan. Project, 2014 © Arkhitekturium


Town-planning concept in Nizhny Novgorod. 2nd contest round. Master plan. Project, 2014 © Arkhitekturium
Town-planning concept in Nizhny Novgorod. 2nd contest round. Master plan. Project, 2014 © Arkhitekturium


- What is going on now in Novogorsk Olympic Village? 

- Novogorsk is a cluster that consists of three venues that are located in the immediate proximity of one another. The main venue, the one it all started from, is already functioning. It includes townhouses, two multi-apartment residential buildings, and a multifunctional sports and community center, the decoration of which is now being finished. The venue that is situated further down the Skhodnya River, called "Novogorsk Olympic Village. Apartments", is also being populated now, the people who moved in are having their decoration jobs done. We hope that in May the organization of the territory inside the block and along the embankment will be completed, and the complex will look like it was originally supposed to. And the third venue - "Novogorsk Olympic Village. Resort" - is now in the phase of finishing the façades and the landscaping work.

Town-planning concept in Nizhny Novgorod. 2nd contest round. Master plan. Project, 2014 © Arkhitekturium
Town-planning concept in Nizhny Novgorod. 2nd contest round. Master plan. Project, 2014 © Arkhitekturium


Residential and sports complex "Novogorsk Olympic Village". Master plan. Construction, 2013 © Arkhitekturium
Residential and sports complex "Novogorsk Olympic Village". Master plan. Construction, 2013 © Arkhitekturium


Townhouses in the residential and sports complex "Novogorsk Olympic Village". Construction, 2013 © Arkhitekturium
Townhouses in the residential and sports complex "Novogorsk Olympic Village". Construction, 2013 © Arkhitekturium


Townhouses in the residential and sports complex "Novogorsk Olympic Village". Construction, 2013 © Arkhitekturium
Townhouses in the residential and sports complex "Novogorsk Olympic Village". Construction, 2013 © Arkhitekturium


Residential building #27 in "Novogorsk Olympic Village". Construction, 2012 © Arkhitekturium
Residential building #27 in "Novogorsk Olympic Village". Construction, 2012 © Arkhitekturium


Residential building #27 in "Novogorsk Olympic Village". Construction, 2012 © Arkhitekturium
Residential building #27 in "Novogorsk Olympic Village". Construction, 2012 © Arkhitekturium


Townhouses in the residential and sports complex "Novogorsk Olympic Village". Construction, 2013 © Arkhitekturium
Townhouses in the residential and sports complex "Novogorsk Olympic Village". Construction, 2013 © Arkhitekturium


Residential building #27 in "Novogorsk Olympic Village". Construction, 2012 © Arkhitekturium
Residential building #27 in "Novogorsk Olympic Village". Construction, 2012 © Arkhitekturium


- Please share about the concept of "Villagio" residential area. 

- We got down to this project with a lot of enthusiasm, and soon we had a perfect understanding with our customer. As is known, Villagio is a settlement with rather large villas and townhouses. This project also provided for developing the territory adjacent to the Novorizhskoe Highway where mid-rise residential houses were supposed to be built, with the entire appropriate infrastructure.

The proximity to the highway defined the main planning idea of the area - we had to protect the residential property from the highway noise by placing linear infrastructure projects along the Novorizhskoe Highway: a shopping and office center and parking lots. These buildings, in turn, are separated from the residential area by the main shopping street with a broad pedestrian boulevard. The entire residential area is divided into four blocks standing at a small angle in respect to one another - which results in "green wedges" - the landscaped pedestrian zones with gazebos, benches, flowerbeds, and creeks. We singled out all the "correct" components of the block planning - the Main Street with a system of small triangular squares, residential streets that provide entrances to the hallways and underground parking garages, inter-block "green breaks", and semi-closed landscaped car-free yards. 

Residential complex "Novogorsk Olympic Village. Resort". Construction, 2015 © Arkhitekturium
Residential complex "Novogorsk Olympic Village. Resort". Construction, 2015 © Arkhitekturium


"Villagio" residential area. Master plan. Project, 2014 © Arkhitekturium
"Villagio" residential area. Master plan. Project, 2014 © Arkhitekturium


"Villagio" residential area. Project, 2014 © Arkhitekturium
"Villagio" residential area. Project, 2014 © Arkhitekturium


"Villagio" residential area. Project, 2014 © Arkhitekturium
"Villagio" residential area. Project, 2014 © Arkhitekturium


"Villagio" residential area. Project, 2014 © Arkhitekturium
"Villagio" residential area. Project, 2014 © Arkhitekturium


"Villagio" residential area. Project, 2014 © Arkhitekturium
"Villagio" residential area. Project, 2014 © Arkhitekturium


- Looking at the plans of the settlements designed by your company one might think that you were inclined toward the "block" principle before it ever came into fashion. Is it true? 

- Yes, I have always thought that a populated area (be that a city, a town, or a village, whatever) must have in it a certain hierarchy of spaces, and, hence, their diversity. The block planning is something that was formed for centuries bearing in it the specifics of each region: climatic, geographic, and national. In the antique city of Priene, the official ancient-Greece orthogonal planning is "stretched" over the picturesque hills. This is something that looks pretty impressive even today when there is nothing but the foundations left. An analogous example is San-Francisco. The amorphous quality of the "micro-district" space has long since outlived itself, distorting, over the period of its reigning, such basic notions as "yard", "street", and "square". Unfortunately, in this field we got "ahead of the whole planet", "blessing" the entire country with this micro-district planning. What gives me hope, though, is the fact that the vector of development has changed now. However, in this new reality you cannot fall hostage of mainstream. Any specific town-planning situation contains a lot of factors that influence your choice of solutions, and forcing the "block" or "quarter" principle on every project would be equally wrong. 

"Villagio" residential area. Project, 2014 © Arkhitekturium
"Villagio" residential area. Project, 2014 © Arkhitekturium


Low-rise buildings in Dmitrovskoe. Master plan © Arkhitekturium
Low-rise buildings in Dmitrovskoe. Master plan © Arkhitekturium


Low-rise area "Ilinsky Boulevard". Project, 2012 © Arkhitekturium
Low-rise area "Ilinsky Boulevard". Project, 2012 © Arkhitekturium


Integrated territory development in Zvenigorod. Master plan, 2014 © Arkhitekturium
Integrated territory development in Zvenigorod. Master plan, 2014 © Arkhitekturium


- Practically each of your projects has in it some bright object that can be called the visiting card of this project. What part does it play in the overall composition? 

- Exactly the one you've just named - the role of its visiting card. In the projects of "Novoarkhangelsk" and "Rizhsky Quarter", these are the community centers with large-span drive-through arches in them. In Novogorsk, it is the multifunctional public and sports center itself, with its wavy roof. In the Sestroretsk project, it was going to be a "city tower" with a neat glass clock on top of it. Such projects are really important in residential areas, and we always pay special attention to their design. 

Integrated development in Pushkin. Master plan, 2007 © Arkhitekturium
Integrated development in Pushkin. Master plan, 2007 © Arkhitekturium


Multifunctional sports and public center in Novogorsk Olympic Village. Construction, 2016 © Arkhitekturium
Multifunctional sports and public center in Novogorsk Olympic Village. Construction, 2016 © Arkhitekturium


"Rizhsky Quarter" villa community. Construction, 2012 © Arkhitekturium
"Rizhsky Quarter" villa community. Construction, 2012 © Arkhitekturium


Low-rise buildings in Dmitrovskoe. Entrance group. Project, 2013 © Arkhitekturium
Low-rise buildings in Dmitrovskoe. Entrance group. Project, 2013 © Arkhitekturium


Checkpoint in Novogorsk Olympic Village. Construction, 2013 © Arkhitekturium
Checkpoint in Novogorsk Olympic Village. Construction, 2013 © Arkhitekturium


- Do you think architecture can ultimately shape people's lifestyle, and do you try to achieve this in your projects? 

- The Corbusier question: "Architecture or Revolution?" The free market economy, of course, does not go well together with the "messiah" lifestyle-shaping ideas, but still, everyone knows that "being determines consciousness". Just what is a "lifestyle"? Very simply put, it is a set of habitual actions that a person does every day, every month, or every year, and the emotions that he gets as a result of these actions. Do you take your kids to school in the morning struggling through a two-hour-long traffic jam, or do they get to school in ten minutes by a green boulevard? Do you look out the window of you 17-story box at a square space 50 meters high and crowded with cars or at a beautiful car-free yard three-five stories high surrounded by equally beautiful houses? Here are two different lifestyles for you - and two different sets of emotions. Architecture by default must be humane; this is something that is taught at every architectural college or university. However, it is common practice today to make town-planning decisions without asking urbanists and architects first. And as for the industry professionals, the developers often thrust upon them the role of "magicians" who can organize all this in a more or less coherent form that distantly resembles the town-planning rules and regulations. The issues of transport accessibility, the provision of social projects and service infrastructure, the creation of workplaces (a popular thing now, although maybe too-much sales-driven) - it takes a lot of work to tie this in with the old heritage and the achievements of the last two decades. Hence, today's lifestyle that one can hardly call satisfactory. Naturally, we are not the only architects that try to form a comfortable environment in their projects and make a positive difference in the lives of people who live in it, in the way they think. This must be the goal of each urbanist, each architect. Does this goal coincide with the developer's intentions? That's a big question!
áåñåäîâàëà: Ëèëèÿ Àðîíîâà
Concept of a low-rise residential complex in Sestroretsk. Project, 2012 © Arkhitekturium
Concept of a low-rise residential complex in Sestroretsk. Project, 2012 © Arkhitekturium
"Rizhsky Quarter" villa community. Construction, 2013 © Arkhitekturium
"Rizhsky Quarter" villa community. Construction, 2013 © Arkhitekturium
"Rizhsky Quarter" villa community. Construction, 2013 © Arkhitekturium
"Rizhsky Quarter" villa community. Construction, 2013 © Arkhitekturium
Low-rise residential complex "NovoArkhangelskoe". Construction, 2008 © Arkhitekturium
Low-rise residential complex "NovoArkhangelskoe". Construction, 2008 © Arkhitekturium
Low-rise residential complex "NovoArkhangelskoe". Construction, 2008 © Arkhitekturium
Low-rise residential complex "NovoArkhangelskoe". Construction, 2008 © Arkhitekturium
Townhouses in the residential and sports complex "Novogorsk Olympic Village". Construction, 2013 © Arkhitekturium
Townhouses in the residential and sports complex "Novogorsk Olympic Village". Construction, 2013 © Arkhitekturium
Residential and sports complex "Novogorsk Olympic Village. Apartments". Construction, 2015 © Arkhitekturium
Residential and sports complex "Novogorsk Olympic Village. Apartments". Construction, 2015 © Arkhitekturium
Residential complex "Novogorsk Olympic Village. Resort". Construction, 2016 © Arkhitekturium
Residential complex "Novogorsk Olympic Village. Resort". Construction, 2016 © Arkhitekturium