Published on Archi.ru (https://archi.ru)

21.03.2016

Portentous and Polite

Anna Starostina
Architect:
Yuliy Borisov
Nikolai Milovidov
Studio:
UNK

Kazakhstan's city of Uralsk is seeing the completion of the construction of a business center designed by UNK project. The building merges with the sky and interacts as a peer with the historical environment of the city.

"Zhaikmunai" buiness center. Construction, 2015. Photo © Maxim Pismenov
"Zhaikmunai" buiness center. Construction, 2015. Photo © Maxim Pismenov


The not-too-favorable economic situation made all the market players pay attention not only to high-profile projects but also to those that, if judged solely by their parameters, could look nothing but ordinary - and it must be said that it is such "low-profile" projects that constitute the bulk of the city fabric. A seemingly utopian question - how to build inexpensively, simply, up to quality standards, functionally and attractively - obviously gets different (and sometimes even practicable!) answers. UNK project proposed its own new solution for administration buildings in small remote areas and built the business center "Zhaikmunai" in Uralsk. 

The city of Uralsk is situated at the border between Russia and Kazakhstan, and, modest though it may seem, back in the day it used to be widely known as an important Cossack center (it was from this city that Pugachev's uprising once started). By the second half of the XIX century it became a large trade and commerce center. Actually, it is these low-rise buildings (generally 3 to 5 floors max) that still prevail in the central part of the town. In addition, this place preserved a few red-brick merchant houses of the late XIX century; they are located quite near the new business center. 

The building with an area slightly over 5000 square meters was initially meant to be occupied by a single leaseholder: TOO "Zhaikmunai", the daughter company of Nostrum Oil & Gas. The size and the main parameters of the building were already defined by the project prepared by the local architects, and they even got all the appropriate approvals. However, the proposed solutions did not quite satisfy the "advanced" customer. Commenting to do the work, the architects of UNK project found themselves in an uneasy situation: they were to revise the project to make it answer the requirements of A-Class business centers, at the same time making no changes to the already-approved figures and values, and inscribing the building gracefully into the existing (rather patriarchal) surroundings. "The size of the approved volume was strongly overstated, and looked like a clumsy misplaced "suitcase" - says the chief architect of the project, Julius Borisov - Making it interact with the city environment was only part of the task; what we ultimately were after was setting the quality level of architecture, capable of making a positive difference to the further development of the city. Add to this the remoteness of the project, and the absence of reliable manpower - which limited our choice of materials and technologies: everything was to be done as simple as possible". 

It was decided that "marrying" the complex with the surrounding buildings would be done by using the basic of the basics of all building materials - the brick. In addition, despite the modest budget, the architects opted out of trying to save up on the main material of construction and artistic expression, settling on the Dutch hand-formed brick. "The quality of the building is to a large extent defined not by its volumes and lines alone - Julius Borisov explains - but by its tactile feel. We did a thorough research of Uralsk's historical buildings but we refrained from so much as attempting to imitate their brickwork or façade finish. The brick that we're using is totally different but it also possesses a pronounced texture, an identity of its own, a certain warmth, if you like. Thanks to this, a certain dialogue develops, also supported by the habitual details such as pylons or the tell-tale pilasters on the façades". 

"Zhaikmunai" buiness center. Construction, 2015. Photo © Maxim Pismenov
"Zhaikmunai" buiness center. Construction, 2015. Photo © Maxim Pismenov


"Zhaikmunai" buiness center. Construction, 2015. Photo © Maxim Pismenov
"Zhaikmunai" buiness center. Construction, 2015. Photo © Maxim Pismenov


Solving the issue of the dimensions of the building being at odds with the surroundings was made possible by using a few tricks at once. The architects singled out into a peculiar "mansard" the topmost VIP-floor and the maintenance premises above it. Thanks to its unexpected rounding, the volume of the building grew more sophisticated, and there appeared even an open terrace on the corner. This entire topmost part got "clad" in vertical lamellae of anodized aluminum capable at some moments to merge with the sky, especially when it is of a light-gray color; this makes the building look lower. Also important is the fact that the management of the company got the required level of visual protection from the windows of the neighboring buildings situated at a close range. 

"Zhaikmunai" buiness center. Construction, 2015. Photo © Alexander Khokhlachev
"Zhaikmunai" buiness center. Construction, 2015. Photo © Alexander Khokhlachev


The main volume of the business center has five floors in it. However, the windows of the second and third, as well as fourth and fifth stores are paired together, and the façade reads as a three-level one. In addition, the architects fractured the elongated volume vertically by covering the central part above the entrance with aluminum lamellae, and "shortened" it by using the same lamellae to cover the side section of the wall (behind it, the restrooms are actually situated, so this solution is also a functional one). The lateral wall is also covered in lamellae - when viewed from this vantage point, the building completely disappears against the sky. The sudden curve of the outer shell that conceals the firewall with a fire escape continues the "disguise" - the boring and bulky parallelepiped disappears without so much as leaving a trace. 

"Zhaikmunai" buiness center. Construction, 2015. Photo © Maxim Pismenov
"Zhaikmunai" buiness center. Construction, 2015. Photo © Maxim Pismenov


To cap it all, the open brick and the aluminum will not require of the owner of the building any excessive expenses to maintain them even in the realities of the local seasonal inland climate with its huge temperature drop, harsh winds, severe frosts in winter, and unbearable heat in summer. According to Julius Borisov, this peculiarly is also indicative of the quality of the project. "Our architects have learned the trick of mobilizing all of their resources and coming up with some truly brilliant project; what we are still missing, however, is the sturdy ordinary houses - he says - And this is particularly sad in view of the fact that such "average" buildings make up 85% of architects' work around the world. This is especially vital for small towns where high-quality up-to-date buildings are virtually non-existent. And one should stop complaining about the far distances, the absence of competent manpower, materials, and infrastructure - ultimately, this is all about professional design and effective management. Having thought out, while still in the preparation stage, all the elements, we were able to implement the project without in fact so much as leaving our office, only delegating our colleagues from the technical supervision department to the construction site. And this is quite a normal working situation. I think this economic recession will go a long way to "sober up" all the market players - actually, this is what's happening already".
"Zhaikmunai" buiness center. Construction, 2015. Photo © Maxim Pismenov
"Zhaikmunai" buiness center. Construction, 2015. Photo © Maxim Pismenov
"Zhaikmunai" buiness center. Construction, 2015. Photo © Maxim Pismenov
"Zhaikmunai" buiness center. Construction, 2015. Photo © Maxim Pismenov
"Zhaikmunai" buiness center. Construction, 2015. Photo © Alexander Khokhlachev
"Zhaikmunai" buiness center. Construction, 2015. Photo © Alexander Khokhlachev
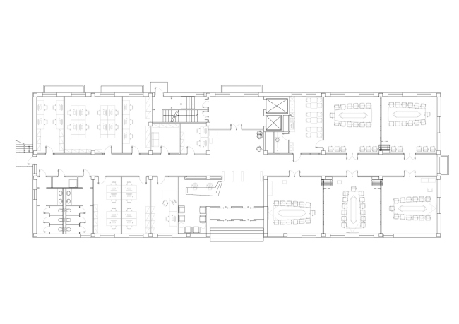
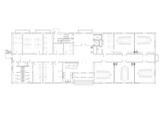
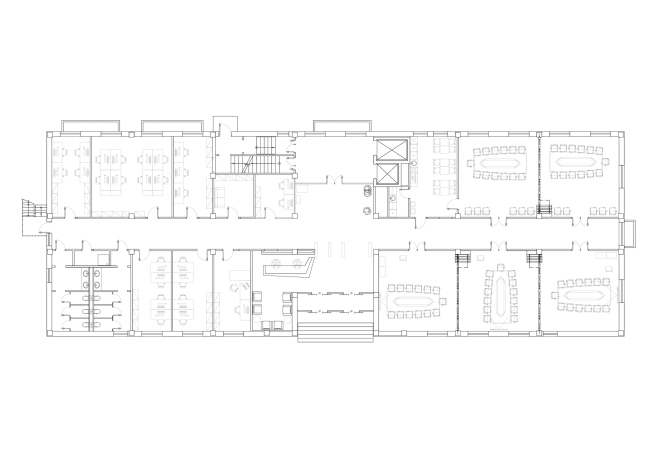
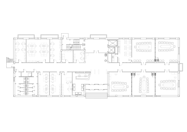
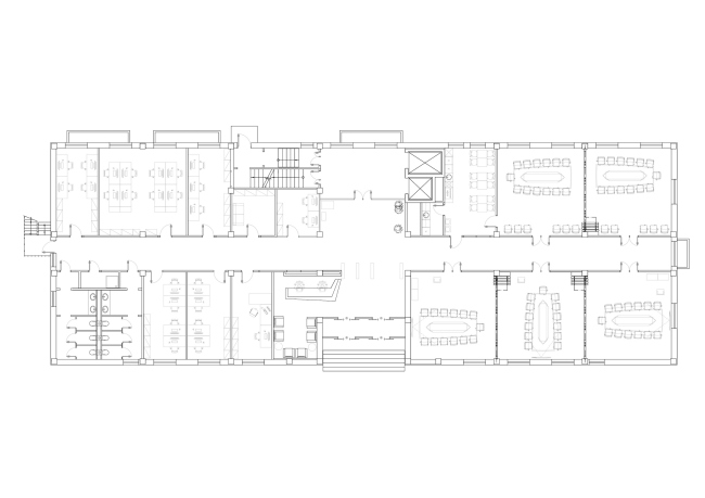
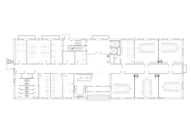
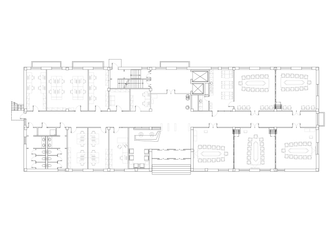
"Zhaikmunai" buiness center. Plan of the 1st floor. Construction, 2015. Photo © UNK Project
"Zhaikmunai" buiness center. Plan of the 1st floor. Construction, 2015. Photo © UNK Project
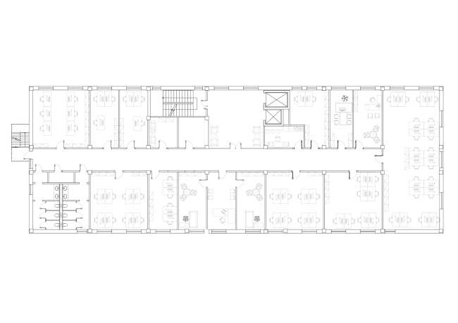
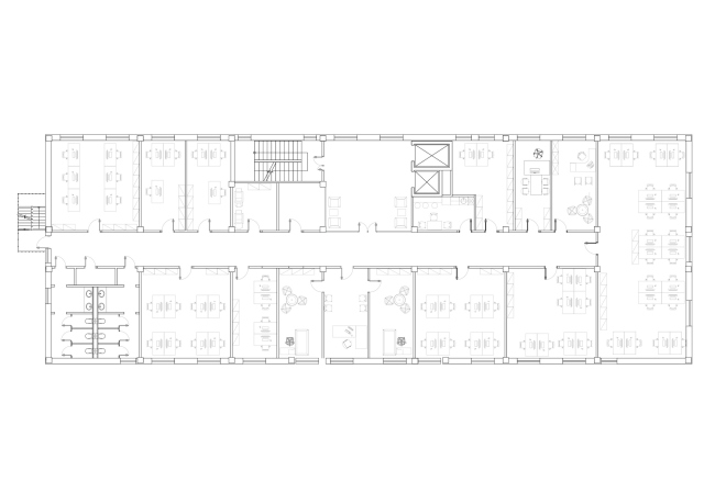
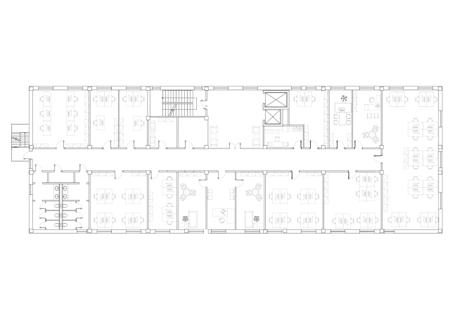
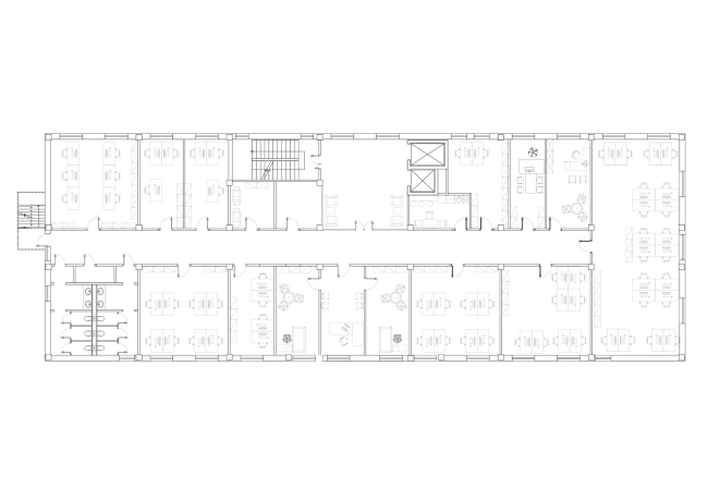
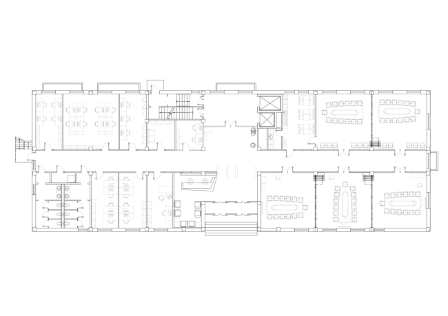
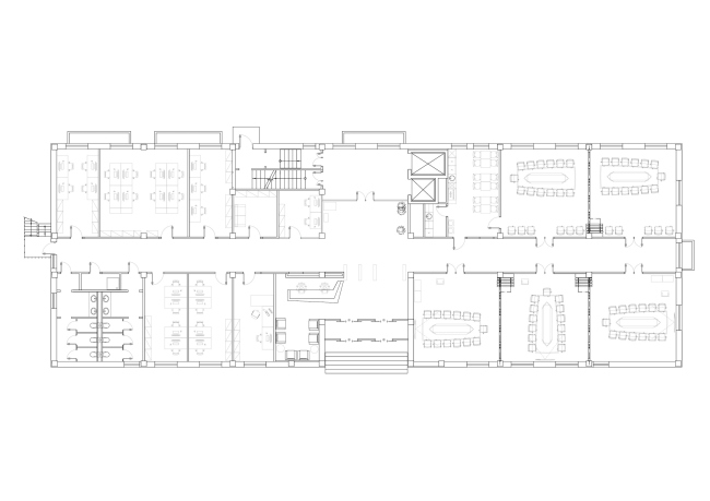
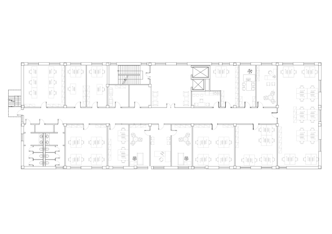
"Zhaikmunai" buiness center. Plan of the typical floor. Construction, 2015. Photo © UNK Project
"Zhaikmunai" buiness center. Plan of the typical floor. Construction, 2015. Photo © UNK Project