Published on Archi.ru (https://archi.ru)

28.04.2016

From a Bird's Eye View

Lilya Aronova
Studio:
ABV Group

A complicated land site in the south district of the nation's capital: Nikita Biryukov designs a residential complex consisting of four almost New-York-style skyscrapers that still pay respect to the realities of Moscow.

Multifunctional residential complex on the 5th Donskoy Proezd. 4 towers. Version 1 © ABV Group
Multifunctional residential complex on the 5th Donskoy Proezd. 4 towers. Version 1 © ABV Group


The project of four residential skyscrapers whose height rivals that of the giant towers of the Moscow City was created by the architects of Nikita Biryukov's "ABV Group" at the commission of "Northstar Development" for the land site lying between the Third Transport Ring and the Kanatchikovsky Proezd in the Donskoy District. The land site has no height restrictions whatsoever, so the buildings could rise as tall as the the architects pleased. On the other hand, the customer was very specific about the types of the apartment layouts: first of all, the architects were to figure out how to provide the top-quality views from the apartments and strike the people that would live here with the city panoramas - because the immediate surroundings of the complex cannot be called picturesque by any stretch of the imagination. 

Under the former Moscow government, the trapeze-shaped site with an area of some five hectares and encompassing estates 21 and 22, Unit 6, along the 5th Donskoy Proezd, was supposed to get built with retail stores and hotels but later on the city changed that function to become a residential one, reasoning that yet another shopping center would "complicate the already difficult" transport situation in this part of the Third Transport Ring. The few low-rise buildings that are there on the land site today will be demolished, people living in them today getting new housing - but still no beautiful things are expected to appear on the site anyway: quite near, there is a huge bulk of the power plant, an industrial park, and railroad warehouses - the only thing that the architects has left to do, as Nikita Biryukov puts it, was "selling the the views". And, in order to organize these panoramic views as efficiently as possible, the designers even went as far as renting a drone so as to get bird's eye views well ahead of getting down to actually designing the complex; thus, the views of the power plant were minimized as much as possible while still in the pre-design stage.

Multifunctional residential complex on the 5th Donskoy Proezd. 4 towers. View from the Third Transport Ring. Project, 2015 © ABV Group
Multifunctional residential complex on the 5th Donskoy Proezd. 4 towers. View from the Third Transport Ring. Project, 2015 © ABV Group


Multifunctional residential complex on the 5th Donskoy Proezd. 4 towers. View from the hospital side. Project, 2015 © ABV Group
Multifunctional residential complex on the 5th Donskoy Proezd. 4 towers. View from the hospital side. Project, 2015 © ABV Group


Multifunctional residential complex on the 5th Donskoy Proezd. 4 towers. View from the power plant. Project, 2015 © ABV Group
Multifunctional residential complex on the 5th Donskoy Proezd. 4 towers. View from the power plant. Project, 2015 © ABV Group


The architects drew inspiration from the source of the super-tall skyscraper 432 Park Avenue in New York, the construction of which have been recently completed on Manhattan. This "perfect model" was in fact proposed to Nikita Biryukov by the customer but the architect had nothing against it: he is a huge fan of the immaculate shape of the 426-meter tower designed by Rafael Vignoli that its author himself proudly calls "an architectural breath of fresh air amidst the raunchy Manhattan skyscrapers". While the quadrant is the purest of all geometric shapes, the Vignoli project, let's say, pulls it up to become a cube: along the perimeter of each floor (square on the plan), there are twenty-four square 3x3 meter windows commanding the panoramas of New-York.

Of course, from the "ambition" standpoint, the "ABV Group" did not even hope to stand up to the level of the tallest condominium of the Eastern hemisphere: while 432 Park Avenue with its proverbially expensive apartments became the symbol of sky-high luxury way before its construction was ever completed, the complex on the 5th Donskoy Proezd was designed in the realities of the not-so-advantageous financial situation, and the economic conditions did play a part. So, nobody was speaking about making any embellishments to its shape due to the purely economic reasons which, in fact, matches the aesthetic credo of Nikita Biryukov who prefers "pure" architecture without any unnecessary "pop" additions. 

Multifunctional residential complex on the 5th Donskoy Proezd. 4 towers. Section view. Project, 2015 © ABV Group
Multifunctional residential complex on the 5th Donskoy Proezd. 4 towers. Section view. Project, 2015 © ABV Group


In the course of the work, the company came up with eighteen versions of the project. Ultimately, with full approval from the customer, the architects settled on a set of four towers, two of them being 58 floors high, and another two - 74. Apart from the number of floors, the buildings are completely identical; such unification was also one of the original specifications. Rectangular on the plan, the towers are situated on the perimeter of the territory and perpendicular to the power plant and the Third Transport Ring (again, this was done in order to improve the sightseeing properties), framing the inside yard. The stylobate, the way we know it - a two-story volume occupied by retail stores - is only present on the Third Transport Ring side and functions as a buffer that separates the complex territory from the grime and the noise of the highway. Further on, in the direction of the center of the complex, at the expense of the height difference, the stylobate dives underground. It is planned that the underground part will contain everything that is necessary for the functioning of giant buildings: a two-level parking lot, technical and maintenance premises, as well as a spa complex and a medical center. In addition, there will be a separately standing nursery school in the yard.

Multifunctional residential complex on the 5th Donskoy Proezd. 4 towers. Master plan. Project, 2015 © ABV Group
Multifunctional residential complex on the 5th Donskoy Proezd. 4 towers. Master plan. Project, 2015 © ABV Group


Multifunctional residential complex on the 5th Donskoy Proezd. 4 towers. Version 2. Project, 2015 © ABV Group
Multifunctional residential complex on the 5th Donskoy Proezd. 4 towers. Version 2. Project, 2015 © ABV Group


Multifunctional residential complex on the 5th Donskoy Proezd. 4 towers. Version 2. Project, 2015 © ABV Group
Multifunctional residential complex on the 5th Donskoy Proezd. 4 towers. Version 2. Project, 2015 © ABV Group


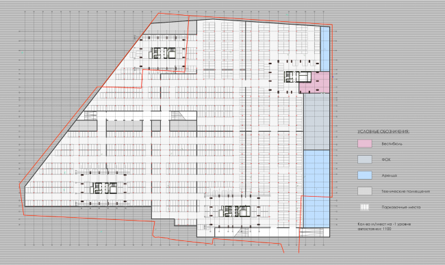
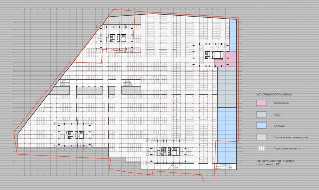
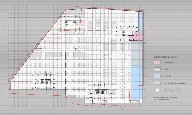
Multifunctional residential complex on the 5th Donskoy Proezd. Plan of the 1st floor. Project, 2015 © ABV Group
Multifunctional residential complex on the 5th Donskoy Proezd. Plan of the 1st floor. Project, 2015 © ABV Group


The plastic solution of the towers is rather laconic. The silhouette of the soaring parallelepiped (the height of the 58-floor buildings reaches 217 meters, the 74-floor ones - 273 meters) only breaks away from the vertical line in two instances - it widens on the level of the fifth floors forming a cantilever, barely perceptible in the overall scale of the building, and then narrows in steps towards the top, these steps being situated on opposite sides of the building and at a different height as they go up. Such a solution, almost without making the shape of the building more complicated, visually takes the extra weight off the top of the skyscraper, making it look more dramatic without adding any unnecessary architectural details. According to Nikita Biryukov, "the main thing in this project was its floor plan that to a great extent conditioned the outlines of the building, while the façades were secondary to it". Nevertheless, the design of the façades, for the decoration of which the architects propose to use coating stone and decorative composite panels, manifests the authors' love of pure shapes in full effect. The combination of glass and panels of light and very light shades, the impeccable geometry of the rectangular window apertures, gathered into horizontal groups on the sides of the facade, and vertical groups on the side walls, the vertical elongated stained glass windows on the first floors - all this gives the impression of lightness, enhancing the soaring look of the towers. As far as more "down-to-earth" task are concerned - namely, organizing the spacious inner yard - here "ABV Group" also stayed true to itself and planned a comfortable yet laconic territory that is dissected into ostentatiously geometric zones. The yard is open on all sides for the exception, as was mentioned above, the side adjoining the Third Transport Ring: as Nikita Biryukov says, "the last thing the architects wanted to do was make a fortress out of it".

Multifunctional residential complex on the 5th Donskoy Proezd. 4 towers. Version 3. Project, 2015 © ABV Group
Multifunctional residential complex on the 5th Donskoy Proezd. 4 towers. Version 3. Project, 2015 © ABV Group


Multifunctional residential complex on the 5th Donskoy Proezd. 4 towers. Version 3. Project, 2015 © ABV Group
Multifunctional residential complex on the 5th Donskoy Proezd. 4 towers. Version 3. Project, 2015 © ABV Group


Multifunctional residential complex on the 5th Donskoy Proezd. 4 towers. Landscaping. Project, 2015 © ABV Group
Multifunctional residential complex on the 5th Donskoy Proezd. 4 towers. Landscaping. Project, 2015 © ABV Group


Multifunctional residential complex on the 5th Donskoy Proezd. 4 towers. Landscaping. Project, 2015 © ABV Group
Multifunctional residential complex on the 5th Donskoy Proezd. 4 towers. Landscaping. Project, 2015 © ABV Group


Multifunctional residential complex on the 5th Donskoy Proezd. 4 towers. Interior. Project, 2015 © ABV Group
Multifunctional residential complex on the 5th Donskoy Proezd. 4 towers. Interior. Project, 2015 © ABV Group


Multifunctional residential complex on the 5th Donskoy Proezd. 4 towers. Interior. Project, 2015 © ABV Group
Multifunctional residential complex on the 5th Donskoy Proezd. 4 towers. Interior. Project, 2015 © ABV Group


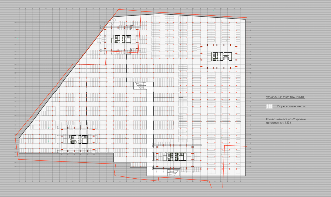
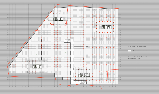
Multifunctional residential complex on the 5th Donskoy Proezd. Plan of the typical floor. Project, 2015 © ABV Group
Multifunctional residential complex on the 5th Donskoy Proezd. Plan of the typical floor. Project, 2015 © ABV Group


If one is to look at the project, for example, from a bird's eye view, or, rather, through the lenses of the drone rented by the architects, he will be able to trace Nikita Biryukov's elegant towers enter into a dialogue with the not-so-remote skyscrapers of the Moscow City, watch the nearby high-rises get lost against their mighty background, and watch the power plant chimneys timidly cringe into the ground (there are also four of them, by the way). In spite of the numerous intermediate approvals that the authors got, the project of "ABV Group" will not be implemented. "Well - Nikita Biryukov shrugs - we, of course, are not Ivan Leonidov with his Narkomtyazhprom high-rise on the Red Square but let's say that now we will also have an incomplete skyscraper of our own!"



Multifunctional residential complex on the 5th Donskoy Proezd. 4 towers. View from the Gagarin Square. Project, 2015 © ABV Group
Multifunctional residential complex on the 5th Donskoy Proezd. 4 towers. View from the Gagarin Square. Project, 2015 © ABV Group
Multifunctional residential complex on the 5th Donskoy Proezd. 4 towers. Landscaping. Project, 2015 © ABV Group
Multifunctional residential complex on the 5th Donskoy Proezd. 4 towers. Landscaping. Project, 2015 © ABV Group
Multifunctional residential complex on the 5th Donskoy Proezd. 4 towers. Landscaping. Project, 2015 © ABV Group
Multifunctional residential complex on the 5th Donskoy Proezd. 4 towers. Landscaping. Project, 2015 © ABV Group
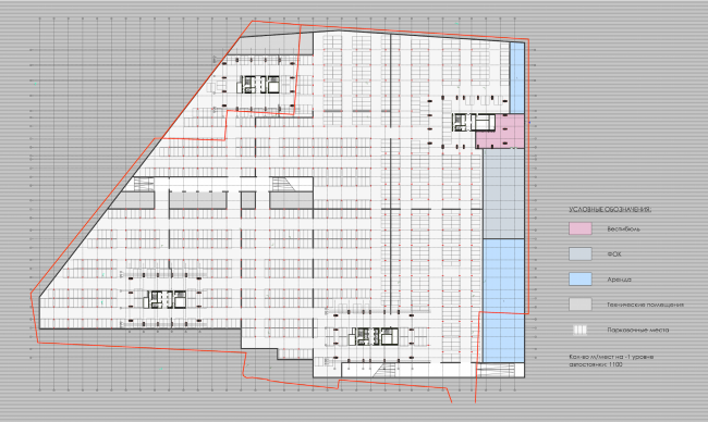
Multifunctional residential complex on the 5th Donskoy Proezd. Plan of the second floor. Project, 2015 © ABV Group
Multifunctional residential complex on the 5th Donskoy Proezd. Plan of the second floor. Project, 2015 © ABV Group