Published on Archi.ru (https://archi.ru)

22.01.2016

At the Junction of Geometry and Landscape

Lilya Aronova
Studio:
Arkhstroydesign ASD

The "main stage" of the new residential area designed by Aleksey Ivanov at a suburb of the city of Kirov will be presented by a natural park that will also serve as a multifunctional entertainment center.

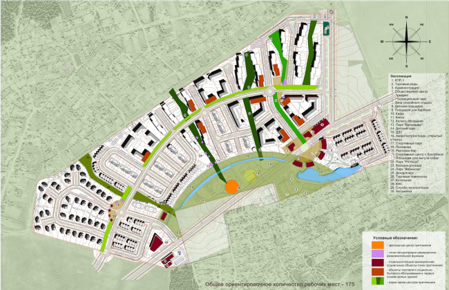
The architectural and planning concept of the residential projectin Kirov. Master plan. Project, 2015 © Archstroydesign
The architectural and planning concept of the residential projectin Kirov. Master plan. Project, 2015 © Archstroydesign


Russian regions have seen "Archstroydesign" do a lot of successful work. The city of Kirov is hosting one of the most interesting programs; several projects are being developed, the settlement of ILand getting the Russian Business Class award in 2014. When his trusted partner - the same company that built ILand - invited Aleksey Ivanov to take part in the closed tender for the best architectural proposal for yet another land site, the architect, though somewhat surprised, took the proposition with all due seriousness. And won the contest.

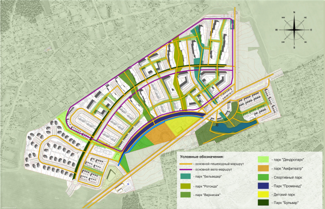
With an area of 43 hectares, the territory to be developed is located in the west of Kirov, next to the village of Perestorontsy (but still within the city limits). The terrain here gradually lowers towards southeast where a small forest and a swamped pond are situated. Yet another landscape "given" is a road that has already been designed and that partially runs through the planned territory. In each of his projects, Aleksey Ivanov, as one of his main tasks, sets making the most the already-existing conditions - in other words, what he does is not transform the reality but make the reality work for him. For one, the transient highway for him is not only the inevitable "evil" (meaning, noise, ecology issues, and deteriorating of viewing value) but also a "blessing" because the automotive accessibility is always a great plus for a new residential area. And as far as the limitations are concerned, they can be minimized if we separate the residential buildings from the road by a green zone with culture and sports objects, this green zone taking on the honorary function of the center of the district's social activity. Some extra attractiveness will be given to the park by a cascade of creeks that the swamped reservoir and the nearby brook can be turned into. 

The architectural and planning concept of the residential projectin Kirov. Location plan. Project, 2015 © Archstroydesign
The architectural and planning concept of the residential projectin Kirov. Location plan. Project, 2015 © Archstroydesign


The architectural and planning concept of the residential projectin Kirov. Analysis of the land site's strong and weak points. Project, 2015 © Archstroydesign
The architectural and planning concept of the residential projectin Kirov. Analysis of the land site's strong and weak points. Project, 2015 © Archstroydesign


The architectural and planning concept of the residential projectin Kirov. Conceptual proposal on the territory development. Project, 2015 © Archstroydesign
The architectural and planning concept of the residential projectin Kirov. Conceptual proposal on the territory development. Project, 2015 © Archstroydesign


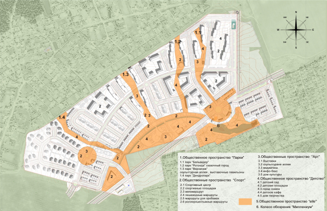
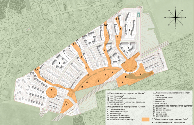
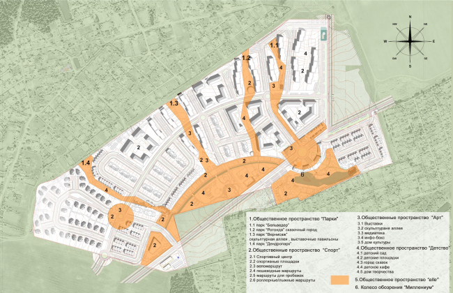
The architectural and planning concept of the residential projectin Kirov. Layout of the public territories. Project, 2015 © Archstroydesign
The architectural and planning concept of the residential projectin Kirov. Layout of the public territories. Project, 2015 © Archstroydesign


The architectural and planning concept of the residential projectin Kirov. Zoning layout for the landscaping and basic routes. Project, 2015 © Archstroydesign
The architectural and planning concept of the residential projectin Kirov. Zoning layout for the landscaping and basic routes. Project, 2015 © Archstroydesign


Having decided on the social "nucleus", the architects came up with a planning layout based on green rays running away from the center, combining this geometry with the natural lines of the landscape. Separated by boulevards and parks, the blocks have lined up to become a clear-cut composition whose plan looks a bit like an antique amphitheater. It was in fact the pilot name that the future district got.

The architectural and planning concept of the residential projectin Kirov. Panorama. Project, 2015 © Archstroydesign
The architectural and planning concept of the residential projectin Kirov. Panorama. Project, 2015 © Archstroydesign


The development of "Amphitheater" will be multifunctional: it will consist of multi-apartment 3-4-5-story buildings and blocked double-sided townhouses; a land site for custom-designed houses is also provided for. According to Aleksey Ivanov's plan, the multi-apartment buildings will be placed in the northeast part of the territory so as to offset to a certain degree one of the site's limitations consisting in the chaotic surroundings that include a whole range of the suburban housing, from the old "birdhouse" buildings to the typical 17-story high-rises. The latter are just being built to the northeast of "Amphitheater". As for the custom-designed houses, they are "tucked away" in the western segment. Still, though, their construction is only scheduled for the last stage of the land site development, and the experienced architect cannot be quite sure if by that time the construction will not undergo some considerable changes. "Over the long term of construction, the customer demand goes through ebb and flow, there are approvals and extra approvals to be obtained, and the custom-designed houses can easily give way to townhouses or even high-rises, and if you do not predict and provide for this system of possible changes, this could easily kill your project" - Aleksey Ivanov explains. In order to avoid this extremely undesirable scenario, the architect divided the process of developing this territory into phases, each of which can develop more or less independently from all the others, i.e. on each of the planning stages the character of the development can be modified or changed altogether - with no harm to the general picture. Even the construction camp is designed in such a way that the development and the construction could meet each other halfway, and the construction machinery would not go through the already populated quarters. 

The architectural and planning concept of the residential projectin Kirov. Sketches. Project, 2015 © Archstroydesign
The architectural and planning concept of the residential projectin Kirov. Sketches. Project, 2015 © Archstroydesign


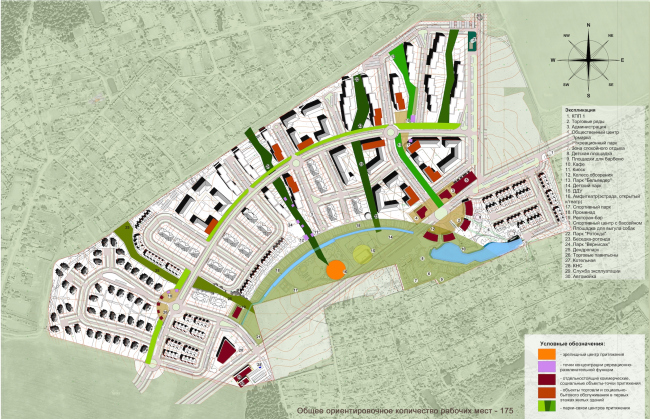
The architectural and planning concept of the residential projectin Kirov. Functional layout. Project, 2015 © Archstroydesign
The architectural and planning concept of the residential projectin Kirov. Functional layout. Project, 2015 © Archstroydesign


The architectural and planning concept of the residential projectin Kirov. An example of development in the style of historicism. Project, 2015 © Archstroydesign
The architectural and planning concept of the residential projectin Kirov. An example of development in the style of historicism. Project, 2015 © Archstroydesign


The architectural and planning concept of the residential projectin Kirov. An example of development in the style of modernism. Project, 2015 © Archstroydesign
The architectural and planning concept of the residential projectin Kirov. An example of development in the style of modernism. Project, 2015 © Archstroydesign


The architects also ensured that the first people to live in "Amphitheater" would not get the heavy financial burden of servicing the park with all of its sports, children's, and social/recreation facilities: the organization of the public zones is planned in such a way that they will be launched into operation in accordance with the number of people moving in to live in the residential buildings. By the way, the functional spaces are important for Aleksey Ivanov not only in terms of their social function: he treats them as some sort of "development backbone", especially at night when the lights go out, the parks and boulevards will illustrate the architect's idea with their punctured lines of lights.

The architectural and planning concept of the residential projectin Kirov. Visualization. Project, 2015 © Archstroydesign
The architectural and planning concept of the residential projectin Kirov. Visualization. Project, 2015 © Archstroydesign


The architectural and planning concept of the residential projectin Kirov. Visualization. Project, 2015 © Archstroydesign
The architectural and planning concept of the residential projectin Kirov. Visualization. Project, 2015 © Archstroydesign


The architectural and planning concept of the residential projectin Kirov. Panorama. Project, 2015 © Archstroydesign
The architectural and planning concept of the residential projectin Kirov. Panorama. Project, 2015 © Archstroydesign


When the project was all but completed, it turned out that the land site that cuts in like a wedge into the development territory from the east side, now also belonged to the customer - which meant that now the architects had an opportunity to include it into the plan of the micro district. Aleksey Ivanov proposes to build on this land site a curious quarter under a pilot name of "Bastion": a dense one, oriented inside itself, 6 to 8 stories high, so, the transition to the nearby 17-floor buildings turned out all the more smoother. Interesting is the fact that from the ideological standpoint this peripheral and, actually, modestly sized plot of land can indeed become the new "gravity center" of the whole district: the architect likens it to the Kremlin, while the buildings that stretch away from it (and gradually lowering their number of floors) he likens to the settlements that used to be built beyond the fortress walls. 

The architectural and planning concept of the residential projectin Kirov. Belvedere. Visualization. Project, 2015 © Archstroydesign
The architectural and planning concept of the residential projectin Kirov. Belvedere. Visualization. Project, 2015 © Archstroydesign


The architectural and planning concept of the residential projectin Kirov. Map of socially active centers. Project, 2015 © Archstroydesign
The architectural and planning concept of the residential projectin Kirov. Map of socially active centers. Project, 2015 © Archstroydesign


The appearance of the new center falls in perfectly with one of the main working principles of "Archstroydesign" - the multi-central organization of development - that Aleksey Ivanov seems to be consistently sticking to in all of his planning solutions. This project also provides for a number of gravity points at the crossings of pedestrian and vehicle routes, these points being functionally diverse, from bakeries to recreation centers. Furthermore, building these connections, the architects did not limit themselves with "their own" territory - they decided it was worth their while to trace the pedestrian routes from the designed district to the city's cultural centers: the Monastery of the Holy Dormition, the hippodrome, and the central movie theater. It turned out that all of these were located within but an hour's walk from here that, with some territory improvements, could become both interesting and educational. Aleksey Ivanov considers this work to be of extreme importance: due to it, this basically suburban area gets included into the city fabric in a fully-fledged way, while the city, with minimal financial investment, gets a new humanitarian dimension. 
The architectural and planning concept of the residential projectin Kirov. Diagram of the pedestrian routes. Project, 2015 © Archstroydesign
The architectural and planning concept of the residential projectin Kirov. Diagram of the pedestrian routes. Project, 2015 © Archstroydesign
The architectural and planning concept of the residential projectin Kirov. Traffic diagram. Project, 2015 © Archstroydesign
The architectural and planning concept of the residential projectin Kirov. Traffic diagram. Project, 2015 © Archstroydesign
The architectural and planning concept of the residential projectin Kirov. Traffic diagram. Section 1-1, boulevard. Project, 2015 © Archstroydesign
The architectural and planning concept of the residential projectin Kirov. Traffic diagram. Section 1-1, boulevard. Project, 2015 © Archstroydesign
The architectural and planning concept of the residential projectin Kirov. Traffic diagram. Section 2-2, residential street. Project, 2015 © Archstroydesign
The architectural and planning concept of the residential projectin Kirov. Traffic diagram. Section 2-2, residential street. Project, 2015 © Archstroydesign
The architectural and planning concept of the residential projectin Kirov. Traffic diagram. Section 3-3, one-way street in the residential area. Project, 2015 © Archstroydesign
The architectural and planning concept of the residential projectin Kirov. Traffic diagram. Section 3-3, one-way street in the residential area. Project, 2015 © Archstroydesign
The architectural and planning concept of the residential projectin Kirov. An example of development in the style of historicism. Project, 2015 © Archstroydesign
The architectural and planning concept of the residential projectin Kirov. An example of development in the style of historicism. Project, 2015 © Archstroydesign
The architectural and planning concept of the residential projectin Kirov. An example of development in the style of historicism. Project, 2015 © Archstroydesign
The architectural and planning concept of the residential projectin Kirov. An example of development in the style of historicism. Project, 2015 © Archstroydesign
The architectural and planning concept of the residential projectin Kirov. An example of development in the style of historicism. Project, 2015 © Archstroydesign
The architectural and planning concept of the residential projectin Kirov. An example of development in the style of historicism. Project, 2015 © Archstroydesign
The architectural and planning concept of the residential projectin Kirov. An example of development in the style of modernism. Project, 2015 © Archstroydesign
The architectural and planning concept of the residential projectin Kirov. An example of development in the style of modernism. Project, 2015 © Archstroydesign