Published on Archi.ru (https://archi.ru)

02.07.2008

Romance of a flight

Maria Fadeeva
Studio:
PANACOM

Tall blind fences with huge constructions behind shut from the outer world – this is the image of most sites in Russian cottage settlements where land is freely sold without. But this is not about the new project by “Panakom” bureau developed for “Vaututinki” village – the house is bravely unfolding towards the road, fence is low, and full glazing is applied not only from the inner yard side

Probably it is not wise to start the story about the house from telling about fencing – but it really amazes – does really clients’ set of mind is changing, and openness common for European and American architecture will become common for us. It is much easier to convince a client that a house does not need classical column caps and granite facing than to reason that it doesn’t have to be an unassailable fortress. Well, the critical moment here was relief of the site which is lower than the road, in a small valley. That is if there was tall fencing the yard would be in quite dark “crater”.

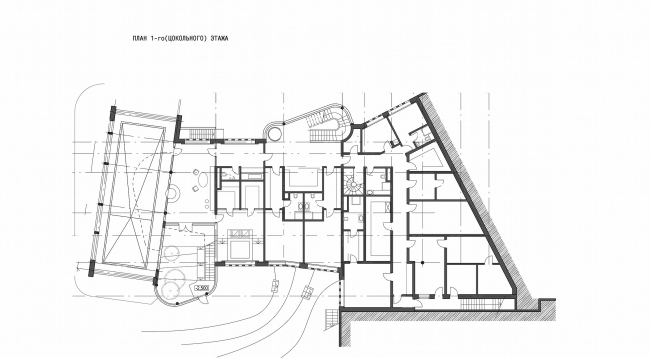
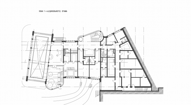
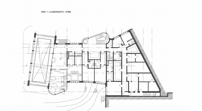
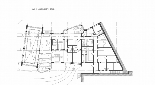
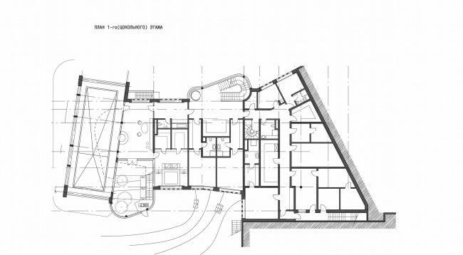
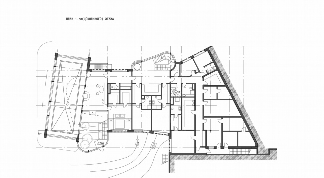
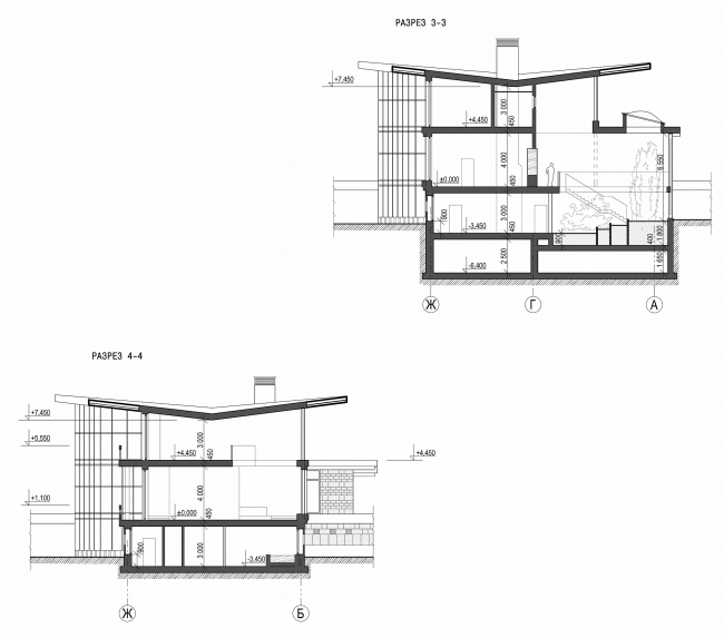
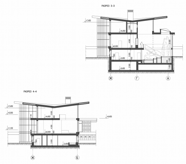
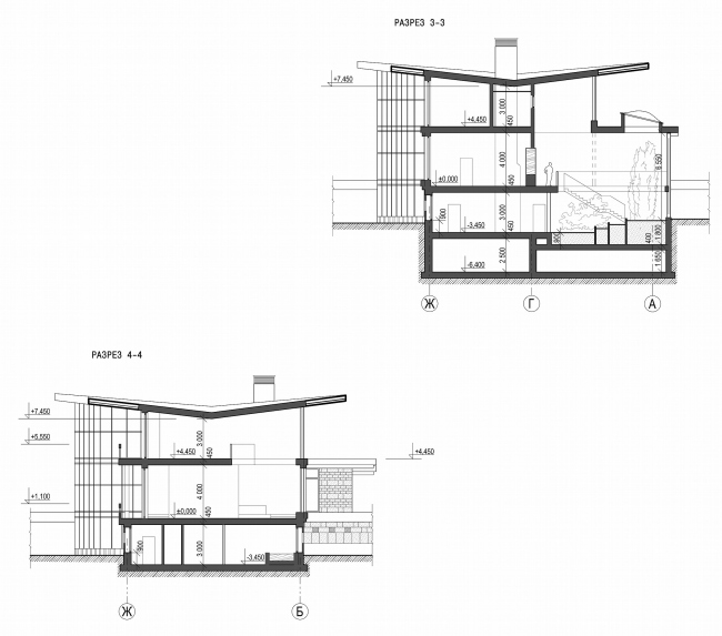
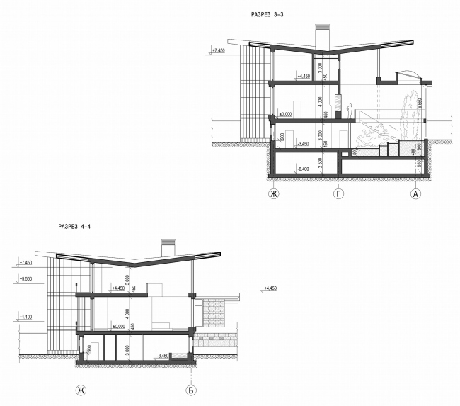
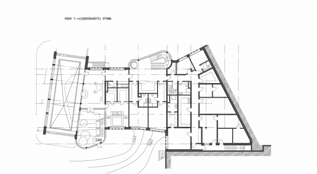
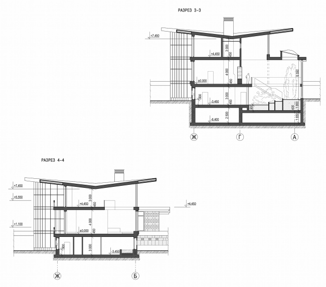
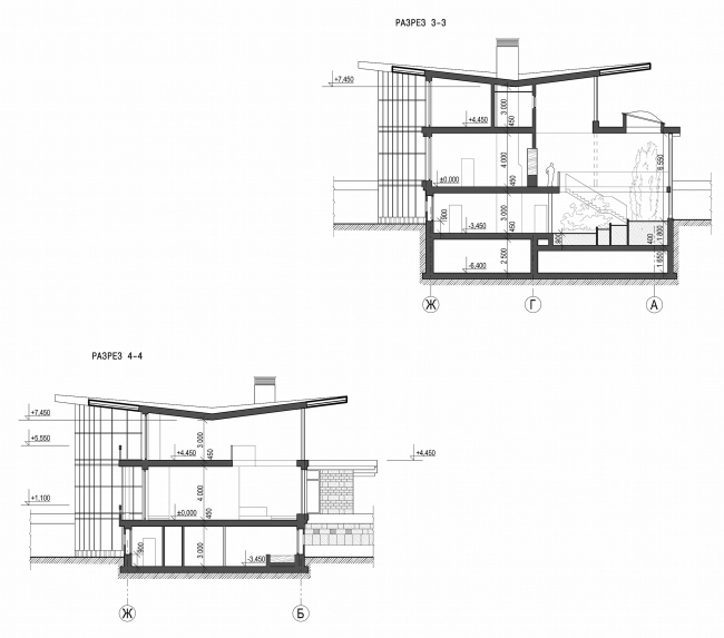
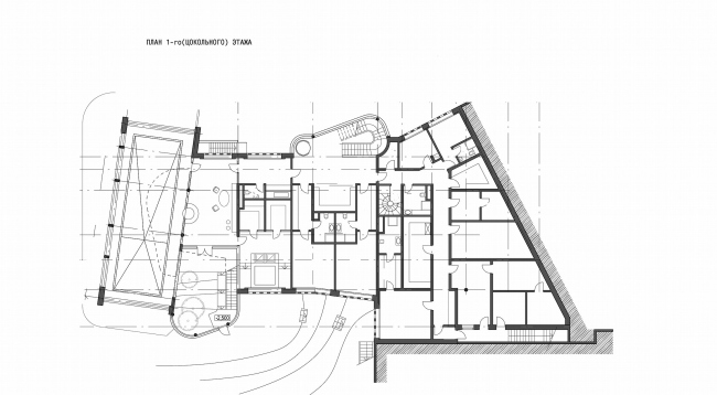
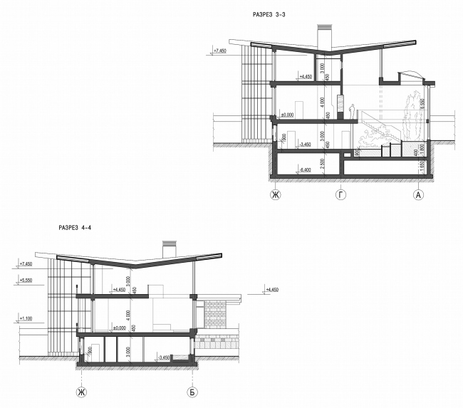
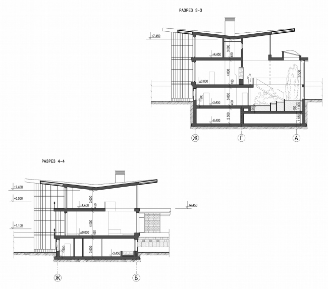
Due to landscape state the house is deeper relating to the roadway and outside it looks as 2storeyed, though in fact it is 3storeyd. The front entrance leads right to the second floor. The house has rich filling: garage for 4 cars, a true winter garden with all required for keeping tropical plants, 2 living rooms as common for Panakom’s work, a large resting room by the swimming pool, and the glass lift.

This remarkably reflected the layout: it is like the rectangular “box” is being pushed apart from inside, so he has got additional raised spots and curves. They all are of glass, they are like a breakthrough in architecture of the house and also in client’s set of mind. Well, the architects say the just wanted to creat more romantic image.

Really, the project is romantic – you just look at the roof’s shape, slopes of which are like wings of an ivory gull. They are logical extension of the vertical gradation of the spaces’ nature which was different to their purpose. I would call it a poem of a flight. For example the first floor with a swimming pool and garden designed for resting is like a cave. Though this level is not underground but on it, it remains basement character – the long wall of the swimming-pool is blind, windows of the living-rooms are closed by stone wall decorated with small “portholes”. Only the garden is maximally glazed - plant turn to sun and to the surrounding nature this is why the space gets threelight height. The second floor is more neutral. Rooms of the third, more private floor, has views to the forest edge better seen due to the roof’s shape. It seems they could grow higher and higher following fly of these wings.

None
None
None
None
None
None
None
None
None
None
None
None
None
None
None
None
None
None
None
None
None
None
None
None