Published on Archi.ru (https://archi.ru)

15.02.2016

Towers above the Forest

Lilya Aronova
Architect:
Andrey Romanov
Ekaterina Kuznetsova
Studio:
ADM

A residential complex PerovSky upon a project of ADM bureau is being built at the border of Terletskaya Dubrava, to become the embodiment of the spirit – not the form – of city block development ideology.

Multifunctional building with residential and other kinds of premises on the Shosse Entuziastov. Project, 2015 © ADM
Multifunctional building with residential and other kinds of premises on the Shosse Entuziastov. Project, 2015 © ADM


The construction site where MP Group is building the new multi-functional residential complex is located in a unique natural environment considering the urban conditions. Not only is it separated from Entuziastov Shosse and Perovo residential districts with green territories of two hospitals and the House of Veterans of the Stage, but also, practically right by its east boarder, in a few minutes walking distance, begins the territory of Terletsky Park – a monument of landscaping with a cascade of ponds, an old forest and other joys of a park; not to mention the vast Izmaylovsky forest stretching out on the other side of the highway. This magnificent location from the point of view of ecology and future characterization, has another advantage – the architects did not have to think how to fit this project into the urban landscape due to complete absence of the latter. One of the authors of the complex under construction, Andrey Romanov, compares such objects with a submarine which exists autonomously and follows only its own rules. “The main thing – he adds, – is for the object to be by itself integral and have internal harmony”.

The main idea, on which Andrey Romanov and Ekaterina Kuznetsova founded the project, is the subject of “own territory”, in other words – the popular city block development; after all, a street block in its essence is nothing short of a cell of urban structure proportionate to a man, inside of which the residents must get the feeling of being home. It is clear that the easiest way to construct such a cell is traditionally – to insulate the inner space with a closed boundary. But, if it is not possible the same result can be achieved with less obvious architectural methods. PerovSky residential complex consists of three 23-storey towers: however hard you try, you will not build a traditional block with such components. That is why, the architects of ADM united the towers with a two-storey stylobate. Such method has already made a good showing: the low-rise volume does not oppress the on-looker, does not overshadow the yard but successfully fulfills its role as an interlink. The architects also used it in their previous work for MR Group, a residential complex on Vorobyovy Gory.          

In this case, the volume complicated on plan – pedantically repeated straight lines of the towers in one place and suddenly drawn back parabolic curves – does not only place all the necessary infrastructure – from a supermarket and cafes to a fitness center – but also serves as a barrier separating the inside territory from the outside, street space. The main lobby of the stylobate leads to one of the residential buildings. To get into the other two, one must cross the yard. The opening of the second entrance leads to the kindergarten, built with a view to both the complex residents and their neighbors. The architects moved its promenade area decorated with colored triangles outside the yard – it adjoins the outer side of the stylobate.

Multifunctional building with residential and other kinds of premises on the Shosse Entuziastov. Main entrance. Project, 2015 © ADM
Multifunctional building with residential and other kinds of premises on the Shosse Entuziastov. Main entrance. Project, 2015 © ADM


Multifunctional building with residential and other kinds of premises on the Shosse Entuziastov. Main entrance. Project, 2015 © ADM
Multifunctional building with residential and other kinds of premises on the Shosse Entuziastov. Main entrance. Project, 2015 © ADM


Multifunctional building with residential and other kinds of premises on the Shosse Entuziastov. Yard. Project, 2015 © ADM
Multifunctional building with residential and other kinds of premises on the Shosse Entuziastov. Yard. Project, 2015 © ADM


Given the obvious stylistic similarity, the facades of the residential buildings are executed in different sculptural manners. More specifically, there is one topic and many variations. It is partially conditioned by varying apartment layout, arrangement by cardinal points, and partially – by the wish to make each tower block individual. Clinker brick is used for all the facades, but the wide color range of this material allowed to choose a specific tone for every building, animating them with less or more emphasized pixelization which creates a feeling of volume and even movement: slight garishness is better for the eye than blind monotony. The cross-beams in the inter-floor lines are placed vertically forming light unobstrusive frames which can be seen only as a slight hint through the pattern of cladding seams.         

Another tool for the wall arrangement is the rhythm of the windows. Just as in their previous projects, Andrey Romanov and Ekaterina Kuznetsova build it up in a masterful manner. In one of the towers – the red brick one – the windows arranged in vertical rows afford diagonal dynamics, echoing on every other floor with the alternation of nook-windows. The regular but dynamic pattern of the embrasures makes the wall feel lighter compensating the tangible substantiality of red brick. The second tower is brighter and more austere and regular; its embrasures concentrate notably towards the center of the facades, accenting the solidity of the corners. The third tower is even brighter, and its rhythm is complicated by horizontal alternation that turns the façade into a chess pattern. This image is supported by metal-coated horizontal elements on the tops and bottoms of the windows, vertical wooden panels (also used in the second tower) and small grill boxes for ACs.          

The partition walls of the stylobate are noticeably thinner, there is more fenestration and its volume rolled out on the ground feels slender and light. A line of bright wood runs across both parts of the stylobate on its top like a continuous strip. It is inserted deeper than the prominent ribs but above the surface of the windows, conforming to the same effect of multilayer walls applied in the residential towers. In places where the flat surfaces of the stylobate facades extend the lines of tower walls, they are turned into red-brick lattice, genetically connected with the terracotta color of the first tower. In the cavities of mini-squares in front of the entrances, the architects replace the wooden rids with even thinner white ones: this “nibbled apple” effect emphasizes the openness of the entrance areas, invites to come inside, and at the same time, allows to feel the transitional character of these areas, half-enclosed in the geometrical contours of the block, but not yet outside, behind the transparent surface of the glass. The roof of the stylobate is scheduled to be planted with trees, so that the view of it from the windows will not disturb the harmony of the surrounding forest panorama.

Multifunctional building with residential and other kinds of premises on the Shosse Entuziastov. Project, 2015 © ADM
Multifunctional building with residential and other kinds of premises on the Shosse Entuziastov. Project, 2015 © ADM


Multifunctional building with residential and other kinds of premises on the Shosse Entuziastov. Fragment of the first unit. Project, 2015 © ADM
Multifunctional building with residential and other kinds of premises on the Shosse Entuziastov. Fragment of the first unit. Project, 2015 © ADM


Multifunctional building with residential and other kinds of premises on the Shosse Entuziastov. Fragment of the second unit. Project, 2015 © ADM
Multifunctional building with residential and other kinds of premises on the Shosse Entuziastov. Fragment of the second unit. Project, 2015 © ADM


Multifunctional building with residential and other kinds of premises on the Shosse Entuziastov. Fragment of the third unit. Project, 2015 © ADM
Multifunctional building with residential and other kinds of premises on the Shosse Entuziastov. Fragment of the third unit. Project, 2015 © ADM


Multifunctional building with residential and other kinds of premises on the Shosse Entuziastov. Fragment of the third unit. Project, 2015 © ADM
Multifunctional building with residential and other kinds of premises on the Shosse Entuziastov. Fragment of the third unit. Project, 2015 © ADM


Multifunctional building with residential and other kinds of premises on the Shosse Entuziastov. Project, 2015 © ADM
Multifunctional building with residential and other kinds of premises on the Shosse Entuziastov. Project, 2015 © ADM


Multifunctional building with residential and other kinds of premises on the Shosse Entuziastov. Project, 2015 © ADM
Multifunctional building with residential and other kinds of premises on the Shosse Entuziastov. Project, 2015 © ADM


The thing that Andrey Romanov and Ekaterina Kuznetsova never economize on is the improvement of the living environment. It concerns not only and so much the budget, as ideas and time spent for the development. After all, besides its practical functions (benches for resting, playgrounds for playing, trees for shadowing) a correct design of building surrounding grounds solves serious macrotasks. The architects are sure that a person cannot perceive even the best façade in isolation from the landscape context. “It is a matter of goal-setting, – says Andrey Romanov. – We want to create an environment which a person would find exciting and comfortable even if many details have to be perceived subconsciously”.      

PerovSky complex has to arouse curiosity right at its entrance: in front of the main lobby, there is a picturesque front square with trees, rounded benches and concentric rings or colored tiles. A similar but smaller square will appear at the entrance to the kindergarten. But, of course, the most intricate and thoroughly elaborated landscape design will fall to the complex residents. The architects plan to mound actual hills in the courtyards (since there will be underground parking lots, a certain amount of soil has to be added for planted trees), arrange playgrounds – not to mention flowerbeds, lawns and paths forming images that sometimes remind real specimen of avant-garde. The children raised in such a yard are only to be envied – they will have their own little world, with mountains, gardens, alleys and lanes. Grown-ups will also find where to rest and what to fix their eyes on in this environment. Seeing the rich landscape together with the guarding but light and see-through stylobate a passer-by will perceive it as a fragment of a well-developed city – a comfortable space of a human scale. To some extent, it can be seen as a solution to the problem of a priori “inhumane” sizes of high-rise buildings: the towers step back onto the background; from the outside, only the two-storey part can be perceived and “functions”. And even though, on returning home, the resident will feel the height of the towers, it is felt differently from up here – through the panorama of the surrounding parks and city in the perspective. And our increasingly “less comfortable” time needs both the coziness of the landscape, and the feel of “soaring over the city”.              
Multifunctional building with residential and other kinds of premises on the Shosse Entuziastov. Project, 2015 © ADM
Multifunctional building with residential and other kinds of premises on the Shosse Entuziastov. Project, 2015 © ADM
Multifunctional building with residential and other kinds of premises on the Shosse Entuziastov. Kindregarten. Project, 2015 © ADM
Multifunctional building with residential and other kinds of premises on the Shosse Entuziastov. Kindregarten. Project, 2015 © ADM
Multifunctional building with residential and other kinds of premises on the Shosse Entuziastov. Project, 2015 © ADM
Multifunctional building with residential and other kinds of premises on the Shosse Entuziastov. Project, 2015 © ADM
Multifunctional building with residential and other kinds of premises on the Shosse Entuziastov. Kindergarten. Project, 2015 © ADM
Multifunctional building with residential and other kinds of premises on the Shosse Entuziastov. Kindergarten. Project, 2015 © ADM
Multifunctional building with residential and other kinds of premises on the Shosse Entuziastov. Master plan. Project, 2015 © ADM
Multifunctional building with residential and other kinds of premises on the Shosse Entuziastov. Master plan. Project, 2015 © ADM
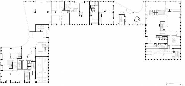
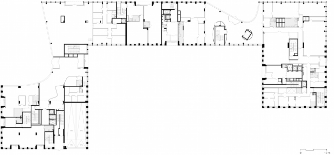
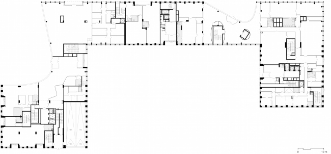
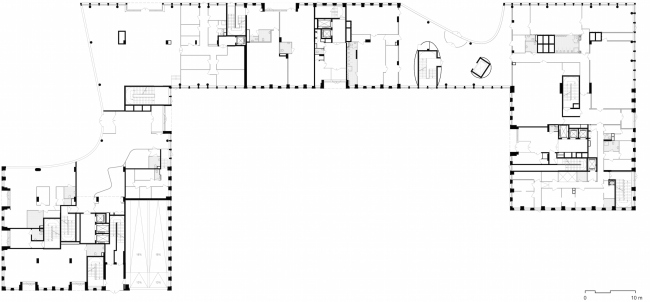
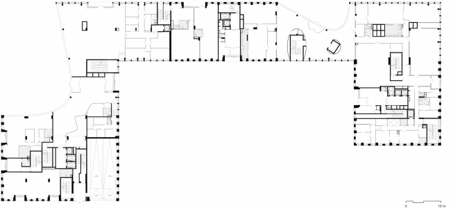
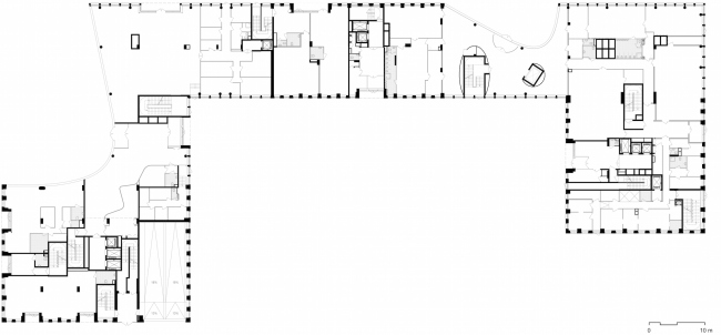
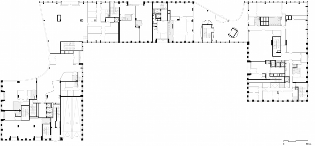
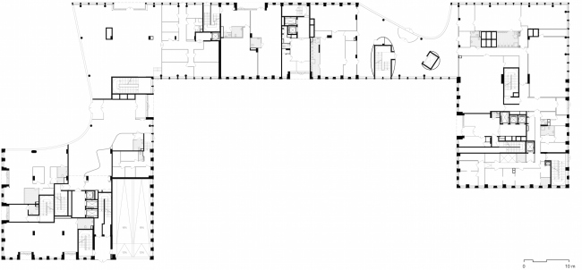
Multifunctional building with residential and other kinds of premises on the Shosse Entuziastov. Plan of the first floor. Project, 2015 © ADM
Multifunctional building with residential and other kinds of premises on the Shosse Entuziastov. Plan of the first floor. Project, 2015 © ADM
Multifunctional building with residential and other kinds of premises on the Shosse Entuziastov. Plan of the typical floor Project, 2015 © ADM
Multifunctional building with residential and other kinds of premises on the Shosse Entuziastov. Plan of the typical floor Project, 2015 © ADM