Published on Archi.ru (https://archi.ru)

23.12.2015

Ramp to Heaven

Julia Tarabarina
Architect:
Nikita Yavein
Studio:
Company:

In this issue, we continue the story of the Mikhailovka reconstruction for the Management School of Saint Petersburg University. Nikita Yavein turned the students' cafe/club into a meditation on stability versus agility, and on the boundaries of perception and associative thinking.

The campus of the Higher Management School of Saint Petersburg State University. Axonometry. Reconstruction zone © Studio 44
The campus of the Higher Management School of Saint Petersburg State University. Axonometry. Reconstruction zone © Studio 44


We have already shared about the reconstruction project of the dacha of the Great Prince Mikhail Nikolaevich meant to turn it into the Higher Management School of Saint Petersburg University and about the implementation of the main educational building in the estate's livery yard. The main historical buildings of the Great Prince's dacha are located in the eastern part of the territory that was allotted for the management school, closer to Strelnya. In the western part, on the Peterhof side, historically, there was only the small St. Olga Church, built by the architect David Grimm back in the early 1860's in the pseudo-Russian style with cubic uprights, and a few villages. In this location, the architects are planning to place a group of modern buildings including a few students’ dormitories, a gym, and the already mentioned cafe/club. Dominated by different stereo-metric figures and freely strewn across the land site, these volumes, according to Nikita Yavein, look very much like park pavilions. Among the things that come to mind, there are, of course, the glacier pyramids in the Tver estates of Nikolai Lvov - but even the conical earth mound in the park of the eastern half of the Mikhailovskaya Dacha also resonates with this idea. On the other hand, the building of the campus is inevitably larger than any park pavilion, their shapes closer to abstract geometry - this inevitably brings up another association, with a group of spaceships standing at the spaceport of a lawn here. The futuristic and the archaic are intermixed here, just as they are with the reminiscences about the Enlightenment of the XVIII century - and not only Lvov but also Leda - and about the avant-garde, the power of each association depending upon the viewer's personal background and preferences. 

The building of the club/cafe is so far the only one that has been completed in the modern half of the campus. Which comes as no surprise - it is the informal "gravity center" of its residential part, the place where the students will meet and hang out - which is something that after them graduating will stay in their memory forever, longer that any exams. 

The community center, a "key" of sorts, or even the "hub of the universe" of the student part of the campus, was designed by Nikita Yavein as a pentagon - looking pretty much like the soviet "quality sign", and, consequently, a five-facade stair-step ziggurat. It looks both like a mausoleum and the Tower of Babel, particularly the kind that we see on the picture by Breugel the Senior, and the mountain tomb of Hatshepsut pharaoh. It is also reminiscent of the "latent classics" by David Chipperfield, only in a more refined, almost ethereal version of wooden porticos, and, furthermore, seems to be constantly in a state of slight agitation, or in a process of transformation from something to something else. The play of perspectives - and here each straight line treats the contraction of space on its own unique way blowing the viewer's mind just as the good old relatively theory - is supported by the pentagon shape which also violates the static, and how! - no matter from each angle you will look you will not be quite able to grasp what exactly is going on here. And this is what is actually going on: the tectonic transformation of the controversially agile mausoleum that is the exact opposite of the Moscow's static ziggurat designed by Shchusev. Tatlin's tower suggests itself for being included into the thick stew of the enumerated comparisons as a thing in itself or as the final dominant chord. 

The students' cafe of the Higher Management School of Saint Petersburg State University. Structure. Construction, 2014 © Studio 44
The students' cafe of the Higher Management School of Saint Petersburg State University. Structure. Construction, 2014 © Studio 44


In actuality, the resemblance between this building and the mausoleum is purely typological, the kind that is always there between stair-step towers. Here is the paradox, however: the stair-step tower as the symbol of conscious stability, this rational and sturdy "stairway to heaven", a sure-fire thing that you just cannot fell down - this tower is turned here into something spinning round but just as sturdy and reliable. Yes, and this is the fate of the manager, especially one of the higher ranks, that even the ziggurat that he has conquered is somewhat shaky, making him to be on the alert for losing his balance. Rocking such a static form as a ziggurat tower is quite a feat, considering that this form is by definition the paragon of sturdiness and stability. It is hard to say what could rock the foundation of the mausoleum at all but Tatlin's tower is not that simple after all - the dynamic spiral demonstrates the dependability of the motion of the oil rig drill, only drilling upward, leaving the observer with no doubts as for the linearity of the progress, however spiral. Who would have ever thought that if you crossed two such stabilities you would get such agility at the end of the day?

There is yet another drastic difference between the building in question and the classic ziggurat: all the real towers (Tatlin's one is not quite real) were built for the chosen few - the kings, the priests, the politburo, after all. And here we get to deal with a cafe building that is "lightweight" by default - or at least not so pompous and designed for everybody, well, maybe not quite for everybody, it is designed for the future big decision makers, but now they are as yet students, and not the politburo at any rate. This is why one wants to understand this dynamics as democratization of the form, transformation from a temple to a club, this being a significant and essential kind of transformation.

The students' cafe of the Higher Management School of Saint Petersburg State University. Structure. Construction, 2014. Photograph © Margarita Yavein, Tatiana Strekalova
The students' cafe of the Higher Management School of Saint Petersburg State University. Structure. Construction, 2014. Photograph © Margarita Yavein, Tatiana Strekalova


The students' cafe of the Higher Management School of Saint Petersburg State University. Structure. Construction, 2014. Photograph © Margarita Yavein, Tatiana Strekalova
The students' cafe of the Higher Management School of Saint Petersburg State University. Structure. Construction, 2014. Photograph © Margarita Yavein, Tatiana Strekalova


The students' cafe of the Higher Management School of Saint Petersburg State University. Structure. Construction, 2014. Photograph © Margarita Yavein, Tatiana Strekalova
The students' cafe of the Higher Management School of Saint Petersburg State University. Structure. Construction, 2014. Photograph © Margarita Yavein, Tatiana Strekalova


So, this far we've got the building of a pentagon plan - a wide pyramid splashed on the ground, the spacious terraces of its usable roof ascending in a very smooth spiral towards its top landing. For this reason, the parts of the roof (them being also the floors of the terraces) are tilted a little, while the central symmetry of the "quality sign" shifts off-center, and the pentagon of the inner hall is no longer symmetrical. For this same reason, the elongated lines of the roof, instead of a straight line that could have been easily logically explained, form on the outside some kind of reverse perspective causing the observer to think about the image of a pyramid but not just any pyramid but shivering from the cold sea wind blowing from the Finnish gulf. This kind of "hidden dynamics" is one of the favorite techniques of today's architecture - but not always and not everybody is capable of making it so obvious working with a basic humble and seemingly trivial form.

The spiral theme is supported by the entrances - not at all the centered portals but outstanding wind porches; they, again, remind an entrance to some iceberg pyramid in some estate designed by Nokolai Lvov. The tambours are not only asymmetrically placed, always to the right of the center but their axes are also turned like propeller blades, their volumes looking different: one is black glass, another is snow-white, yet another is wooden, and the fourth one is stone white with an odd inclusion of rock face finish.

The students' cafe of the Higher Management School of Saint Petersburg State University. Structure. Construction, 2014. Photograph © Margarita Yavein, Tatiana Strekalova
The students' cafe of the Higher Management School of Saint Petersburg State University. Structure. Construction, 2014. Photograph © Margarita Yavein, Tatiana Strekalova


The façades support that same optical effect of upsetting the balance: the glass surfaces and the offsets of the wooden grilles of colonnades alternate in a staggered order. The austere strokes of the verticals enhance the dance of the cornice lines, simultaneously "tying down" and harnessing the hint at the wild dynamics.

The spacious and well-lit halls of the bottom tier include not one but several cafés: a teachers’ restaurant, a smorgasbord, a cafeteria and a cheap canteen. They are separated by paths that lead from the entrances to the stairways leading to the second floor - together the whole thing looks like a semblance of a "multiplex". The kitchen - the "hearth" - is placed in the very middle but it also spills over to one of the sectors of the pentagram. 

The top floor is occupied by a multifunctional hall lit and aired through wide openings that can be, however, closed by metallic shutters whenever necessary. One can get to the upper level from the street, as well as by following the main spiral route set by the tambours of the entrances, ascending the open staircases mounted up against the walls of the inner volume. The diagram that the architects drew clearly shows the human flow from each of the entrances stream towards the nearest staircase, after which, already on the level of the second floor, short little stairways continue the ascendancy fracturing the persistent logic of the spiral ramp until finally one of them takes the person through a grilled volume out on the roof. Pushed up against the wall, the stairways display a clearly viewable profile of their steps and look like a definite and deliberate element of "modern archaism", the conditional "Tower of Babel" - here one can do a fair share of meditating on us as humans eternally climbing uphill, the theme bring pretty obvious and covering virtually every aspect of our existence. The blades of the stairways in their classic and essential meaning are symbolically opposed by the elevator running down a tube covered by a triangular pattern of joining seams. For all intents and purposes, stairways are a pretty ancient invention - they help you climb to heights but they also require a lot of effort from you in order to do that; the lift, however, does not, and, in a curious sense, stairways and elevators are almost antonyms. The triangular pattern of the elevator echoes the pattern of the dome of the congress center playing here, just as the latter does outside, the role of the "high technology" part of the building.

Layout. The students' cafe of the Higher Management School of Saint Petersburg State University. Structure. Construction, 2014 © Studio 44
Layout. The students' cafe of the Higher Management School of Saint Petersburg State University. Structure. Construction, 2014 © Studio 44


Layout. The students' cafe of the Higher Management School of Saint Petersburg State University. Structure. Construction, 2014 © Studio 44
Layout. The students' cafe of the Higher Management School of Saint Petersburg State University. Structure. Construction, 2014 © Studio 44


The students' cafe of the Higher Management School of Saint Petersburg State University. Structure. Construction, 2014. Photograph © Margarita Yavein, Tatiana Strekalova
The students' cafe of the Higher Management School of Saint Petersburg State University. Structure. Construction, 2014. Photograph © Margarita Yavein, Tatiana Strekalova


The students' cafe of the Higher Management School of Saint Petersburg State University. Structure. Construction, 2014. Photograph © Margarita Yavein, Tatiana Strekalova
The students' cafe of the Higher Management School of Saint Petersburg State University. Structure. Construction, 2014. Photograph © Margarita Yavein, Tatiana Strekalova


Plan of the basement floor. The students' cafe of the Higher Management School of Saint Petersburg State University. Structure. Construction, 2014 © Studio 44
Plan of the basement floor. The students' cafe of the Higher Management School of Saint Petersburg State University. Structure. Construction, 2014 © Studio 44


Plan of the first floor. The students' cafe of the Higher Management School of Saint Petersburg State University. Structure. Construction, 2014 © Studio 44
Plan of the first floor. The students' cafe of the Higher Management School of Saint Petersburg State University. Structure. Construction, 2014 © Studio 44


Plan of the second floor. The students' cafe of the Higher Management School of Saint Petersburg State University. Structure. Construction, 2014 © Studio 44
Plan of the second floor. The students' cafe of the Higher Management School of Saint Petersburg State University. Structure. Construction, 2014 © Studio 44


There is plenty of light inside: the outer walls are transparent; the inside ones are white; the floor is beige; there are also broad stripes of light-colored wood and thin stripes of dark metal on the ceilings plus the greenish glass fill-ins of the railings. The bearing columns - round and white - are placed at fairly large intervals; they are echoed by arrays of round lights of reflected light.

Meanwhile, the dominance of the white color was not something that was planned by the architects, and here we find yet another associative parallel, although almost lost in the course of the construction in favor of saving up the resources. "This is the Temple of the Rock" - Nikita Yavein shares - We planned - by contrast with the rather calm facades - to decorate the interior with colorful ceramics so as to achieve the effect that somebody who enters the building finds themselves in a sort of a treasure trove... The white color was not originally meant to dominate the interior". Indeed, presently the column of the elevator is the only texturizing accent, while the walls of the inside volume of the tower were initially supposed to be covered by a thin carpet of multicolored stripes making them look warm and attractive but at the same time pixelated, fractured into bytes of graphic information - or into surfaces with strokes of different direction - but not with such sculpturally obvious ones as now.

Interior. Project. The students' cafe of the Higher Management School of Saint Petersburg State University. Structure. Construction, 2014 © Studio 44
Interior. Project. The students' cafe of the Higher Management School of Saint Petersburg State University. Structure. Construction, 2014 © Studio 44


The students' cafe of the Higher Management School of Saint Petersburg State University. Structure. Construction, 2014. Photograph © Margarita Yavein, Tatiana Strekalova
The students' cafe of the Higher Management School of Saint Petersburg State University. Structure. Construction, 2014. Photograph © Margarita Yavein, Tatiana Strekalova


The students' cafe of the Higher Management School of Saint Petersburg State University. Structure. Construction, 2014. Photograph © Margarita Yavein, Tatiana Strekalova
The students' cafe of the Higher Management School of Saint Petersburg State University. Structure. Construction, 2014. Photograph © Margarita Yavein, Tatiana Strekalova


The students' cafe of the Higher Management School of Saint Petersburg State University. Structure. Construction, 2014. Photograph © Margarita Yavein, Tatiana Strekalova
The students' cafe of the Higher Management School of Saint Petersburg State University. Structure. Construction, 2014. Photograph © Margarita Yavein, Tatiana Strekalova


On the outside, the jagged band of the terraces falls into three tiers and ends on the upper landing; all these surfaces are designed as usable. It is curious to see what the pyramid of the club looks like when the students sit down on the roof terraces - the whole thing leaves an impression of a "populated hill", not a dead and cold mausoleum.

The volume is used to capacity; it is spacious, open to all sides, every of its corners being effectively used. It is broad and balanced but at the same time thin and agile; its shape - which is inevitable for a stair-step pyramid - is, on the one hand, laden with associations, and, on the other hand, feels quite at ease in the company of the sparse northern birch trees on the shore of the Finnish Gulf. Gracefully reconciled in the architecture of the cafe/club, the sums of controversies look as if they were meant to set an example for the future managers. In any case, the sloping floor of the terraces will teach them to always be on their guard and be ready to act in some pretty unpredictable situations - which is something that a manager's work is all about, particularly in view of the times that we seem to be in for.
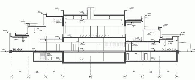
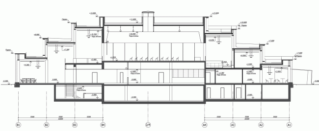
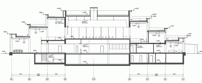
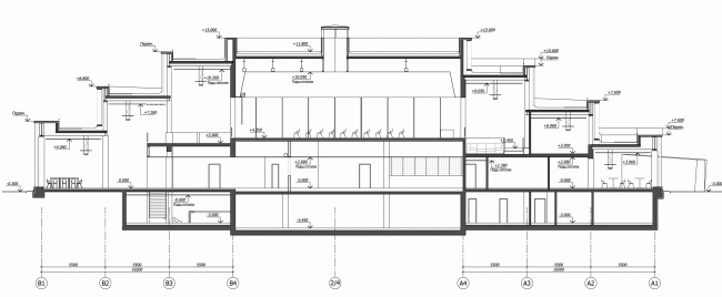
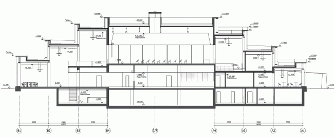
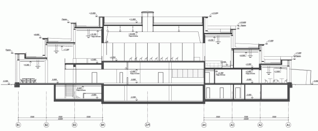
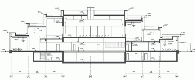
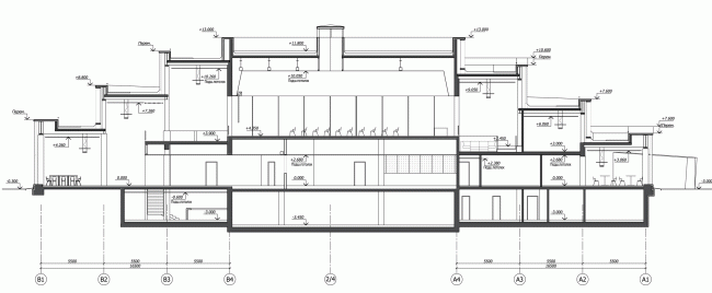
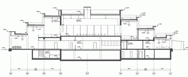
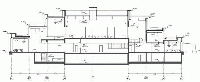
Section view. The students' cafe of the Higher Management School of Saint Petersburg State University. Structure. Construction, 2014 © Studio 44
Section view. The students' cafe of the Higher Management School of Saint Petersburg State University. Structure. Construction, 2014 © Studio 44