Published on Archi.ru (https://archi.ru)

03.03.2016

Two Hearts in One Body

Anna Starostina
Architect:
Boris Levyant
Studio:
ABD architects

In district D4 of Skolkovo Innovation Center, the first stone has been laid in the foundation of a head-office and a research and development center of TMK company.

Research and Development center in Skolkovo © ABD architects
Research and Development center in Skolkovo © ABD architects


Following the architects of residential clusters, the rest of participants of Russia’s largest project of the recent years are trying to “play Tetris” using the territory of a research and development experimentation center as its field. While creating a research center for one of the leading manufacturers of steel pipes, ABD architects faced a challenging task: they had to locate both the office and industrial volumes on a rather narrow and prolonged land lot. As a result, the seven-floor L-shaped working area “embraces” the low and extended square shop for testing the products: two familiar figures from the popular game, innovational for its time.     

The constructible site, a little over 1 hectare, is located in district D4. It is sandwiched between the two main traffic arteries of the future innovation center: the so-called Parkway and Skolkovsky Boulevard. The building “opens up” to the latter. On the third side, there will be a guest parking lot in the shape of a giant “plate”: it is the only information on it available for now. Opposite to another long façade, the authors plan an office center, but its visual and design features have not been yet defined either. The environment did not “help” the architects much. They could only follow the general, rather strictly stated construction norms for Skolkovo territory and the technological requirements of the client.

Research and Development center in Skolkovo. Overview from the side of the boulevard © ABD architects
Research and Development center in Skolkovo. Overview from the side of the boulevard © ABD architects


Research and Development center in Skolkovo. Location plan © ABD architects
Research and Development center in Skolkovo. Location plan © ABD architects


Research and Development center in Skolkovo. The scheme of planning organization of the land site © ABD architects
Research and Development center in Skolkovo. The scheme of planning organization of the land site © ABD architects


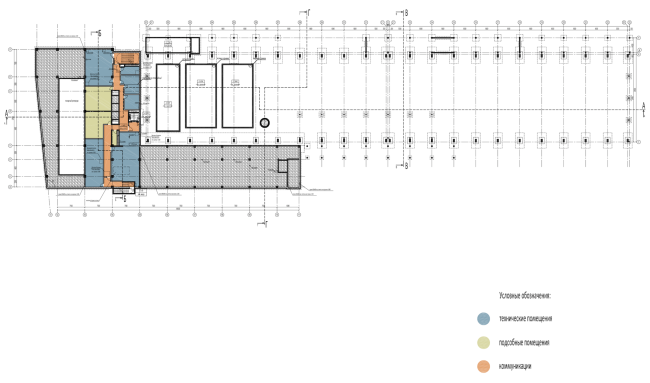
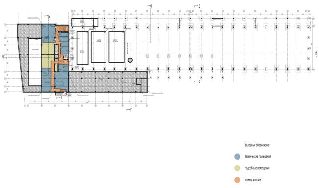
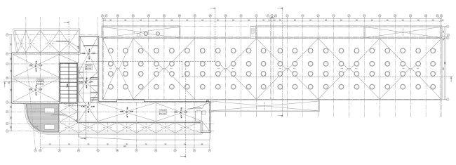
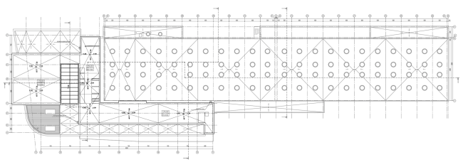
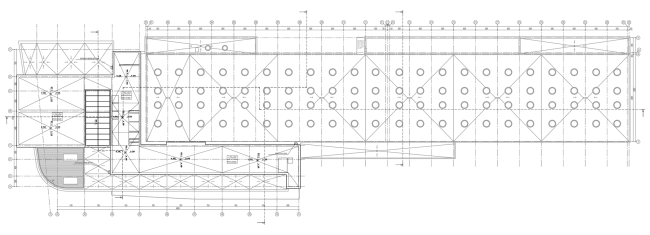
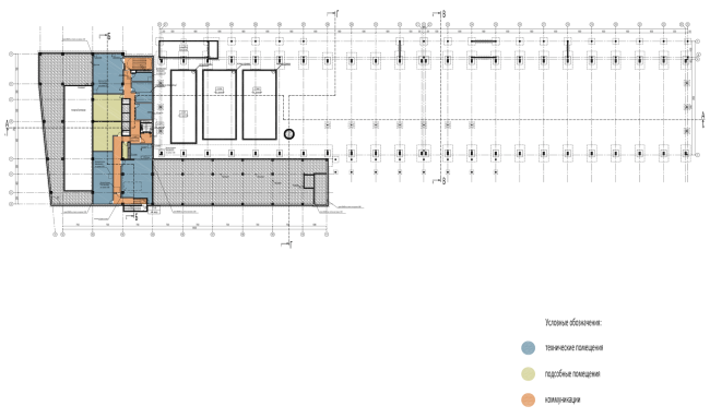
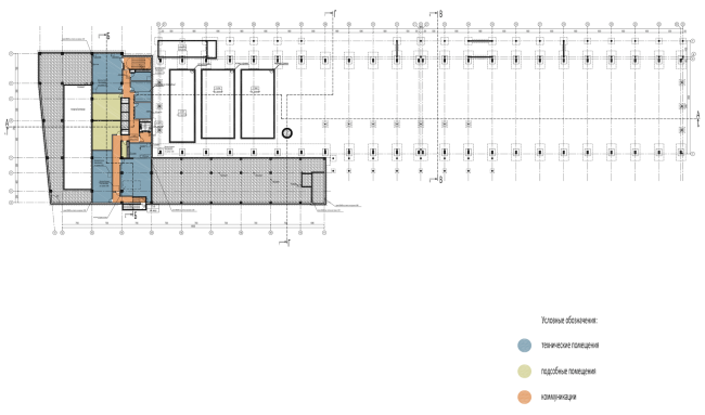
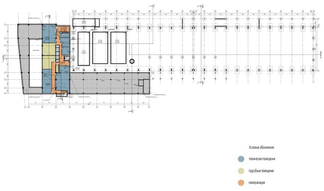
Research and Development center in Skolkovo. Plan of the first floor © ABD architects
Research and Development center in Skolkovo. Plan of the first floor © ABD architects


According to the chief architect of the project, Ilya Levyant, it was the typology that turned out to be the greatest challenge for the participants. “We planned a building for a particular client and it had to answer its technological purposes, – explains the architect. – The experience of TMK company, which already has two similar centers, helped us out. In any case, there was no shortage of information”.

“The long, narrow lot did not allow to construct two separate buildings to clearly separate the office area from the test shop – goes on Ilya Levyant, – so we thought of a compromise option: each part would have its own foundation, each would be planned according to its appropriate standards, but on the compositional level, they would be united and connected with a long communication corridor. And so that the vibrations of the four machines for testing the pipe samples (also each on its own foundation) would not disturb the employees from their work, we had to make an expansion joint”.

Research and Development center in Skolkovo. South facade © ABD architects
Research and Development center in Skolkovo. South facade © ABD architects


Nevertheless, the research laboratory is placed in the office building. On the whole, it is arranged as an average class “A” office. In the middle, there is a building-high glassed-in atrium: it rounds up all the rooms and connects them with the vestibule. Such solution also helped to let the natural light in, which gives an opportunity of the most flexible zoning of the working area. The functionally preconditioned inner structure is translated into the composition of the facades: the rounded corner of the ground floor is logically allocated for a show-room; the notable protrusion on the first floor marks a spacious two-storey meeting room, and finally the top floor that also has a glassed-in outporching, is meant for the VIP area with the most attractive views round the whole horizon. There will also be an exit leading to a comfortable landscaped roof with wooden flooring, made for informal talks on a higher level.               

The functional differences of the two parts of the building are clearly reflected in the external finish as well. The solid volume of the test center is designed in a rather rough manner. It has a double façade where expanded aluminum sheets are used as outer panels. No window openings will be provided for in this solid “lattice”, and daylight will only come inside through special round and flat bay-windows in the roof – an interesting and rather unexpected “friendly wink” towards the architects of Alvar Aalto’s library in Vyborg. The administrative building also has a double-layer ventilated façade, but the outer surface is typically made of glass and with built-in LED elements and special UV protection on the southern and western parts of the building.

Research and Development center in Skolkovo © ABD architects
Research and Development center in Skolkovo © ABD architects


Research and Development center in Skolkovo. Facades © ABD architects
Research and Development center in Skolkovo. Facades © ABD architects


Research and Development center in Skolkovo. Facades © ABD architects
Research and Development center in Skolkovo. Facades © ABD architects


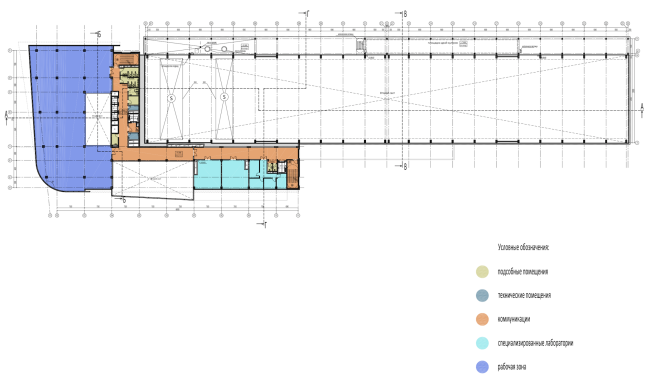
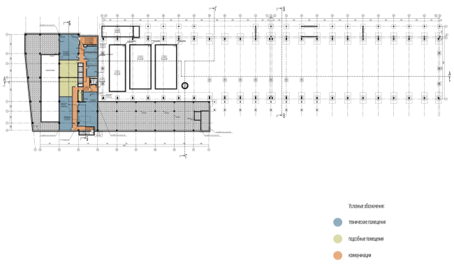
Research and Development center in Skolkovo. Plan of the 1st floor © ABD architects
Research and Development center in Skolkovo. Plan of the 1st floor © ABD architects


Research and Development center in Skolkovo. Plan of the roof © ABD architects
Research and Development center in Skolkovo. Plan of the roof © ABD architects
        

According to the requirements of the innovation center management, the construction will obtain an ecological certificate LEED. Besides the attended, ventilated facades and sun protection, the architects have provided for a rainwater collection system, enhanced energy efficiency and used a special heat protecting covering on the roof. The authors also had to develop and coordinate different variants of pipe sample delivery to the test shop: it is prohibited to use any motor vehicles on the territory of Skolkovo, traffic is only possible with bicycles and electromobiles.  

The construction of the TMK research center is planned to be finished by the turn of 2017. 
Research and Development center in Skolkovo. South facade © ABD architects
Research and Development center in Skolkovo. South facade © ABD architects
Research and Development center in Skolkovo. North facade © ABD architects
Research and Development center in Skolkovo. North facade © ABD architects
Research and Development center in Skolkovo. West and east facades © ABD architects
Research and Development center in Skolkovo. West and east facades © ABD architects
Research and Development center in Skolkovo. Plan of the 2nd floor © ABD architects
Research and Development center in Skolkovo. Plan of the 2nd floor © ABD architects
Research and Development center in Skolkovo. Plan of the 3rd floor © ABD architects
Research and Development center in Skolkovo. Plan of the 3rd floor © ABD architects
Research and Development center in Skolkovo. Plan of the typical (5-5) floor © ABD architects
Research and Development center in Skolkovo. Plan of the typical (5-5) floor © ABD architects
Research and Development center in Skolkovo. Section view © ABD architects
Research and Development center in Skolkovo. Section view © ABD architects
Research and Development center in Skolkovo. Section views © ABD architects
Research and Development center in Skolkovo. Section views © ABD architects
Research and Development center in Skolkovo. Routing of cargo vehicles © ABD architects
Research and Development center in Skolkovo. Routing of cargo vehicles © ABD architects
Research and Development center in Skolkovo. Model © ABD architects
Research and Development center in Skolkovo. Model © ABD architects