Published on Archi.ru (https://archi.ru)

02.12.2015

Efficiency in Volume

Alla Pavlikova
Studio:
Arch Group

A concept of modular transforming interiors for small apartments.

Design concept for efficiency apartments. Photographs © Arch group
Design concept for efficiency apartments. Photographs © Arch group


Just think - not so long ago, the clients dreamt of spacious living and dining rooms, large floor-to-ceiling windows and high ceilings. Today, many customers and tenants reconsider rational use of small spaces. In line with these trends and following the wish of the client who ordered a big multifamily house “to create a unique low-budget product, not yet presented on real estate market”, the architects of Arch group bureau have developed a project of standard interior that can be transformed for mini-apartments. It is suitable for apartments with the area of 205-388 square feet.
  
The smallest apartment considered by the architects is a studio of 205 square feet that looks like a hotel suite with a shower tray, built-in wardrobe and a kitchen conditionally separated from the sleeping area with a movable partition. The small space is restricted with a feeling of closedness and the architects did everything possible to free the future tenant from this constraining paradigm. In particular, says Alexey Goryainov, – the authors proposed to cover the walls with special panels with grooves for fixating hanging furniture. To paraphrase the classical words, here anything and anywhere can be hung on a wall, as well as moved and regrouped – whenever you wish and even without using a hand drill, since the walls are already prepared for rearrangement.    

Design concept for efficiency apartments. Photographs © Arch group
Design concept for efficiency apartments. Photographs © Arch group


Design concept for efficiency apartments. Photographs © Arch group
Design concept for efficiency apartments. Photographs © Arch group


Design concept for efficiency apartments. Photographs © Arch group
Design concept for efficiency apartments. Photographs © Arch group


Design concept for efficiency apartments. Photographs © Arch group
Design concept for efficiency apartments. Photographs © Arch group


Design concept for efficiency apartments. Photographs © Arch group
Design concept for efficiency apartments. Photographs © Arch group


Design concept for efficiency apartments. Photographs © Arch group
Design concept for efficiency apartments. Photographs © Arch group


Design concept for efficiency apartments. Photographs © Arch group
Design concept for efficiency apartments. Photographs © Arch group


Design concept for efficiency apartments. Photographs © Arch group
Design concept for efficiency apartments. Photographs © Arch group


Design concept for efficiency apartments. Photographs © Arch group
Design concept for efficiency apartments. Photographs © Arch group


Design concept for efficiency apartments. Photographs © Arch group
Design concept for efficiency apartments. Photographs © Arch group


Design concept for efficiency apartments. Options of functional blocks. Photographs © Arch group
Design concept for efficiency apartments. Options of functional blocks. Photographs © Arch group


Design concept for efficiency apartments. The layout of a hang-on modular system © Arch group
Design concept for efficiency apartments. The layout of a hang-on modular system © Arch group

  
The architects offer a wide range of wall panels of different colors and textures. The furniture designed especially for this solution is also modular and rather diverse – starting from classical wooden elements up to lively colorful and metallic furniture in hi-tech spirit. So that the client could single-handedly decide on the design, a special site with a configuration program has been created. After selecting the color scheme, style and structure of the furniture, the client will only have to place the order and wait for the delivery. If during the use something will have to be added, changed or refreshed, the client will have the same site at his disposal: not only the furniture, but also separate elements can be bought.

Besides the fixed cabinet furniture, the architects have developed a whole range of modules of different sizes that can be easily combined with each other: from a standard bookshelf to a block with power outlets, key box or a cathouse. There are many fold-flat elements: the main accommodation – the couch, table and chairs for the kitchen, which however has enough room for the refrigerator and washing machine. The second bed fits in the entresole where one can get on by climbing up a single ladder after moving the shelf a bit down. The ironing board and the drier stand fit inside the closets, and the drop down table by the window screens the radiator grille when it is closed.

Design concept for efficiency apartments. Options for placing the furniture modules © Arch group
Design concept for efficiency apartments. Options for placing the furniture modules © Arch group


Design concept for efficiency apartments. Options for placing the furniture modules © Arch group
Design concept for efficiency apartments. Options for placing the furniture modules © Arch group


Design concept for efficiency apartments. The functional diagram of "loft bed" © Arch group
Design concept for efficiency apartments. The functional diagram of "loft bed" © Arch group


Design concept for efficiency apartments. The functional diagram of the folding "windosil table" © Arch group
Design concept for efficiency apartments. The functional diagram of the folding "windosil table" © Arch group


Design concept for efficiency apartments. Options of furniture units © Arch group
Design concept for efficiency apartments. Options of furniture units © Arch group

   
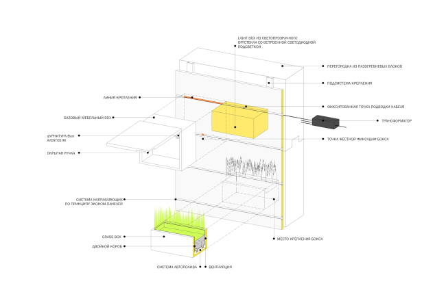
Everything is rational and futuristic – in the spirit of Moisei Ginzburg, a spaceship or “The Fifth Element”. Even the lighting solution is special. LED arrays are installed behind the glossy surface of the stretch ceiling and create a striking and dynamic ornament. Lit from behind the ceiling seems to be higher, lighter and one may even think that beyond the pattern of illumination, there is something else – something big and light. Minimalistic light-boxes made of matt glass are also included into the modular system: they can also be hung anywhere on the walls, like the furniture. The electronic clock, flower planters and photo frames are fixed in the same way.

In case the future residents are not ready to make up the interior on their own, the authors propose several complete solutions. For example, there is a “minimalistic” choice with dominating calm colors and surfaces. Another variant – a lively, colorful one – will amuse you with the abundance of vivid colors. The design with metallic elements might attract a tenant with a “manly character”. The so-called “ecological” design with dominating wood will surely become a universal and traditional choice. But even a complete solution can be expanded with something else – as much as your fantasy will allow.

Design concept for efficiency apartments. Development drawing of "Minimalism" project © Arch group
Design concept for efficiency apartments. Development drawing of "Minimalism" project © Arch group


Design concept for efficiency apartments. Development drawing of "Multicolored" project © Arch group
Design concept for efficiency apartments. Development drawing of "Multicolored" project © Arch group


Design concept for efficiency apartments. Development drawing of "Eco" project © Arch group
Design concept for efficiency apartments. Development drawing of "Eco" project © Arch group


Design concept for efficiency apartments. Project in the blue colors © Arch group
Design concept for efficiency apartments. Project in the blue colors © Arch group


Design concept for efficiency apartments. Project in the blue colors © Arch group
Design concept for efficiency apartments. Project in the blue colors © Arch group


Design concept for efficiency apartments. Project © Arch group
Design concept for efficiency apartments. Project © Arch group


Design concept for efficiency apartments. Project © Arch group
Design concept for efficiency apartments. Project © Arch group


Design concept for efficiency apartments. "Grass" option © Arch group
Design concept for efficiency apartments. "Grass" option © Arch group


Design concept for efficiency apartments. "Grass" option © Arch group
Design concept for efficiency apartments. "Grass" option © Arch group


This solution based on the “balance of the appearance and economy” – according to the words of the architects, is first of all intended for young people – students, professionals-in-training, young family couples and employees from other towns – to help them compensate for the forced shortage of living space with a vivid, well-planned design. “Of course, world architecture has plenty of examples for such solutions with standard decorating variants, folding and transforming furniture, movable partitions and so on, – explains Alexey Goryainov, one of the project authors. – However, as a rule, such solutions are very expensive and require individual production. We had to think of something original for economy-class housing and do it eye-catchingly, quickly and in unique manner. We managed to find a furniture company Bauflex that agreed to execute our order with consideration for its large volume and for a relatively low price”. Today four apartment prototypes including the smallest studio-apartment are ready. For now, they function as show rooms.   
Design concept for efficiency apartments. Project in the blue colors © Arch group
Design concept for efficiency apartments. Project in the blue colors © Arch group
Design concept for efficiency apartments. Project in the blue colors © Arch group
Design concept for efficiency apartments. Project in the blue colors © Arch group
Design concept for efficiency apartments. "Tetris" option © Arch group
Design concept for efficiency apartments. "Tetris" option © Arch group
Design concept for efficiency apartments. "Tetris" option © Arch group
Design concept for efficiency apartments. "Tetris" option © Arch group