Published on Archi.ru (https://archi.ru)

25.01.2016

Water-bound

Lilya Aronova
Architect:
Alexander Skokan
Rais Baishev
Studio:
Ostozhenka Bureau

This issue features the project of "River-Park" residential area on the bank of the Nagatinsky Creek - developed by "Ostozhenka" architectural bureau.

Residential complex in the proximity of the Nagatinsky Creek © Ostozhenka
Residential complex in the proximity of the Nagatinsky Creek © Ostozhenka


It so happened that the territory of the bank of the Nagatinsky Creek was developed by "Ostozhenka" twice. The first time around, as it turned out later, it was done a bit prematurely but the second time it was done just at the right moment: immediately after the contest for the development of the territories adjoining the Moskva River, during the epoch of the unquestionable victory of block development over the pinpoint type. One has every reason to suppose that it was with the consideration for these particular circumstances that the land site, also included in the program of renovation of the former industrial territories, got, at the second "attempt", closer attention and an appropriate budget. In this connection, in fact, the architects were asked to "take away from the table" the original, now almost complete, project of a residential complex that was calling for the typical development, and come up with a totally new architectural proposal. This was a rather challenging situation, especially in view of the fact that the construction of the first stage of the typical houses had already begun - but no one said it would be easy for the architects anywhere in the world, much less in Moscow.

Until recently, the territory between the Nagatinsky Creek and the Rechnikov Street running parallel to it hosted the buildings of a large industrial enterprise - Moscow ship-building yard. Later on it was decided to move the building facilities to a more suitable place - but the eighty-years long "ship-building" narrative seemed to stick forever in most of the local place names, as well as in the city people's memories. Alexander Skokan and his team treated this circumstance as one of the elements of the context into which they were to inscribe their project gracefully. Yet another active factor was the district of Nagatino itself; the new residential complex having to become a part of it. As the chief architect of the project Rais Baishev explains, this district is "really underestimated: the sturdy soviet-era houses, with their human-friendly density, number of floors, and green territories between them; a district that, with a bit of an optimistic stretch can be likened to European and Baltic-states residential areas". So, it was this "quietly existing", very peaceful and comfortable atmosphere that the architects were looking to bring into their project - of course, in a new architectural and ideological quality. 

As for the main contextual centerpiece, this was, of course, the immediate proximity of the future residential area to the water. The entire second phase of "River Park" overlooks the creek. Achieving this was quite a tall order - on the plan, it looks like a regular rectangle, almost a square, organized around a large yard, inside of which it was planned to build a school and a kindergarten. The yard is surrounded by a curious merry-go-round of seven residential units - i.e. the composition calls for a centripetal focus rather than a centrifugal one. Still, ignoring such a huge "magnet" as a river would have been an unthinkable thing to do, both from the town-planning and the commercial standpoint. If we take a look at the preliminary models, we will see that initially the architects visualized six out of the seven blocks (the seventh one that closes the yard on the side is different in its position as much as in its architecture) as practically identical but later on - after much deliberation and agreeing with the customer's reasons - introduced changes to the project, and now the front line of the houses is different from the rest in its voluminous and planning solution, the common typology being still preserved. In addition to the obvious realtor advantages, such solution added a new emotion to the area's image: the back-line units look as if they were peeping from the backs of the front ones, standing on their tiptoes and stretching their necks in order to get a better look at the magnificent scenery. Back from poetry to practice, though! It must be noted that achieving this result was akin to solving some complex mathematical problem: considering the increased commercial attractiveness of the front row, the architects were able to make their selling area larger, even though the buildings of the back row are taller.

Residential complex in the proximity of the Nagatinsky Creek. Model © Ostozhenka
Residential complex in the proximity of the Nagatinsky Creek. Model © Ostozhenka


Residential complex in the proximity of the Nagatinsky Creek. Model © Ostozhenka
Residential complex in the proximity of the Nagatinsky Creek. Model © Ostozhenka


Residential complex in the proximity of the Nagatinsky Creek © Ostozhenka
Residential complex in the proximity of the Nagatinsky Creek © Ostozhenka


Each of the units looks like a semi-closed space opened up to the river, with a yard raised a little above the embankment level, under which a garage will be built. Typologically, this is something like a cross between a separately standing building - because all of its parts rest on a single stylobate - and a mini-block - consisting of three different units that surround the courtyard. The comfortable safe territory- the height difference between the yard and the outer traffic way makes it physically impossible for the "alien" vehicles to enter the yard unless it's some custom vehicle or special machine - is surrounded by a gallery sunken into the buildings. This way, the generally small territory of the yard gets broader, augmented by the little cozy nooks and crannies where one can find shelter from the rain or just take a seat and breathe in the river air. It is overlooked by the second floors of the double-height lobbies that are connected to the street on the ground level. The orientation to the creek is enhanced by the "terrace" solution: the architects paid special attention to designing terraces, including open-air ones, because this is a rather precarious element in our weather conditions, and provoking architectural vandalism in the form of differently sized "squatter" glazing and other unauthorized things done by the inhabitants was the last thing on the architects' mind. We will add at this point that the front row of the houses does not have a single apartment devoid of the creek view. As a result, all this put together - the embankment, the terraced volumes of the front line, the inner yard with children institutions, and the row of taller buildings closing the composition - comes together to become a clear-cut composition with a prominent gravity vector towards the water. 

Residential complex in the proximity of the Nagatinsky Creek. Plan of the gallery © Ostozhenka
Residential complex in the proximity of the Nagatinsky Creek. Plan of the gallery © Ostozhenka


Residential complex in the proximity of the Nagatinsky Creek. Northern development drawing © Ostozhenka
Residential complex in the proximity of the Nagatinsky Creek. Northern development drawing © Ostozhenka


All the cafés, shops, and other retail points in the project are moved to the outer premises of the front row of houses, the ones overlooking the creek. "We wanted - Rais Baishev shares - the embankment to take on the attraction function, we wanted it to be alive and functionally rich". This desire of the architects resonated with that of the investor and the Moscomarkhitektura board that viewed this zone as part of the single program of improving Moscow's embankments. Of course, strictly speaking, the Nagatinsky Creek is not exactly the Moskva River but "Ostozhenka" views all the numerous small rivers and creeks flowing into the Moskva River as an indispensable part of this water system; this concept was laid down as the foundation of the project with which the company took part in the contest for the riverfront development - which considerably broadened the original contest specifications. 

And as far as the Nagatinsky Creek is concerned, it's something that is pretty easy to handle: unlike the many small creeks that both the construction companies and God forgot, you do not have to either dig it out from the underground pipes or search for it through the swampland: here it is, located literally around the corner, deep, picturesque, and even navigable. It would have been a waste to leave its banks unorganized - and this was done in due course on a contest basis. Incidentally, the embankment of "River-Park" became Moscow's first project of landscaping a riverfront territory for which a dedicated contest was organized that started in February 2015. In summer, the winners' names were announced. The first place was won by the company that hardly needs any introduction - WOWhaus - with a project that was about a chain of various venues and a lighthouse as the compositional climax. The chief designer company was also quite satisfied with the future cooperation: still since the days of working on the master plan of the Ostozhenka Street, Alexander Skokan and his colleagues have been looking to attract as many different architects as possible to develop their territories so as to avoid everything being done by "one hand" - because the more creative people on one project the better the result. For example, they are sincerely happy with the unconventional projects of the school and kindergarten buildings based on the works of the participants of the contest "New Image of Kindergartens" showcased two years ago at Vinzavod culture center. And as for the landscaping of the territory of the residential complex, it will be done by "T+T Architects" whose concept of developing the embankment of the Nagatinsky Creek took the second place in the contest. Their task is to tie in lots of various factors within the project - both obvious, such as the connection of the residential area itself (developed by "Ostozhenka") with the embankment (developed by WOWhaus), as well as the ones that are only being forecast now. 

Because currently it is only the first stage that has been actually built (the three 19-story units with an inner yard), the solution of this territory must become something like a pilot project that will define the style of landscaping the entire block - both the large inner territory with the school and kindergarten, and the raised little yards of separate blocks, and the yet-in-design office and shopping premises. All this "patchwork" must be somehow spun functionally, in an exciting way, but, most importantly, in the vein of the overall composition of the residential district set by the general designer. If everything goes to plan, the elements of this composition, of different nature and rather clearly zoned, will come together to form a single, cohesive, and integral city environment - something that Alexander Skokan and the architects of "Ostozhenka" particularly value. 
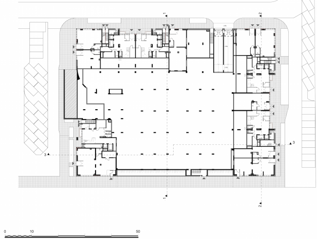
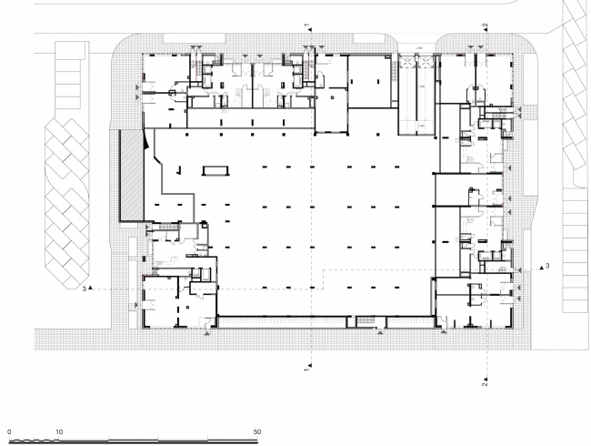
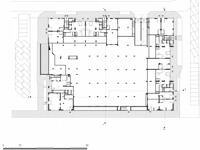
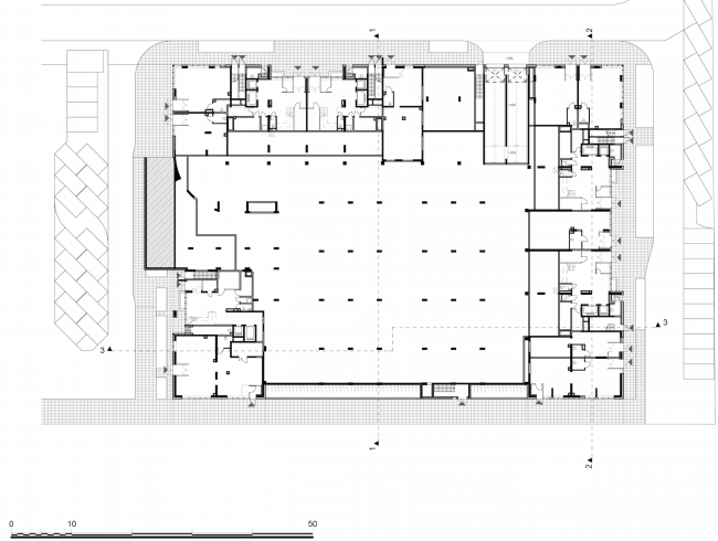
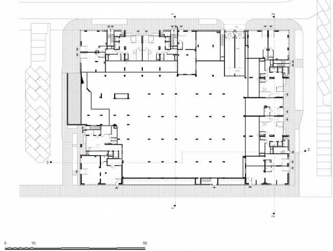
Residential complex in the proximity of the Nagatinsky Creek. Plan of the basement floor © Ostozhenka
Residential complex in the proximity of the Nagatinsky Creek. Plan of the basement floor © Ostozhenka
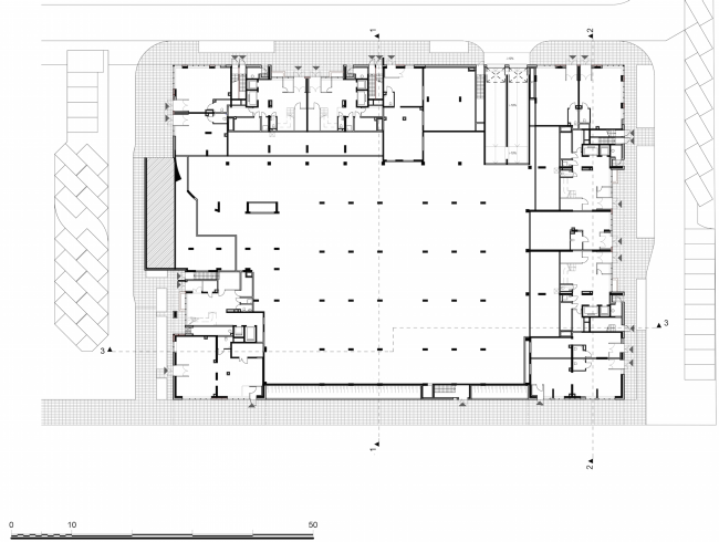
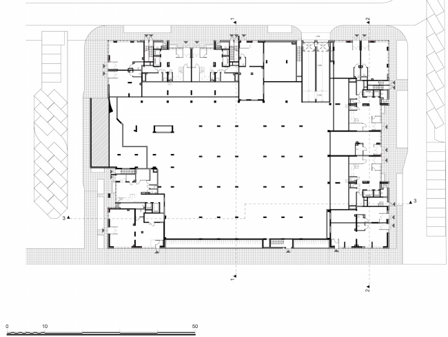
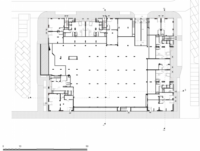
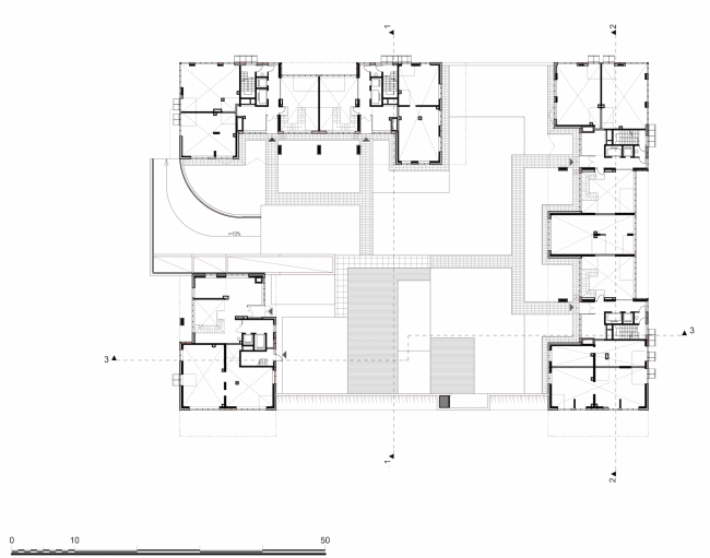
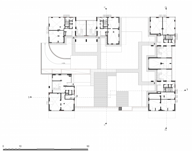
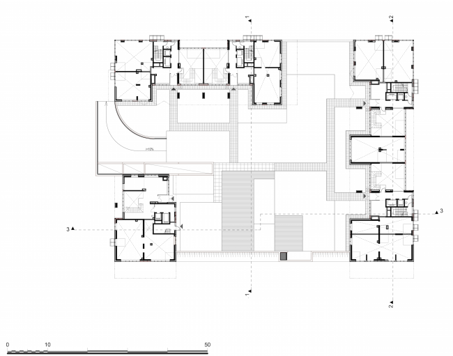
Residential complex in the proximity of the Nagatinsky Creek. Plan of the first floor © Ostozhenka
Residential complex in the proximity of the Nagatinsky Creek. Plan of the first floor © Ostozhenka
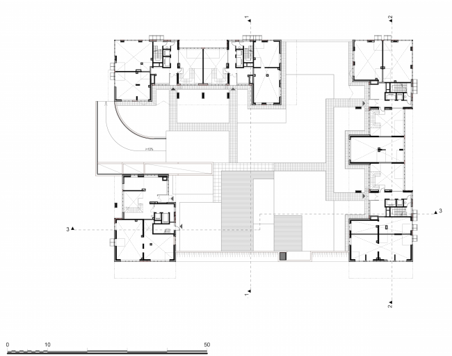
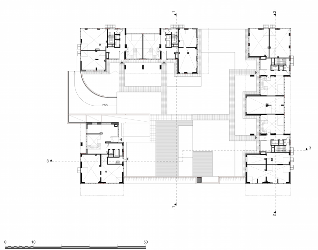
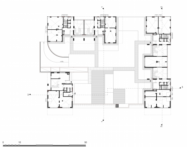
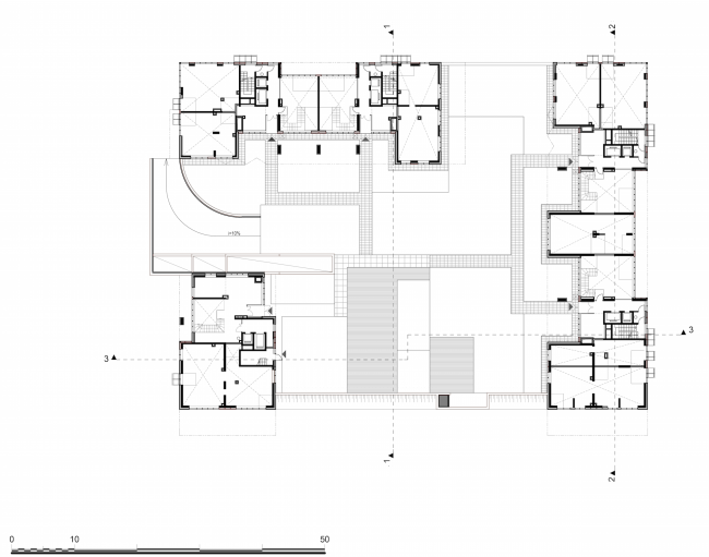
Residential complex in the proximity of the Nagatinsky Creek. Plan of the typical floor © Ostozhenka
Residential complex in the proximity of the Nagatinsky Creek. Plan of the typical floor © Ostozhenka
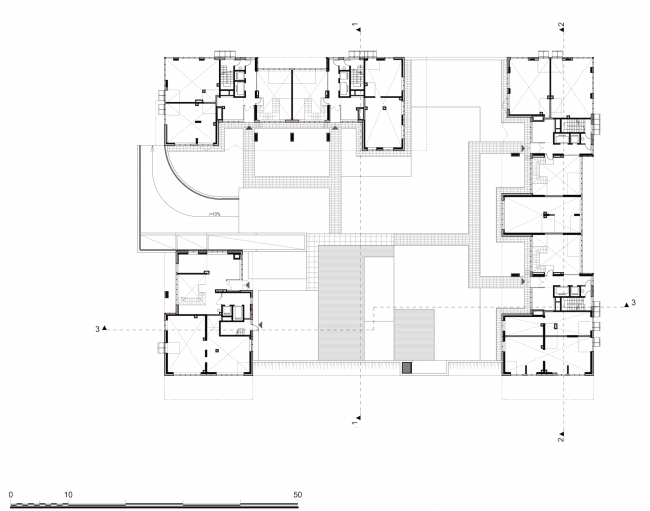
Residential complex in the proximity of the Nagatinsky Creek. Plan of the loft floor © Ostozhenka
Residential complex in the proximity of the Nagatinsky Creek. Plan of the loft floor © Ostozhenka
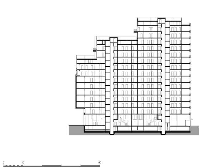
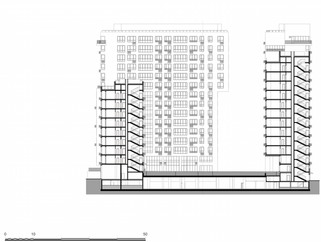
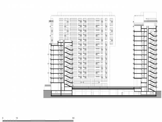
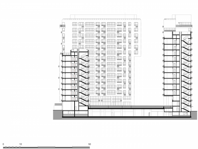
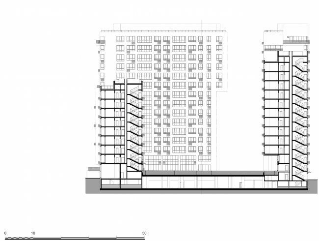
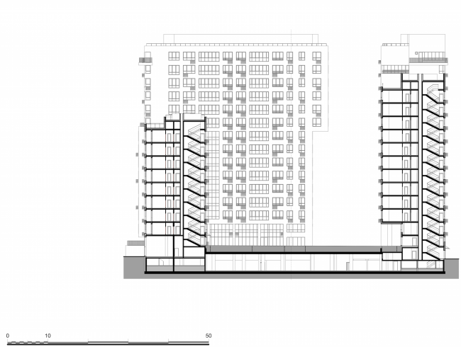
Residential complex in the proximity of the Nagatinsky Creek. Section view © Ostozhenka
Residential complex in the proximity of the Nagatinsky Creek. Section view © Ostozhenka
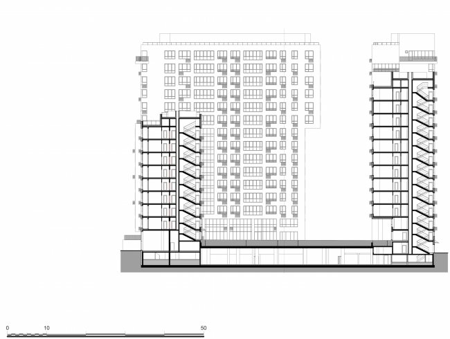
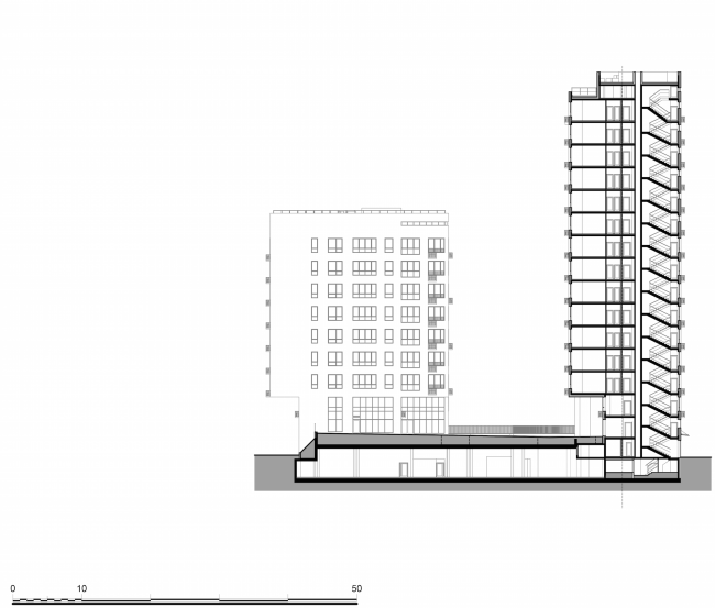
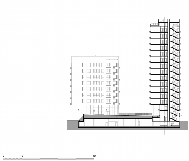
Residential complex in the proximity of the Nagatinsky Creek. Section view © Ostozhenka
Residential complex in the proximity of the Nagatinsky Creek. Section view © Ostozhenka
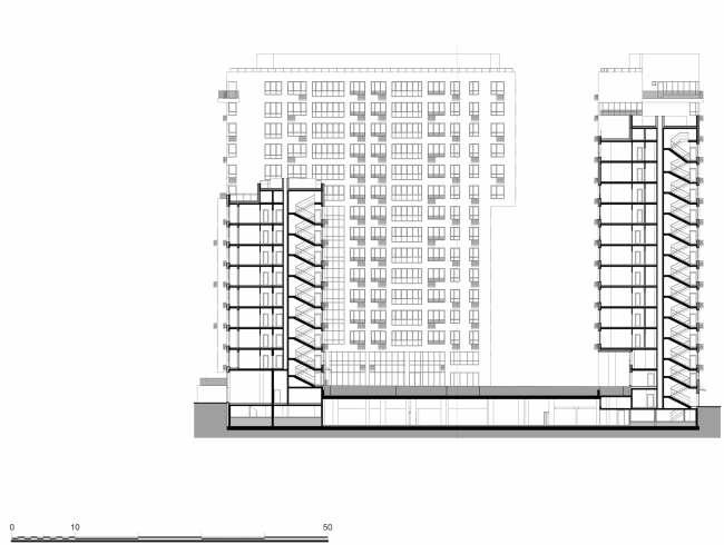
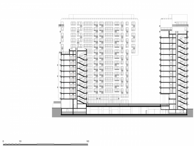
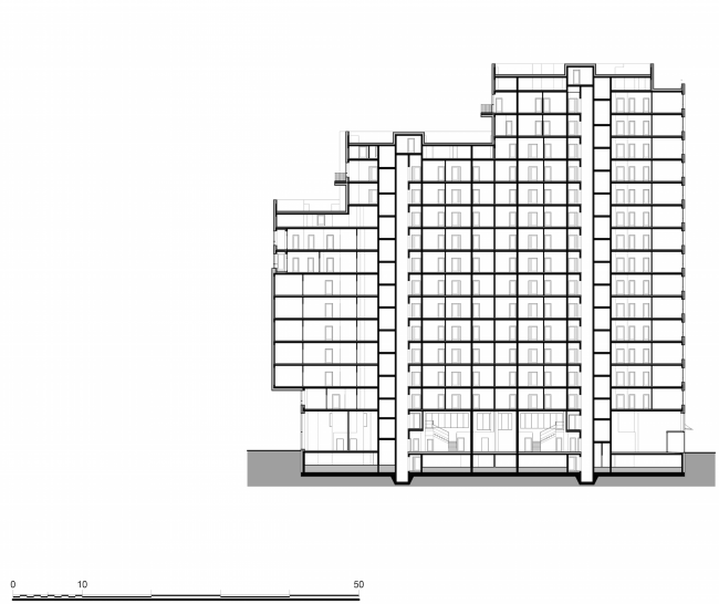
Residential complex in the proximity of the Nagatinsky Creek. Section view © Ostozhenka
Residential complex in the proximity of the Nagatinsky Creek. Section view © Ostozhenka