Published on Archi.ru (https://archi.ru)

19.10.2015

Implementation Prospects

Alla Pavlikova
Architect:
Zurab Bassaria
Mikhail Kanunnikov
Vsevolod Medvedev
Oleg Medinsky
Studio:
4izmerenie

A story about a student project that the professors liked so much that they found a customer for it. A story about a housing project that can indeed be implemented in one of the districts of New Moscow.

A student housing project. Author: Polina Korochkova, fourth year student of Moscow Institute of Architecture
A student housing project. Author: Polina Korochkova, fourth year student of Moscow Institute of Architecture


The project of a multi-apartment residential building was designed by Polina Korochkova, a fourth year student of Moscow Institute of Architecture. In that same spring semester, Polina worked on the planning project done at the example of one of the subdistricts of Southern Chertanovo. Her next project was the residential house - the key centerpiece of the same subdistrict. 

The connection to the location in this particular case is but conditional, though: Polina's professors - Vsevolod Medvedev, Zurab Basaria, and Mikhail Kaunnikov from "Fourth Dimension" Bureau - are positive that such an approach (breathing a new life into a rank-and-file subdistrict by introducing a house of individual architecture) is a sure means of transforming virtually any environment - be that Chertanovo, Butovo or Biryulevo... The architects are sure that simple modernization of the standard panel buildings cannot yield the effect that could be comparable to the power of the author architecture capable of charging the city both visually and emotionally.

The most interesting thing, however, is the fact that the professors, highly evaluating the project by the fourth year student of Moscow Institute of Architecture, soon began thinking about implementing it. "We liked this proposal very much while still in the development stage - Vsevolod Medvedev reminisces - This is why we paid special attention to details and made the project as realistic as possible. We even attracted our designers and component manufacturers in order to come up with the right and implementable structural elements". According to Medvedev, the students are oftentimes reproached for their inability to design realistically, for their excessively "sci-fi" ideas, and for being torn away from reality in their design work. For this very reason, this project is deliberately made in the most logic and even slightly simplified manner: the standard distance between the columns, the transparent and clear structural layout, and the familiar, almost model, floor plans of the apartments. The customer came almost at once - it is a large-scale developer that is now massively developing the territory of New Moscow. 

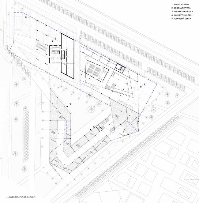
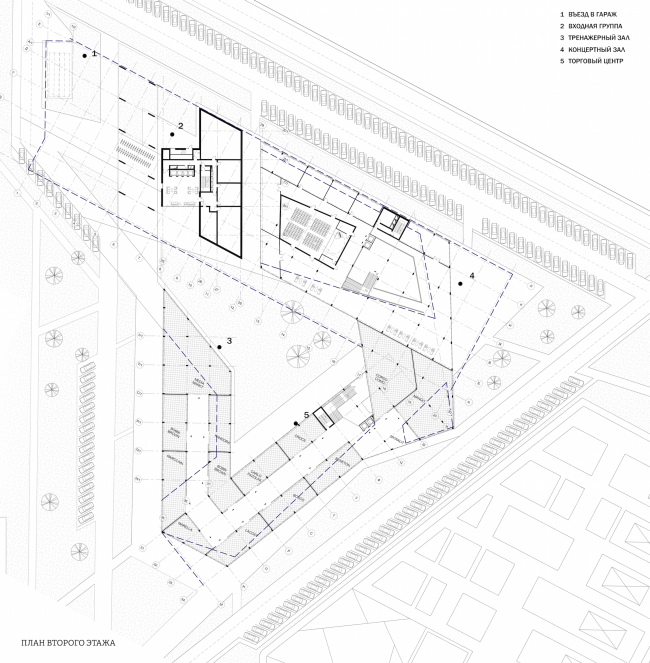
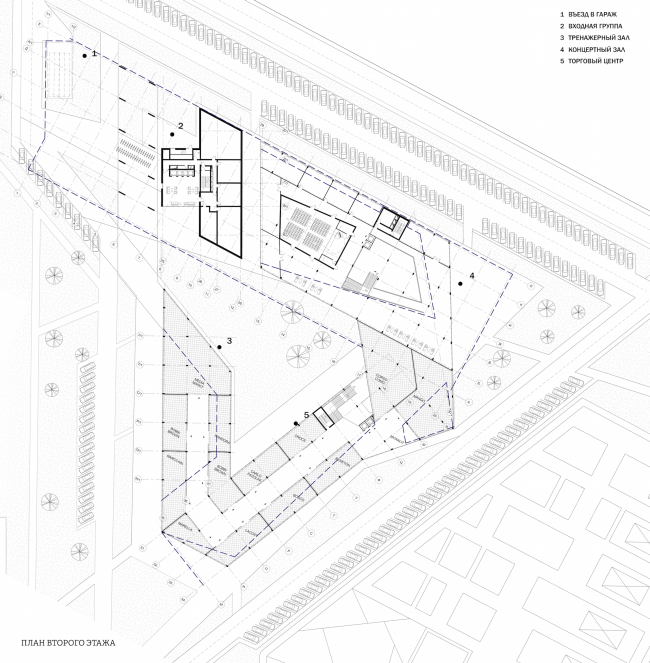
Connected by a glazed stairway and elevator units, the two slender residential towers "grow" from a large blueprint of the underground parking lot, on the roof of which there are also a few low-rise volumes: a movie theater, a few retail stores, and a few other "public functions". At the level of the second floor, these public functions are connected to the residential units (and among themselves too) by a jagged line of the marquee that gives protection from the wind and the rain, as well as forms the pedestrians' walking routes. The beautiful stylobate part is developed on a pretty approximate level, though, as a part of a student task should be; it can be redone in whichever way or even deleted altogether in order to "plant" the building on another land site - says Vsevolod Medvedev. 

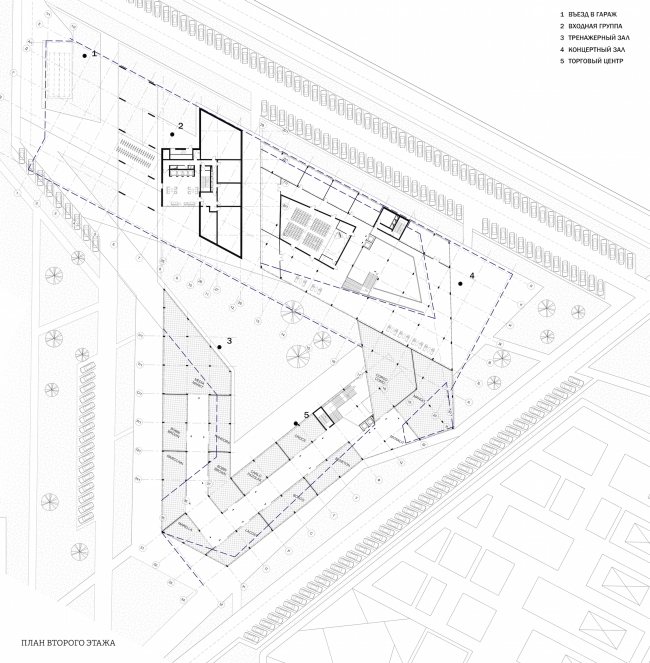
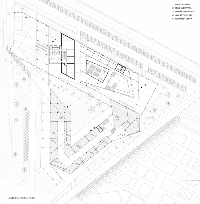
A student housing project. Stylobate. Plan of the first floor. Author: Polina Korochkova, fourth year student of Moscow Institute of Architecture
A student housing project. Stylobate. Plan of the first floor. Author: Polina Korochkova, fourth year student of Moscow Institute of Architecture


A student housing project. Stylobate. Author: Polina Korochkova, fourth year student of Moscow Institute of Architecture
A student housing project. Stylobate. Author: Polina Korochkova, fourth year student of Moscow Institute of Architecture


A student housing project. Author: Polina Korochkova, fourth year student of Moscow Institute of Architecture
A student housing project. Author: Polina Korochkova, fourth year student of Moscow Institute of Architecture


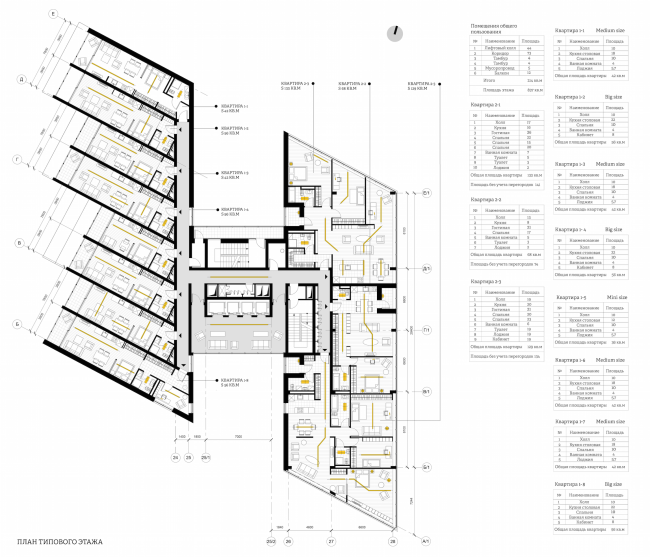
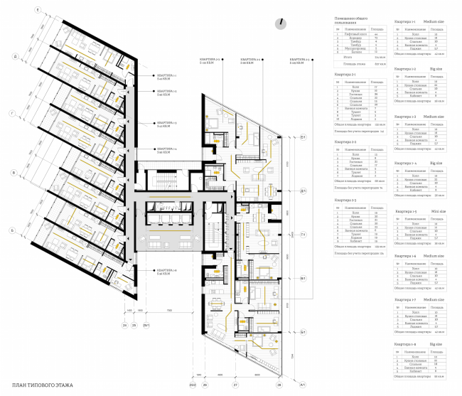
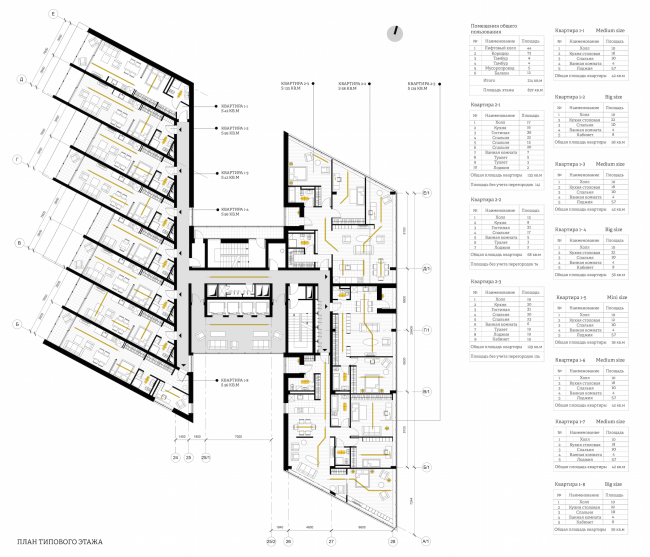
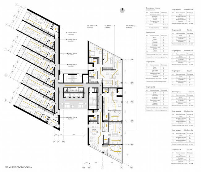
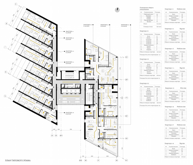
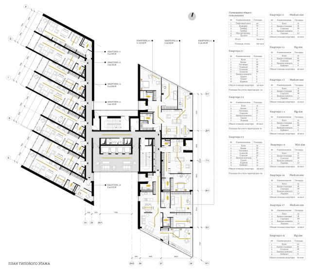
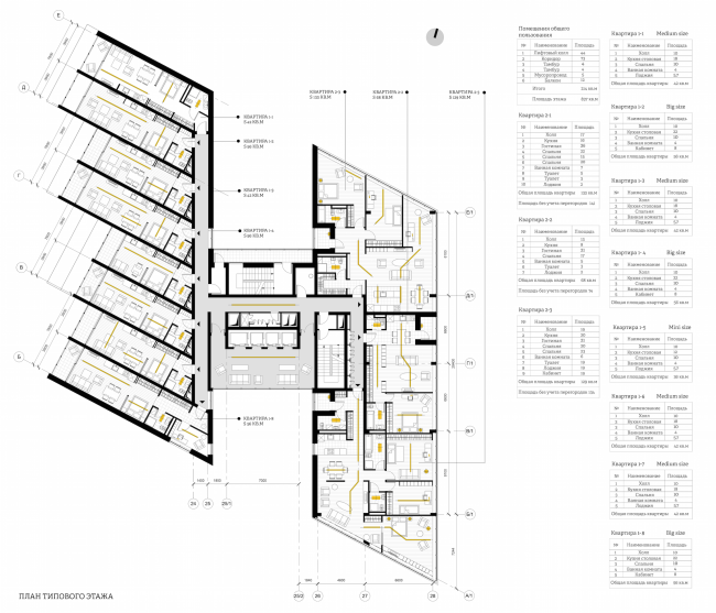
The main thing here is the towers, though. They are unlike each other both outside and inside. One is a "gallery" house - its small-sized studio apartments (averaging 40-50 square meters, 3.8 x 8 meters) adjoin, at a 60-degree angle, a short corridor running from the direction of the elevator nucleus. These are studios for singles and young couples: the bathroom is close to the entrance door, the bed is a little farther, in the "twilight zone"; closer to the light the mini-kitchen (that can take on the function of the living room), and, finally, the balcony are located. The outside wall - the only source of light - is completely made of glass. The "pencil boxes" of the apartments are positioned at different lengths and look like unevenly pulled drawers of some library register. On the outside, the "drawers" are designed in different tones - they are white, gray, and black - which enhanced the effect of a 3D picture or could even remind of some swallow's nests or seashells stuck on some vertical underwater wall. 

A student housing project. Author: Polina Korochkova, fourth year student of Moscow Institute of Architecture
A student housing project. Author: Polina Korochkova, fourth year student of Moscow Institute of Architecture


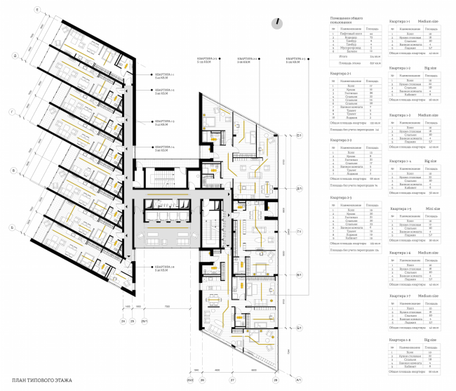
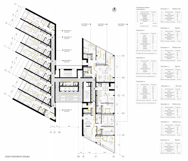
A student housing project. Floor plans of the studios. Author: Polina Korochkova, fourth year student of Moscow Institute of Architecture
A student housing project. Floor plans of the studios. Author: Polina Korochkova, fourth year student of Moscow Institute of Architecture


A student housing project. Author: Polina Korochkova, fourth year student of Moscow Institute of Architecture
A student housing project. Author: Polina Korochkova, fourth year student of Moscow Institute of Architecture


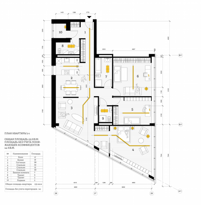
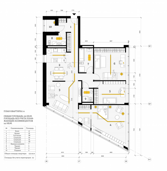
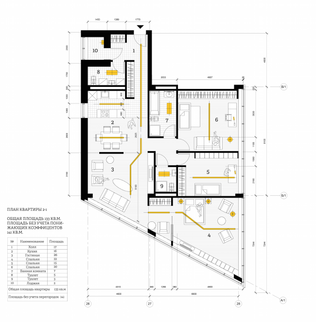
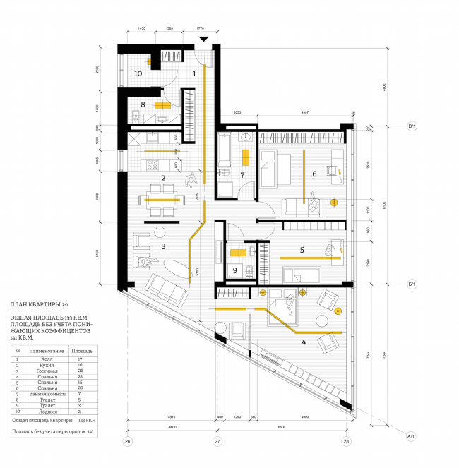
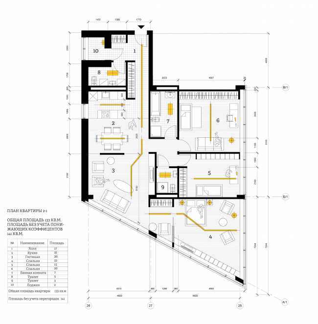
The other tower contains the apartments with an area over one hundred square meters (129 and 133 sqm) of a more conservative typology. They are inscribed into a laconic glass volume with a diamond-shaped plan that will be finished with a hang-on facade of mirror glass that is meant to liven up and enrich the all-too-pristine image with a multitude of reflections. 

A student housing project. Floor plan of the extra-comfort apartment. Author: Polina Korochkova, fourth year student of Moscow Institute of Architecture
A student housing project. Floor plan of the extra-comfort apartment. Author: Polina Korochkova, fourth year student of Moscow Institute of Architecture


A student housing project. Author: Polina Korochkova, fourth year student of Moscow Institute of Architecture
A student housing project. Author: Polina Korochkova, fourth year student of Moscow Institute of Architecture


A student housing project.Section view. Author: Polina Korochkova, fourth year student of Moscow Institute of Architecture
A student housing project.Section view. Author: Polina Korochkova, fourth year student of Moscow Institute of Architecture


"The success of the project, in my opinion, lies in the fact that we were able to answer the demand of the market - Vsevolod Medvedev comments - While there are lots of modular houses around the world, in this country they mostly remain forever on paper, and, if we are able to accomplish what we are planning to do, this will make a positive difference, however small. Nobody is speaking about mass construction of such houses here but, as an experiment, this is quite a possibility. And, of course, it is really flattening to us that it is all about a student project. At its example, we hope to prove that by the efforts of the teachers and their students, we will be capable of creating high-quality and implementable projects".

Still, though, the talks about implementing the project are yet in progress. We will only be able to applaud with certainty to the author and her teachers after the construction has started.