Published on Archi.ru (https://archi.ru)

08.10.2015

Neo-House

Julia Tarabarina
Studio:
Evgeniy Gerasimov & partners

This is something new. Admittedly, only church architects are not frightened by the neo-Russian style. But Engeny Gerasimov has taken up the challenge and proposed a modern version of a housing estate à la russe to the center of St. Petersburg, combining “pseudo” and “neo” modern techniques.

Multi-apartment building with integrated premises in Baskov Alley © Evgeny Gerasimov and Partners
Multi-apartment building with integrated premises in Baskov Alley © Evgeny Gerasimov and Partners


The site of the intended housing estate, meaningfully named “Russky Dom” (Russian House) is situated quarters away from Liteyny Avenue, on crossroads of Baskov lane and Korolenko Street. Three years ago, it was a battle ground for urban conservationists, claiming that the houses being demolished are the remains of artillery barrack-rooms of the early 20th century; and the client – “LSR Group” – that with the city government permissions and archival records on its hands, tried to prove that it was wrecking buildings erected no later than in 1932, even though old bricks had been used in them. Apparently, the developer succeeded in making out its case, since the construction has begun.

Multi-apartment building with integrated premises in Baskov Alley © Eugene Gerasimov and partners
Multi-apartment building with integrated premises in Baskov Alley © Eugene Gerasimov and partners


This time, the house planned by Engeny Gerasimov – already well known in St. Petersburg for his constructions in the spirit of historicism – is designed in a manner of “neo-Russian style of early modernism” echoing its realtor name, and inherits the phenotype of big apartment houses at the turn of the century (19-20), palace- or castle-houses that united several blocks with courtyards – sometimes “wells”, sometimes larger ones. There is a number of such houses in St. Petersburg. One of the most remarkable ones is the building of the Russian First Insurance Company, built upon a project of the Benois architects: Leontiy, Yuliy and Aleksandr, on Kamennoostrovsky Prospekt (1911–1914). However, that house is a wonderful example of neoclassic, inspiration by Italy, and there is nothing Russophile about it. There is a certain similarity between it and the Russky Dom in the project of Evgeny Gerasimov on the typological and sensitive levels.  

First of all, Gerasimov uses the same basic planning method, cutting the house open, with the yard facing the street and going deep into the construction up to the last building on the inside border of the lot. The yard becomes the “front parterre” of the palace-house and is decorated accordingly – with a garden-park. But the main effect is created by the street perspective, whose construction line is interrupted with a gap, solemnly ornamented with two similar buildings. Apartment houses were not commonly planned this way, with an open, inviting yard – in modern terminology “urban public area”. But it did happen: sometimes even an inner street (with overlapping netting) ran between the block-houses, like in the case with the Russian First Insurance Company building on Sretensky Bulvar in Moscow. 

Multi-apartment building with integrated premises in Baskov Alley © Eugene Gerasimov and partners
Multi-apartment building with integrated premises in Baskov Alley © Eugene Gerasimov and partners


Multi-apartment building with integrated premises in Baskov Alley © Eugene Gerasimov and partners
Multi-apartment building with integrated premises in Baskov Alley © Eugene Gerasimov and partners

  
The second peculiarity of a more general character – is the two wings of a flat-topped plan – a square plan, tightly closed squares around the yards, where you can get in only through arches – not very high, two-floor arcs facing the central yard-parterre. The inner courtyards are typologically the “wells” of St. Petersburg, but it is hard to call them so, because they are large – 2000 m2 and more, which is sooner comparable with the yards of Stalin houses. In general, Russky Dom is twice as large as its biggest prototypes, other apartment houses of the 20th century, at least because it takes up a larger area: the lot of the Benoit house is approximately one hectare, the Moscow house on Sretensky bulvar – about 1,5 hectares, here it is 2,4 hectares and more than 70,000 m2 of ground footprint. In this case, the size contributes to the triumphant air: increase of floor numbers in the back of the construction – inevitable for our time – complying with the height of the building line, is not only perceived as a method of increasing the usable floor area, but also as an element of the general crescendo defined by the pursuit of symmetry, front yard, sharp pinnacles and towers of the high “Terem-like” checked roofs and the rich ornamental relief. We definitely see a third, or even fourth reincarnation of a Terem-palace.   

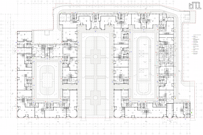
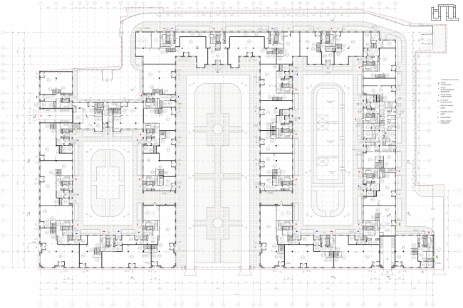
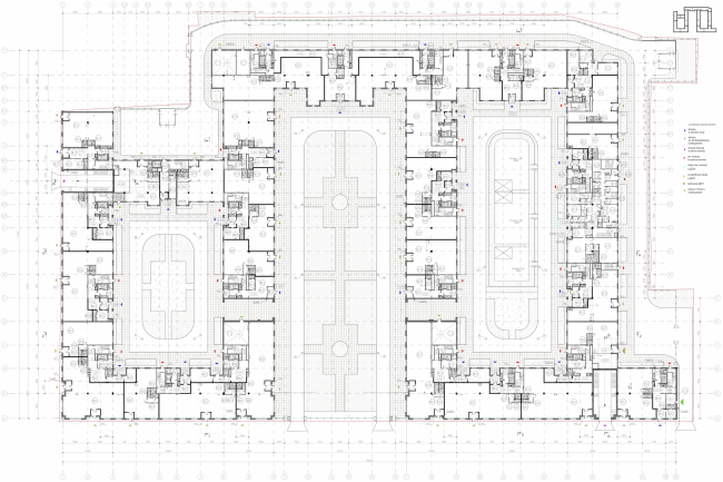
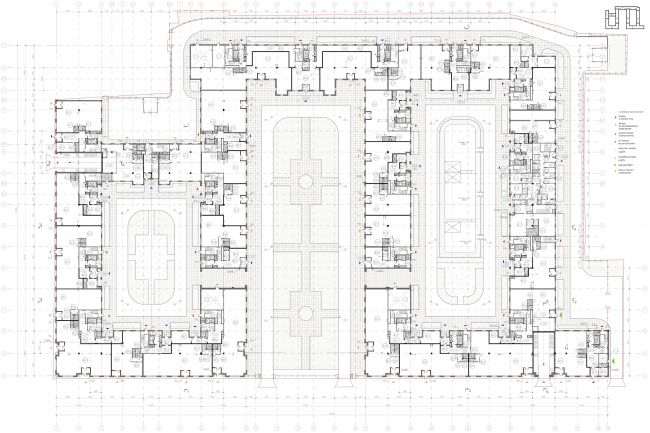
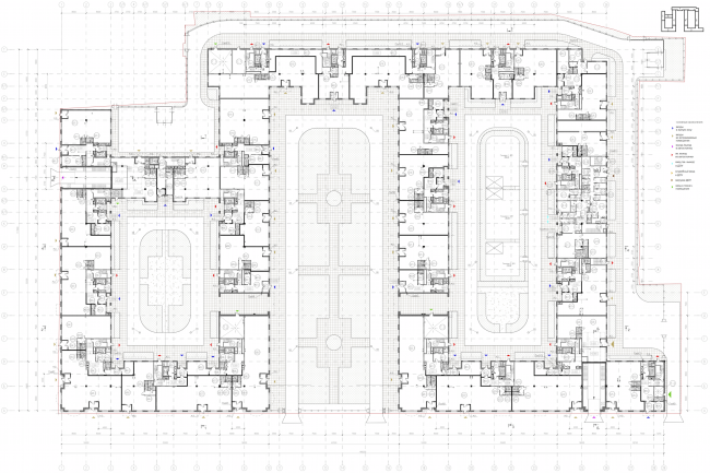
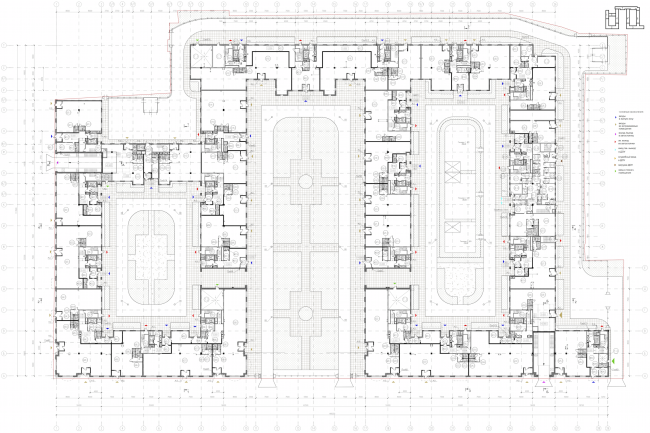
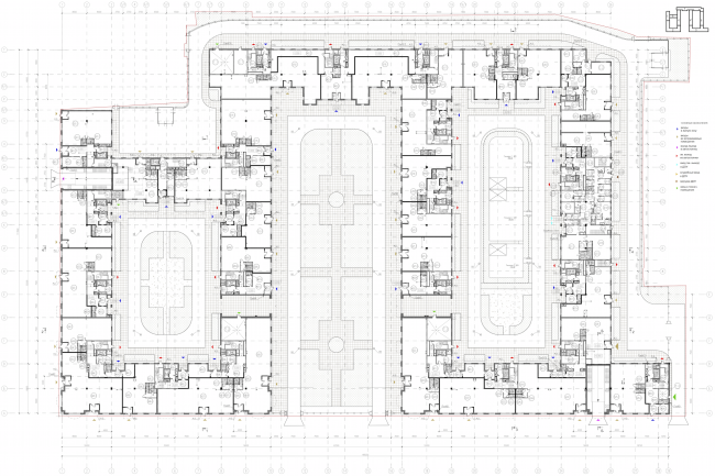
Multi-apartment building with integrated premises in Baskov Alley. Plan of the 1st floor © Eugene Gerasimov and partners
Multi-apartment building with integrated premises in Baskov Alley. Plan of the 1st floor © Eugene Gerasimov and partners


Multi-apartment building with integrated premises in Baskov Alley. Development drawings © Eugene Gerasimov and partners
Multi-apartment building with integrated premises in Baskov Alley. Development drawings © Eugene Gerasimov and partners


And now, some words about the Russian style: there is not much of it in St. Petersburg, and it is mostly found in church architecture and is not quite typical here on the whole. So we will not find a direct prototype of Evgeny Gerasimov’s house here, although plenty of similar examples seem to come to our mind. It even feels as if there must be a very similar house somewhere, just like this one: for historicism such illusion is sooner a compliment. The authors name three prototypes: Feodorovsky Gorodok in Tsarskoe Selo, Moscow Yaroslavskaya railway station and the State Department store, also in Moscow – GUM. Their influence can be seen. For example, each of them has different towers with pavilions, and in GUM they are also placed symmetrically, before the entrance. Feodorovsky Gorodok – the most “St. Patarsburg” prototype of the three – lends the most beautiful part: a carpet of reliefs, borrowed by the Pokrovsky Cathedral from the St. George’s Cathedral in Yuryev-Polsky. In the project of Evgeny Gerasimov, the carving turns into concave reliefs – sunken silhouettes of fairy birds that form the patterned foam of the façades. It brings another analogy to our minds – not mentioned by the authors: the apartment house of Leon Kravetsky at the end of Chistoprudny Bulvar, covered with lilies and lions like in Vladimir and Suzdal architecture.     

But there is one detail. The prototypes named by Evgeny Gerasimov include two houses in neo-Russian style of the early 20th century (the train station and Feodorovsky Gorodok) and one pseudo-Russian building (GUM) of the late 19th century – and these are two different things, if you look up-close. As a result, the architecture of Russky Dom poises on the edge of three sources: pseudo-, neo- and modern architecture.    

The “pseudo” is the symmetry, the passion for the image of Terem, starting from the brilliant rustication, up to the colorful roof with attic windows, and surfaces broken by windows, moldings and ornament. Remember the “classical” Igumnov house, the French Embassy Building in Moscow or Nikonov Apartment House in St. Petersburg on Kolokolnaya Street. But there is another prototype from the mid-19th century – the romantic palaces of Europe, for example: Neuswanstein in Bavaria, the Disney Castle, built in honor of the romantic music of Wagner. Or the Schwerin castle in Pomerania. If we look at them, a lot of things become clearer: exaggeratedly thin towers, sharp roofs, white color, love for Roman mullion windows connected with a single arch. All these elements can be frequently found separately, but the impressive growth of the form might lead us to thinking that the romantic castles became one of the author’s inspiration sources – perhaps, not completely reflected. And this is absolutely natural for the Russian style: not only does it ground on the ideas of romanticism and pseudo-gothic in its search of national identity (it even started from them), but the Russian prototypes themselves – take for example the Vladimir and Suzdal reliefs of the Rus’ – are not that far from the Roman, or south Switzerland, or north Italian spirits: this is where the mullions came from, also, however, inherited by the neo-Russian style.

Multi-apartment building with integrated premises in Baskov Alley. Facade © Eugene Gerasimov and partners
Multi-apartment building with integrated premises in Baskov Alley. Facade © Eugene Gerasimov and partners


The neo-Russian style of the early 20th century is represented by the carpet reliefs, inspired by Pokrovsky Cathedral, interpretation of the mullions “pressed together” by a single arch – such were quite popular in 1910-s, gables opening towards the façade surface; the spatterdock columns at the bottom of the corner towers – sisters of the low, chtonic columns of the northern modernism. Bay windows of the corner towers become recollections of modernism per se – smooth, drawn along a regular curve with inclusions of neat quadrifoils that remind the “Roman” house in Kovensky lane, ten minutes walk away from Baskov lane. It was built by Evgeny Gerasimov for the same customer – LSR. It is interesting to mention what Russky Dom does not have – it is completely devoid of individual architraves, originating from the 17th century and equally adored by Schechtel, Pokrovsky and Pomerantsev.    

Multi-apartment building with integrated premises in Baskov Alley. Facade © Eugene Gerasimov and partners
Multi-apartment building with integrated premises in Baskov Alley. Facade © Eugene Gerasimov and partners
 

Finally, the modern interpretation of the form remains: the first five floors are drawn with a thorough, regular network of wide stone lines with ornamental, even center, not submitted to tectonics and more than that – due to mullions placed in each cell, it tends to horizontal proportions. It makes us think of the project of Evgeny Gerasimov for the “Tsarev Sad” tender in Moscow (the winner of the tender, by the way). In that project, Evgeny Gerasimov took a sample of the “pre-Peter stylistic” which has now been elaborated in Russky Dom. The two-story bay windows also look rather modern. As a result, if you try to notice – you get a feeling of “backward reconstruction”. We know a lot of apartment houses in different styles with upper floors built upon them in the 30-s, and we are used to them. This case is an imitation of an opposite situation – as if neo-Russian towers have been added to a house in modern “ornamental stylistics”, and a couple or more “Terem-like” floors have been built on the top. We can see a retrospective in this architecture – as if the style has changed and now new floors of very old style are being added to the modern – even though conservative houses. This intergrowth of ornamental modernity into the historicism is a self-reflection and perhaps the most interesting feature of the project.  

Multi-apartment building with integrated premises in Baskov Alley © Eugene Gerasimov and partners
Multi-apartment building with integrated premises in Baskov Alley © Eugene Gerasimov and partners
               

Two more analogies can be added to the line of others – practically every house of Evgeny Gerasimov designed in the spirit of historicism contains two or three layers, not just a single stylization. The first one is an analogy with a Stalin-time avenue. The neo-Russian style sought for asymmetry looking for the pastoral fairy soul of the folk in the ancient Russian architecture. The two towers before the long yard are different – they are absolutely ceremonial and remind the beginning of many avenues: for example, the Mira Avenue in Moscow or Gagarin Square. It is hard to say, where it comes from, but this layer of the Stalin-time Art Deco often appears in Gerasimov’s houses, perhaps more intense due to the sizes. There is no denying of another analogy as well – although you would sooner want to push it away. The Russian practice of today already has a vast experience in pseudo-Russian style – mostly in church construction (but it is usually a more precise copy and the sizes are different). But there is also the palace of Alexey Mikhailovich and the “Teremok” in Izmailovo – the very essence of the “Terem” style in our construction. Well, the house of Evgeny Gerasimov differs from them significantly: it is much more laconic, more poised and clean – at least with its whiteness. It is much closer to the images of modernism – if you pay attention. The above mentioned “today’s” foundation and the checked carcass prevent it from merging with kitsch – such tricky possibility nowadays. Although the connoisseurs of modernist minimalism may not see the difference – it is still there.           


As for the rest, the house is fitted with everything that is meant by the modern standards of elite housing: a kindergarten is built in the ground floor of one of the blocks, cars are not permitted in the yards and the citizens – on the contrary – are allowed to access the central front yard. Cafes and shops are situated on the ground floor, apartments are equipped with air-conditioning blocks in order not to spoil the facades. The interiors of the rooms and corridors combines Russian, Byzantine, classical and modern motifs. Columns, marble, natural wood, bas-reliefs and plaster moldings – everything here is supposed to create the feel of luxury. The main color of the complex – white – dominates in the interiors as well.    

Multi-apartment building with integrated premises in Baskov Alley © Eugene Gerasimov and partners
Multi-apartment building with integrated premises in Baskov Alley © Eugene Gerasimov and partners


In a word, this house is in many ways an experiment – there are not so many housing estates in neo-Russian style these days, and in the portfolio of Evgeny Gerasimov this house is also a step to new experience, an exciting example of exploring a new page of “historicism”. Besides, the authors managed to achieve wonderful balance between respect of the context and courage of self-expression. They have not masked the new object as a background historic building, but made it the key note of a small lane. It was definitely a risk – but now it seems worth it. The dominating role of the new complex is determined first of all by the size of the territory which allowed to create a green public area here – which is very important. The large, complete and vivid ensemble formed around it breaks the monotonous structure of the construction, typical of the neo-style epoch. Boldly and excitedly, the authors compete with the historical neighbors not trying to conceal the young age of the new building but also not showing it off, having respect for the predecessors but keeping their own ideas in mind.             
Multi-apartment building with integrated premises in Baskov Alley. Plan of the 5th floor © Eugene Gerasimov and partners
Multi-apartment building with integrated premises in Baskov Alley. Plan of the 5th floor © Eugene Gerasimov and partners