Published on Archi.ru (https://archi.ru)

10.12.2015

Julius Borisov: “We worked on this project at a highest – you may say finest level”

Anna Starostina
Architect:
Yuliy Borisov
Studio:
UNK

On the outskirts of Ivanteevka, the construction of a low-rise housing estate is reaching completion: it is low-cost but attractive, thoroughly elaborated by the architects, and implemented practically exactly as the authors planned.

"Dutch Quarter" residential complex in Ivanteevka. Construction, 2015 © UNK project
"Dutch Quarter" residential complex in Ivanteevka. Construction, 2015 © UNK project


Two years ago, we described in detail the project of the housing estate “Dutch Quarter” in Ivanteevka near Moscow – an example of a low budget, low-rise ribbon development that the architects managed to make manifold plastically and in design – within the allocated budget. Now, “the Dutch Quarter” is finished. The first stage is already put in operation: one of these days, the apartment owners are to receive the keys. Works on the second stage will be finished by the end of this year. The architects claim that practically all the ideas of the project have been implemented exactly as it was planned. And as we know, it is a rather rare thing.        

The estate has at once become the winner of the urban residential property prize Urban Award 2015 in the nomination “Complex of the Year with the Best Architecture”.

Besides, the “Quarter” is an example of search for an actual alternative of panel dormitory districts that in recent years has finally become one of the main topics for consideration among the Russian architects. Julius Borisov, the co-founder of UNK project bureau and the chief architect of the project, told us about the solution found for this case. 

Archi.ru:
What in your opinion is the key to success of such bold but low-cost projects?

Julius Borisov: Although the complex is positioned as “comfort class” the participants of the project did everything at a highest – you may say “finest” level. Both the clients, and the consultants, as well as our architects worked exactly in the same way as with the expensive individual orders. It applies equally to the facade, planning, structural, architectural and engineering components of the project. As a rule, we have to deal with very low budget for designing; in this situation, even the most excellent architect cannot do much more than replicate a single designed section. In this case, we had to engage in earnest already on the stage of elaboration, and efficiently organize the process. In the end, the right “message” set originally by the client played the key role.   

So, do the wish and awareness of the client play a crucial role?

Julius Borisov:
Of course! There are enough four-five-storey complexes in Podmoskovye that have similar characteristics with “The Dutch Quarter”, but they all look like one-type barracks. It is a good thing if they have an inclined roof, other than that – they are just the well-known Khrushchev-era apartment blocks. In our case, the big experience of the client and his orientation towards the most advanced solutions, including those from abroad, played a significant role. Already on the planning stage, it was clear: we have to offer the best possible variant to the market. Curiously enough, severe city-planning limitations (we were allowed to build no higher than a four-storey complex) have also played a positive role. But for them, maybe our well-informed client would have also taken the easier way, and would have simply built twelve-storey houses on the site – they are economically much more efficient. But the monitoring bodies stood their ground, which was not taken by the client as an unfortunate obstacle, but as an additional challenge to create an unusual interesting product. And our merit is that we could design it.

"Dutch Quarter" residential complex in Ivanteevka. Construction, 2015 © UNK project
"Dutch Quarter" residential complex in Ivanteevka. Construction, 2015 © UNK project


"Dutch Quarter" residential complex in Ivanteevka. Master plan. Project, 2013 © UNK project
"Dutch Quarter" residential complex in Ivanteevka. Master plan. Project, 2013 © UNK project
      

There are also some obviously parallel features in the solutions suggested by UNK project for the tenth residential quarter in Skolkovo innovation center and for “The Dutch Quarter”: interchange of driveways and pedestrian walkways, fractionality of the volumes, different solutions for the composition, planning and the facades of each section, with the common typology and so on. Can it be defined as common trends?

Julius Borisov: The difference between an economy- and premium-classes must not affect the basic characteristic of the accommodation, such as comfort and safety. Many large architecture firms turn cheap accommodation into a sort of ghetto. But why should the residents feel like second-class people if they cannot afford expensive apartments? We are convinced that there are some basic principles that must be applied to any type of accommodation. Children must no case get ran over by cars when getting out of their homes or playing on playgrounds, that is why we separate driveways and public areas. Everyone needs communication – that is why we provide special places where people of different ages can get together, that is, we found and form public life already on the project stage. In any case, people need shops and at least a minimal set of services; and since the complex is located on the outskirts of the city, we had to create the whole infrastructure. Yes, we did all that in Skolkovo too. And finally, people must not have a hard time thinking where to park their car. Even if we are not making underground parking-lots but just surface parkings, we are guided by people’s needs, rather than by the standards. Yes, in low-cost projects, the cars will just stand on the street, not in garages, but there will be enough space. Obviously, architectural solutions affect the psychological comfort of people.

"Dutch Quarter" residential complex in Ivanteevka. Construction, 2015 © UNK project
"Dutch Quarter" residential complex in Ivanteevka. Construction, 2015 © UNK project


"Dutch Quarter" residential complex in Ivanteevka. Construction, 2015 © UNK project
"Dutch Quarter" residential complex in Ivanteevka. Construction, 2015 © UNK project
        

In Skolkovo, in order to diversify the environment, we used a play of volumes and materials, and in “The Dutch Quarter” we developed about 17 different types of houses. Such site development does not feel monotonous and boring: different textures and colors of the façade finish, interchanging height of the sections and irregular rhythm of the windows allow the residents to easily find their section. The functional comfort is also elaborated: for example, we went away from the central cold supply system, but provided everything necessary for installation of ACs beforehand. If the decide to get one installed, the outside units hidden behind special panels will not interfere with the look of the building; and thanks to the sound-subduing screens, will not be too noisy. By the way, when working on low-cost accommodation, one must not only consider the cost the project itself, but also of home ownership. It was hard for us to drop the idea of lifts, but both the machines themselves and their maintenance are expensive. Basically, it is not such a big problem to go up the stairs to the fourth floor, only if you are not with a baby stroller: so, in order to reduce the negative consequences of such economy, we have provided special areas for baby strollers on the ground floor.

"Dutch Quarter" residential complex in Ivanteevka. Construction, 2015 © UNK project
"Dutch Quarter" residential complex in Ivanteevka. Construction, 2015 © UNK project


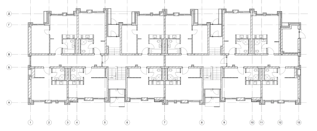
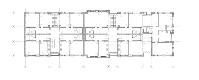
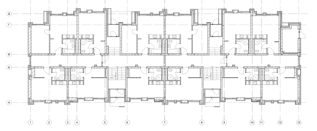
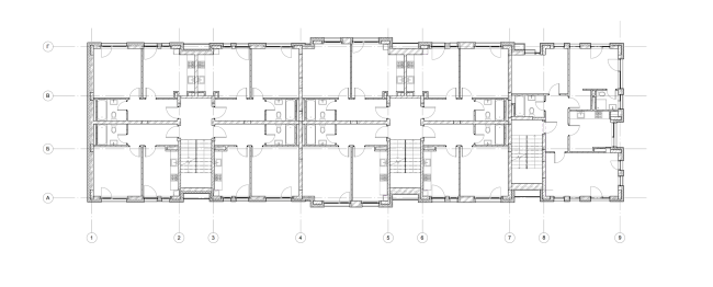
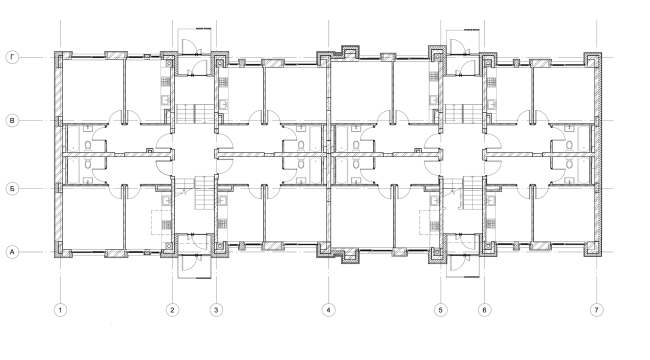
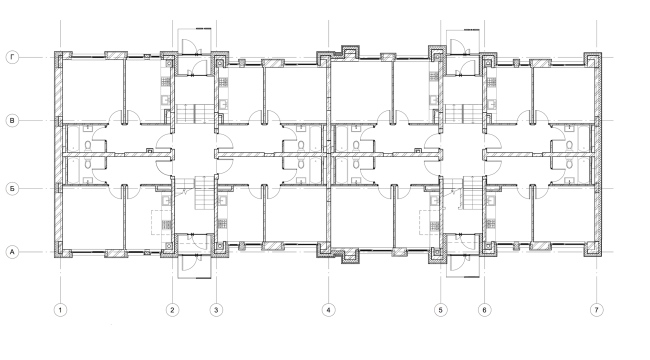
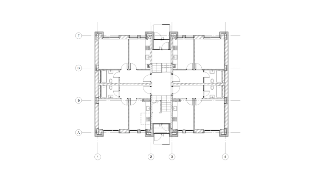
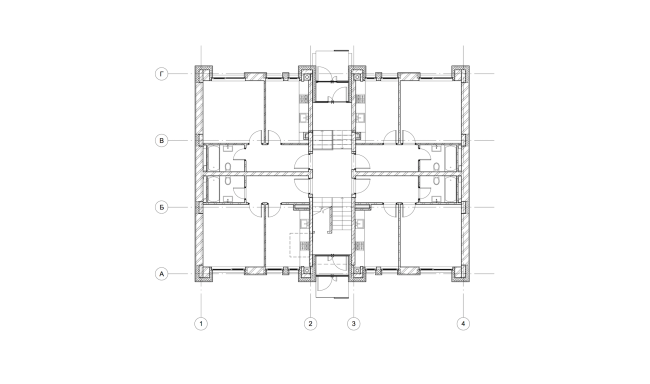
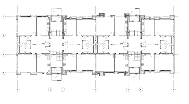
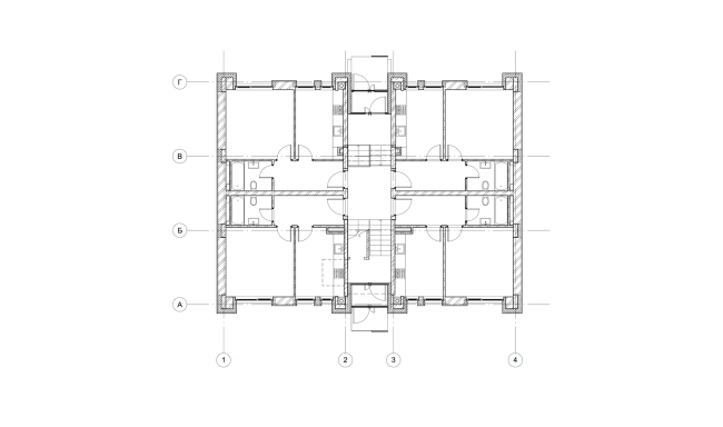
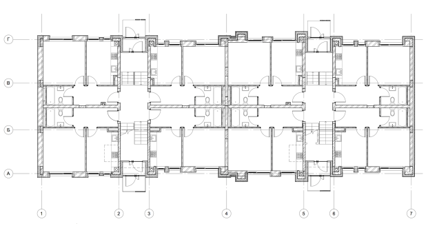
"Dutch Quarter" residential complex in Ivanteevka. Building 1, plan of the first floor. Construction, 2015 © UNK project
"Dutch Quarter" residential complex in Ivanteevka. Building 1, plan of the first floor. Construction, 2015 © UNK project


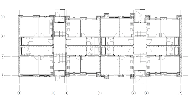
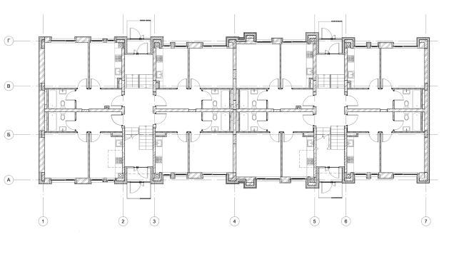
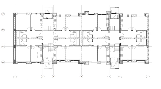
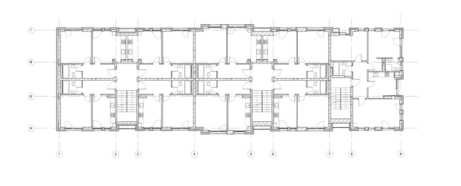
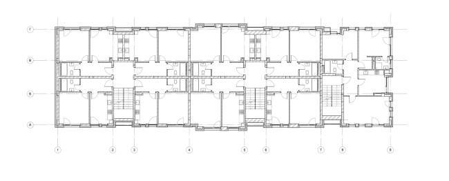
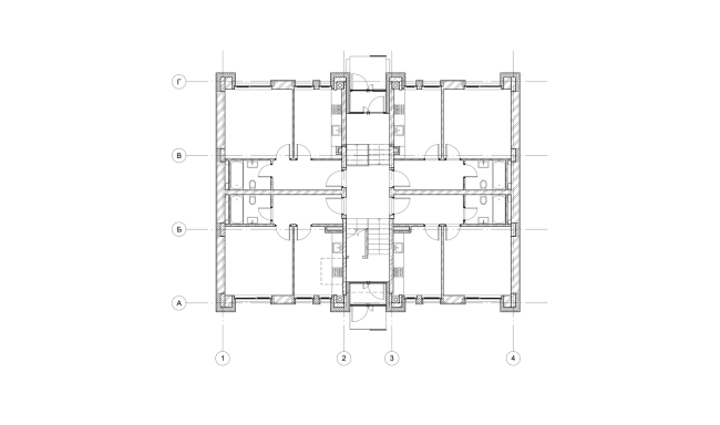
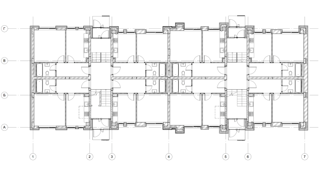
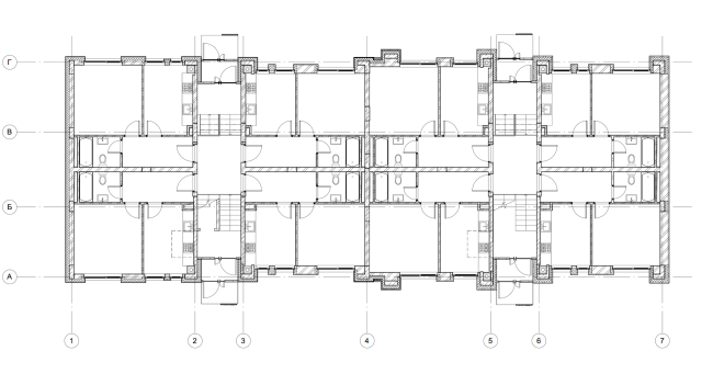
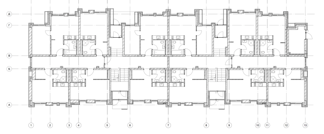
"Dutch Quarter" residential complex in Ivanteevka. Building 2, plan of the first floor. Construction, 2015 © UNK project
"Dutch Quarter" residential complex in Ivanteevka. Building 2, plan of the first floor. Construction, 2015 © UNK project
 

And still, what are the exact methods for achieving the required visual comfort?

Julius Borisov: We tried to give the residents an impression that they live in a complex of a higher class, and for that reason we used expensive finishing materials. For example, Flemish brick, which was formerly often used in the elite Ostozhenka. To be more exact, we have two types of brick and two types of plaster that form the decorative “pattern” of the development. Ochre and white colors of the plastered facades create bright accents and remotely remind Holland. The brick facades are meant to graphically demonstrate the quality of the created environment. There are also some important details: for example, the spaces between the windows are in some places filled with HPL-panels which makes the pattern even more manifold, the stair flights and conditioning packs are “protected” with special colored aluminum battens that “catch” the textured pilaster-side lines at the corners of both plastered and brick buildings. Besides, instead of the standard glass units, we used ones of a higher quality and more presentable appearance, with dark, laminated profile. Well, and the sections themselves sooner remind European townhouses, rather than multicompartment buildings, that they actually are.

"Dutch Quarter" residential complex in Ivanteevka. Construction, 2015 © UNK project
"Dutch Quarter" residential complex in Ivanteevka. Construction, 2015 © UNK project
    

Have you used any elements of green construction, some technological novelties, or is there no place for them in a low-cost project? 

Julius Borisov: I guess I cannot name any unique solutions, like pneumatically operated garbage chute in Skolkovo. However, there are some important details. First of all, we have installed a double-pressure boiler in every apartment, like they do in Germany. This solution allows us to use the natural resources effectively and significantly reduce utility charges: when they leave, the residents can set the minimal temperature and not heat the rooms in vain. The user can personally regulate the heat – which is a great advantage. We used efficient LEDs in the landscape illumination and lights of public areas, so the energy consumption for the light of the whole settlement is relatively low. We thought of placing lower lamps that are more effective and efficient, instead of the standard city lights. This solution turned out to be very important also from the point of view of general comfort, since we managed to fully eliminate the bothering blinding lights in the windows. And finally, the high-quality winterization of the facades allowed the architects to reduce the consumption of heat in winter and conditioning in summer. It is also important to mention the thorough program of landscaping of the territory, developed by Swiss specialists engaged in the project.

"Dutch Quarter" residential complex in Ivanteevka. Construction, 2015 © UNK project
"Dutch Quarter" residential complex in Ivanteevka. Construction, 2015 © UNK project
    

“The Dutch Quarter” is not located in the center, but on the outskirts of Ivanteevka, on the borderline with the forest. Nevertheless, how does it interact with the environment and the city?

Julius Borisov: Indeed, all the main boulevards here lead from the entrance to the forest. Obeying the natural rhythm of life, people can leave home and go for a walk. On the other side of the site, there is a low-rise district; we placed low buildings with the cheapest studio-apartments there – they form a certain “buffer”. Of course, we took the surrounding development into consideration, but since it is completely commonplace, it is our quarter that must become “the driver of growth” of the whole district in the near future. Further development will be guided by this quarter.    


"Dutch Quarter" residential complex in Ivanteevka. Bird's eye view. Project, 2013 © UNK project
"Dutch Quarter" residential complex in Ivanteevka. Bird's eye view. Project, 2013 © UNK project
"Dutch Quarter" residential complex in Ivanteevka. Construction, 2015 © UNK project
"Dutch Quarter" residential complex in Ivanteevka. Construction, 2015 © UNK project
"Dutch Quarter" residential complex in Ivanteevka. Project, 2013 © UNK project
"Dutch Quarter" residential complex in Ivanteevka. Project, 2013 © UNK project
"Dutch Quarter" residential complex in Ivanteevka. Project, 2013 © UNK project
"Dutch Quarter" residential complex in Ivanteevka. Project, 2013 © UNK project
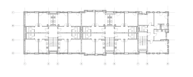
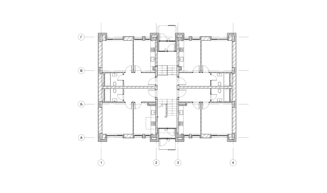
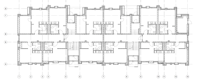
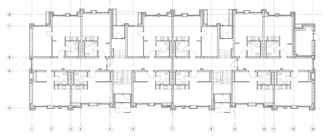
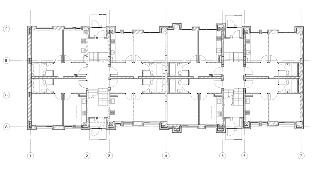
"Dutch Quarter" residential complex in Ivanteevka. Building 3, plan of the first floor. Construction, 2015 © UNK project
"Dutch Quarter" residential complex in Ivanteevka. Building 3, plan of the first floor. Construction, 2015 © UNK project
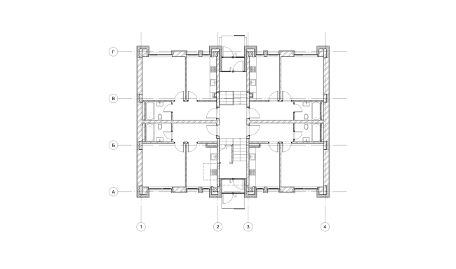
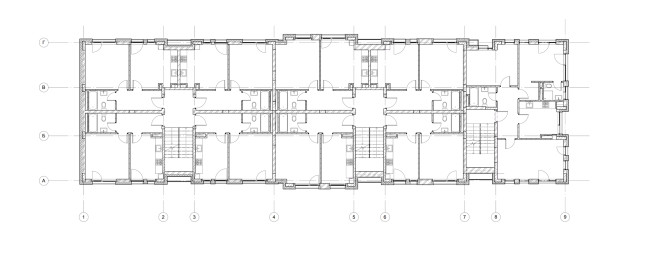
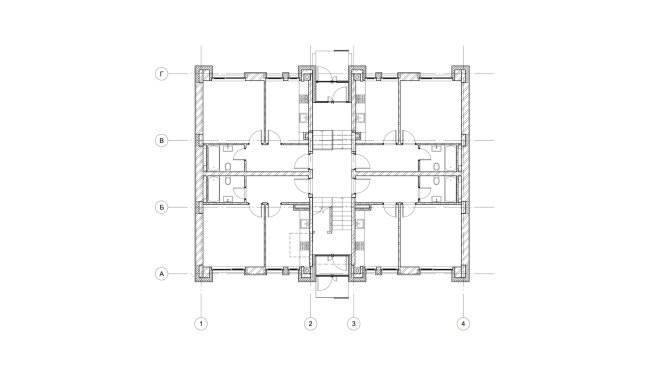
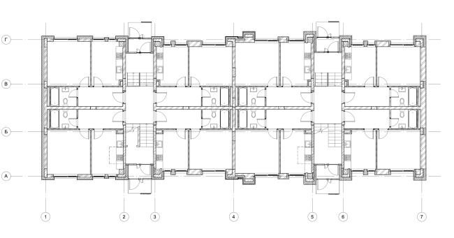
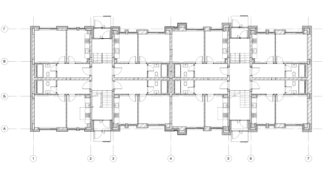
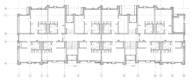
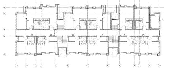
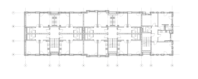
"Dutch Quarter" residential complex in Ivanteevka. Building 4, plan of the first floor. Construction, 2015 © UNK project
"Dutch Quarter" residential complex in Ivanteevka. Building 4, plan of the first floor. Construction, 2015 © UNK project
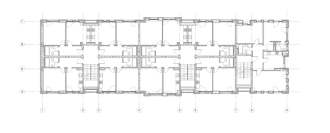
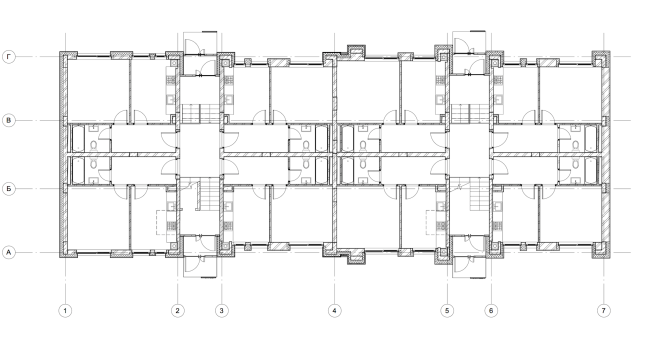
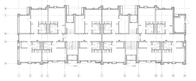
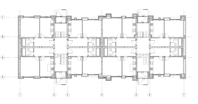
"Dutch Quarter" residential complex in Ivanteevka. Building 5, plan of the first floor. Construction, 2015 © UNK project
"Dutch Quarter" residential complex in Ivanteevka. Building 5, plan of the first floor. Construction, 2015 © UNK project