Published on Archi.ru (https://archi.ru)

05.10.2015

New Tectonics

Lilya Aronova
Studio:
Arch Group

Taking an advantage of the absence of any architectural context, the architects of Arch Group designed the building of Radisson Blu Moscow Riverside Hotel as not just organic but literally "growing" from the natural landscape. Second place in the contest for the best architectural concept.

Radisson Blue hotel complex at the place of the confluence of the Moskva and Skhodnya rivers. Birds' height view © Arch group
Radisson Blue hotel complex at the place of the confluence of the Moskva and Skhodnya rivers. Birds' height view © Arch group


The unique geography of the land site on which Radisson Blu Moscow Riverside Hotel would be built, obviously, left none of the contest participants indifferent to it. But it is specifically the proposal by arch group that developed a whole ideology based upon it. This ideology grew naturally and organically, literally sprouting from the ground beneath the architects feet: Mikhail Krymov and Aleksey Goryainov from the very start decided that they would try to make the most of the advantages that this landscape gave them. First of all, of course, the unparalleled view of the panorama of the Strogino riverbed that is literally has no rivals in Moscow. This is why the architects' first task was searching for such an architectural and engineering solution that would allow for opening up this panorama from as many as possible (and, in the perfect world, from all of the) hotel rooms. Therefore, overlapping or juxtaposed volumes were out of the question, just as any windows facing each other - the only possible solution was the plan that followed exactly the bend of the spit of Moskva and Skhodnya rivers. Considering the fact that almost all the hotel rooms and apartments (for a few small exceptions) are going to be turned, in accordance with the architects plan, to the outer facade, such a solution provides the guests of the hotel with the utmost visual comfort, at the same time cutting of the not-too-pleasant views of the sewage structures lurking behind the construction territory.

Radisson Blue hotel complex at the place of the confluence  of the Moskva and Skhodnya rivers. Form-shaping factors © Arch group
Radisson Blue hotel complex at the place of the confluence of the Moskva and Skhodnya rivers. Form-shaping factors © Arch group


Radisson Blue hotel complex at the place of the confluence  of the Moskva and Skhodnya rivers © Arch group
Radisson Blue hotel complex at the place of the confluence of the Moskva and Skhodnya rivers © Arch group


Radisson Blue hotel complex at the place of the confluence  of the Moskva and Skhodnya rivers © Arch group
Radisson Blue hotel complex at the place of the confluence of the Moskva and Skhodnya rivers © Arch group


Radisson Blue hotel complex at the place of the confluence  of the Moskva and Skhodnya rivers. Location plan © Arch group
Radisson Blue hotel complex at the place of the confluence of the Moskva and Skhodnya rivers. Location plan © Arch group


So, what can a volume, so naturally "planted" on the cape between the two rivers, look like? "We thought that the most efficient way of form-making would be to have the building literally grow from the ground - Aleksey Goryainov shares - It must be at peace and harmony with the surrounding scenery, like it's the most natural thing that could ever happen here". Solutions like this one are generally a trademark feature of the works by Goryainov and Krymov: their projects usually show a lot of context-based common sense that is easily discernible in the language of their visual imagery. In this specific case, when viewed from the water area, the building of the hotel complex must look like a hill that has grown in the Strogino riverbed as a result of some tectonic process. This effect is also enhanced by the natural elevation of the terrain that the architects continue with a sloping form of the building strengthened by decorative pulls on the level of the first floor - they symbolize the connection between the facade and the ground. The architects also propose to accentuate the sloping bank with concentric arches of green terraces, which makes even more sense thanks to the fact that you cannot make asphalt walks on the waterfront territory - it can only be earth trails, lawns, and marinas. 

Radisson Blue hotel complex at the place of the confluence  of the Moskva and Skhodnya rivers © Arch group
Radisson Blue hotel complex at the place of the confluence of the Moskva and Skhodnya rivers © Arch group


Radisson Blue hotel complex at the place of the confluence  of the Moskva and Skhodnya rivers © Arch group
Radisson Blue hotel complex at the place of the confluence of the Moskva and Skhodnya rivers © Arch group


Radisson Blue hotel complex at the place of the confluence  of the Moskva and Skhodnya rivers © Arch group
Radisson Blue hotel complex at the place of the confluence of the Moskva and Skhodnya rivers © Arch group


Radisson Blue hotel complex at the place of the confluence  of the Moskva and Skhodnya rivers © Arch group
Radisson Blue hotel complex at the place of the confluence of the Moskva and Skhodnya rivers © Arch group


The entire facade is occupied by the glass terraces belonging to the hotel rooms and apartments. This breaking away from the vertical gives the architects yet another advantage: the lower the floor, the more spacious the terraces can be which means that the river view, at places limited by the protected trees, will be made up for by the sheer number of extra square meters. And, if we are to integrate solar panels into the sloping glass, this will really go a long way to increase the energy efficiency of the complex. According to Aleksey Goryainov, by the way, the project has a great potential in terms of the so-called "green construction" - from the accumulation of rain and thawed water to complete automation and centralized digital control of all the engineering systems; in the light of nature-oriented ideology of the project, this makes perfect sense. 

Radisson Blue hotel complex at the place of the confluence  of the Moskva and Skhodnya rivers © Arch group
Radisson Blue hotel complex at the place of the confluence of the Moskva and Skhodnya rivers © Arch group


Radisson Blue hotel complex at the place of the confluence  of the Moskva and Skhodnya rivers © Arch group
Radisson Blue hotel complex at the place of the confluence of the Moskva and Skhodnya rivers © Arch group


Radisson Blue hotel complex at the place of the confluence  of the Moskva and Skhodnya rivers © Arch group
Radisson Blue hotel complex at the place of the confluence of the Moskva and Skhodnya rivers © Arch group


While, from the side of the outer facade, the "hill" image is created, among other things, by the wooden parts of the terraces, from the inner side the building is almost completely covered with glass. Due to the fact that, starting from the sixth floor up, it is only the corridors that overlook the yard, the restrictions for the percentage of glass in the residential premises do not apply here - meaning, there is a great possibility to provide the guests of Radisson Blu, as they walk to and from the elevators, with as much light as possible. The inclined form of the building plays here yet another part - it partially protects the people approaching the hotel from the rain, turning the building into a semblance of a giant awning. And, inside the smooth curve of the main volume, the architects propose to organize yet another "hill", this time a green one (in the literal sense of the word - it is planned that its roof will be planted with bushes and trees). This is the way the business center looks in this project - a multifunctional hall and offices, a restaurant, and a parking lot of its own - connected to the main building by an underpass. Its green roof is meant to protect the guests at 2-5th floor from the industrial waste: in this sector, orienting the residential premises to the outer side alone would have been economically ineffective. As far as the public zones of the hotel itself are concerned - the lobby, the restaurant, and the spa center - they fully occupy the first level of the building. 

Radisson Blue hotel complex at the place of the confluence of the Moskva and Skhodnya rivers. Birds' height view © Arch group
Radisson Blue hotel complex at the place of the confluence of the Moskva and Skhodnya rivers. Birds' height view © Arch group


Radisson Blue hotel complex at the place of the confluence of the Moskva and Skhodnya rivers. Axonometric perspective © Arch group
Radisson Blue hotel complex at the place of the confluence of the Moskva and Skhodnya rivers. Axonometric perspective © Arch group


The peculiarity of the land site in question lies, among other things, in the fact that before they say "wow", overwhelmed by vistas spreading before their eyes, the guests will have to make a short but impressive journey from the Volokolamsk Highway down here. This area has not yet been landscaped, and no one knows for sure if it ever will be - so, most likely, after the construction is complete, the road to Radisson Blu will be framed with concrete fences with barbed wire, the ruins of a gas station, and some selling exhibition of tombstones. The authors of the project decided that it was necessary to heal this expression with the most active view of the building itself: from this vantage point, the eastern wing of the complex soars into the sky very much like the monument to Space Explorers at VDNKh. Besides the laws of perspective, this effect is enhanced by the increase in the number of floors in the direction of the Volokolamsk Highway: the difference with the opposite end of the curve is three meters thanks to which extra dynamics is given to the views of the building from the Moskva River and the Moscow Ring Road, while the step-like terraces increase the commercial attractiveness of the top-floor apartments. As for the guests driving up to the hotel, they are in for a wow-effect in the shape of an arched opening two stories high commanding a fine river view - through the building. The wooden finish of natural color, the form reminding of geologic cleavages - it seems that the earth itself stood on end here obeying some "Open Sesame" spell, and then froze that way forever, struck by the beauty of the scenery. 
Radisson Blue hotel complex at the place of the confluence  of the Moskva and Skhodnya rivers © Arch group
Radisson Blue hotel complex at the place of the confluence of the Moskva and Skhodnya rivers © Arch group
Radisson Blue hotel complex at the place of the confluence  of the Moskva and Skhodnya rivers © Arch group
Radisson Blue hotel complex at the place of the confluence of the Moskva and Skhodnya rivers © Arch group
Radisson Blue hotel complex at the place of the confluence  of the Moskva and Skhodnya rivers © Arch group
Radisson Blue hotel complex at the place of the confluence of the Moskva and Skhodnya rivers © Arch group
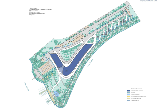
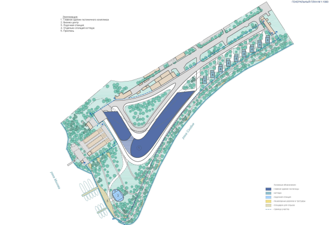
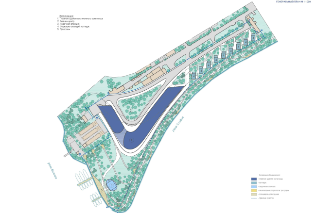
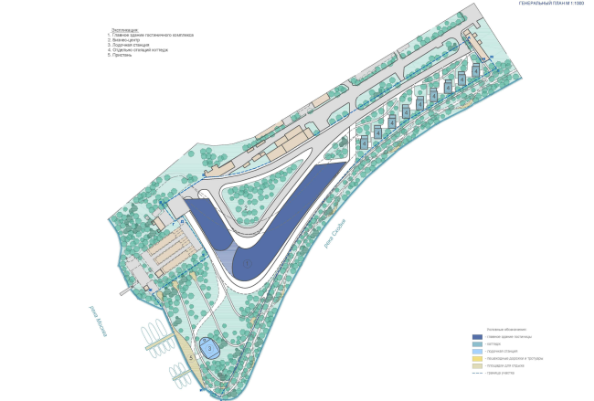
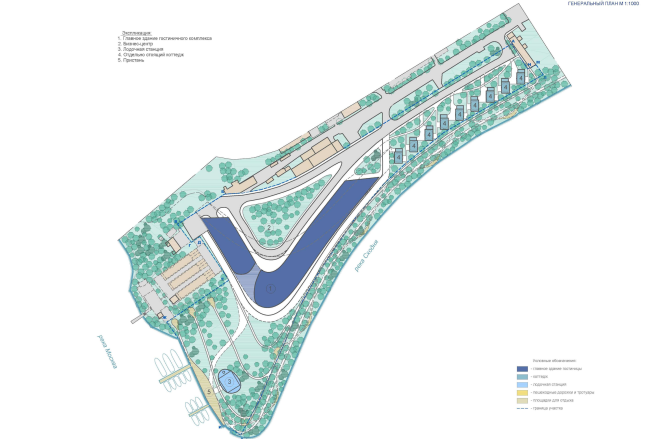
Radisson Blue hotel complex at the place of the confluence  of the Moskva and Skhodnya rivers. Master plan © Arch group
Radisson Blue hotel complex at the place of the confluence of the Moskva and Skhodnya rivers. Master plan © Arch group
Radisson Blue hotel complex at the place of the confluence  of the Moskva and Skhodnya rivers. Layout of the pedestrian and recreational areas © Arch group
Radisson Blue hotel complex at the place of the confluence of the Moskva and Skhodnya rivers. Layout of the pedestrian and recreational areas © Arch group
Radisson Blue hotel complex at the place of the confluence  of the Moskva and Skhodnya rivers. Transport diagram © Arch group
Radisson Blue hotel complex at the place of the confluence of the Moskva and Skhodnya rivers. Transport diagram © Arch group
Radisson Blue hotel complex at the place of the confluence of the Moskva and Skhodnya rivers. Axonometric perspective © Arch group
Radisson Blue hotel complex at the place of the confluence of the Moskva and Skhodnya rivers. Axonometric perspective © Arch group
Radisson Blue hotel complex at the place of the confluence of the Moskva and Skhodnya rivers. Section views © Arch group
Radisson Blue hotel complex at the place of the confluence of the Moskva and Skhodnya rivers. Section views © Arch group
Radisson Blue hotel complex at the place of the confluence of the Moskva and Skhodnya rivers. Plan of the basement and the first floors © Arch group
Radisson Blue hotel complex at the place of the confluence of the Moskva and Skhodnya rivers. Plan of the basement and the first floors © Arch group
Radisson Blue hotel complex at the place of the confluence of the Moskva and Skhodnya rivers. Plan of floors 2-4 © Arch group
Radisson Blue hotel complex at the place of the confluence of the Moskva and Skhodnya rivers. Plan of floors 2-4 © Arch group
Radisson Blue hotel complex at the place of the confluence of the Moskva and Skhodnya rivers. Facade © Arch group
Radisson Blue hotel complex at the place of the confluence of the Moskva and Skhodnya rivers. Facade © Arch group
Radisson Blue hotel complex at the place of the confluence of the Moskva and Skhodnya rivers. Facade © Arch group
Radisson Blue hotel complex at the place of the confluence of the Moskva and Skhodnya rivers. Facade © Arch group