Published on Archi.ru (https://archi.ru)

11.11.2015

Clever Clover, Mondrian Style

Irina Bembel
Studio:
A-Len

In Saint Petersburg's Moscow District, not far away from the Constitution Square, appeared a new high-rise built upon the project of "A.Len" Studio - named "Klever" ("Clover").

"Klever" residential building © "A.Len" Architectural Bureau
"Klever" residential building © "A.Len" Architectural Bureau


Well, as a matter of fact, the Russian for "clover" is "klever" which sounds almost exactly like "clever". Considering the fact that most Russians know the basics of English, some of the people perceive this name as "clover", and some - as "clever". Whichever. 

The genre of a multi-apartment building by default sets rather rigid limits for creative work. The modular cells almost inevitably come together to make a tall prism whose image is to a large degree defined by the configuration of the land site and the multitude of mandatory rules and regulations. As a result, the architect's job is pretty much as good as done rather early on: now he has only to fiddle with the pilasters a little bit, play around with the basement floor, and try to conceal as much as possible the endless monotony of the modular facade. This last task is usually assisted by the graphic and color solutions. In this case, the authors, according to their own author note, used the motifs of the icons of suprematism Malevich and Suetin, as well as the co-founder of neoplasticism Pete Mondrian. 

"Klever" residential building © "A.Len" Architectural Bureau
"Klever" residential building © "A.Len" Architectural Bureau


"Klever" residential building © "A.Len" Architectural Bureau
"Klever" residential building © "A.Len" Architectural Bureau


"Klever" residential building © "A.Len" Architectural Bureau
"Klever" residential building © "A.Len" Architectural Bureau


"Klever" residential building © "A.Len" Architectural Bureau
"Klever" residential building © "A.Len" Architectural Bureau


Already a common standard in the fashion and fragrance industries, the multicolored Mondrian cell grid seems to lend itself to the multistory facades. So it is all the more surprising that the architects did not pay attention to it a lot earlier. In Saint Petersburg, the precedent occurred in 2009: "imitation Mondrian" design was used to decorate the soviet-origin kindergarten building at 102, Moika. And now, the grid of multicolored rectangles has started covering the new buildings designed by "A.Len". 

The leader of "A.Len" Sergey Oreshkin openly admits and even airs his orientation to avant-garde and its related western sub genres. At the same time, the Russian avant-garde still holds the leading positions here. While the rectangular Mondrian grid makes a perfect match for the facade surfaces, for organizing the space the architects drew inspiration from the ideas of constructivism and suprematism, predominantly not any specific suprematism techniques being borrowed but its basic principles: the dynamics, the openness, the geometric abruptness of gesture, and the consistent denial of the principles of the classical composition - characteristic for "A.Len" projects. 

"Klever" residential building © "A.Len" Architectural Bureau
"Klever" residential building © "A.Len" Architectural Bureau


"Klever" residential building © "A.Len" Architectural Bureau
"Klever" residential building © "A.Len" Architectural Bureau


In the case of "Clever", exploring all these qualities to the fullest was made impossible, as was already said, by the strict boundaries of the genre, and even the rigid Mondrian grid looks softened and tamed on the facade of this house. Its colors are lightened, softened, and at places they indeed look like the tone of clover - which, together with the purple haze, endows the 25-story giant with an unobtrusive and even welcoming appearance. 

"Klever" residential building © "A.Len" Architectural Bureau
"Klever" residential building © "A.Len" Architectural Bureau


"Klever" residential building © "A.Len" Architectural Bureau
"Klever" residential building © "A.Len" Architectural Bureau


Besides the "summer" palette, the overall visual lightness of the building is enhanced by the liberally glazed bottom floor with pilasters between the tall shop windows. Here the spacious entrance lobby with a concierge is situated, as well as the service and shopping premises. 

While the facade and its main entrance, as well as the two side walls are designed as more or less free combinations of rectangles, the fourth facade sports a distinct symmetry axis. It is shown by a vertical row of balconies with unusual decorative links executed in the form of slender stripes that connect different levels at arbitrary angles. From a distance, these "staggering" stripes looks as if they were made of opaque glass, but upon a closer examination they turn out to be filled with mesh playing obviously a purely decorative part meant to defeat the downright logic of the right angle. Crossing freely in the objectless space, such "flying sticks" were a favorite technique with Malevich and Suetin, but in this case their streaming flow is channeled down a dedicated lane of its own. 

"Klever" residential building © "A.Len" Architectural Bureau
"Klever" residential building © "A.Len" Architectural Bureau


"Klever" residential building © "A.Len" Architectural Bureau
"Klever" residential building © "A.Len" Architectural Bureau


"Klever" residential building © "A.Len" Architectural Bureau
"Klever" residential building © "A.Len" Architectural Bureau


Generally, for all the stuffiness of the genre limits, the architects were able to come up with some interesting "technique" the essence of which is "playing inconsistent" where every logic order immediately meets with its controversy. Here is the thing: it is Mondrian - yet not quite, Malevich and Suetin - but strictly along a symmetry axis, a highlighted center - but of irregular outlines and uncertain colors; a vague hint at pilasters and rock face in the bottom floor - and the multicolored modern structural elements in the main part of the facades. All this surprisingly puts one in the mind of the double meaning of "Klever" that we wrote about in the very beginning of this article and its mysterious connection to Mondrian, Malevich, and Suetin. Put together, these things give the building a slight relativistic postmodernist flavor.

The new high-rise rather tactfully entered the already formed urban matter of Moscow District finding support in the blue silhouette of "Leader Tower" business center and other modern buildings surrounding the Constitution Square. The building is perfectly "readable" from the Krasnoputilovskaya Street as yet another tower standing amidst the soviet-era "ship" houses. 

"Klever" residential building © "A.Len" Architectural Bureau
"Klever" residential building © "A.Len" Architectural Bureau


"Klever" residential building © "A.Len" Architectural Bureau
"Klever" residential building © "A.Len" Architectural Bureau


"Klever" residential building © "A.Len" Architectural Bureau
"Klever" residential building © "A.Len" Architectural Bureau


The level of landscaping of the adjacent territory deserves a special mention. At the expense of the underground parking garage, the building has a fully-pedestrian green adjacent territory with a children's playground. The mirror-glazed ground floor with expensive-looking rhythmic "pilasters" significantly widens the territory, lightens the multistory mass, and adds to this new part of city environment a glossy finish pleasant to the eye. 
"Klever" residential building © "A.Len" Architectural Bureau
"Klever" residential building © "A.Len" Architectural Bureau
"Klever" residential building © "A.Len" Architectural Bureau
"Klever" residential building © "A.Len" Architectural Bureau
"Klever" residential building © "A.Len" Architectural Bureau
"Klever" residential building © "A.Len" Architectural Bureau
"Klever" residential building © "A.Len" Architectural Bureau
"Klever" residential building © "A.Len" Architectural Bureau
"Klever" residential building © "A.Len" Architectural Bureau
"Klever" residential building © "A.Len" Architectural Bureau
"Klever" residential building © "A.Len" Architectural Bureau
"Klever" residential building © "A.Len" Architectural Bureau
"Klever" residential building © "A.Len" Architectural Bureau
"Klever" residential building © "A.Len" Architectural Bureau
"Klever" residential building © "A.Len" Architectural Bureau
"Klever" residential building © "A.Len" Architectural Bureau
"Klever" residential building © "A.Len" Architectural Bureau
"Klever" residential building © "A.Len" Architectural Bureau
"Klever" residential building. Section view © "A.Len" Architectural Bureau
"Klever" residential building. Section view © "A.Len" Architectural Bureau
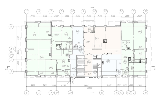
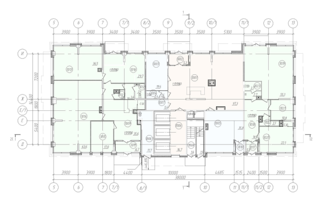
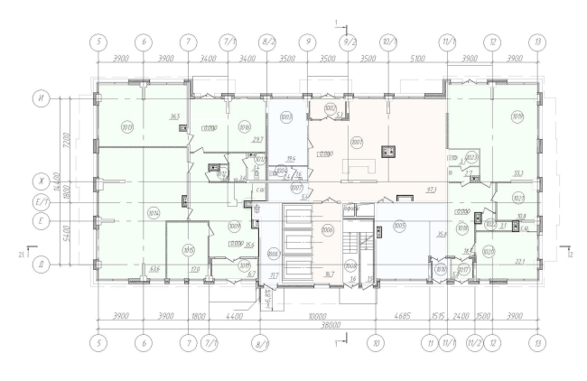
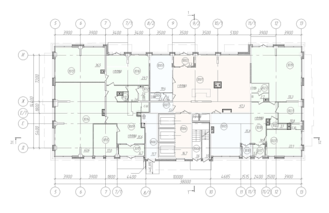
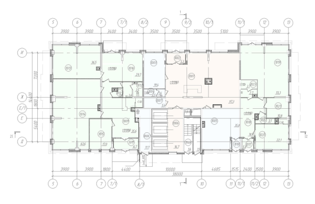
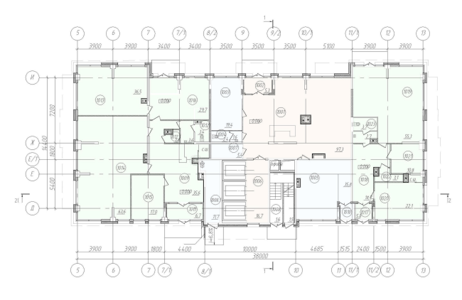
"Klever" residential building. Plan of the first floor © "A.Len" Architectural Bureau
"Klever" residential building. Plan of the first floor © "A.Len" Architectural Bureau
"Klever" residential building. Master plan © "A.Len" Architectural Bureau
"Klever" residential building. Master plan © "A.Len" Architectural Bureau