Published on Archi.ru (https://archi.ru)

03.08.2015

Face to the City, Roof to the Sea

Lilya Aronova
Studio:
A-Len

Designed by Sergey Oreshkin, the terminals of Saint Petersburg's passenger port live up to their status of the city's "sea façade". And, while from the city side the guests are met by the facades that are dynamic, "soaring", and hi-tech, the passengers of the cruising liners are met be the port's artistically elaborate roofs.

Sea passenger terminal. Terminal #1 (cruise) © "A.Len"
Sea passenger terminal. Terminal #1 (cruise) © "A.Len"


The architectural bureau "A.Len" was building the Sea Passenger Port in the Neva Bay for seven years: the design work started back in 2004, and it was in 2011 that the last terminal was handed over to the city and launched into operation. Each of the four terminals was launched once in a year or a year and a half, the designing was done parallel to the construction work and was accompanied by the inevitable consultations from experts in different fields, so, according to Sergey Oreshkin, the architects neither had to work on a balls-to-the-wall schedule nor felt any particular pressure of extra responsibility. Nevertheless, the end result of this work is nothing more nor less than building and subsequent putting into operation one of the largest in Europe, according to the official reports, cruising ports.

Sea passenger terminal © "A.Len"
Sea passenger terminal © "A.Len"


Sea passenger terminal © "A.Len"
Sea passenger terminal © "A.Len"


Sea passenger terminal. Terminal #1 (cruise) © "A.Len"
Sea passenger terminal. Terminal #1 (cruise) © "A.Len"


Of course, cruise liners would come to Saint Petersburg before. Entering Neva's estuary, they would moor practically in the city's center, at Morskoy Vokzal: the tourists would get the city's sights within a walking distance, and the city people would get the sight of magnificent liners. The border control and the customs services, however, for this same reason, would run into heaps of difficulties, down to the sheer impossibility of normal work. Furthermore, the Morskoy Vokzal was incapable of accepting ships over 200 meters long, and they had to be forwarded to the commercial sea port that is totally unfit for these purposes.

The decision (made in 2005) to build a dedicated passenger port named "Sea Façade" - also on the Vasilyevsky Island, only more to the west - turned out to be the optimum solution that satisfied all the parties. Furthermore, this port was to become a part of a grand-scale strategic project of developing the city that provides for forming more than 476 hectares of new raised beaches, construction of new residential areas, a university, and a new metro station. The seven terminals of "Sea Façade" are capable of taking in cruising liners and ferries up to 330 meters long. The first vessel moored here in 2008; now the port is working to capacity.

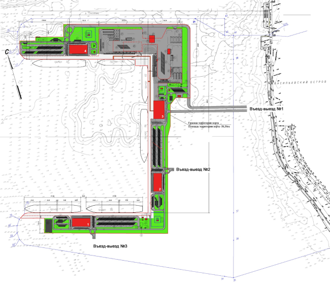
Sea passenger terminal. Location plan © "A.Len"
Sea passenger terminal. Location plan © "A.Len"


Sea passenger terminal. Terminal #3 (ferry) © "A.Len"
Sea passenger terminal. Terminal #3 (ferry) © "A.Len"


Today, the architecture of cruising terminals is a genre as hot and intriguing as designing airports. In Shanghai, Taiwan, Sidney, and Cartagena, the passenger terminals are designed by world-class architects, win professional awards, and get extensive coverage in the industry media. Thus, over the years, considerable experience has been accumulated in this field, both from the architectural and from the purely technological standpoint. As Sergey Oreshkin shares, "A.Len" got this job after the company, almost on a gratis basis, conducted a few consultations with the experts on the technologies of cruising port construction in Europe and the USA (the company actually also contributed to preparing the technical specifications to the project but that's a different story). And, by the way, "A.Len" agreed to take the job subject to the condition that the appropriate experts must be included into the team: the scientific part was done by an American company, while the chief technologist came from Finland. 

Sergey Oreshkin's original project is significantly different from what ultimately got implemented. When the whole story was just beginning ten years ago, the architectural world's hottest thing was the "rolling" or "band" architecture - when a building, like New York's museum of Eyebeam built upon the project of Diller Scofidio + Renfro, or the HQ of Vacheron Constantin designed by Bernard Tschumi in Geneva, looks as if it was casually rolled up from a giant band - flexible but at the same time capable of holding the shape that the architects intended it to have. Similarly, Sergey Oreshkin came up with a building looking like a "bolt of tarpaper" sliced, like a loaf of bread, into individual terminals and also bringing up associations with a tidal wave. True, the idea is dramatic and expressive but, regretfully, Tschumi's "deconstruction" principles that are all about separating the form from the content do not really go well together with the real-life practice of building transport facilities, at least, in this country. If we are to draw more parallels with the world's top projects, then we must admit that the "airport - railway station - sea port" typology in its classic form is more about Santiago Calatrava with his laid-bare, sometimes even skeleton-like structures or Richard Rogers and other pioneers of architectural hi-tech that consistently accentuated the aesthetics of the functionality of their projects. Furthermore, apart from being different from its archetype, the original "A.Len" proposal was fraught with serious difficulties in servicing the roof, particularly in the wintertime. And so it turned out that the "bolt of tarpaper" turned into a "modular object with dramatically expressed techno design" - Sergey Oreshkin shares. 

Sea passenger terminal. Master plan © "A.Len"
Sea passenger terminal. Master plan © "A.Len"


Ferry terminal. Terminal #1 © "A.Len"
Ferry terminal. Terminal #1 © "A.Len"


All the four terminals - three cruising ones and one for ferries connected by common above-ground galleries - have a single architectural and engineering solution and are only different in their size: the three-story ferry terminal separates the pedestrian and the automotive flows, the length of the cruising ones being defined by the number of the quays that they serve. Essentially, these are pavilions designed to quickly carry aboard huge numbers of people - within a 30-minute span, under the guidance of tourist agents, about two thousand people can board the ships. The functionality is accentuated by the laconic architectural style. Just like in the "textbook" case of Pompidou Center designed by Renzo Piano and the works by already-mentioned Richard Rogers, the multiple rod construction is carried over to the outside and accentuated. The panoramic glazing of the front and most of the side facades dissected by the grid of the metallic framework makes the inside bearing columns plainly viewable. The bases of the rectangular tetrahedron of the metallic rods that support the marquee above the entrance also support the overhanging awning of the roof. All this put together forms a complex geometric pattern that goes a long way to bring out the best in the building's dynamics that grows half again as high from the back façade to the front one, if we are to consider the marquee. Alternating with the monumental prismatic pilasters, the portals of the pullout doors are limited on top by a cornice of a complex profile, broken down into individual fragments and bringing up associations with an airplane wing. 

Sea passenger terminal. Terminal #1 (cruise) © "A.Len"
Sea passenger terminal. Terminal #1 (cruise) © "A.Len"


Sea passenger terminal. Terminal #2 (cruise) © "A.Len"
Sea passenger terminal. Terminal #2 (cruise) © "A.Len"


Sea passenger terminal. Terminal #2 (cruise) © "A.Len"
Sea passenger terminal. Terminal #2 (cruise) © "A.Len"


Sea passenger terminal. Terminal #3 (ferry) © "A.Len"
Sea passenger terminal. Terminal #3 (ferry) © "A.Len"


Sea passenger terminal. Terminal #4 (cruise) © "A.Len"
Sea passenger terminal. Terminal #4 (cruise) © "A.Len"


Sea passenger terminal. Terminal #4 (cruise) © "A.Len"
Sea passenger terminal. Terminal #4 (cruise) © "A.Len"


Sea passenger terminal. Terminal #1 (cruise) © "A.Len"
Sea passenger terminal. Terminal #1 (cruise) © "A.Len"


Sea passenger terminal. Terminal #3 (ferry) © "A.Len"
Sea passenger terminal. Terminal #3 (ferry) © "A.Len"


While from the sea side the height of the pavilions is made as low as possible - standing up to the sheer bulk of the sea giants is not realistic anyway - the facades turned to the city look as if they are three or even four stories high, even though in actuality their inside space remains double-height. For all its effectiveness and quite a few practical benefits (decreasing the wind load, to name but one), this solution brought a lot of challenges to the architects: the premises in the center of the terminal turned out to be too high in fact, they lacked the necessary amount of light, and, in order to let the sunlight in, the architects had to provide for special "sun tubes" in the roof. As is often the case in this life, the architects were really able to make a virtue out of necessity: just like all the other construction elements, these "tubes" are also fitted with LED's - in the evening, the purple and green lights sparkle not only on the facades but also on the roofs of the terminals.

Sea passenger terminal. Terminal #2 (cruise) © "A.Len"
Sea passenger terminal. Terminal #2 (cruise) © "A.Len"


Sea passenger terminal. Terminal #2 (cruise) © "A.Len"
Sea passenger terminal. Terminal #2 (cruise) © "A.Len"


The roofs of the terminals are a whole separate story and a special creative project in themselves. Due to the fact that the main decks of the ships that come into the port are in fact situated significantly higher than the rooftop level, the "A.Len" architects wanted the terminals' "fifth façade" stand up to meeting the guests of the city. They considered these questions still while they were designing the water park in "Pribaltiyskaya" Hotel where the park was designed with consideration to the views from the hotel rooms. Similarly, on the roofs of the ferry and cruising terminals, the sun tubes, the air ducts, and all the technical contents assembled into blocks - all of this, at the architects' will, makes a magnificent graphic picture sparkling with multicolored lights in the nighttime and pleasing the eye with its harmonious pattern by daylight. The chief engineer Alexander Weiner considers these "artistic" roofs to be the main "distinctive feature" of this project, and we cannot but agree with him. 

Sea passenger terminal. Terminal #1 (cruise) © "A.Len"
Sea passenger terminal. Terminal #1 (cruise) © "A.Len"


Sea passenger terminal. Terminal #2 (cruise) © "A.Len"
Sea passenger terminal. Terminal #2 (cruise) © "A.Len"


Sea passenger terminal. Terminal #3 (ferry) © "A.Len"
Sea passenger terminal. Terminal #3 (ferry) © "A.Len"


A cruising terminal is a very special building: it has nothing more nor less than a state border running through it. A similar principle is applied in the construction of international airports - they also have in them the state and the extraterritorial areas separated by the line of the customs and the state border control. Hence the inside architecture of the pavilions: the huge open spaces (in the case of cruising terminals, with as few shopping and entertainment premises as possible - the passengers are not supposed to stay here for long), galleries, stairways, and overpasses. 

Designing the interiors of the pavilions in the same key of techno design, Sergey Oreshkin could not, of course, overlook the naval theme altogether. The associations that we see here, though, are pretty complex and not of the face-value type: while in the massive "pencil" columns one can still see the features of the ship's chimneys, the rounded surfaces of the color of noble wood that are to be seen on the façade, and on the marquees are but a subtle hint at ships' lines; as for the fact that the designed of the latticed openings was inspired by the image of a boat's bottom - this can only be figured out with Sergey giving you the clue. The architect, incidentally, reminded us that a similar technique was used by Nicolas Grimshaw when the latter designed the new terminal of Pulkovo Airport: in the folded-plate structure of the vaults one can see both the proverbial golden domes of the Orthodox churches, and the boats sailing the Baltic Sea. And, as for high-tech, it is really abundant and quite unambiguous in all the terminals of "Sea Façade": it is all about metal (or, rather, its imitation), and industrial-shape lights, and stairways and galleries of glass and steel that dissect this huge airy space. Even the benches here sport a maximally ergonomic and industrial look. 

Sea passenger terminal. Terminal #2 (cruise) © "A.Len"
Sea passenger terminal. Terminal #2 (cruise) © "A.Len"


Sea passenger terminal. Terminal #3 (ferry) © "A.Len"
Sea passenger terminal. Terminal #3 (ferry) © "A.Len"


Sea passenger terminal. Terminal #2 (cruise) © "A.Len"
Sea passenger terminal. Terminal #2 (cruise) © "A.Len"


Besides the four terminals, "A.Len" bureau built in the passenger port a few auxiliary buildings: the management center of the port (also rather stylish and modernist with horizontal windows - Sergey Oreshkin comments), and automotive checkpoint and bus stops. The work goes on even now: new you duty-free shops are being completed, and the architects are considering building a new fitness center. Besides - a rare case - according to Alexander Weiner, the management company has drawn up with "A.Len" a ten-year contract on technical supervision and operation of the terminals. This is important because it is all about the raised beaches, although the buildings of the terminals rest upon pales and there is little risk of serious sagging. So, "A.Len" is not letting go of "Sea Façade". 

Sea passenger terminal. Control building © "A.Len"
Sea passenger terminal. Control building © "A.Len"


Sea passenger terminal. Customs office © "A.Len"
Sea passenger terminal. Customs office © "A.Len"


Sergey Oreshkin is quite modest in his evaluating the terminal: nothing out of the ordinary, four objects 10 000 square meters each, a magnitude comparable to a regular residential building - but some certain pride for the implemented project, of course, is felt in his words. The recognition of his colleagues was also quick to come, as they were launched into operation, each terminal was winning these or those industry awards. Now the architects have a pleasant opportunity to admire their work from a close range - from the side of their yet another object under construction: on the first line of the raised land, "A.Len" is building the residential area under the poetic name of "Me, Romantic". The windows of the apartments will command a magnificent view of the passenger port terminals, quite small against the background of the steel ships but still plainly visible by day and night. 
Sea passenger terminal. Terminal #1 (cruise) © "A.Len"
Sea passenger terminal. Terminal #1 (cruise) © "A.Len"
Sea passenger terminal. Terminal #1 (cruise) © "A.Len"
Sea passenger terminal. Terminal #1 (cruise) © "A.Len"
Sea passenger terminal. Terminal #2 (cruise) © "A.Len"
Sea passenger terminal. Terminal #2 (cruise) © "A.Len"
Sea passenger terminal. Terminal #2 (cruise) © "A.Len"
Sea passenger terminal. Terminal #2 (cruise) © "A.Len"
Sea passenger terminal. Terminal #3 (ferry) © "A.Len"
Sea passenger terminal. Terminal #3 (ferry) © "A.Len"
Sea passenger terminal. Terminal #4 (cruise) © "A.Len"
Sea passenger terminal. Terminal #4 (cruise) © "A.Len"
Sea passenger terminal. Terminal #1 (cruise) © "A.Len"
Sea passenger terminal. Terminal #1 (cruise) © "A.Len"
Sea passenger terminal. Terminal #3 (ferry) © "A.Len"
Sea passenger terminal. Terminal #3 (ferry) © "A.Len"
Sea passenger terminal. Terminal #4 (cruise) © "A.Len"
Sea passenger terminal. Terminal #4 (cruise) © "A.Len"
Sea passenger terminal. Control building © "A.Len"
Sea passenger terminal. Control building © "A.Len"
Sea passenger terminal. Terminal #1 (cruise) © "A.Len"
Sea passenger terminal. Terminal #1 (cruise) © "A.Len"
Sea passenger terminal. Terminal #4 (cruise) © "A.Len"
Sea passenger terminal. Terminal #4 (cruise) © "A.Len"
Sea passenger terminal. Facade © "A.Len"
Sea passenger terminal. Facade © "A.Len"