Published on Archi.ru (https://archi.ru)

18.06.2015

On the Green Podium

Anna Victorova
Studio:
Arhitekturium

In the vicinity of the Moscow suburb town of Krasnogorsk, upon the project of Vladimir Bindeman's "Architecturium", the implementation of a new residential area called "Opalikha Village" is beginning.

"Opalikha-Village" residential area © "Architecturium"
"Opalikha-Village" residential area © "Architecturium"


Moscow area's city of Krasnogorsk is something that Vladimir Bindeman has long been quite at home with: among other things, it is here that he built his "Rizhsky Quarter" that got numerous awards as the best business-class residential area, and won the "Silver Sign" at "Zodchestvo-2013". The new area is created in its immediate vicinity - on the territory between "Rizhsky Quarter" and the Volokolamsk Highway. In spite of the fact that these two projects have different investors, the architect got a rather rare (by the Russian standards) chance of "finishing what was once started". And - the architect used this chance to the fullest, endowing the new complex with a memorable individual image combined with the fact that the building is clearly part of a larger tradition.

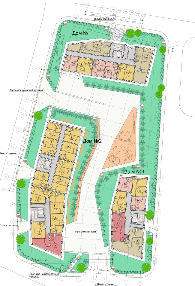
Formally, the territory between the settlement and the highway is split into two land plots - of a roughly equal area (0.73 and 0.95 hectares) and similar trapeze shapes - one of which stretches along the highway and the other one of which is oriented perpendicular to it. Uniting the plots is, alas, out of the question because they are separated by an automobile road that in fact provides access to "Rizhsky Quarter". From the architectural and planning standpoint, however, their diversity is not stressed in any way. Quite the other way around - the architects place on both venues the same types of houses, only varying their numbers and compositional arrangement.

"Opalikha-Village" residential area © "Architecturium"
"Opalikha-Village" residential area © "Architecturium"


Location plan © "Architecturium"
Location plan © "Architecturium"


Master plan including "Rizhsky Quarter" townhouse settlement © "Architecturium"
Master plan including "Rizhsky Quarter" townhouse settlement © "Architecturium"


The group of houses built between the highway and the settlement has two layers - the outer and the inner ones. The former quite predictably plays the part of the more firm protective "shell", while the inner belt of the houses is the "soft" of the body. From the architectural standpoint, this, of course, is most clearly manifested in the architects' choice of materials and the color palette of the coating (the dark terra-cotta brick is offset by the white panels and inserts of light-colored wood) - but on the planning level this duality is also clearly readable. On both land sites, the architects place, parallel to the highway, multi-section residential houses six stories high, and then they place yet another house of the same kind along the long side of the land site that is perpendicular to the highway. Thus, both the new area and the settlement spreading at a small distance get the screens that securely protect them from the world outside. As far as the inner planning solutions are concerned, the architects opted for the "pinpoint" four and six-story towers - compact on the plan and smaller in the number of their floors, they provide for the balanced transition from the townhouses to the multi apartment houses.

"Opalikha-Village" residential area © "Architecturium"
"Opalikha-Village" residential area © "Architecturium"


"Opalikha-Village" residential area © "Architecturium"
"Opalikha-Village" residential area © "Architecturium"


Of course, visual correlations are created between the two projects on the architectural level as well. And, while for decorating the townhouses, Vladimir Bindeman once came up with a "sure-fire mix" consisting of equal proportions of dark brick, white stucco and natural wood, on the larger volumes of the section houses, however, these materials are used each on its own. The "screens" are predominantly coated with bricks (of an ostentatiously different color, even more terra-cotta than on "Rizhsky Quarter"), whose "brutal" character is offset by the inter-floor channel beams and the mansard roofs of dark-gray metal. Still, though, realizing that if they took this technique too far the houses would look like fortress walls before long, the architects "dilute" the unapproachable appearance of these buildings by glazing the entire public first floor and supplying it with elegant niches at the expense of which the square footage of the first-floor apartments is reduced to the value required by the specifications.

"Opalikha-Village" residential area © "Architecturium"
"Opalikha-Village" residential area © "Architecturium"


"Opalikha-Village" residential area © "Architecturium"
"Opalikha-Village" residential area © "Architecturium"


The elongated shape of these volumes, several times enhanced and accentuated by the interfloor channel beams is opposed to the snow-white towers that, although lower in height, still look as if they were reaching upwards. At least, this is the impression that is produced by the vertically grouped narrow windows with which these buildings turn to their brick brothers. As for "Rizhsky Quarter" and its main sight - the lake - the towers are turned to them with their glazed sides. The only vertical link that is more material than glass here is the insert of light wood - the same kind is used for decorating both the townhouses and the entrance group of "Rizhsky Quarter".

Facades © "Architecturium"
Facades © "Architecturium"


Initially, it was planned that under each of the two land plots there would be an underground parking garage but the excessively moist soil did not allow that. "In fact, we had to drag all the parking garages up to the ground level but the landscape prompted to us the correct solution - we embanked them and then made the slopes green, thus hiding the basis away from the eyes of the people who will live here" - Vladimir Bindeman explains. It was this particular solution that brought about a groundbreaking way of organizing the entrance groups: the hallways are "cut" into the slopes and are flanked by concrete surfaces and pergolas that the architects propose to paint white. As for the slopes, the architects give them a picturesque wavy shape stressing their man-made nature, while the system of ramps and terraces provides the easy access to the first public floor of the complex in which the architects plan to place the office of the management company, a cafe, a restaurant, a supermarket and a fitness club. This way, each of the houses gets an elegant-looking base in the image of which the snow-white surfaces alternate with green sections setting a single high standard of organizing the entire territory.
Facades © "Architecturium"
Facades © "Architecturium"
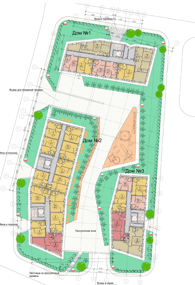
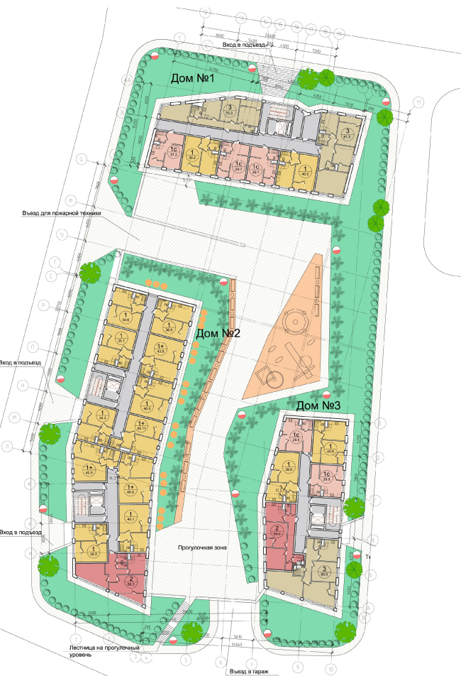
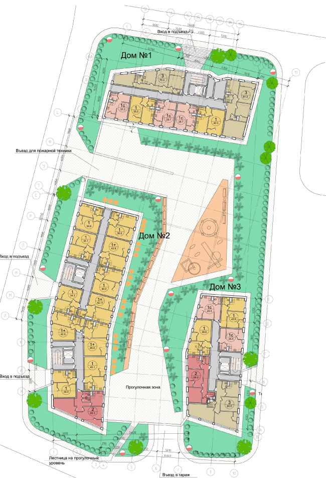
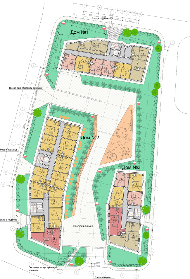
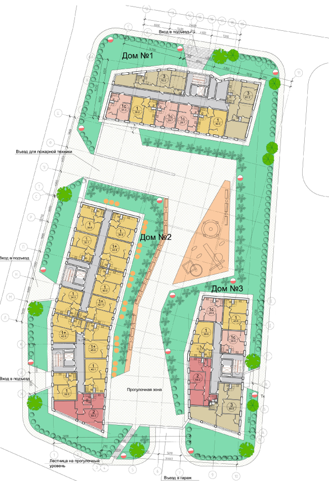
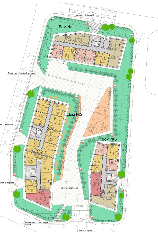
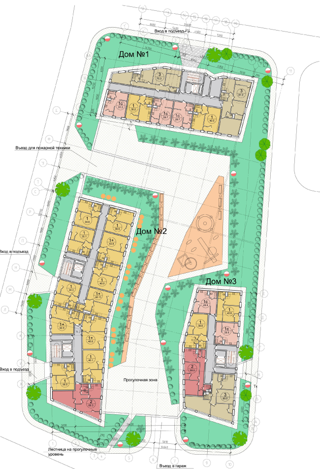
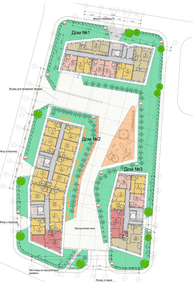
Master plan © "Architecturium"
Master plan © "Architecturium"
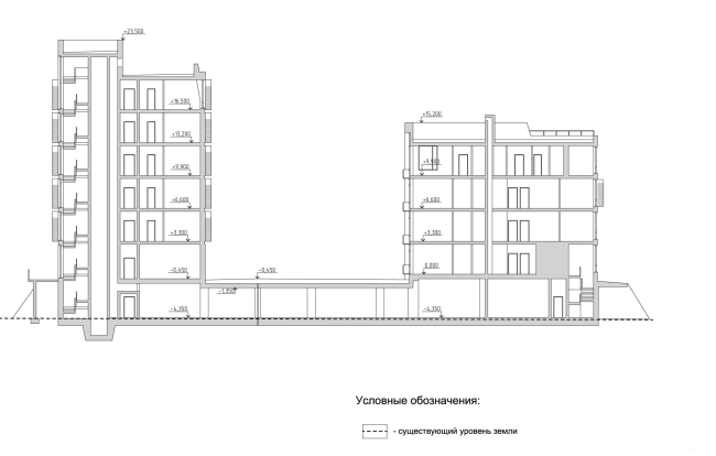
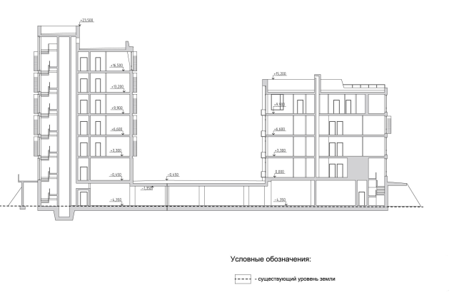
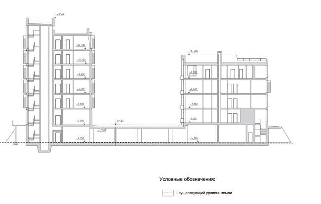
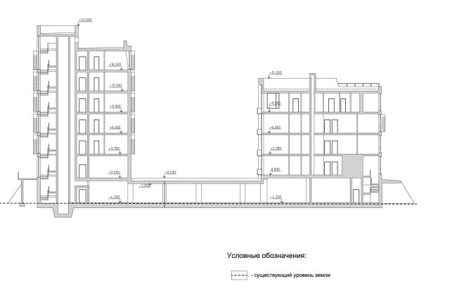
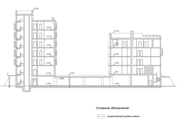
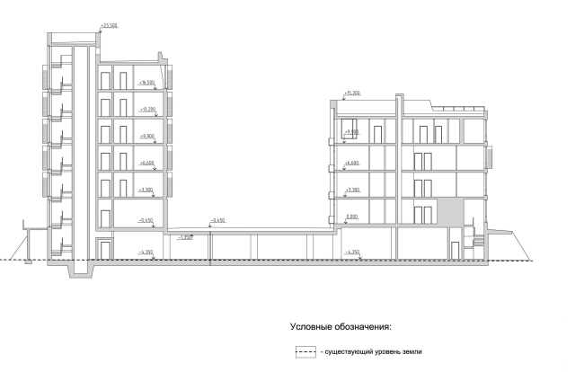
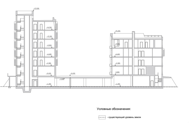
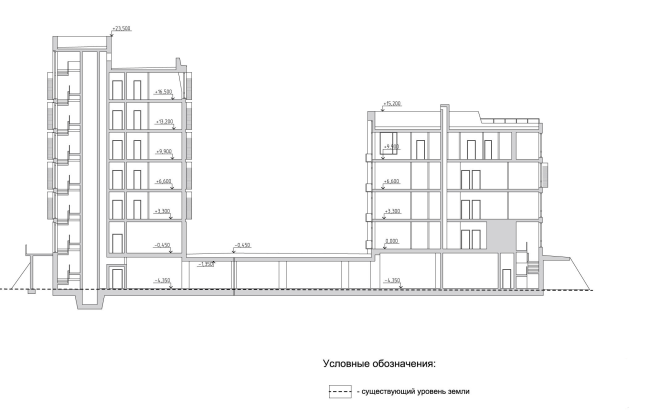
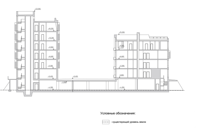
Section view © "Architecturium"
Section view © "Architecturium"
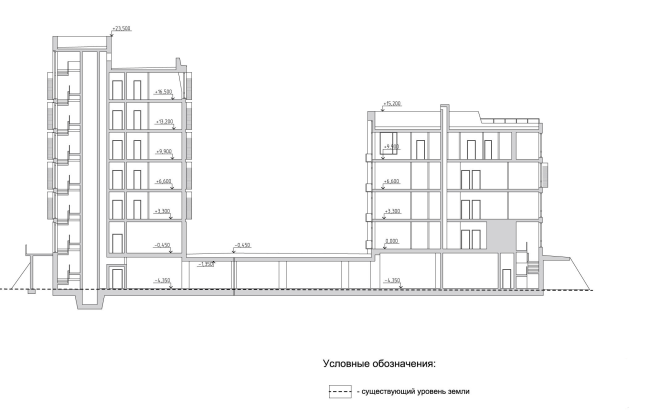
Section view © "Architecturium"
Section view © "Architecturium"
Plan of the underground parking garage of Residential Building #1 © "Architecturium"
Plan of the underground parking garage of Residential Building #1 © "Architecturium"
Plan of the first floor of the units of Residential Building #1 © "Architecturium"
Plan of the first floor of the units of Residential Building #1 © "Architecturium"
Plan of the typical floor of the units of Residential Building #1 © "Architecturium"
Plan of the typical floor of the units of Residential Building #1 © "Architecturium"
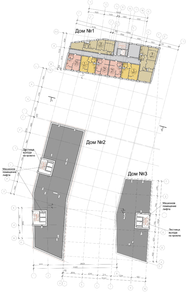
Plan of the sixth floor of the units of Residential Building #1 © "Architecturium"
Plan of the sixth floor of the units of Residential Building #1 © "Architecturium"
Plan of the underground parking garage of Residential Building #2 © "Architecturium"
Plan of the underground parking garage of Residential Building #2 © "Architecturium"
Plan of the first floor of the units of Residential Building #2 © "Architecturium"
Plan of the first floor of the units of Residential Building #2 © "Architecturium"
Plan of the typical floor of the units of Residential Building #2 © "Architecturium"
Plan of the typical floor of the units of Residential Building #2 © "Architecturium"
Plan of the sixth floor of the units of Residential Building #2 © "Architecturium"
Plan of the sixth floor of the units of Residential Building #2 © "Architecturium"