Published on Archi.ru (https://archi.ru)

20.05.2008

The house-arch

Julia Tarabarina
Studio:
Bavykin architects

There has been started construction of an office building on Mozhaiskoe highway by the project of Alexey Bavykin. The author says he has managed to add considerable changes on the last stage of the project and they made it possible to develop better the subject so important for the architect

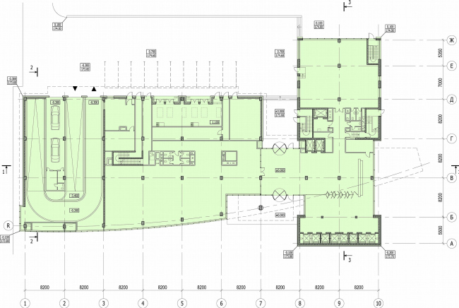
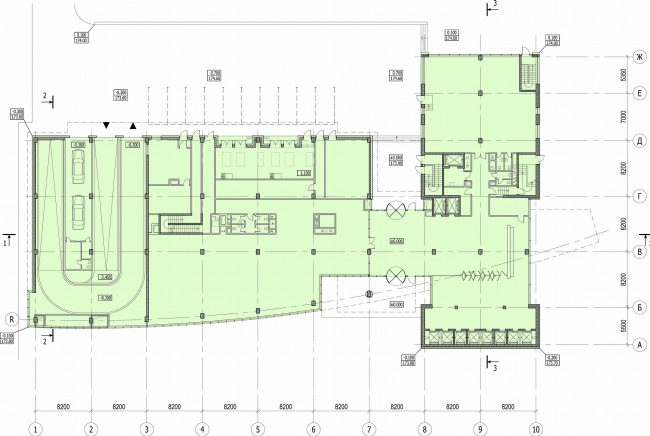
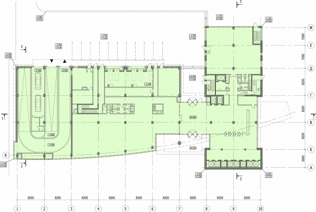
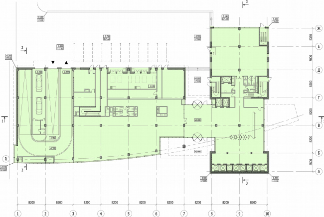
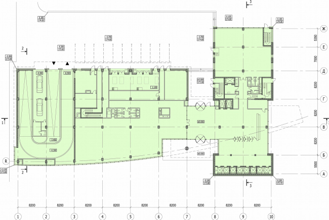
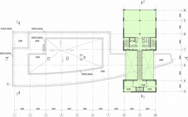
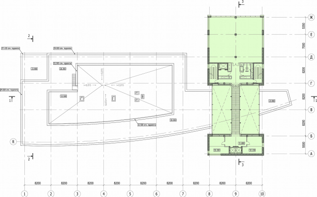
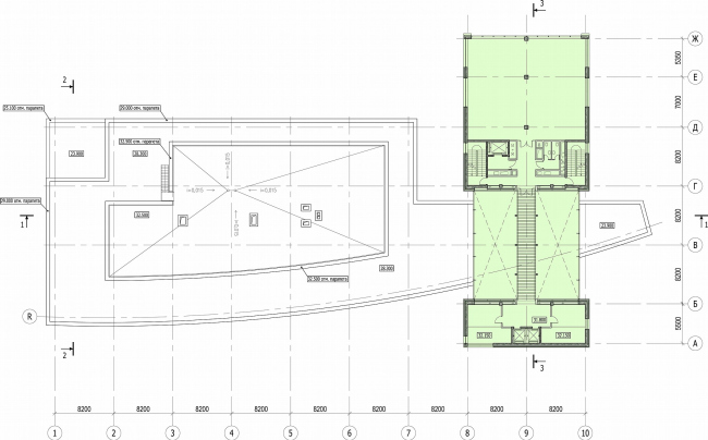
We have already spoken about the office building on Mozhaiskaya highway. It has a giant 11storey arch crossed by the “nose” of the glass volume that is piercing it. The line of the Kutuzovsky prospect, which is passing into Mozhaiskoe, curves a bit and turns to the left from the centre line – says Alexey Bavykin. Though his arch is not centrally, but to the right from the highway, it appears on the geometrical centerline of the Bove arch. Nearby there is a very stretched bearing-wall house, which has good location away from the frontage line of the highway. In front of the house there is a small garden and nothing hides the imagery “ray” between the two arches. The garden will be improved and will become a parterre of the Bavykin’s arch, at most opening perspective at the arch from the centre.

The arch by Bavykin can be seen as an inaccurate projection of the Bove’s arch in perspective, made by the large camera obscura. As if someone have shined a flashlight from the hotel “Ukraine” towards the Triumphal arch, and far behind it put a screen and there appeared a giant shadow of the arch – like in a shadow play it started it’s own life, became a three-span one. Moreover, Bavykin’s arch is not in the centre, but on the edge of the highway, and struggling with the modernist city it has lost a half. The arch resembles an ancient ruin and associates with a half-ruined bridge or an aqueduct – at the “Zolotoe Sechenie” [Golden ratio] the architect added to the project picture of the Roman bridge Emilia Lepida which is broken into two. But the main prototype is not an aqueduct but the arch, Bove’s arch that is in perspective, says Alexey Bavykin.

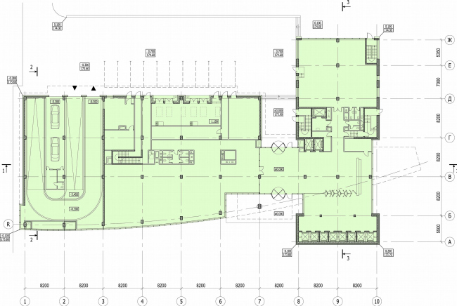
The changes done for the past half of the year made the project more valued and more specifically developed the idea. First, in the “broken” part there are no windows any more, before they were like quadras dropped out of the laying. The architect managed to gather lifts in that place and the rest services that do not need windows. Outside it looks like a cyclopean masonry have been repaired and the gapes have been filled. Alexey Bavykin has “restored” its ruin not built yet.

The other change – the glass modernist-volume has no columns of specific wooden order now, which Bavykin invented in 1994 for the gallery of a countryside villa and recently realized in Brusovsky pereulok. No rough supports – the architect separated ideas, left trees for Brusov, and pointed the main idea, the arch.

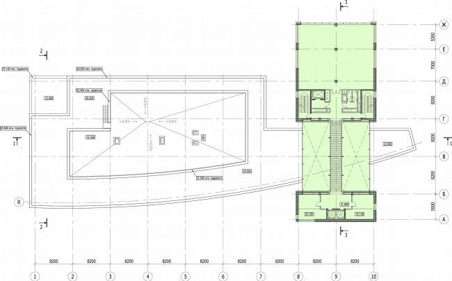
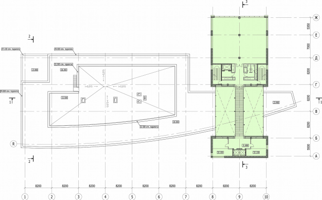
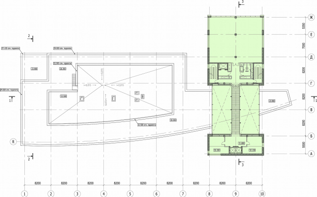
The third and most interesting is inside, the architect made an atrium in the upper part of the bay of the “whole” arch. It is well known an atrium is a delicate and favorite subject of our architects of model architecture. Since the end of 1980’s there are have been lots of them in Moscow. But this one is unique. An atrium is an inner yard covered with glass roof; Bavykin used such for a residential building in Brusov pereulok. And here there are no roofs and yards. The atrium is 3storey high and is under the concrete barrel arch. So the arch outside is not an illusion created on the facade, it is real, not a bluff. The arch is inside and probably will created a rare space like Roman thermae. Curve of the concrete arch, to the left and to the right – glass walls, in the middle there is a bridge from impost to impost.

Alexey Bavykin considers the arch on Mozhayskoe highway his program work. And this is interesting because nowadays our architects rarely call their works as program works. And this project is very important for Bavykin. This is the first of the constructions being built which so clearly shows one of the key ideas of this architect – as Alexey Bavykin says, combining culture one and culture two. The first is definitely modernism, the other is harder to define. It might be historism, but if look closely, not really so.

In 1984 Alexey Bavykin did an architectural object, very like a bronze sculpture, for the contest “stil 2001 goda” [style of 2001 year]. This sculpture is a model of glass building and in one of its corners there is “removed a pattern” of the skyscraper-column by Adolf Loos. Now it is well-known (see the article by Gregory Revzin) that this contest is a fundamental one for many architects of model architecture: Yury Avvakumov decided on avant-garde, Mikhail Filippov chose the classics, and Alexey Bavykin worked on putting together “pushing” and “reunion”. That time the young architects took very seriously the contest task, thought of the future and developed – for themselves – plans for the 21st century. Sooner or later, one way or another, they are being gradually realized.

Since than the column of Loos, and that bronze sculpture-model have become a symbol of the Bavykin’s studio, and must say, nowadays this studio has maybe the most meaningful and “speaking” logo in Moscow, it clearly and visibly shows what Alexey Bavykin calls his art program. Generally speaking this program has three parts: continue work on Russian avant-garde of the 30’s, combining “culture one and culture two”, focus on town-planning value of an object.

The three parts of Bavykin’s program are relative: on the verge of 20’s and 30’s of the 20th century when the first type of modernism – avant-garde, architecture of abstract forms – was about to give way to a new evocation of classical theme: art-deco, in different countries there appeared some significant works, which are right between the culture “one” and culture “two”. And the interaction of the two types-antogonists was not decorative, but structural. As if avant-gardists, having carefully refined the architectural from everything odd, and thought about the basics, about classical archetypes and started defining those archetypes.

But those were mostly classicist avant-gardists and probably they were concerned about their own canonical training, it appeared not outside, but somehow “within” their projects and buildings. The two remarkable architects of that brief type – Adolf Loos, Austria, and in our country – Ilya Golosov – the favorite authors of Alexey Bavykin. These experiences on development of classical forms within modernist did not last long, they exist on the turning point and they are promptly get swept by the main stream of art-deco. Seems that Alexey Bavykin tries to “pull out” that swift-passing tendency and let it grow, and does it without any irony, but absolutely seriously, and though postmodernist roots of the idea are obvious, this is not pure postmodernism. This is a mark renaissance, renaissance of what did not grow on the verge between avant-garde and the new wave of classical forms.

The main peculiarity of the tendency is that classic forms are being thought over as grand. So they pass from décor to a volume. The idea of Loos to create a sakyscraper in the shape of a column and the idea of Golosov to turn the corner rotunda of a house into a huge column are relative in this regard. The enlargement of small elements to a house size finds closest connection in the “speaking” architecture of avant-garde: houses-stars, houses-tractors and the rest constructions based on an image of enlarged symbols and machines. Alexey Bavykin, by the way, also has the restaurant in the form of a frying pan.

In other words, when architects of avant-garde with their academic training thought of brining together their searches of pure shapes, instead a house-tank, they tried a house-column. Watching that, Alexey Bavykin in his turn, thought – this might be a fundamental way out, favor for antagonism. He already has the two houses-columns, inspired by Loos (“stil 2001 goda”) and by Golosov (the building in the 3d Avtozavodsky proezd, where golosov’s corner cylinder has cannelures, it has it’s “column nature”). And his has a house-arch.

Thus, the house-arch is the second major Alexey Bavykin’s try to present in his architecture conflict life of modernism and reconsidered classic archetypes. There is an arch instead of a column – this is the second, the next step on developing the idea. To be fair must say that like Loos and Golosov reconsidered the idea of a column, the architects of neoclassic of 1910’s appealed to the idea of a triumphal arch. For European architects it was fundamental because not only Roman and other imperators made constructions for their military triumph, but in architecture they were used as sanctuary for Christian churches. Arch is not less an archetype than column. Here, “in struggle with modernism”, it lost its half, decoration, the shapes became more neat, but the idea remained. It has even grown and will be most remarkable on Mozhaika

None
None
None
None
None
None
None
None
None
None
None
None
None
None
None
None
None
None
None
None
None
None