Published on Archi.ru (https://archi.ru)

26.02.2015

Grown from the Context


Studio:
Evgeniy Gerasimov & partners

The building at 5 Pobedy Street revises the ideas of Stalin architecture of this area in a better material quality. The architects did not neglect the deeper roots, though, either.

The building at 5, Pobedy Street. "Eugene Gerasimov and Partners", 2014. Photo courtesy of LEGENDA Intelligent Development
The building at 5, Pobedy Street. "Eugene Gerasimov and Partners", 2014. Photo courtesy of LEGENDA Intelligent Development


We already wrote about the project of a house at Pobedy 5, not far away from the Moskovsky Avenue and the Strugatsky Square, in the area where the Stalin houses alternate with the Brezhnev "slabs" and the post-soviet/post-modernist buildings. Eugene Gerasimov Bureau has been able to inscribe into this multicolored, but still rather comfortable from the town-planning standpoint, context a new premium-class residential house composing its facade of three themes: northern modernism/neoclassic at the bottom, Stalin-era style in the middle, and the top floors hinting, though tentatively, at the glass and long columns of the nineties. It looks as though the house springs up from the ground "chronologically": one could think of it as a piece of some Saint Petersburg classic, several times overbuilt during the XX century. The developer of the project is LEGENDA Intelligent Development.

The construction is now complete, the building was put into operation in December; on the 17th of February; a guided press tour of the house was conducted. The architect Eugene Gerasimov and the C.E.O of LEGENDA Intelligent Development Vasily Selivanov showed the new house to the industry media reporters, letting them appreciate live and first-hand the textured materiality of the new building.

The travertine columns of the squatting Dorian order before the entrance, with their real, broad, arc-shaped flutes, almost like the ones in Italy's Paestum. The rugged rock-face basement tier, according to all the rules of superposition, lightened upwards. The inevitable lion faces at the keystones as one's gaze goes up, the facades sporting quadrifoil flowers that remind us about another work by this bureau - the building in the Kovensky Alley (this has inserts in the shape of fleure de lys). The same, only more polished travertine in the hall, wood, ornament, a Latin inscription in bronze letters on the floor, and a grand antique chandelier. The Stalin architecture even used cheaper materials. This is what art-deco of Saint Petersburg would have looked like had it not been for the revolution (or should we say now coup d'état?) of 1917 - the building looks as if it were catching up on two qualities at once: that of classicism plastique and the natural stone material. 

View of the basement floor from the Pobedy Street. The building at 5, Pobedy Street. "Eugene Gerasimov and Partners"
View of the basement floor from the Pobedy Street. The building at 5, Pobedy Street. "Eugene Gerasimov and Partners"


The building at 5, Pobedy Street. "Eugene Gerasimov and Partners", 2014. Photo courtesy of LEGENDA Intelligent Development
The building at 5, Pobedy Street. "Eugene Gerasimov and Partners", 2014. Photo courtesy of LEGENDA Intelligent Development


The building at 5, Pobedy Street. "Eugene Gerasimov and Partners", 2014. Photo courtesy of LEGENDA Intelligent Development
The building at 5, Pobedy Street. "Eugene Gerasimov and Partners", 2014. Photo courtesy of LEGENDA Intelligent Development


Multiapartment building at 5, Pobedy Street. "Eugene Gerasimov and Partners"
Multiapartment building at 5, Pobedy Street. "Eugene Gerasimov and Partners"


The building at 5, Pobedy Street. "Eugene Gerasimov and Partners", 2014. Photo courtesy of LEGENDA Intelligent Development
The building at 5, Pobedy Street. "Eugene Gerasimov and Partners", 2014. Photo courtesy of LEGENDA Intelligent Development


Still, though, it absorbed a lot from its surroundings: one only has to take a walk along the neighboring Moscow Avenue in order to see a similar superposition of rock-face structures that the architects of the 1930's borrowed from Michelozzo, and the relief inserts that look like the pinnacles above the cornices. This building can be quite possibly understood through its Stalin-architecture surroundings and then it turns out that the tall, three-story high top draughts echo the array of the imposing-looking columns of the House of Soviets built by the architect Noah Trotsky at the Moscow Square. This is something that the architects have been doing for more than three hundred years: founding their leads and starting points in the surrounding buildings, recreating the more recognizable elements and thus inscribing their creation into the array of its neighbors. This new house embodies the ideas of the Stalin architecture of the Moscow district in a new and up-to-date quality, honing and polishing them but at the same time staying true to its roots. This is also what the authors of the building were sharing about during the guided tour. 
***

Back in the 1930's, it was planned that the Moscow district would be raised to the status of the new, "soviet", center of the city - the authors explained to the participants of the tour - but the experiment was left unfinished, even not all of the streets got names of their own. Meanwhile, this quiet district that follows, in its own unique way, the principles of "new urbanism" has now become one of the most attractive ones thanks to its good residential stock, highly developed social and transport infrastructure and comparative proximity to the city's historical center - which became the reason for the appearance of a premium-class house here. 

Vasily Selivanov shared that the history of the house began back in 2011 when the company bought Plot #5, one of the last free ones on the red lines of the front part of the Moskovsky district; shortly, Eugene Gerasimov bureau started the design work. "Of course, we had a basic understanding that the house was to be generally designed in the neoclassic style - the so-called "Stalin Empire". From the very start, Eugene Gerasimov and we agreed that this must be honest, high-quality and "well-bred" architecture. And our house is the rare exception when the building exactly answers the original idea and the first sketches" - Selivanov stressed. 

The customer's demands matched the architect's vision. "It so happened that we somehow both saw this house in our mind's eye - Eugene Gerasimov says - It was obvious for us that the Moskovsky District that many people associate by default with the Stalin architecture is one of the best places for revising its style. The challenge, and, on the other hand, the creative task was the fact that we were supposed to build a thirteen-story Stalin house". 

The building at 5, Pobedy Street. "Eugene Gerasimov and Partners", 2014. Photo courtesy of LEGENDA Intelligent Development
The building at 5, Pobedy Street. "Eugene Gerasimov and Partners", 2014. Photo courtesy of LEGENDA Intelligent Development


The building at 5, Pobedy Street. "Eugene Gerasimov and Partners", 2014. Photo courtesy of LEGENDA Intelligent Development
The building at 5, Pobedy Street. "Eugene Gerasimov and Partners", 2014. Photo courtesy of LEGENDA Intelligent Development


For Eugene Gerasimov, this was his first experience of working with Legenda Development but it is not the first time that he does a project in a historical style. "Based on the "order" system, the traditional architecture, as opposed to its modernist counterpart, makes up a large part of our creative activity. To me as the leader of the company and to the architects that work with me, it is exciting to do the research in both directions: in the field of the modern form-making and in the field of revising our historical legacy" - the architect explains. 

When he was speaking about the peculiarities of the house, Vasily Selivanov mentioned the planning and designing freedom necessary for the elite housing segment achieved by the absence of bearing walls inside the apartments: all the weight is supported by the reinforcement plates. But then again, the "apartment geography" allows for escaping the necessity of re-planning - the project provides for as many as 16 different types and subtypes of planning solutions. 

The authors of the house were particularly attentive to detail, both inside and outside. According to Vasily Selivanov, the chandelier of the entrance hall is a "true part of history" - it was recovered from the building of that had been taken down to make room for the construction of the second stage of the Mariinsky Theater. At that time, the architects worked with the sketches of the interiors of the house, and, especially for this chandelier, they designed a double-height entrance lobby. 

When he was speaking about the results of the two-year work, Eugene Gerasimov paid special attention to their commitment to excellence. We do say that architecture can be different but commitment to excellence is something that we all today are in desperate need of, while the questions of style can be considered secondary. Anything has a right to be there as long as we, while working with any style, are committed to excellence. Here you can feel it first-hand: here is the reception desk, here are the mail boxes, here are the doors, here is the chandelier, here are the pieces of stained glass done by the graduates of the Academy of Arts, here is a sculpture by a graduate of Vlad Manachinsky Academy. And these things are not imitation by any means: they are the real wood, stone, and brass. Look at the zoccolo that was first made on a machine and then finished by hand - each of the stones is unique". 

The building at 5, Pobedy Street. "Eugene Gerasimov and Partners", 2014. Photo courtesy of LEGENDA Intelligent Development
The building at 5, Pobedy Street. "Eugene Gerasimov and Partners", 2014. Photo courtesy of LEGENDA Intelligent Development


Even the name of the house fits in with its overall "high-profile" style. The developers deliberately opted out of coming up with an extra name for this particular project, as is the custom at today's real estate market. "The address that is already there, speaks for itself; just the address - 5, Pobedy Street - is enough; everything is determined by it. There are THE addresses in this city, and we hope that this one will also become an address with a capital "A"" - Selivanov says. "The house at the Pobedy ("Victory") street in its antique transcription, the heraldic of the Ancient Rome, and the synthesis of arts that we see here - the color, the sculptures, even the fonts of the letters - everything falls into place here" - adds Eugene Gerasimov. 
The building at 5, Pobedy Street. "Eugene Gerasimov and Partners", 2014. Photo courtesy of LEGENDA Intelligent Development
The building at 5, Pobedy Street. "Eugene Gerasimov and Partners", 2014. Photo courtesy of LEGENDA Intelligent Development
Lobby with the reception desk. The building at 5, Pobedy Street. "Eugene Gerasimov and Partners"
Lobby with the reception desk. The building at 5, Pobedy Street. "Eugene Gerasimov and Partners"
Sketch of the entrance lobby. The building at 5, Pobedy Street. "Eugene Gerasimov and Partners"
Sketch of the entrance lobby. The building at 5, Pobedy Street. "Eugene Gerasimov and Partners"
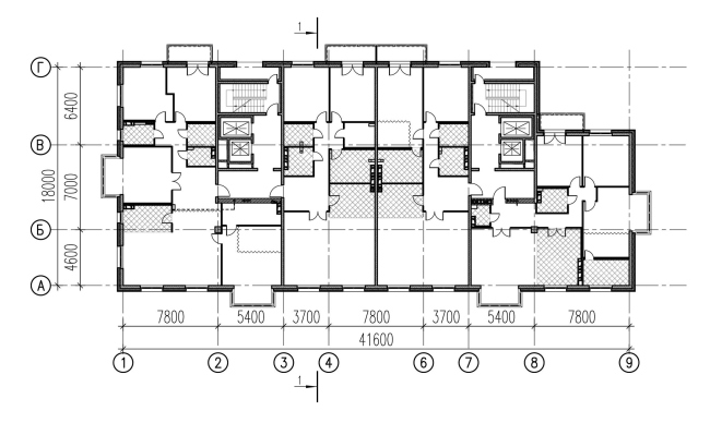
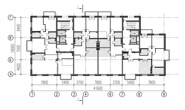
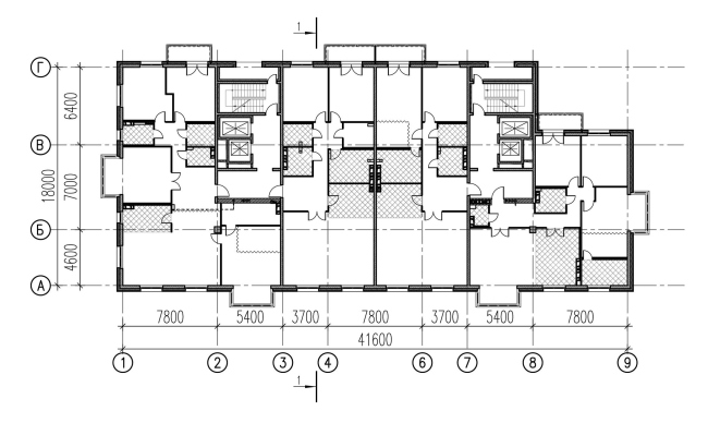
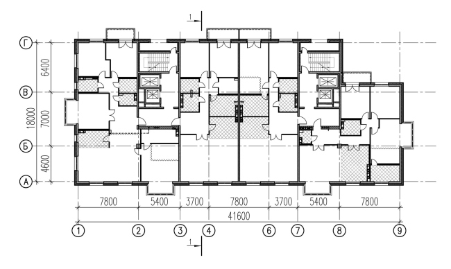
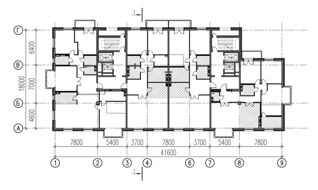
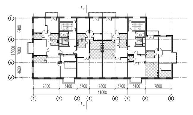
Plan of the typical floor. The building at 5, Pobedy Street. "Eugene Gerasimov and Partners"
Plan of the typical floor. The building at 5, Pobedy Street. "Eugene Gerasimov and Partners"
The building at 5, Pobedy Street. "Eugene Gerasimov and Partners", 2014. Photo courtesy of LEGENDA Intelligent Development
The building at 5, Pobedy Street. "Eugene Gerasimov and Partners", 2014. Photo courtesy of LEGENDA Intelligent Development
The building at 5, Pobedy Street. "Eugene Gerasimov and Partners", 2014. Photo courtesy of LEGENDA Intelligent Development
The building at 5, Pobedy Street. "Eugene Gerasimov and Partners", 2014. Photo courtesy of LEGENDA Intelligent Development
The building at 5, Pobedy Street. "Eugene Gerasimov and Partners", 2014. Photo courtesy of LEGENDA Intelligent Development
The building at 5, Pobedy Street. "Eugene Gerasimov and Partners", 2014. Photo courtesy of LEGENDA Intelligent Development
The building at 5, Pobedy Street. "Eugene Gerasimov and Partners", 2014. Photo courtesy of LEGENDA Intelligent Development
The building at 5, Pobedy Street. "Eugene Gerasimov and Partners", 2014. Photo courtesy of LEGENDA Intelligent Development