|
A new experiment in the field of panel construction: master plan and architecture by the recognized architects plus facades developed by the young contest-winners.
| Project of a multi-apartment residential complex at the Medikov Avenue, Saint Petersburg © SPEECH + "Eugene Gerasimov and Partners" |
 |
In Saint Petersburg's "Petrograd Side", the construction of "Europe-City" is in progress - a new panel multi-apartment business class residential complex from "Eugene Gerasimov and Partners", 'nps tchoban voss', and SPEECH. It consists of seven multi-section nine-story buildings lined up along the "red line" of the street, and ten fourteen-story towers, arranged in two five-building rows in the yard. And it is "panel" that is the key word here - because the houses that are being built in the place of the former "Electric" Plant in the triangle between the Lopukhinsky Garden, the verdure of the sport complex "Zenith" and the Botanical Garden are nothing other than a vivid example of modern industrial construction. Vivid - but not typical, at least for Russia.
| Project of a multi-apartment residential complex at the Medikov Avenue, Saint Petersburg © SPEECH + "Eugene Gerasimov and Partners" |
 |
The architects based themselves on Series 137 of Saint Petersburg's "Block", whose nomenclature was widened with regard to the specifications of this particular project. The foundation is monolith, with the panel bearing structures resting upon it. As for the facades, they will be executed according to the hybrid technology that combines a panel and a hang-on structure coated with a few kinds of ceramic tiles: glazed, opaque, and natural coatless. As a result, when viewed from the outside, nothing reminds you of the typical "panel" houses. For each of the buildings, the architects developed an original facade pattern, although this variety is gracefully set off - all the variations fall in with a single proportion grid.
| Project of a multi-apartment residential complex at the Medikov Avenue, Saint Petersburg © SPEECH + "Eugene Gerasimov and Partners" |
 |
Dressing the houses in varying ceramic facades, the authors were able not only to hide away the panel joints but also to achieve the effect as if it was not a string of multi-panel slabs that is stretched along the avenue but several different buildings looking something like tenement houses, only lined up under the single image of the cornice. What they ultimately got was a Saint Petersburg quarter in a new style - one will have a great time passing by going down the street, and it will be quite easy to find one's way around: "Y'know, I've already passed the blue building, and now I am walking past the white one with bright yellow inserts!" As for the "slashed" at a 45° angle building at the crossing of the Medikov and Pavlova Streets, this building, although out of tradition, opens up, at the entrance over the Bolshaya Nevka river, a fine view of the complex from the Kantemirovsky bridge.
| Project of a multi-apartment residential complex at the Medikov Avenue, Saint Petersburg © SPEECH + "Eugene Gerasimov and Partners" . Photo provided by LSR Group |
 |
| Project of a multi-apartment residential complex at the Medikov Avenue, Saint Petersburg © SPEECH + "Eugene Gerasimov and Partners" . Photo provided by LSR Group |
 |
We should mention at this point that the project has changed significantly since 2007 when it was first announced by its authors: back then, the land plot was divided into several rigorous square blocks. Today, the facades of the houses built along the plot's red-line perimeter, are recognizable; they develop the principles that we are already familiar with from the works by both Sergey Tchoban and Eugene Gerasimov: first of all, the ostentatious variety of the facades of each section (in fact, each entrance door) is visibly reminiscent of "Micro-City "In the Forest", whose first stage was completed early this fall. In this case, though, the bright sunshine of the Moscow area town is a bit softened by the Saint Petersburg environment: here it is more about texture than color, and the geometry is more predictable; according to the apt saying of the authors, "rustication, pulls, cornices, and bas-reliefs" - motifs that are quite classical - make these houses more in the vein of Saint Petersburg, classical by nature. Eugene Grrasimov's portfolio also includes a project that fits this comparison - a proposal that he developed over a year ago for "Tsarev Sahd" ("Tsar's Garden - translator's note), a premium-class residential complex right across from Moscow's Kremlin - but then again, just as "Micro-city" is brighter, Eugene Gerasimov's "Tsarev Sahd" is more classical and allusion-evoking. On the facades of "Europe-City", we get the sum total, the result of the development of the plastic lexicon and the approach stated by both of the architects some five-seven years ago.
| Project of a multi-apartment residential complex at the Medikov Avenue, Saint Petersburg © SPEECH + "Eugene Gerasimov and Partners" . |
 |
| Project of a multi-apartment residential complex at the Medikov Avenue, Saint Petersburg © SPEECH + "Eugene Gerasimov and Partners" . |
 |
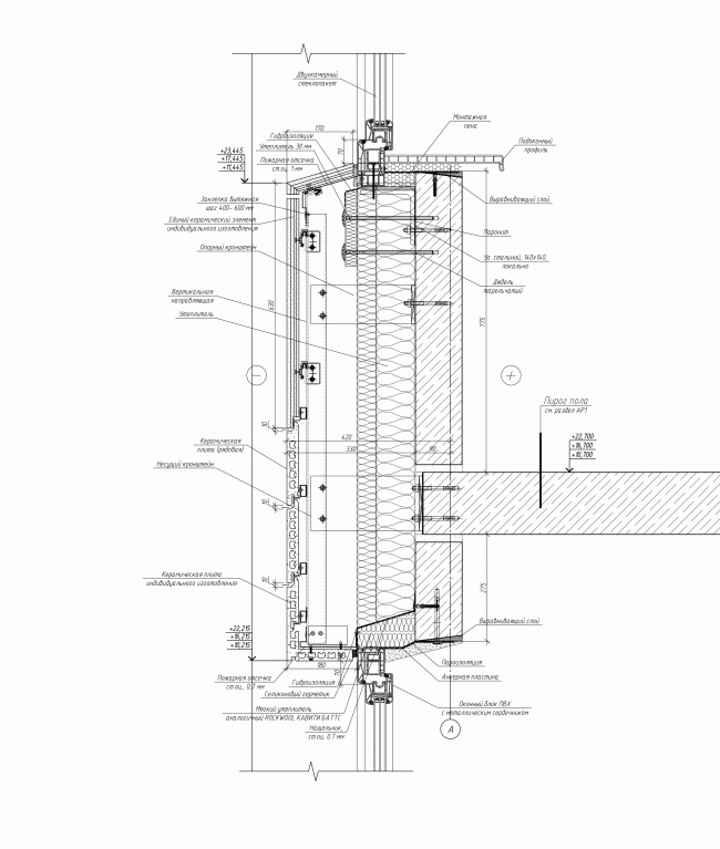
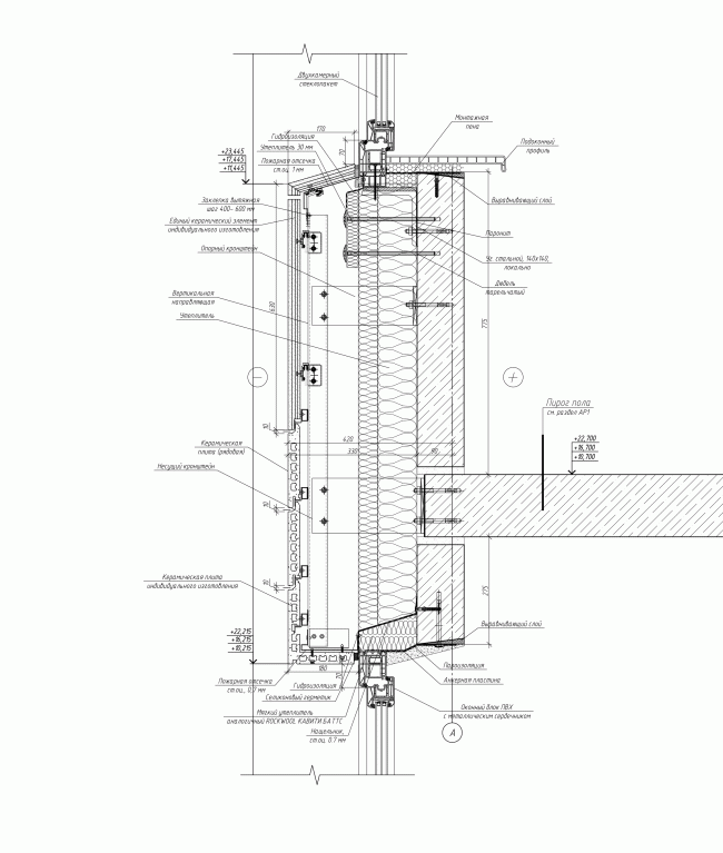
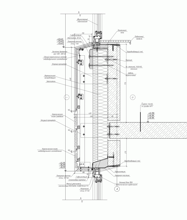
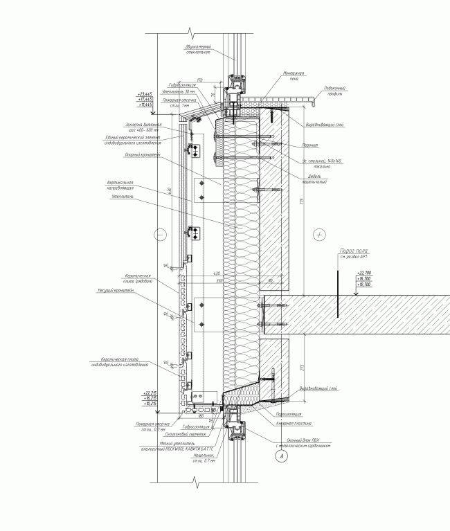
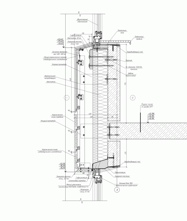
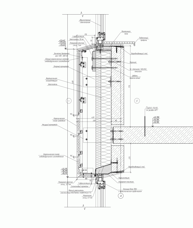
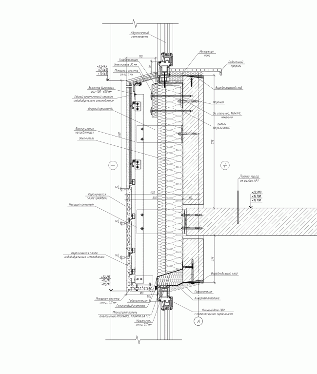
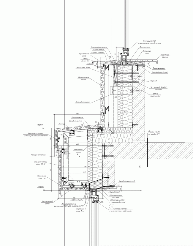
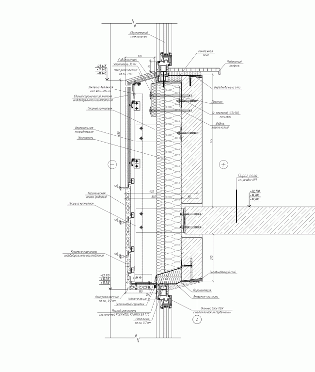
| Hang-on facade fastening unit. Project of a multi-apartment residential complex at the Medikov Avenue, Saint Petersburg © SPEECH + "Eugene Gerasimov and Partners" . |
 |
| Hang-on facade fastening unit. Project of a multi-apartment residential complex at the Medikov Avenue, Saint Petersburg © SPEECH + "Eugene Gerasimov and Partners" . |
 |
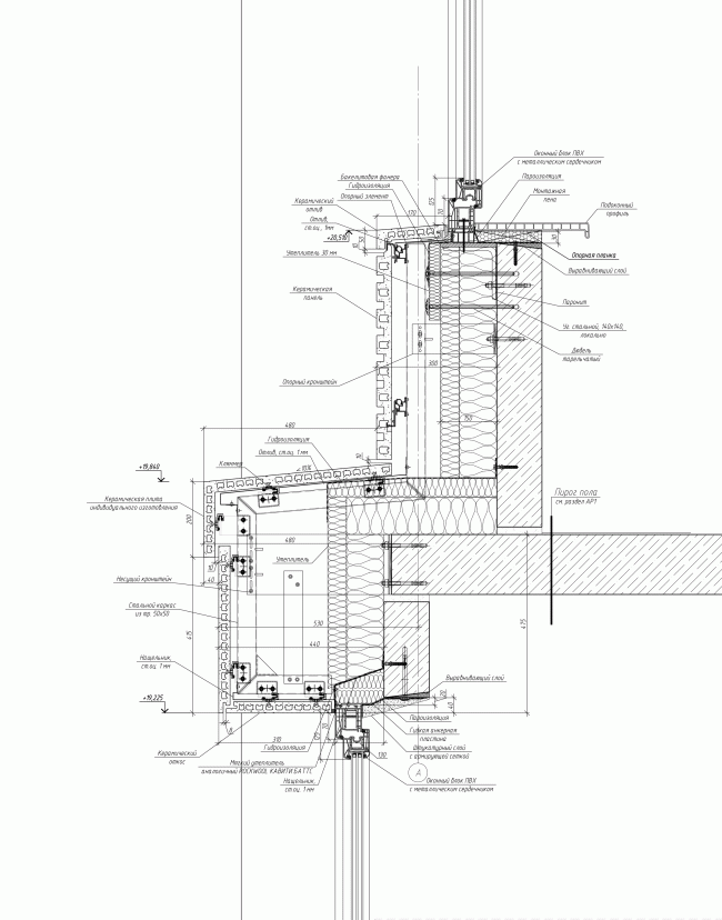
| Plan fragment. Hang-on facade fastening unit on the corner of the building. Project of a multi-apartment residential complex at the Medikov Avenue, Saint Petersburg © SPEECH + "Eugene Gerasimov and Partners" . |
 |
Besides the new approach to the use of panel technologies and harmonious variety of the facades, "Europe-City" has yet another interesting detail about it. Behind the front of the line-up of the seven "slab" nine-story buildings, designed by the recognized architects Eugene Gerasimov and Sergey Tchoban, the yard has in it ten fourteen-story "dot" towers with five different facades, the conceptual solution of which was developed back in 2010 via a contest of young architects organized on the initiative of the authors of the project. The contest was supported by the customer of the project - LSR Group - as well as by the committee for urban planning and architecture of Saint Petersburg, and Saint Petersburg architects union.
The creative competition was designed for the Russian professionals under thirty-five years of age, the designing period being from October 14 to November 10 2010 - the contestants were to come up with the project of the facade, as well as show what a separate building, as well as a group of ten buildings, would look like. Having considered the projects submitted, the judging panel selected one absolute winner and four more prize winners, between whom the two hundred thousand rubles of the prize fund were divided. Meanwhile, the main prize for the laureates was their inclusion in the team of the project and the actual implementation of their design proposals and concepts into the further construction work. The five prize-winning projects were refined by the young designers to the status of working drawings and distributed among the ten towers: each project will be doubled. Presently, in the implementation of the residential complex "Europe-City" five towers in the yard are leading: their facades have already been coated and one can see how exactly the young designers' projects have been implemented.
| Building plan of the complex. Project of a multi-apartment residential complex at the Medikov Avenue, Saint Petersburg © SPEECH + "Eugene Gerasimov and Partners" . |
 |
Back in 2010, the winner of the young architects contest was Roman Pak with a project in which the facades were turned into an equilateral grid of wide inter-window and inter-wall spaces. Here and there, the white grid is interrupted by colored dents - as if behind the white "skin" there were hidden some sort of more intriguing matter. This effect was achieved by using colored ceramic tiles: the ultimate color came out more reserved, and, at the same time, reminiscent of maiolica of the early XX century.
| Tower of the multiapartment residential complex on the Medikov Avenue upon the project by Roman Pak. Photo provided by SPEECH. |
 |
| Contest project of the facades of the towers of the residential complex on the Medikov © Roman Pak. Image provided by SPEECH |
 |
In his project entitled "Celling", Eugene Kitselev proposed a solution a little bit more brutal but still bearing a distant resemblance to the shapes so much loved by SPEECH: the buildings are covered with large-cell network where the enlarged horizontal openings that unite two windows each, are placed in accordance with strict diagonal logic forming on the facades the verticals of a barbaric meander pattern.
| The tower of the multi-apartment residential complex on the Medikov Avenue upon the project of Eugene Kitselev. Image provided by SPEECH |
 |
| Contest project of the facades of the towers on the Medikov Avenue upon the project of Eugene Kitselev. Image provided by SPEECH |
 |
The abstract and beautiful concept proposed by Yana Tsebruk and Oleg Tkachuk: dividing the buildings vertically into the dark and light halves yielded towers of a very simple kind (the glass vertical was the indispensable element in every project but in this particular case the authors augmented it with an orange niche below, softening the excessive laconism of their solution to a certain extent). But then again, the authors of this idea had in nine out of ten of their buildings the upper half painted black, and the project was called "playing weightlessness", so the light was supposed to support the dark; in the tower that has already built, it is the other way around - meaning, the bottom is black.
| Contest project of the facades of the towers in the residential complex at the Medikov Avenue © Yana Tsebruk and Oleg Tkachuk. Image provided by SPEECH |
 |
| Tower of the multi-apartment residential complex at the Medikov Avenue. Authors of the project: Yana Tsebruk and Oleg Tkachuk. Image provided by SPEECH |
 |
Ilia and Irene Filimonovs, on the other hand, made their facades particularly mottled, placing before the windows grilles of a moderately lilac hue - looking like an attempt at imitating lamellae moving parallel to the surface of the facade along the guiding rails. Was this solution an imitation or not, in reality it became a string of decorative terra-cotta inserts and black horizontal stripes - but still subjected to a single rhythm set by the authors.
| Tower of the multi-apartment residential complex at the Medikov Avenue. Authors of the project: Ilia Filimonov and Irene Filimonova. Image provided by SPEECH |
 |
| Contest project of the facades residential complex at the Medikov Avenue. Authors of the project: Ilia Filimonov and Irene Filimonova. Image provided by SPEECH |
 |
Vladimir Peshkov and Konstantin Podvyazkin proposed to make about a third of the tower light-colored, and the rest - terra-cotta.
| Contest project of the facades residential complex at the Medikov Avenue. © Authors of the project: Vladimir Peshkov and Konstantin Podvyazkin. Image provided by SPEECH |
 |
The winner of the contest got 100 000 rubles, and the other three prize-winners - 30 000 each, after which the towers got "mixed" which resulted (just as outside) in different facades, only designed by the young architects.
| Project of a multi-apartment residential complex at the Medikov Avenue, Saint Petersburg © SPEECH + "Eugene Gerasimov and Partners" . |
 |
| Project of a multi-apartment residential complex at the Medikov Avenue, Saint Petersburg © SPEECH + "Eugene Gerasimov and Partners" . Photo by Yuri Slavtsov and LSR Group |
 |
| Project of a multi-apartment residential complex at the Medikov Avenue, Saint Petersburg © SPEECH + "Eugene Gerasimov and Partners" . Photo by Yuri Slavtsov and LSR Group |
 |
***
We asked the leaders of the two large architectural companies engaged in this project, Eugene Gerasimov and Sergey Tchoban, about what is important to them about this project.

Eugene Gerasimov
"To me, the most interesting thing about this project is, of course, the contest itself. It was organized with the support of the customer ("Vozrozhdenie Saint Petersburg"), Committee on State Control Use and Protection of Historical and Cultural Landmarks, the city's then- main architect Yuri Miturev, Union of Architects, presided by Vladimir Popov, as well as with the participation of me and Sergey Tchoban as the main designers of the whole complex. Our goal was to select five best project by young architects, for the inside "dots". Around thirty projects were submitted for the contest, the judging panel chose the five winners, and I think that these five winners did a great job. The five young architects got the opportunity to implement their projects big time for the first time in their lives. We will be sure to implement this into practice in our further work".

Sergey Tchoban
"The town-planning concept was developed in cooperation with Eugene Gerasimov. As is often the case with us, one building was designed by Eugene's bureau, and another by our company so ultimately we came up with a parceled structure of the elongated buildings that form the outside facade, behind which there are ten more separately-standing towers. By using such combination, we were able to increase the number of floors inside the complex, as well as achieved more variety in the planning of the apartments.
The main reason of organizing this contest and involving its winners in the work of this project was mine and Eugene Gerasimov's urge to give the young architects a chance to make a statement and distinguish themselves. To me, Saint Petersburg suffers from a gap between the generation of recognized practicing architects and the young architects. This is one of the differences of Saint Petersburg architectural environment from the situation in Moscow where over the last years significant changes took place and an effective professional "lift" was created that brought recognition to many young companies and startups. In Saint Petersburg, however, this process is not as active, that's why we have a desire to give a helping hand to our young architects".Multiapartment residential complex "Europe City" at the Medikov Avenue. Project, 2015 © Evgeny Gerasimov and Partners, SPEECH, nps tchoban voss
None
Multiapartment residential complex "Europe City" at the Medikov Avenue. Project, 2015 © Evgeny Gerasimov and Partners, SPEECH, nps tchoban voss
None
None
None
None
None
None
None
None
None
None
None
None
None
None
None
None
None
None
None
None
None
None
|