|
A churinga-belt along the outside line of the quarter, a hidden garden and a hotel inside the wonderland of the courtyard: Ò+Ò architects won the contest for the renovation of the complex of the Ural Instrument-making Plant in the city of Ekaterinburg.
The results of the contest for the best architectural proposal for the industrial site of the Ural Instrument-making Plant were announced in the late December. The contest was one by T+T Architects that got the upper hand over nine other contestants, whose list included, in particular, Valode and Pistre, Twelve architects, and Aleksey Vorontsov Bureau. The developer company "Pred Group" that carried out this contest together with the municipal administration promises to sign a contract with the winner for further elaboration of the project chosen for the tact of the construction proposed: what the developers - and the president of the company was also the head of the judging panel - especially liked about the project proposed by T+T Architects was the fact that it was "as less intrusive as possible of the already existing city environment", and carefully preserved its advantages; among the projects submitted by other contestants were versions that implied a lot more radical reconstruction work. The architects preserved the original traditional facades, embellishing them with "the real Ural" ornament, and carefully separated the flows - one the one side, making the area more transparent and more accessible to people, and, on the other side, making, within the framework of a residential house, a private courtyard, designing it, by contrast, in a most up-to-date fashion.
| Perspective view from Maxim Gorky Street. Renovation of the Instrument-making plant in Ekaterinburg © Ò+Ò Architects |
|
| Perspective view from the courtyard. Renovation of the Instrument-making plant in Ekaterinburg © Ò+Ò Architects |
|
"In our work, we based ourselves on these three fundamentals: proportion, openness, and moving in step with the times - shares the leader of the bureau Sergey Trukhanov - considering the fact that the whole complex is located in the very heart of the city, in the environment created by the already existing structures, our buildings were to stick as much as possible to these preset proportions, even if at the cost of sacrificing their commercial effectiveness.
The building on the embankment continues the existing line of the facades; we renovated the facades, added some neat plastic ideas, traditional Ural ornaments, but as for the rhythm of the windows and the structure of the facades, we left them fully intact - the building will still be "human-proportionate", and there will be a feeling that you can go ahead and touch everything here. Yet another starting point of our project is the fact that we opened this quarter to the city. Between the buildings, we made an opening - very delicate and very neat - that links the embankment and the pedestrian street that runs parallel to it".
***
Today it is already impossible to tell who and for what purpose once decided to place in the center of the city, closed from everybody and turned inwards inside itself, a complex of semi-industrial and semi-scientific buildings that can only be by a wide stretch of imagination identified as an architectural ensemble: if only by the total falling out of proportion to Catherine the Great's parcelling of the old part of the city named in her honor, and by the complete mismatch with the surrounding houses. "The earth shall rise on new foundations..." New foundations indeed. And the giant heavyweight "trunk" resting upon the inevitable red two-story pediment for decades not only dominated but simply crushed the surrounding wooden houses scattered around the block - the houses of the late 19th century, the times of Bazhov and Mamin-Sibiryak - the mixture of naive provincial classicism and the decorative "a la Russ" adornment.
| Top view of the complex. Renovation of the Instrument-making plant in Ekaterinburg © Ò+Ò Architects |
|
| Master plan. Renovation of the Instrument-making plant in Ekaterinburg © Ò+Ò Architects |
|
| Location plan and the surroundings. Renovation of the Instrument-making plant in Ekaterinburg © Ò+Ò Architects |
|
The authors of the winning project, however, came up with a few ingenious solutions, and the monster that was destroying both the integrity of the embankment and the integrity of the city matter on the whole, took a deep breath and came alive to take on a human touch and become an integral part of the city.
The main question of the project that needed to be answered at the very start was not so much about the WHAT - because there is nothing new about the tripartite union of bank-apartments-hotel, this being the "gentleman's set" of reconstruction of virtually any industrial property - as about just HOW to go about it. The architects were to try and find a use for what had already been built without violating the rhythm of life of this part of the city: not to overload it in the daytime and keep it from dying out at night. And thus, the standard entity "hotel - bank (with its facade on the street) - apartment hotel (overlooking the cozy courtyard) - got turned inside out. The embankment is overlooked by the revamped late-Stalin-empire-style facades of the bank and the apartment hotel, while behind them, in the quiet of the courtyard with a hidden garden (that is nevertheless open to the city), the hotel is found.
| Perspective view from the embankment and the Pochtovy Alley. Renovation of the Instrument-making plant in Ekaterinburg © Ò+Ò Architects |
|
| Perspective view from Maxim Gorky Street. Renovation of the Instrument-making plant in Ekaterinburg © Ò+Ò Architects |
|
| Perspective view from Maxim Gorky Street. Renovation of the Instrument-making plant in Ekaterinburg © Ò+Ò Architects |
|
| Perspective view from Maxim Gorky Street. Renovation of the Instrument-making plant in Ekaterinburg © Ò+Ò Architects |
|
| Perspective view from Maxim Gorky Street. Renovation of the Instrument-making plant in Ekaterinburg © Ò+Ò Architects |
|
| Perspective view from Maxim Gorky Street. Renovation of the Instrument-making plant in Ekaterinburg © Ò+Ò Architects |
|
Some redundant structures got taken down, some - tactfully overbuilt, some got opened to and some got closed from the people's eyes - and the architects got an ensemble involved in the pedestrian system of the city center with its "literature quarter", the inevitable stores and the city people love for long walks around the city pond. For example, dismantling part of the building on the Gorky Street, the architects cleared the passage from the embankment. The resulting "clearing", opening up the "backstage" of the inside part of the quarter, became a magnet, an inevitable gravity point for the people.
Finding oneself in the yard, one can get a closer look of the "theatrical effects" of the modern architecture: the already-mentioned "hidden garden" us in fact a "surrealist literature amusement ride". All the images harmoniously coexist in the confined space and find their material embodiment in the composition of the facades. The centerpiece of this inward-oriented (in accordance with the tradition of the place) composition is the hotel that multiplies itself in the reflections on the courtyard facades of the bank and the apartment hotel. A beautiful crystal hidden in the carved little trunk - Bazhov's "Ural Tales" from Ò+Ò Architects. This is what is there on the inside, however. As far as the outside is concerned, everything - again, in full accordance with Bazhov's scenario - is quite traditional: the horizontal fracturing if the facades by the cornices that support the line of the old houses, and the vertical division into three parts. The two lower ones already exist and the top one can be built up. The four lower floors are the the reminiscent of the classicism tradition: the false columns, decorative carved stone inserts and terra cotta tiles on the third and fourth floors. The carving patterns - the traditional Ural ornaments that are believed to protect people from the evil spirits - gave the complex the desired regional identity, and the facade got a churinga belt for the whole outside line of the quarter.
| Perspective view from the courtyard. Renovation of the Instrument-making plant in Ekaterinburg © Ò+Ò Architects |
|
| Perspective view from the courtyard. Renovation of the Instrument-making plant in Ekaterinburg © Ò+Ò Architects |
|
| Perspective view from the Pushkin Street. Renovation of the Instrument-making plant in Ekaterinburg © Ò+Ò Architects |
|
| Perspective view from the courtyard. Renovation of the Instrument-making plant in Ekaterinburg © Ò+Ò Architects |
|
| Perspective view from the courtyard. Renovation of the Instrument-making plant in Ekaterinburg © Ò+Ò Architects |
|
Higher up, in the buildup, it is all metal and glass. Together it all looks like a well thought-out gradient fill: from classics to hi-tech.
However, when the courtyard became an integral part of the pedestrian system and opened up fir the general public, an zoning issue came up. And, while the concept of marking separate zones of the residential environment is simply based on the choice of different paving patterns from natural materials, for dividing the territory into the public and "guest-only" areas, the architects used the "geo-plastic" techniques, thus enriching the relief of the territory. The most interesting thing about this "courtyard wonderland", however, is the unconventional solution of the apart hotel in the genre of the city townhouses with separate entrances and the inevitable English-style front gardens. And this is yet another hideaway from a Bazhov's take: a trunk within a trunk, a box within a box, and a magic mirror with all kinds of reflections inside of it.
| Ideology: Double-face. Ideology: Ural ornaments in the facade decoration. Renovation of the Instrument-making plant in Ekaterinburg © Ò+Ò Architects |
|
| Concept of improving and developing the adjacent terrotories. Renovation of the Instrument-making plant in Ekaterinburg © Ò+Ò Architects |
|
| The current state. Renovation of the Instrument-making plant in Ekaterinburg © Ò+Ò Architects |
|
| Facades. Materials and decoration elements. Renovation of the Instrument-making plant in Ekaterinburg © Ò+Ò Architects |
|
| Diagram of the functional zoning of the hotel block. Section view. Facades. Renovation of the Instrument-making plant in Ekaterinburg © Ò+Ò Architects |
|
| Apartment block. Yard facade. Renovation of the Instrument-making plant in Ekaterinburg © Ò+Ò Architects |
|
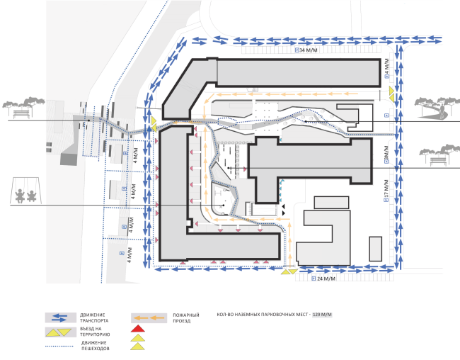
| Transport diagram. Renovation of the Instrument-making plant in Ekaterinburg © Ò+Ò Architects |
|
| Diagram of the functional zoning of the apartment block. Facades. Renovation of the Instrument-making plant in Ekaterinburg © Ò+Ò Architects |
|
| Zoning, construction, and dismantling diagrams. Renovation of the Instrument-making plant in Ekaterinburg © Ò+Ò Architects |
|
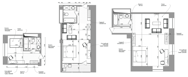
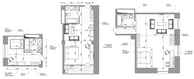
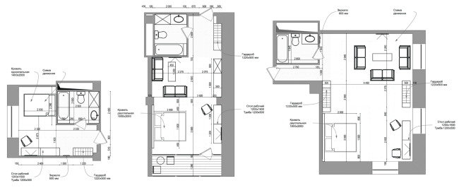
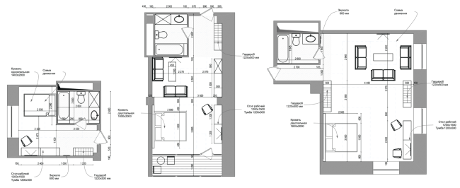
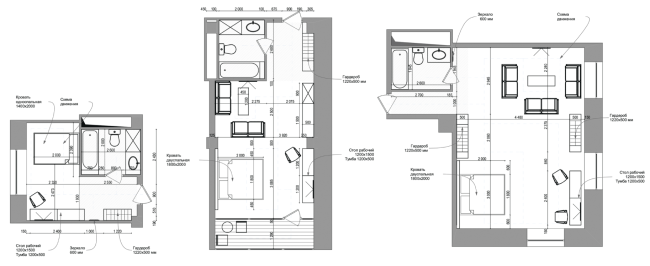
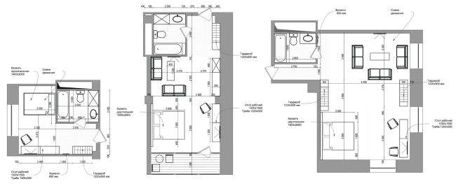
| Layout of the hotel rooms. Vertical links. Âåðòèêàëüíûå ñâÿçè. Renovation of the Instrument-making plant in Ekaterinburg © Ò+Ò Architects |
|
| Plans of the first floor. Renovation of the Instrument-making plant in Ekaterinburg © Ò+Ò Architects |
|
| Plans of the second floor. Renovation of the Instrument-making plant in Ekaterinburg © Ò+Ò Architects |
|

| Plans of the third floor. Renovation of the Instrument-making plant in Ekaterinburg © Ò+Ò Architects |
|
| Plans of the fourth floor. Renovation of the Instrument-making plant in Ekaterinburg © Ò+Ò Architects |
|
| Plans of the fifth floor. Renovation of the Instrument-making plant in Ekaterinburg © Ò+Ò Architects |
|
| Plans of the sixth floor. Renovation of the Instrument-making plant in Ekaterinburg © Ò+Ò Architects |
|
| Typology diagrams of the dwelling stock of the hotel. Renovation of the Instrument-making plant in Ekaterinburg © Ò+Ò Architects |
|
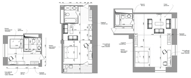
| Planning solutions of the hotel rooms. Renovation of the Instrument-making plant in Ekaterinburg © Ò+Ò Architects |
|
| Pedestrian flow diagram. Renovation of the Instrument-making plant in Ekaterinburg © Ò+Ò Architects |
|
| Layout of entrance groups. Renovation of the Instrument-making plant in Ekaterinburg © Ò+Ò Architects |
|
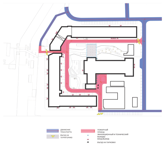
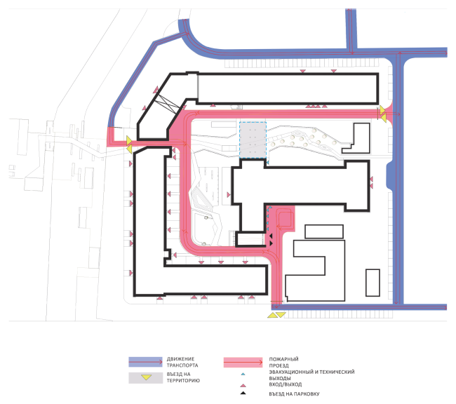
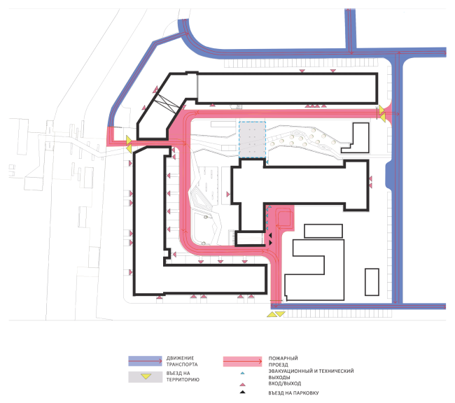
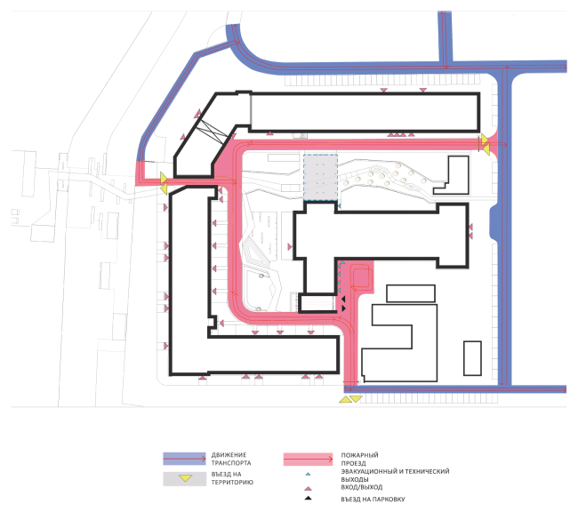
| Fire engine flow diagram. Renovation of the Instrument-making plant in Ekaterinburg © Ò+Ò Architects |
|
| Transport and parking diagram. Renovation of the Instrument-making plant in Ekaterinburg © Ò+Ò Architects |
|
None
None
None
None
None
None
None
None
None
None
None
None
None
None
None
None
None
None
None
None
None
None
None
None
None
None
None
None
None
None
None
None
None
None
None
None
None
None
|