|
The project that won the first prize in the contest for the concept of Koenigsberg's center

Contest project for the best concept of developing the historical center of the city of Kaliningrad (Koenigsberg). 1st prize © "Studio 44" and Institute of Territorial Development of Saint Petersburg
Frau Dollfuss was telling Chachua about the "good old" Koenigsberg, in reply to which Chachua kept nodding his head energetically: "You bet! Yeah, you bet I remember... General Chernyakhovsky... Took us five days, likes, to bring it, sort of, down to the ground with cannons and stuff..."
Arcady and Boris Strugatsky
"City of the Damned"
The international contest for the best architectural and town-planning proposal/concept of developing Koenigsberg's historical center "King's Mountain and its surroundings" ended on the 18th of September by the victory of the project proposed by Saint-Petersburg's "Studio 44" (headed by Nikita Yavein) in cooperation with the Institute of Territorial Development that came up with the transportation layout to the project.
Koenigsberg's downtown area is a high-profile place; the talks about renovating it have been going on for years, and this contest was to become one of the key parts of this "long and winding" story of interrelation between the Soviet, the Russian, and the Prussian cultural identities in the postwar period. First of all: although it is supposed to be common knowledge, we will remind you at this point that during the war Koenigsberg, the capital of Prussia, was almost completely destroyed, first by the devastating bombing by the British aviation in the August of 1944, and then during the storming of the city by the Soviet troops. The ruins of the King's Castle got a small share of exploring and then later on, in 1969, were blasted (!) at the order of the secretary of the regional communist party committee. The remaining housing of the city center was also destroyed - sliced by the road junction bridge, the place started looking more like a derelict park dominated by the unfinished but still merry-looking House of the Soviets towering next to the castle ruins. What remained of the significant old buildings was the temple with Kant's grave inside of it located on the Kneipfhof Island, Île de la Cité of Koenigsberg. For at least ten years already, the city has been shaken by the disputes as to whether the castle is worth restoring, whether or not the island should be rebuilt, and generally what to do with the downtown area that today looks more like some tidy soviet-era suburb but not as a historical city. [The other three prize-winning projects that took the second and two third places respectively can be seen here].

Meta-elements of the genetic code "Heart of the City". Source: "Heart of the City" town-planning bureau (organizer of the contest), www.tuwangste.ru
The answers to these and many other questions that Nikita Yavein gave, quite predictably did not satisfy everybody - but still many specialists reacted to these or those solutions proposed in the project with interest.
Apart from the transportation layout (the governor liked it), according to which the downtown area will no longer be "drive-through", the flyovers will be dismantled, bypass and loop roads will be built, and the fragments of the former highways will be turned into pedestrian boulevards, the authors proposed a whole bunch of ideological concept solutions, specifically developed for each particular fragment of the city center. It is important to mention at this point that back in the Middle Ages the center formed from several towns that merged with one another and only became the districts of Koenigsberg in 1724. So, for each of these "district" towns, the architects proposed a dedicated scenario of development ranging from regenerating the old town in accordance with the strict restoration program to large volumes with glass facades, successfully maneuvering between the purely new buildings and historical stylization (neither of these is here in its pure form) - and the inevitable standardization that is the doom of any modern neighborhood, however brightly colored.

Contest project for the best concept of developing the historical center of the city of Kaliningrad (Koenigsberg). 1st prize © "Studio 44" and Institute of Territorial Development of Saint Petersburg

Contest project for the best concept of developing the historical center of the city of Kaliningrad (Koenigsberg). 1st prize © "Studio 44" and Institute of Territorial Development of Saint Petersburg

Contest project for the best concept of developing the historical center of the city of Kaliningrad (Koenigsberg). 1st prize © "Studio 44" and Institute of Territorial Development of Saint Petersburg
To me, the most fresh and interesting element of the project is the concept of developing the district of Alpstadt that the authors justly gave the key status of the starting point of the city's growth. I know of no analogous projects; similar - yes, but not as meaningful.
Located on the northern bank of the Pregola River and almost as large as the Kneipfhof Island, Alpstadt is now occupied by a large green park with lime trees and the highway of the Moscow Avenue. As for the highway, the architects turn it into a new boulevard square, and it is planned that on the territory of today's square the buried but still surviving remnants of the old houses will be unearthed. The streets will be unearthed down to the prewar level, while the yards - it's interesting - down to the level of the deepest cellar. What develops inside the small, sized from 100 to 400 square meters, yards, I would call a "retro-town with an archeological twist to it": the facades of the territory that is on the level of the excavation will be decorated, according to the architects' plan, with the ceramics found during the excavation. The already-existing trees will also be preserved: strengthened by the propping walls, the "green spots" will tower above the "new medieval" city.

Contest project for the best concept of developing the historical center of the city of Kaliningrad (Koenigsberg). 1st prize © "Studio 44" and Institute of Territorial Development of Saint Petersburg

Contest project for the best concept of developing the historical center of the city of Kaliningrad (Koenigsberg). 1st prize © "Studio 44" and Institute of Territorial Development of Saint Petersburg
And as for the houses, it is planned that they will be built upon the dug-out basements and grown up to the volume allowed by the strict limits of the technical specifications - approximately to the level of the lost city with an array of the pitched roofs: the architects defined the incline of the roof as being exactly 45 degrees. The land plots are divided in a fractured way - along the boundaries of the houses. All the new buildings on the old basements are supposed to be built from natural materials, without either metal or plastic used, with wooden frames, stucco, brick or stone facades, and no more than 40% of glazing.
Parcelling of Alpstadt. Contest project for the best concept of developing the historical center of the city of Kaliningrad (Koenigsberg). 1st prize © "Studio 44" and Institute of Territorial Development of Saint Petersburg

Unearthing of Alpstadt. Contest project for the best concept of developing the historical center of the city of Kaliningrad (Koenigsberg). 1st prize © "Studio 44" and Institute of Territorial Development of Saint Petersburg

Specifications for Alpstadt. Contest project for the best concept of developing the historical center of the city of Kaliningrad (Koenigsberg). 1st prize © "Studio 44" and Institute of Territorial Development of Saint Petersburg

Specifications for Alpstadt. Contest project for the best concept of developing the historical center of the city of Kaliningrad (Koenigsberg). 1st prize © "Studio 44" and Institute of Territorial Development of Saint Petersburg

Alpstadt. Contest project for the best concept of developing the historical center of the city of Kaliningrad (Koenigsberg). 1st prize © "Studio 44" and Institute of Territorial Development of Saint Petersburg
According to Nikita Yavein, the members of his team that did the visualizing for this concept, "raised" the silhouettes of the buildings just about to the limit allowed by the specifications - and got the most charming picture of a retro-town with a cozy atmosphere of miniature yards, shops, and cafés (incidentally it was exactly the "middle-age" type of the layout that the architects proposed with the residential premises on the upper floors and cafés and shops down below, the idea being that the owners of the shops could live directly above them. Without any "verbatim" photograph-based restoration, the architects got a very dense and self-sufficient image of a retro-town or even a "museum" town, very much like Venice in its own unique way - but we still need to bear in mind that the resulting buildings will be a bit different because ultimately different architects will handle each one of them, though still within the grid of the stipulated specifications. Of course, one can question the “implementability” of this project, its cost and even the real value of the park that will conceal the foundations of Alpstadt, but if we are to speak about restoration here - or creating, literally from scratch, a new city center that would be historically related but not as closely as Warsaw's (built anew in the old forms) - then this specific solution really looks like a fresh and groundbreaking step from the standpoint of merging different ideas because it takes to a new level the up-to-date theme of restoring old architecture in accordance with the principle of today's archeological restoration. Retro solution that lives by the modern rules…
Seriously, what does one need to grow anew a city center that was once destroyed? - Find its roots. The roots of the houses are their basements, and it is at this point that the dialogue of the modern architecture and its historical legacy is carried out on some completely new grounds. It's not about the antithesis or even reflection but about interaction, merging and growing up something that is even better than the real thing. This theme is the root for growing the entire city center. And if, suppose, the project were to be implemented without this key part, it would lose its inner integrity and logic; the project is designed in such a way that it must grow from beginning to end and not be a sponsor of "a few interesting proposals" (which, as always, is already being discussed).
Considering consecutively the other parts of the project, we at once run into its antithesis: the Kneipfhof Island, the restoration of the pre-war buildings of which has long been discussed in the city, according to the architects' proposal will be left completely building-free and turned into an archaeological park. Here one will see the trails where the streets used to be, fragments of landscape restorations made from cut shrubbery, and a bright flower lawn spread around the temple.

Kneipfhof Island. Contest project for the best concept of developing the historical center of the city of Kaliningrad (Koenigsberg). 1st prize © "Studio 44" and Institute of Territorial Development of Saint Petersburg

Park layout on the Kneipfhof Island. Contest project for the best concept of developing the historical center of the city of Kaliningrad (Koenigsberg). 1st prize © "Studio 44" and Institute of Territorial Development of Saint Petersburg
The city of Koenigsberg was, among other things, famous for its "seven bridges" riddle: how to cross them all without crossing a single one of them twice (regretfully, the answer is no way, this was proven by Leonhard Euler who concurrently to solving this problem founded a theory of graphs and the science of topology). One of the seven bridges was located far away from the city center, a few others were destroyed and only two survived into the present. What the architects do is they recreate these seven bridges in the city center, building a new one instead of the seventh in the contemporary shape and giving it the name of Euler. Two bridges will replace the dismantled flyover we wrote about earlier.
The theme of copying-free restoration is picked up by the embankment of the Eastern Vorstadt, i.e. the bank of the river to the south of the island: here we get a long array of houses with pitched roofs, the lower floors of these houses forming a covered gallery running along the river. Now already landmark, the "great cranes" of the river port that is located to the west from the embankment, the architects leave fully intact, while the housing of the former port territory is limited by the blueprints of the historical warehouses (speichers). Still, though, the specifications remain very rigorous here: the inclination of the roofs is prescribed as being 45° in Vorstadt, and 55° in Lastadia (west of the island); the roof height of the houses 15 to 18 meters with public functions in the first floors.

Specifications for Vorstadt and Lastadia. Contest project for the best concept of developing the historical center of the city of Kaliningrad (Koenigsberg). 1st prize © "Studio 44" and Institute of Territorial Development of Saint Petersburg

Contest project for the best concept of developing the historical center of the city of Kaliningrad (Koenigsberg). 1st prize © "Studio 44" and Institute of Territorial Development of Saint Petersburg

Contest project for the best concept of developing the historical center of the city of Kaliningrad (Koenigsberg). 1st prize © "Studio 44" and Institute of Territorial Development of Saint Petersburg

Former port. Contest project for the best concept of developing the historical center of the city of Kaliningrad (Koenigsberg). 1st prize © "Studio 44" and Institute of Territorial Development of Saint Petersburg

Embankment. Contest project for the best concept of developing the historical center of the city of Kaliningrad (Koenigsberg). 1st prize © "Studio 44" and Institute of Territorial Development of Saint Petersburg
Further on, the project's dependence on the landscape becomes ever more symbolic. Located to the east of the island, the district of Lomse uses the old planning principles, borrowed from the old quarters of Koenigsberg's suburbs. Consisting of the residential complexes with spacious courtyards, at times intercepted by the landscape, this planning is larger and less dense than in the "jeweler" precise Alpstadt but it still stays within the limits of the historical scale.

Lomse district. Contest project for the best concept of developing the historical center of the city of Kaliningrad (Koenigsberg). 1st prize © "Studio 44" and Institute of Territorial Development of Saint Petersburg

Lomse district. Contest project for the best concept of developing the historical center of the city of Kaliningrad (Koenigsberg). 1st prize © "Studio 44" and Institute of Territorial Development of Saint Petersburg
To the west and east of Alpstadt, King's Mountain, and the House of the Soviets, the buildings grow considerably larger, though still planned within the framework of the "new urbanism" historical quarters, one former quarter being equal to one house. This is quite a different type of contemporary houses - glass and concrete high-rises will interact with the soviet panel houses that surround the city center, none of them to be taken down. The contemporary and the historical silhouettes make a contrasting unity on the western bank: here, behind the line of pitched roofs of the embankment houses, the architects placed an amusement park, a long roller-coaster track, and a Ferris wheel.

"New urbanist" districts. Contest project for the best concept of developing the historical center of the city of Kaliningrad (Koenigsberg). 1st prize © "Studio 44" and Institute of Territorial Development of Saint Petersburg

"New urbanist" districts. Contest project for the best concept of developing the historical center of the city of Kaliningrad (Koenigsberg). 1st prize © "Studio 44" and Institute of Territorial Development of Saint Petersburg
The climax of the contrast between the new and the old is the King's Mountain (incidentally, this is how Koenigsberg, the name of the city, translates from German). The basement floor of the castle will be unearthed, approximately like Alpstadt, and explored - but the architects plan to create here a museum instead of a town here, covering the remnants of the fortress wall with a glass roof. This will be the main local archeological attraction supported by the basements of eight more buildings that the authors propose to open up and also turn into a museum all along the center's territory: two basements in Alpstadt, three on the island, and closer to the boundaries of the territory in question two more churches are being unearthed as well as a synagogue in Lomse.
As for the yard of the former castle, it takes in the new theater building which can be theoretically justified by the fact that once inside the castle, though not in the yard, there was indeed a theater. The facades made from semi-transparent tubes of blacked-out glass will look differently when backlit from the inside avid depending on the time of the day.
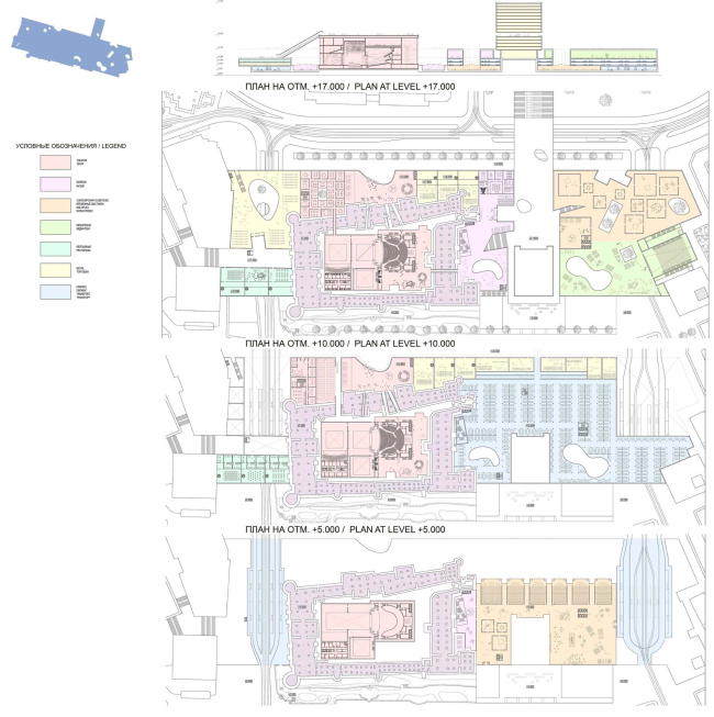
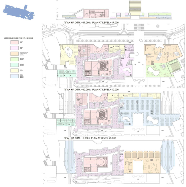
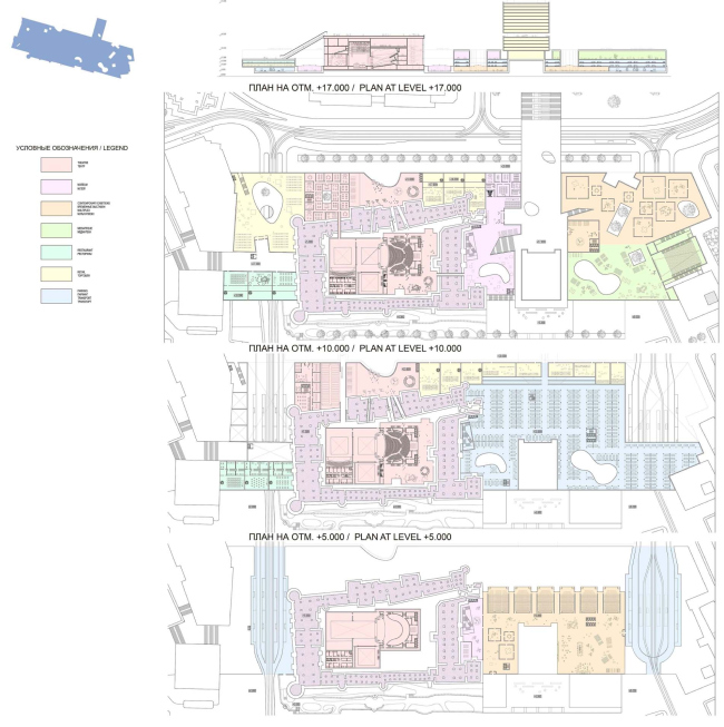
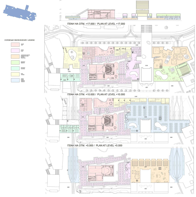
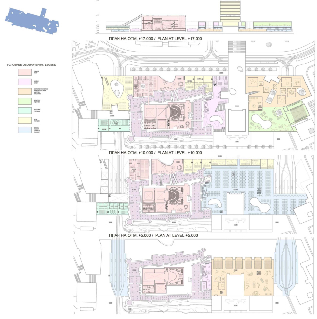
The theater, the museum of the castle, and the House of the Soviets are drowning in the mass of the shopping and entertainment complex that looks like cheese being pierced by the numerous courtyards, atriums, and balconies of various shapes and sizes. This complex is meant to, among other things "make the mountain look like a mountain".

Plan of the museum complex, the theater, House of the Soviets, and the shopping and community center. Contest project for the best concept of developing the historical center of the city of Kaliningrad (Koenigsberg). 1st prize © "Studio 44" and Institute of Territorial Development of Saint Petersburg
As was already said, the project leaves intact all the existing, including the soviet-era, buildings (but then again, all the other finalists did exactly the same thing), and, as we see, creates a lot of various options of urban environment, smoothly flowing from conservation and regeneration to contemporary construction, creating new relations and meanings, most importantly, the logical transitions from the revived parts of the historical city to the contemporary surroundings which perfectly fits the project's name of "Topology of Continuity". One thing smoothly leads to another here: from the unearthed foundations, a retro city springs up, next to it we are getting an archeological park with a museum, then - the quarters built in strict accordance with the specifications based on the historical prototypes, and, virtually on the same spot, we see the glass-and-concrete towers that are solely connected with the historical legacy by being based on the contours of the old-style parceling, and the porous community center that immerses, like a sponge, the theater and the tower of the House of the Soviets.
One might think that after the bombings and after the very fact that the city center got overgrown with the "soviet" wasteland, the architects were still able to dig out the seed which, shooting up on the postwar city, gave all sorts of different offspring: from the almost-Venetian cozy little quarters to the up-to-date glass-and-metal structures.
***
We spoke to Nikita Yavein about the project
Archi.ru
- I would like to ask you a few questions at once about the concept of Koenigsberg's development...
Nikita Yavein:
- Kaliningrad - I'd rather use the soviet word.
- Kaliningrad then. What is the most important thing to you about this project?
- The task was rather complex and it was rather vaguely defined. What we were supposed to do was make some spirit come alive, breather new life into the center of the city that is now actually quite a weird place, I would not even call it a "soviet" one, though.
We proceeded from the idea that the cities are capable of "shooting up" through the new layers. Take, for example, the city of Dessau, completely destroyed during the war and then built anew with five-story buildings. You will be surprised but all the areas of the city: the artistic quarter, and even the red-lamp quarter were revived exactly where they used to be with a one hundred present substitution of the population.
So, what we did here was try to recreate the city center's historical structure without as much as a hint at any sort of stylization. We proposed some sort of a base for bringing the city back to life - of course, not the "life" that it lived "back in the day", which would have been unnecessary. Our fundamental principle consists in "growing" the centuries-old history of the city and recreating some romantic city image, maybe even more romantic than it actually used to be.
- And do you know what it was like back in those days?
- Well, read Hoffman - he described Koenigsberg as a terrible city ruled by the Prussian military clique. Such a buttoned-up uniformed city where half of the population was military people - it is felt very clearly when you see the old photographs.
On our pictures, the city looks "more medieval" than most medieval European cities. It is important that this image is different, neither "new" nor "old", created with no attempt at verbatim recreation - rather it is a nice little bridge from old Koenigsberg to new Kaliningrad. I would say that we tried to use the "dry rationale" in order to ultimately grope for a very romantic image.
As for the principles proposed by the organizers of the contest, we deliberately opted out of following some of them - for example, we decided not to build on the Kneipfhof Island. As for the district of Alpstadt, the one that was bit destroyed but buried underground, we proposed to unearth it, the yards being dug out to the mark of the deepest cellar - which gave us these special sunken-in spaces - and thus we were able to build new houses staying at the same time within the boundaries of rigorous specifications. Here we came up with specifications not only the height and the dimensions but also the inclinations of the pitched roofs, the share of glazing, and, most importantly, the natural materials including the window sashes so as to eliminate the modern plastic altogether. This is a small district, and it was actually here that this "medieval" spirit sprang up. It is supposed that ultimately it will be different companies that do the building, so now it is hard to predict how exactly everything will look at the end of the day. Probably, in actuality it will look more diverse than it is now on pictures - the pictures are basically "volumes" that were raised by the visualizing software from the basements within the confines of our specifications. But each architectural company will build in its own way.
- Do I get it right that the architectural companies will be given these very miniature land spots that you have already planned out?
- Probably, yes, because this way greater variety can be achieved rather than giving away a whole quarter because then all the specifications will get breached - and, generally, I don't have any problem with several companies doing several plots simultaneously.
- Did you stipulate in your specifications the absence of the "pseudo-historical" decor?
- Generally, we only specified the decoration materials. The style recommendations were only developed for Alpstadt: we recommended the architects to refrain from imitating any historical style when designing new buildings here, and use the colors and tones different from historical ones.
- Can you name any analogues of such old-basement city restoration scenario that you proposed?
- I know of know of such analogues on the scale of a whole city but on a single-house level, yes, there are plenty of such examples. I share about that at my lectures...
- Aren't you afraid of being compared to the recent project of restoring the old Dovmontov churches on their basements in the city of Pskov?
- I do not think that we have anything in common with Dovmontov town. In their case it is about the miniature territory, the remains of the historical monuments that we would have lost under reconstruction, and then again, how do you go about recreating the wooden houses? It's just not practicable. We have quite a different situation here, a whole city with a residential function, and ordinary civil houses. Besides, I repeat, we are not recreating anything - we dig out archeology, we study it, and then we build our own houses on the old basements in accordance with our specifications.
In other places, on the territory of other medieval towns that, say, developed around the king's castle, we propose different specifications. In the district of Lomse we leave the planning intact but we raise the height of the houses, next to the King's Castle, there is a new "business city", large-scale and with a large percent of glazing, but built on the basis of the old planning. The castle remains the archeological zone; it would make no sense recreating it, so we simply cover the remnants of the walls with a glass roof, preserve the archeological area and turn it into a museum along the entire perimeter, and build a theater in the courtyard. Here we also have a continuity of the functions: the castle used to have a concert hall in it but there is also an antithesis: the yard used to be empty but we build something inside of it, creating, inside the castle, a new "mountain", whose volume will become part if the "backdrop" that forms the Pregola River scenery. In a word, we make the King's Mountain look like a mountain.None
None
None
None
None
None
None
None
None
None
None
None
None
None
None
None
None
None
None
None
None
None
None
None
|