|
Six projects competing for the reconstruction of Confectionery and Bakery Factory “Prostor” in the district Cheremushki
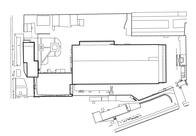
The factory is situated at the crossing of Akademika Skryabina and Ferganskaya streets in the south-east of Moscow. The factory was built in 1987 and it now consists of three buildings: the production building, the “domestic” building, and the office-and-academic building. Now it is an unsightly construction a la the 1980’s – the horizontal segmentation, typical for the industrial buildings, in combination with low-quality building materials make up the usual coloring for the outlying districts. The renovation must turn the factory into the architectural centerpiece of the area. Its main feature, however, is the fact that it does not withdraw its enterprise in order to give place to residential facilities and offices – the factory is being modernized instead. In the last few years, it is the first reconstruction without function altering.
On September 25, the judging panel of the competition selected the winners. The first prize is shared by two consortiums “Mosproject-2” and “Progress” – and Alexey Ivanov’s studio “Arkhstroydesign ASD” – working with MANIPULAZIONE INTERNAZIONALE. So the second place was not assigned to anyone. The third place was awarded to “Arch Group”, the forth place – to DNK Architectural Group, the fifth place – to Polyansky’s Moscow Institute of Art and Architecture Design and sixth – to the A2OM + Spectrum duet. The designer has been chosen after some talks with the client.
***
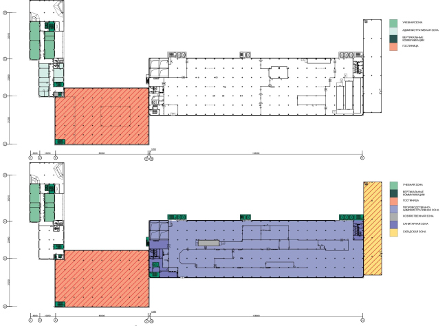
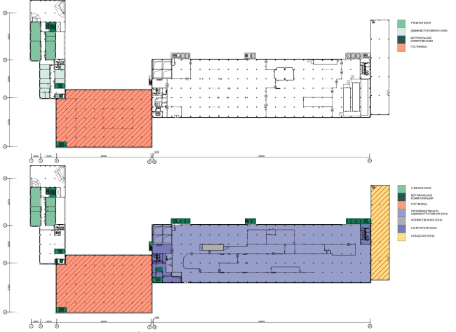
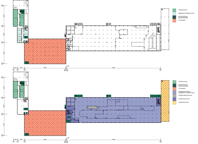
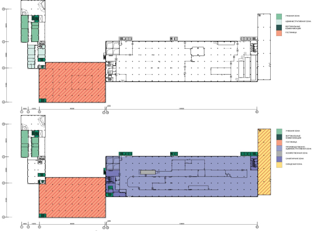
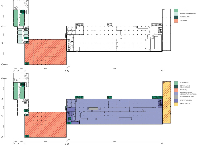
First place
“Mosproject-2” and architectural bureau “Progress”.
Pyotr Anurin, Anna Kopeina, Nataljya Mastelerzh, Ivan Sakara, Nata Tatunashvili, Anastasiya Tikhomirova, Polina Filippova
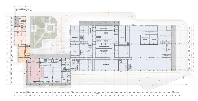
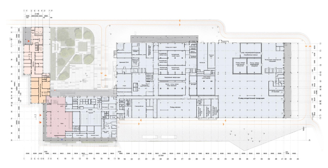
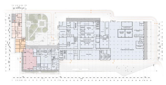
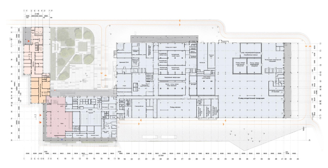
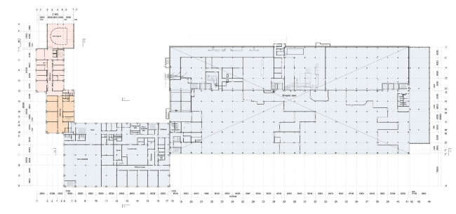
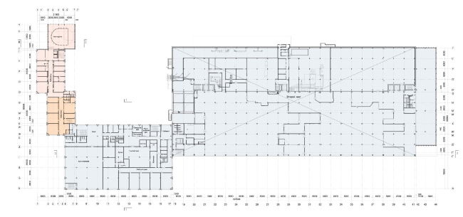
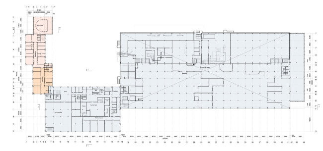
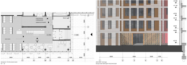
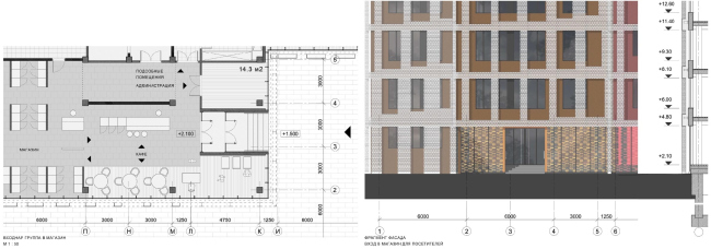
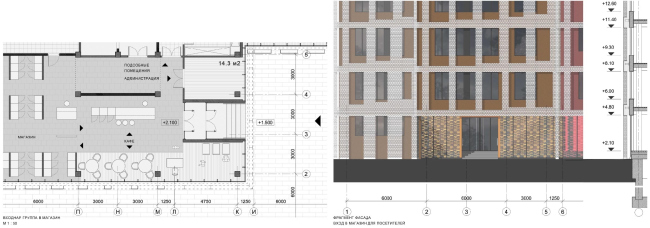
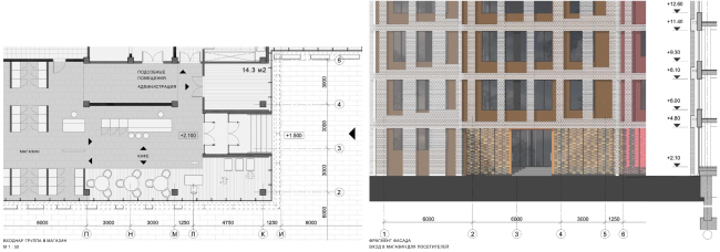
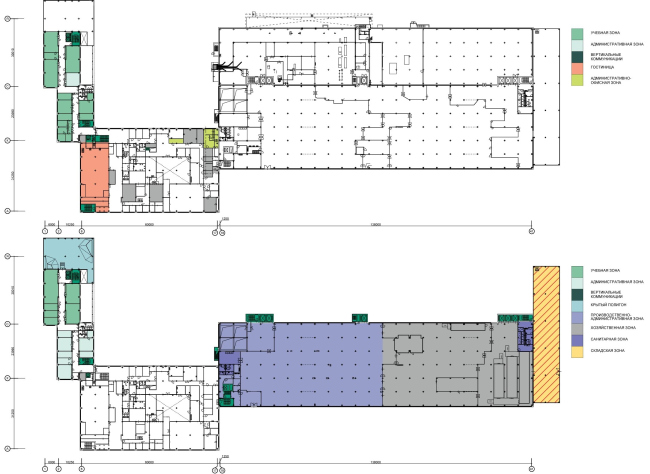
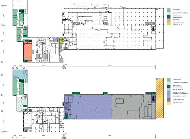
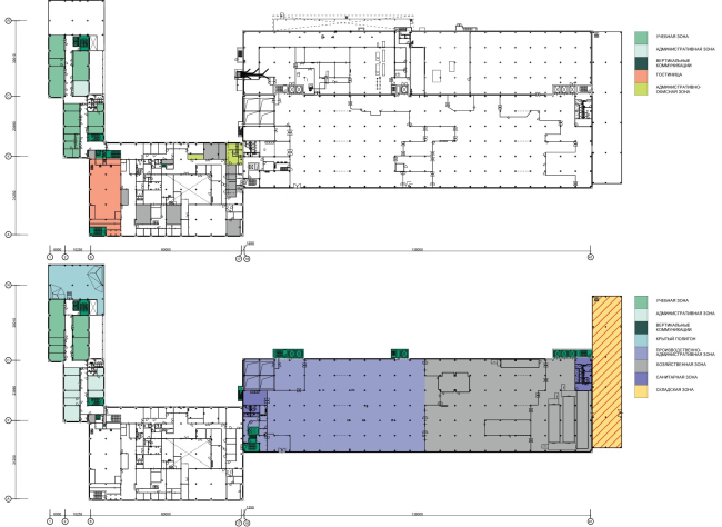
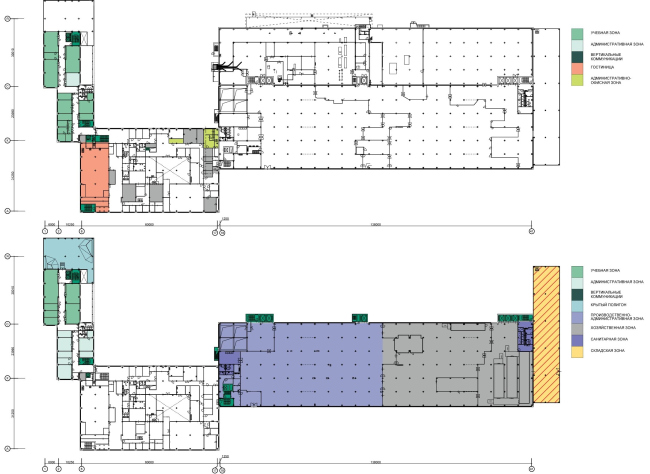
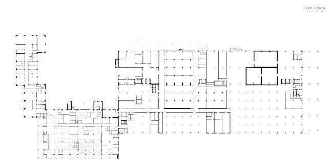
Contest project for the reconstruction of the Confectionary and Bakery Factory "Prostor" 1st and 2nd places © «Mosproject-2» + «Progress»
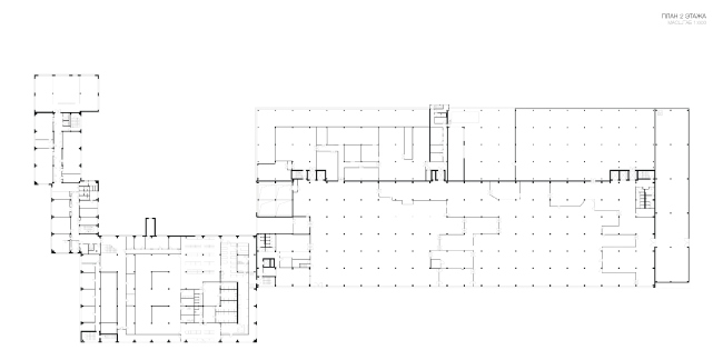
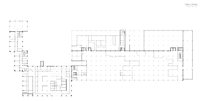
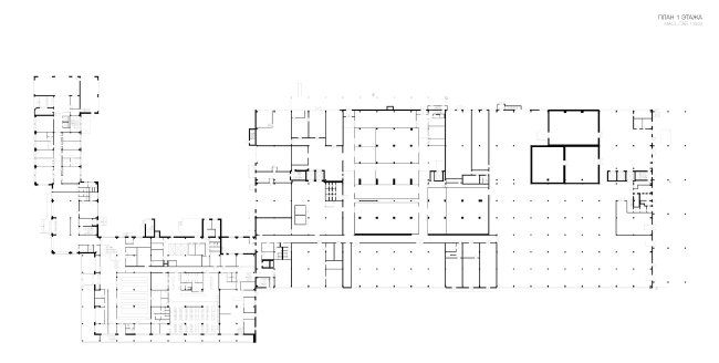
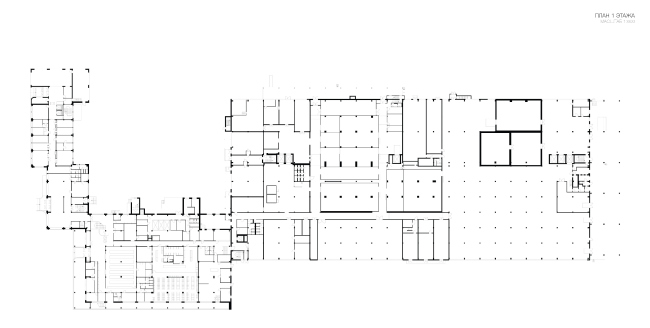
The authors consider the 80s architecture to be substandard, at the same time respectfully appreciating the strong special-volume construction, the calibrated rhythms of the facades and the recognizable architectural style. The problem, according to the architects, is the low quality of the construction work and materials. All this creates the impression of “fatigue” of the buildings that have lived up to our time with shabby or hastily remodeled facades all covered with ACs, cellular antennas and random signboards.
Thus, the architects suggested no changes in the facades or the buildings themselves. Instead, they decided to bring about the original intentions of their creators – CNIIEP n. a. B.S. Mezentsev.

Contest project for the reconstruction of the Confectionary and Bakery Factory "Prostor" 1st and 2nd places © «Mosproject-2» + «Progress»

Contest project for the reconstruction of the Confectionary and Bakery Factory "Prostor" 1st and 2nd places © «Mosproject-2» + «Progress»

Contest project for the reconstruction of the Confectionary and Bakery Factory "Prostor" 1st and 2nd places © «Mosproject-2» + «Progress»

Contest project for the reconstruction of the Confectionary and Bakery Factory "Prostor" 1st and 2nd places © «Mosproject-2» + «Progress»

Contest project for the reconstruction of the Confectionary and Bakery Factory "Prostor" 1st and 2nd places © «Mosproject-2» + «Progress»

Contest project for the reconstruction of the Confectionary and Bakery Factory "Prostor" 1st and 2nd places © «Mosproject-2» + «Progress»

Contest project for the reconstruction of the Confectionary and Bakery Factory "Prostor" 1st and 2nd places © «Mosproject-2» + «Progress»
In the meantime, new volumes will be added to the old buildings. They will be veneered with glass and aluminum (solid structural glazing, divided by vertical aluminum frames at five feet intervals) neatly built in the existing modernistic composition mainly due to the 1980’s proportions. One floor will be added to the “domestic” building. Formed by the late Soviet tessellated panels, the current facades will be replaced by the new, similar ones, only without any visible joints.
Special attention is paid to the territory development and reorganization. The highest priority is given to common areas. The entrance from the Ferganskaya Street, accentuated by a canopy, leads to a shop, a café on the first floor of the domestic building and to the main factory gangways. The technology and the logistics of the factory work will not be changed. The exits and entrances will remain in the same places, as well as the existing parking lots that are to be planted with trees. The architects have also thought over the illumination and intentionally made it even, without accented spots.

Contest project for the reconstruction of the Confectionary and Bakery Factory "Prostor" 1st and 2nd places © «Mosproject-2» + «Progress»

Contest project for the reconstruction of the Confectionary and Bakery Factory "Prostor" 1st and 2nd places © «Mosproject-2» + «Progress»

Contest project for the reconstruction of the Confectionary and Bakery Factory "Prostor" 1st and 2nd places © «Mosproject-2» + «Progress»

Contest project for the reconstruction of the Confectionary and Bakery Factory "Prostor" 1st and 2nd places © «Mosproject-2» + «Progress»

Contest project for the reconstruction of the Confectionary and Bakery Factory "Prostor" 1st and 2nd places © «Mosproject-2» + «Progress»

Contest project for the reconstruction of the Confectionary and Bakery Factory "Prostor" 1st and 2nd places © «Mosproject-2» + «Progress»

Contest project for the reconstruction of the Confectionary and Bakery Factory "Prostor" 1st and 2nd places © «Mosproject-2» + «Progress»

Contest project for the reconstruction of the Confectionary and Bakery Factory "Prostor" 1st and 2nd places © «Mosproject-2» + «Progress»

Contest project for the reconstruction of the Confectionary and Bakery Factory "Prostor" 1st and 2nd places © «Mosproject-2» + «Progress»

Contest project for the reconstruction of the Confectionary and Bakery Factory "Prostor" 1st and 2nd places © «Mosproject-2» + «Progress»

Contest project for the reconstruction of the Confectionary and Bakery Factory "Prostor" 1st and 2nd places © «Mosproject-2» + «Progress»

Contest project for the reconstruction of the Confectionary and Bakery Factory "Prostor" 1st and 2nd places © «Mosproject-2» + «Progress»

Contest project for the reconstruction of the Confectionary and Bakery Factory "Prostor" 1st and 2nd places © «Mosproject-2» + «Progress»

Contest project for the reconstruction of the Confectionary and Bakery Factory "Prostor" 1st and 2nd places © «Mosproject-2» + «Progress»

Contest project for the reconstruction of the Confectionary and Bakery Factory "Prostor" 1st and 2nd places © «Mosproject-2» + «Progress»

Contest project for the reconstruction of the Confectionary and Bakery Factory "Prostor" 1st and 2nd places © «Mosproject-2» + «Progress»

Contest project for the reconstruction of the Confectionary and Bakery Factory "Prostor" 1st and 2nd places © «Mosproject-2» + «Progress»

Contest project for the reconstruction of the Confectionary and Bakery Factory "Prostor" 1st and 2nd places © «Mosproject-2» + «Progress»

Contest project for the reconstruction of the Confectionary and Bakery Factory "Prostor" 1st and 2nd places © «Mosproject-2» + «Progress»
***
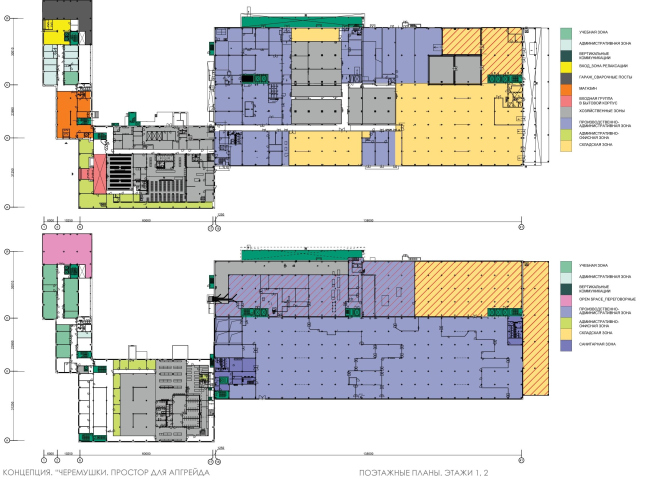
Yet another first place
Alexey Ivanov’s studio “Arkhstroydesign ASD” + MANIPULAZIONE INTERNAZIONALE

Contest project for the reconstruction of the Confectionary and Bakery Factory "Prostor" 1st and 2nd places © «Archstroydesign ASD» + MANIPULAZIONE INTERNAZIONALE
Unlike the authors of the previous project, in this case the architects do not see the factory buildings as bearing a “sensible image”, except for the memory of building culture and typology of that time. That is why they suggest a significant change in the appearance of the buildings, their facades in particular. The basic element of the new facades are fiber-reinforced cement panels (4 ft * 4 ft * 0,3 in) with carved symbols of working processes in the factory buildings. Each block gets its “own” color. There are no panels here – the walls get painted.
The convergence of the factory territory with the surrounding buildings, getting rid of the barriers, has become the main idea of the land improvement. Both the inside part of the factory and the adjacent urban territory will be organized.

Contest project for the reconstruction of the Confectionary and Bakery Factory "Prostor" 1st and 2nd places © «Archstroydesign ASD» + MANIPULAZIONE INTERNAZIONALE

Contest project for the reconstruction of the Confectionary and Bakery Factory "Prostor" 1st and 2nd places © «Archstroydesign ASD» + MANIPULAZIONE INTERNAZIONALE

Contest project for the reconstruction of the Confectionary and Bakery Factory "Prostor" 1st and 2nd places © «Archstroydesign ASD» + MANIPULAZIONE INTERNAZIONALE

Contest project for the reconstruction of the Confectionary and Bakery Factory "Prostor" 1st and 2nd places © «Archstroydesign ASD» + MANIPULAZIONE INTERNAZIONALE

Contest project for the reconstruction of the Confectionary and Bakery Factory "Prostor" 1st and 2nd places © «Archstroydesign ASD» + MANIPULAZIONE INTERNAZIONALE

Contest project for the reconstruction of the Confectionary and Bakery Factory "Prostor" 1st and 2nd places © «Archstroydesign ASD» + MANIPULAZIONE INTERNAZIONALE

Contest project for the reconstruction of the Confectionary and Bakery Factory "Prostor" 1st and 2nd places © «Archstroydesign ASD» + MANIPULAZIONE INTERNAZIONALE

Contest project for the reconstruction of the Confectionary and Bakery Factory "Prostor" 1st and 2nd places © «Archstroydesign ASD» + MANIPULAZIONE INTERNAZIONALE

Contest project for the reconstruction of the Confectionary and Bakery Factory "Prostor" 1st and 2nd places © «Archstroydesign ASD» + MANIPULAZIONE INTERNAZIONALE

Contest project for the reconstruction of the Confectionary and Bakery Factory "Prostor" 1st and 2nd places © «Archstroydesign ASD» + MANIPULAZIONE INTERNAZIONALE

Contest project for the reconstruction of the Confectionary and Bakery Factory "Prostor" 1st and 2nd places © «Archstroydesign ASD» + MANIPULAZIONE INTERNAZIONALE

Contest project for the reconstruction of the Confectionary and Bakery Factory "Prostor" 1st and 2nd places © «Archstroydesign ASD» + MANIPULAZIONE INTERNAZIONALE

Contest project for the reconstruction of the Confectionary and Bakery Factory "Prostor" 1st and 2nd places © «Archstroydesign ASD» + MANIPULAZIONE INTERNAZIONALE

Contest project for the reconstruction of the Confectionary and Bakery Factory "Prostor" 1st and 2nd places © «Archstroydesign ASD» + MANIPULAZIONE INTERNAZIONALE

Contest project for the reconstruction of the Confectionary and Bakery Factory "Prostor" 1st and 2nd places © «Archstroydesign ASD» + MANIPULAZIONE INTERNAZIONALE

Contest project for the reconstruction of the Confectionary and Bakery Factory "Prostor" 1st and 2nd places © «Archstroydesign ASD» + MANIPULAZIONE INTERNAZIONALE

Contest project for the reconstruction of the Confectionary and Bakery Factory "Prostor" 1st and 2nd places © «Archstroydesign ASD» + MANIPULAZIONE INTERNAZIONALE

Contest project for the reconstruction of the Confectionary and Bakery Factory "Prostor" 1st and 2nd places © «Archstroydesign ASD» + MANIPULAZIONE INTERNAZIONALE
***
Third place
Arch Group

Contest project for the reconstruction of the Confectionary and Bakery Factory "Prostor" 3rd place © "Arch Group"
The office block is turned into a glass tower. The rest buildings are masked behind the new facades. Their texture indicates the confectionery specialization of the factory, in that way or another. The largest façade is made of special fabric with the texture of dough and the fingerprints reminding of the bakers’ manual labor. The semitransparent façade material lets the light easily into the building. From the outside, however, it does not seem transparent at all and creates an illusion of a solid surface. Another façade type is made of a perforated material, reminding the texture of sliced bread.

Contest project for the reconstruction of the Confectionary and Bakery Factory "Prostor" 3rd place © "Arch Group"

Contest project for the reconstruction of the Confectionary and Bakery Factory "Prostor" 3rd place © "Arch Group"

Contest project for the reconstruction of the Confectionary and Bakery Factory "Prostor" 3rd place © "Arch Group"

Contest project for the reconstruction of the Confectionary and Bakery Factory "Prostor" 3rd place © "Arch Group"

Contest project for the reconstruction of the Confectionary and Bakery Factory "Prostor" 3rd place © "Arch Group"

Contest project for the reconstruction of the Confectionary and Bakery Factory "Prostor" 3rd place © "Arch Group"

Contest project for the reconstruction of the Confectionary and Bakery Factory "Prostor" 3rd place © "Arch Group"

Contest project for the reconstruction of the Confectionary and Bakery Factory "Prostor" 3rd place © "Arch Group"

Contest project for the reconstruction of the Confectionary and Bakery Factory "Prostor" 3rd place © "Arch Group"

Contest project for the reconstruction of the Confectionary and Bakery Factory "Prostor" 3rd place © "Arch Group"

Contest project for the reconstruction of the Confectionary and Bakery Factory "Prostor" 3rd place © "Arch Group"

Contest project for the reconstruction of the Confectionary and Bakery Factory "Prostor" 3rd place © "Arch Group"

Contest project for the reconstruction of the Confectionary and Bakery Factory "Prostor" 3rd place © "Arch Group"

Contest project for the reconstruction of the Confectionary and Bakery Factory "Prostor" 3rd place © "Arch Group"

Contest project for the reconstruction of the Confectionary and Bakery Factory "Prostor" 3rd place © "Arch Group"

Contest project for the reconstruction of the Confectionary and Bakery Factory "Prostor" 3rd place © "Arch Group"
***
Fourth place
DNK Architectural Group

Contest project for the reconstruction of the Confectionary and Bakery Factory "Prostor" 4th place © "DNK Architectural Group"
The domestic block was enlarged by two floors. A bit extended, alike to the “mountain peak”, this angle becomes the spatial landmark – it can be easily seen from the crossroads. In order to unite the factory complex with the city the authors suggest the outside modernized park be broadened up to the crossroads opening up the facades the administrative and domestic buildings and providing direct access to the complex from the Akademika Skryabina Street. The first floors of the blocks are glazed. The main entrance in the domestic block is being shifted closed to the center of the vestibule inside. The entrance to the shop is planned to be made at the end-wall of the administrative building, so that it would lead out to an open space of the parking lot, where the main entrance is.
There will be a park with lanes and platforms between the street and the production building. The enterprise territory is separated from the park with a transparent fence of vertical steel profiles – so that the façade of the production block would be open to the park.

Contest project for the reconstruction of the Confectionary and Bakery Factory "Prostor" 4th place © "DNK Architectural Group"

Contest project for the reconstruction of the Confectionary and Bakery Factory "Prostor" 4th place © "DNK Architectural Group"

Contest project for the reconstruction of the Confectionary and Bakery Factory "Prostor" 4th place © "DNK Architectural Group"

Contest project for the reconstruction of the Confectionary and Bakery Factory "Prostor" 4th place © "DNK Architectural Group"

Contest project for the reconstruction of the Confectionary and Bakery Factory "Prostor" 4th place © "DNK Architectural Group"

Contest project for the reconstruction of the Confectionary and Bakery Factory "Prostor" 4th place © "DNK Architectural Group"

Contest project for the reconstruction of the Confectionary and Bakery Factory "Prostor" 4th place © "DNK Architectural Group"

Contest project for the reconstruction of the Confectionary and Bakery Factory "Prostor" 4th place © "DNK Architectural Group"

Contest project for the reconstruction of the Confectionary and Bakery Factory "Prostor" 4th place © "DNK Architectural Group"

Contest project for the reconstruction of the Confectionary and Bakery Factory "Prostor" 4th place © "DNK Architectural Group"

Contest project for the reconstruction of the Confectionary and Bakery Factory "Prostor" 4th place © "DNK Architectural Group"

Contest project for the reconstruction of the Confectionary and Bakery Factory "Prostor" 4th place © "DNK Architectural Group"

Contest project for the reconstruction of the Confectionary and Bakery Factory "Prostor" 4th place © "DNK Architectural Group"

Contest project for the reconstruction of the Confectionary and Bakery Factory "Prostor" 4th place © "DNK Architectural Group"

Contest project for the reconstruction of the Confectionary and Bakery Factory "Prostor" 4th place © "DNK Architectural Group"

Contest project for the reconstruction of the Confectionary and Bakery Factory "Prostor" 4th place © "DNK Architectural Group"

Contest project for the reconstruction of the Confectionary and Bakery Factory "Prostor" 4th place © "DNK Architectural Group"

Contest project for the reconstruction of the Confectionary and Bakery Factory "Prostor" 4th place © "DNK Architectural Group"

Contest project for the reconstruction of the Confectionary and Bakery Factory "Prostor" 4th place © "DNK Architectural Group"

Contest project for the reconstruction of the Confectionary and Bakery Factory "Prostor" 4th place © "DNK Architectural Group"

Contest project for the reconstruction of the Confectionary and Bakery Factory "Prostor" 4th place © "DNK Architectural Group"

Contest project for the reconstruction of the Confectionary and Bakery Factory "Prostor" 4th place © "DNK Architectural Group"
***
Fifth place
Polyansky Moscow Institute of Art and Architecture Design

Contest project for the reconstruction of the Confectionary and Bakery Factory "Prostor" 5th place © Polyansky Moscow Institute of Art and Architecture Design
The territory of the factory is being significantly enlarged with outbuildings and superstructures in this project. A baker’s shop is added to the structure of the incoming group. New entrances and parking lots for personnel and visitors are being made. The existing parking lot is being planted with trees. The modernization includes causeways, minor architectural forms and illumination. The authors are also working on a new transit pedestrian path, connecting Akademika Skryabina and Ferganskaya streets.
Perforated metal sheets and structural glass are proposed as the two main materials. The facades are being winterized.

Contest project for the reconstruction of the Confectionary and Bakery Factory "Prostor" 5th place © Polyansky Moscow Institute of Art and Architecture Design

Contest project for the reconstruction of the Confectionary and Bakery Factory "Prostor" 5th place © Polyansky Moscow Institute of Art and Architecture Design

Contest project for the reconstruction of the Confectionary and Bakery Factory "Prostor" 5th place © Polyansky Moscow Institute of Art and Architecture Design

Contest project for the reconstruction of the Confectionary and Bakery Factory "Prostor" 5th place © Polyansky Moscow Institute of Art and Architecture Design

Contest project for the reconstruction of the Confectionary and Bakery Factory "Prostor" 5th place © Polyansky Moscow Institute of Art and Architecture Design

Contest project for the reconstruction of the Confectionary and Bakery Factory "Prostor" 5th place © Polyansky Moscow Institute of Art and Architecture Design

Contest project for the reconstruction of the Confectionary and Bakery Factory "Prostor" 5th place © Polyansky Moscow Institute of Art and Architecture Design

Contest project for the reconstruction of the Confectionary and Bakery Factory "Prostor" 5th place © Polyansky Moscow Institute of Art and Architecture Design

Contest project for the reconstruction of the Confectionary and Bakery Factory "Prostor" 5th place © Polyansky Moscow Institute of Art and Architecture Design

Contest project for the reconstruction of the Confectionary and Bakery Factory "Prostor" 5th place © Polyansky Moscow Institute of Art and Architecture Design

Contest project for the reconstruction of the Confectionary and Bakery Factory "Prostor" 5th place © Polyansky Moscow Institute of Art and Architecture Design

Contest project for the reconstruction of the Confectionary and Bakery Factory "Prostor" 5th place © Polyansky Moscow Institute of Art and Architecture Design

Contest project for the reconstruction of the Confectionary and Bakery Factory "Prostor" 5th place © Polyansky Moscow Institute of Art and Architecture Design

Contest project for the reconstruction of the Confectionary and Bakery Factory "Prostor" 5th place © Polyansky Moscow Institute of Art and Architecture Design

Contest project for the reconstruction of the Confectionary and Bakery Factory "Prostor" 5th place © Polyansky Moscow Institute of Art and Architecture Design

Contest project for the reconstruction of the Confectionary and Bakery Factory "Prostor" 5th place © Polyansky Moscow Institute of Art and Architecture Design

Contest project for the reconstruction of the Confectionary and Bakery Factory "Prostor" 5th place © Polyansky Moscow Institute of Art and Architecture Design

Contest project for the reconstruction of the Confectionary and Bakery Factory "Prostor" 5th place © Polyansky Moscow Institute of Art and Architecture Design

Contest project for the reconstruction of the Confectionary and Bakery Factory "Prostor" 5th place © Polyansky Moscow Institute of Art and Architecture Design

Contest project for the reconstruction of the Confectionary and Bakery Factory "Prostor" 5th place © Polyansky Moscow Institute of Art and Architecture Design

Contest project for the reconstruction of the Confectionary and Bakery Factory "Prostor" 5th place © Polyansky Moscow Institute of Art and Architecture Design

Contest project for the reconstruction of the Confectionary and Bakery Factory "Prostor" 5th place © Polyansky Moscow Institute of Art and Architecture Design

Contest project for the reconstruction of the Confectionary and Bakery Factory "Prostor" 5th place ©&None
None
None
None
None
None
None
None
None
None
None
None
None
None
None
None
None
None
None
None
None
None
None
None
None
None
None
None
None
None
None
None
None
None
None
None
None
None
None
None
None
None
None
None
None
None
None
None
None
None
None
None
None
None
None
None
None
None
None
None
None
None
None
None
None
None
None
None
None
None
None
None
None
None
None
None
None
None
None
None
None
None
None
None
None
None
None
None
None
None
None
None
None
None
None
None
None
None
None
None
None
None
None
None
None
None
None
None
None
None
None
None
None
None
None
None
None
None
None
None
None
None
None
None
None
None
None
None
None
None
None
None
None
None
|