|
The multi-function complex on the Valovaya Street, completed by "Reserve" Creative Union in the end of last year is Moscow's rare example of a drag-on project that ultimately lived to be implemented.

Multi-function complex at the Valovaya Street in Moscow © Aleksey Naroditsky
This complex is built at the junction of the Valovaya and Bolshaya Serpukhovskaya streets, in the stead of Bread Factory N1. The decision of the demolition of the latter was taken by the city still back in 1998, the original idea being that the bread factory would be basically kept intact in this place, just equipped with more up-to-date and compact machinery, and that it would take up considerably less room, yielding part of the advantageously located land site to a business center. This should become an example of a, crucially new for Moscow, scenario of relocating the production facilities, when they are just not taken outside the city center but are transferred to a different format. However, the search for the optimum architectural solution took up so long that speaking about any know-how does not make much sense anymore. The commissioner turned to "Reserve" in 2008 with a request to do some corrections to the facades of the concept that had been developed by another studio but the team of Vladimir Plotkin proposed their own solution of organizing the business center.

Multi-function complex at the Valovaya Street in Moscow © Aleksey Naroditsky

Multi-function complex at the Valovaya Street in Moscow © Aleksey Naroditsky
Considering the key location of the land site (directly on the Garden Ring, the latter making a smooth bend here) the architects revised the shape and the plastic of the very object, likening the house standing at the turn to a pivot. Back then, in 2008, consisting of triangular bay windows and looking as if it is "bound" with broad belts of concrete and glass, the cylinder of the main building looked more innovative (a similar motif is to be found in the project of the residential complex "Zarechye" upon which Vladimir Plotkin worked during the same years). Without a doubt, the ribbed "pivot" would introduce into the panorama of the Garden Ring a fair bit of something fresh and at the same time high-profile, something that this part of the Garden Ring seems to be in dire need of - but the architectural community refused to believe such a daring shape, and its authors were recommended to do "something more conservative". As Vladimir Plotkin confesses, at this point he felt like giving up on the Valovaya Street altogether - but then the world crisis set in, the budgets were being cut, and any commission came in handy.

Multi-function complex at the Valovaya Street in Moscow © Aleksey Naroditsky
In the summer of 2009, "Reserve" yet again presented the revised project to the architectural board. This time, the plan of the complex had a trapeze shape that in fact followed the shape of the land plot and allowed for making a maximum statement of its presence at the junction. The "pivot-ness" theme, however, was still to be traced in the project: the building looked as if it was "embracing" the plot. Still, though, the authors were recommended to forego this direct hint at plasticity as well, just as the theme of broken facets and lamellae that decorated the facades. As for the latter, the members of the board literally insisted on "observing the traditions of the architecture of the Garden Ring" - however, it is particularly the area around the Valovaya Street that is reigned by such an abundance of styles that choosing some specific starting point would have been quite a chore. "At one time we were advised to proceed from the neighboring building that was built in the late Stalin era, but this was actually just an ordinary rank-and-file affair, cloning which would seem to us at least strange" - Vladimir Plotkin explains.

Multi-function complex at the Valovaya Street in Moscow © Aleksey Naroditsky
Still, the architecture of the complex did get some of the "general Moscow" thematics: the authors introduced clear vertical horizontal sections, opted in favor of the beige and ochre palette, and proposed to use slabs of natural stone with carved ornament. In the Moscow-characteristic manner, the building's two top floors were accentuated: their glazing area is considerably larger, while the ornament gives way to laconic rustication. Still, even this version had to be revised by the architects: gradually, the project lost its ornamental inserts, and the visual difference between the stories. The version that ultimately got implemented, was called "the most reserved" by Vladimir Plotkin.

Multi-function complex at the Valovaya Street in Moscow © Aleksey Naroditsky

Multi-function complex at the Valovaya Street in Moscow © Aleksey Naroditsky
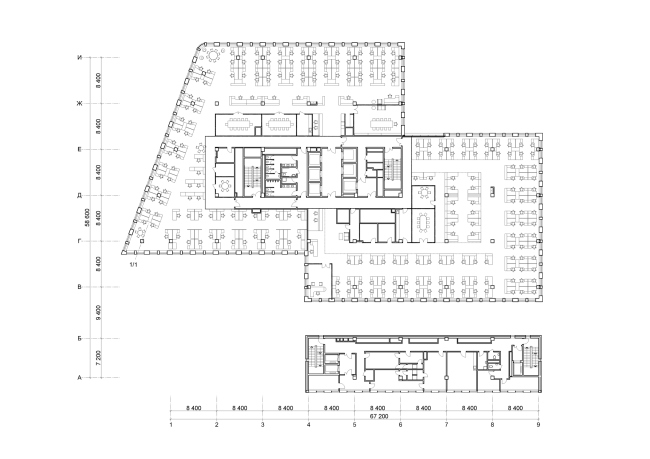
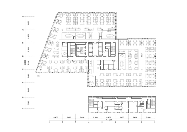
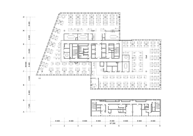
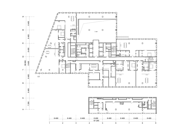
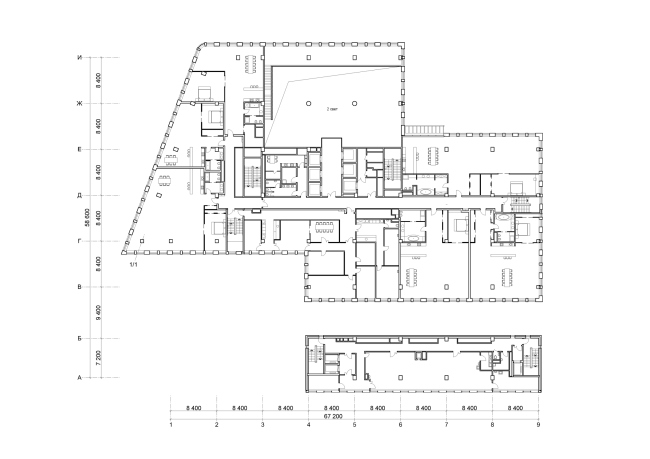
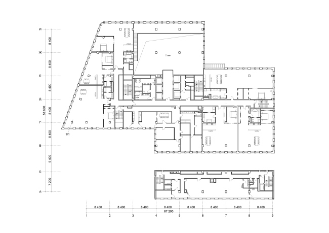
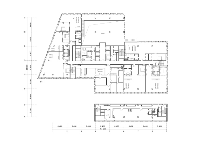
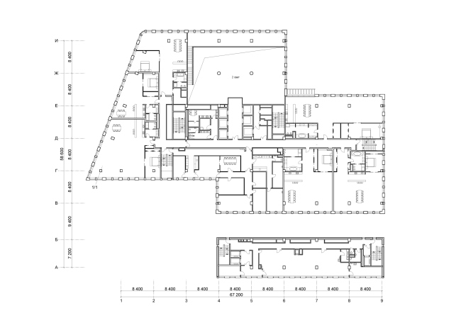
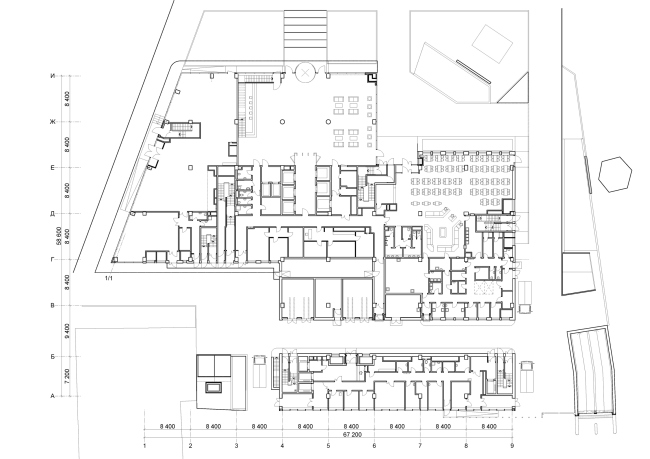
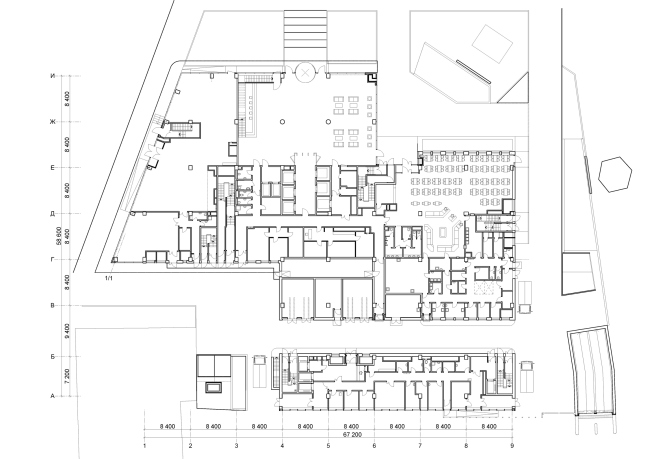
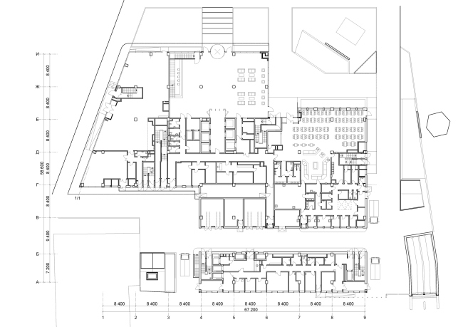
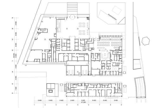
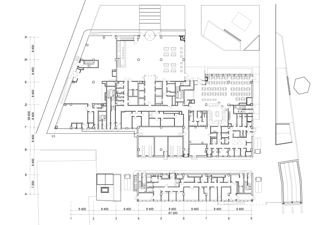
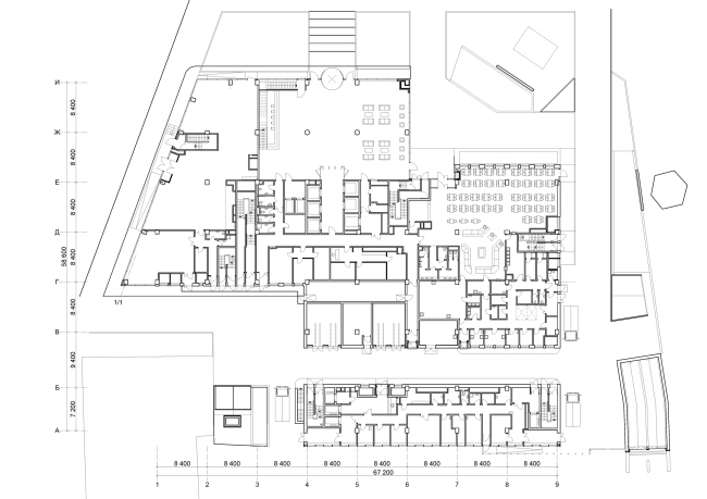
In accordance with the original specifications, the complex consists of two volumes - the main building of the business center, turned to the Garden Ring, and the production-facility building that follows the rear boundary of the plot parallel to the Valovaya street. They are designed in totally different ways, both in their shape and facade decoration. The main building kept the trapeze shape of the plan, both bases of this trapeze having rather large cutaways in them - some sort of "light wells" that let the architects keep the regulation distance from the subway ventilation chutes located on the plot.

Multi-function complex at the Valovaya Street in Moscow © Aleksey Naroditsky
The corner with which the volume is turned to the crossroads is smoothed out, if minimally, which is gracefully and unobtrusively accentuated by the curvilinear glass that is used here. Running away from this axis, the two surfaces of the main facade form a broad angle, exactly following the red lines of the crossing streets, while the dynamics of this angle is enhanced by the horizontals that dominate the design of the building. The light-beige belts of the intermediate floors are slit with darker decorative lamellae that go a long way to conceal the monotony of these elements. Just as dark hue the architects gave to the vertical inserts between the windows.
The coating is executed not from stone but from glass fiber concrete integrated into the modular system - this comparatively new material allows the architects to make the plastics of the facade rather rich and sophisticated without making it too heavy: the average panel is one and a half - two centimeters thick. Besides, the project provided for the decorative backlight of the building's facades: the special niches for the lights are fully integrated into their coating.

Multi-function complex at the Valovaya Street in Moscow © Aleksey Naroditsky
And, while all the belts are designed alike, the inserts change from window to window: upon the darker textured plaque, the architects apply a rectangular grid, the squares of which constantly vary, introducing into this seemingly "reserved" facade a fair bit of an interesting intrigue. The building that is farther away from the Garden Ring, is significantly different from the textured and dissected main facade: the same modular grid is made thinner and, let's say so, clearer. The side wall of the building is covered with a light pattern of smooth but still textured "velvet" slabs of glass fiber concrete, livened up by a few windows; on the rear facade, the windows alternate in a staggered order with the outstanding glass panels covered with silk printing bands.
Driving past the building in a car, one will hardly have time to notice such subtleties - the eye only catches the trail of belts streaming along the crossroads - but the pedestrians approaching the complex or walking past the building will have a fun time examining it.

Multi-function complex at the Valovaya Street in Moscow © Aleksey Naroditsky

Multi-function complex at the Valovaya Street in Moscow © Aleksey Naroditsky

Multi-function complex at the Valovaya Street in Moscow © Aleksey Naroditsky
Oh, about the pedestrians! All along the first floor of the building, the architects make an "undercut" and then cover it with stained glass: the building steps back from the red lines taking on a more friendly and open look. In front of the building, there is a small landscaped square that makes one slow down at the point where the flow of people used to be moving in but a transient fashion. One will also get a considerable aesthetic pleasure just walking around the complex. The rear building that presents a much more laconic parallelepiped is turned to its immediate neighbor with a fully glazed facade, while on the roof level there is a narrow bridge between them that in the clear weather can be barely seen in the Moscow sky but still serves as an indisputable material embodiment of the blood connection of these so unlike volumes.

Multi-function complex at the Valovaya Street in Moscow © Aleksey Naroditsky

Multi-function complex at the Valovaya Street in Moscow © Aleksey Naroditsky

Multi-function complex at the Valovaya Street in Moscow. Landscaping project © Aleksey Naroditsky

Multi-function complex at the Valovaya Street in Moscow © Aleksey Naroditsky

Multi-function complex at the Valovaya Street in Moscow © Aleksey Naroditsky

Multi-function complex at the Valovaya Street in Moscow © Aleksey Naroditsky

Multi-function complex at the Valovaya Street in Moscow © Aleksey Naroditsky

Multi-function complex at the Valovaya Street in Moscow © Aleksey Naroditsky

Multi-function complex at the Valovaya Street in Moscow © Aleksey Naroditsky

Multi-function complex at the Valovaya Street in Moscow © Aleksey Naroditsky

Multi-function complex at the Valovaya Street in Moscow © Aleksey Naroditsky
None
None
None
None
None
None
None
None
None
None
None
None
None
None
None
None
None
None
None
None
None
None
None
|