|
In Saint Petersburg, Eugene Gerasimov will build a church complex.

Perspective view of the complex © Eugene Gerasimov and Partners
On the first of July, there took place the groundbreaking ceremony for the church complex on the Kronstadt Square in Saint Petersburg. Metropolitan Varsonofiy of Saint Petersburg and Ladoga said at the ceremony that the sleeping belt areas are in desperate need of churches - simply because during the soviet times they were never built in them - and expressed hope that now that there is a church in the community, things will take a turn for the better with God's help. The complex has been designed since 2006 by the architectural bureau of Eugene Gerasimov (what is important, absolutely for free, strictly on a charity basis) that actually does not specialize in temple architecture, even though it is known for its works both in the contemporary and in the historical styles. The architects treat the temple complex project with tenderness and care: to them, it is first of all a public building against the background of numerous successful commercial commissions, and the authors are only happy to be doing something for the city - they not only approached with maximum attention the specifics of the religious building but also, among other things, carefully thought out the improvement of the temple square for the congregation. As for the architecture of the complex, the architects combined in it a few historical allusions, placing them into the laconic framework of the style that is as much contemporary as it can be in the modern Russian church.
***
The Kronstadt Square is not actually quite a square but rather - exquisite, like many things in Saint Petersburg - an oval road junction situated at the crossing of the Leninsky and the Stachek avenues on the way to Peterhof behind the Kirovsky district. Inside the oval, there is a large flat lawn, surrounded by the 1970's modernism alternating with the housing of the 2000's - in a word, nothing else is "exquisite" here except for maybe the rocaille shape of the lawn and the enticing "Road to Peterhof" sign (well, to Strelna, actually) - the terribly dull houses of the post-soviet suburb, comparatively clean, green and spacious, though. The place had also a tram line running through it.
Before meeting the junction, the avenues form a sharp arrow - somewhere in the center of Saint Petersburg it would house the proverbial "five corners", but here it resulted in a little park, upon the western "nose" of which the architect Ivan Knyazev in 2003 built a chapel of John of Kronstadt, and later on the chapel's altar was consecrated, raising it to the status of a church, because the construction of the temple complex seemed to be dragging on forever. On the other hand, its east side in 2009 got a large residential complex with a binding name of "Mon Plaisir" that became the rather usual background for the future temple complex the construction of which, after the construction of the chapel, took another ten years.
The studio of Eugene Gerasimov has been working on the project since 2006, and, as its name entry states, the architects made an attempt at "tying in harmoniously the new architectural forms with the features of the nation's spiritual tradition".
The building of the already-built chapel stretches along the Leninsky Avenue, while the new buildings of the complex - the Temple of All-Merciful Savior and the parish house behind it - are symmetrical and strung onto the axis of the bisect in line of the triangular land site. It is planned that the lower tier of the temple will include the baptismal church, and yet another small chapel will be inbuilt into the parish house, above the roof of which only its cupola will be viewable.

Bird's height view of the complex © Eugene Gerasimov and Partners
The features of contemporary architecture, just like the conservative allusions, are plainly visible. Besides the general church requirements, Eugene Gerasimov's project is oriented on various context layers both in the broad context of the northwest Russ and the narrow context of the nearest church built by Ivan Knyazev. But then again, this strictly romantic temple in the spirit of the new-Russian branch of modernism, is rather opposed by the new buildings, they look more serious and austere: the straight lines, the simple stereometry, the granite ground floor and even the helmet-shaped cupola - all these things put together form a different message, characteristic of the modern times (we could say, more serious; this temple is not a fairy-tale and not a decoration).

Land plot layout diagram © Eugene Gerasimov and Partners
The eight-pitch roof with three windows arranged in a "slope"'manner and the array of decorative inserts doubtlessly belongs to the Novgorod and Pskov tradition, reminding us of the fact that Saint Petersburg adjoins the lands of Russia's northwest, even though in the times when the Temple of Savior on the Ilyin was built, this city did not yet exist. It also did not exist in the times of Sophia of Novgorod, the outlines of the central cupola of which and the frequency of its windows probably influenced the drawing of the cupola in Eugene Gerasimov's project. The three high-ceiling forechurches can be traced back to the church of Parasceva on Torg - the architecture of the Kronstadt Square temple, as we can see, demonstrates at least two or three Novgorod sources: a reverence of sorts from the former industrial suburb of the secular Saint Petersburg to the old diocese of these lands, the Great Novgorod. The bell loft of two pillars with large beams can also be perceived as "Novgorod style".
At the same time, justice should be done also to the other part, less perceivable but nevertheless present in the context of the project: the frequent windows of the dome drum, the roof pitches, the helmet-shaped cupola, and the two towers at the entrance - the attentive observer may see in all this Kronstadt's Sea Temple (and at this point we remember that this is the Kronstadt Square). Otherwise, the temple built in 1913 is different, being too plateresque. Besides, let us consider the outlines of the plan of the temple under construction: the thin walls, the square of the naos, the cross-vault pillars are Saint Petersburg, almost Empire style - just like the granite ground floor together with the flat walls - even though the reliefs that are designed to be there on the walls (under the cornices or, rather, under the overhangs of the roof) do send us back to Novgorod, as well as to the pseudo- and the neo-Russian architecture of Saint Petersburg.
Meanwhile, the important thing about this architectural project is probably not so much the set of clearly readable allusions but the fact that the architects were able to tie them all together, taking (let's say so) the differential from the conservative tradition bringing it (to a certain extent) up to date. In this case, the base for generalization was the geometry which can even be seen in the name entry that calls the exedra a "quarter of a sphere". The degree of "geometrical" generalization is rather high here, it is this generalization that helps the architects to avoid losing themselves in the context and stylization, and it also gives us the right to mention the Ilyin Savior and the Kronstadt Saint Nicolas Temple in the same breath.
Interestingly, the generalization increases, and the recognizability of the prototypes decreases from the cereal nucleus of the temple to its periphery. Literally so: the cupola with an array of tall windows that are really cornice-high - which is really unprecedented for the church architecture - looks really fresh, while the west forechurch, cut through with a vertical stained glass, is, by the standards of the contemporary Russian church architecture, almost a defiance to the foundations.
As for the bell tower, it is kin not only to the Novgorod belfries, but also to the memorial stelae of modernism - so simple are its supports under the heavy gable resting on the brutal cantilevers. In a word, the architects really seem to have cope with their task of finding the optimum balance between the strict observance of tradition and, the architectural context, and the contemporary treatment of the form which allows, on the one side, to fit the temple in the surrounding modernist city, and on the other side - adapt the "literature" inevitable for the religious building.

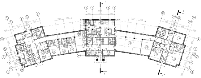
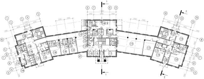
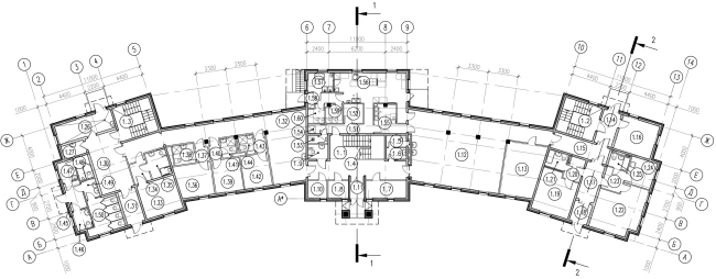
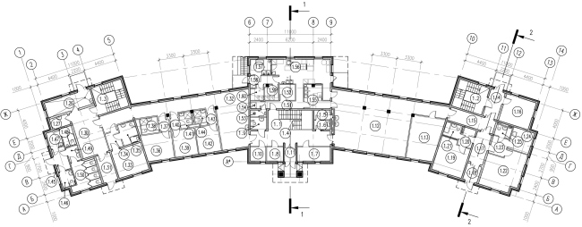
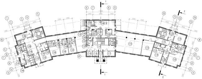
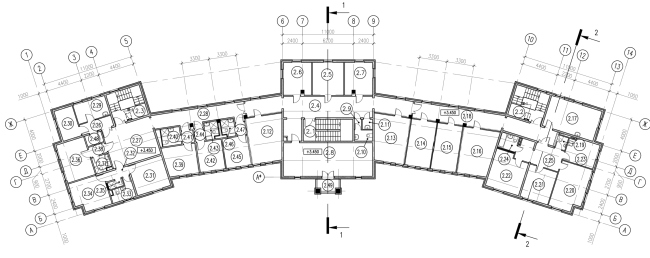
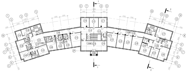
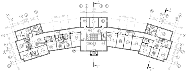
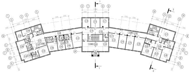
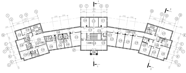
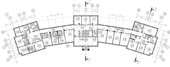
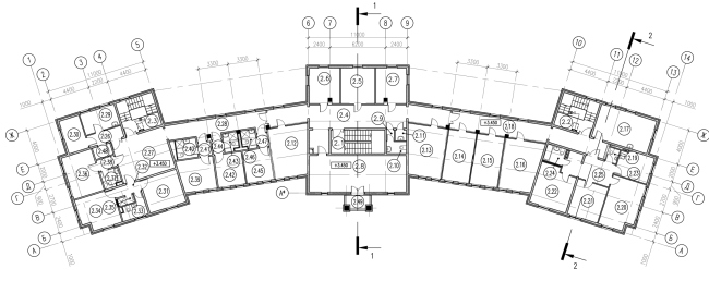
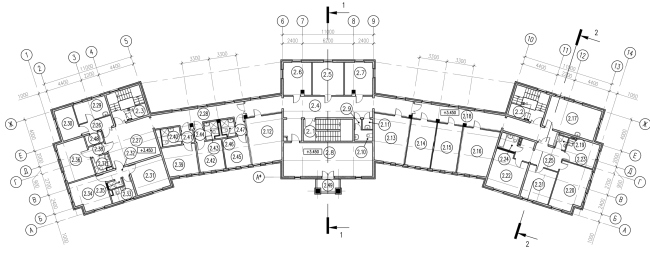
Plan of the first floor © Eugene Gerasimov and Partners

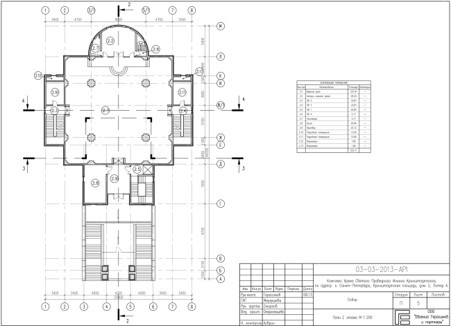
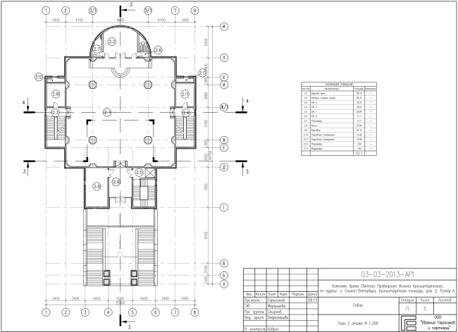
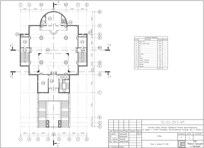
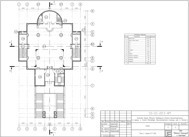
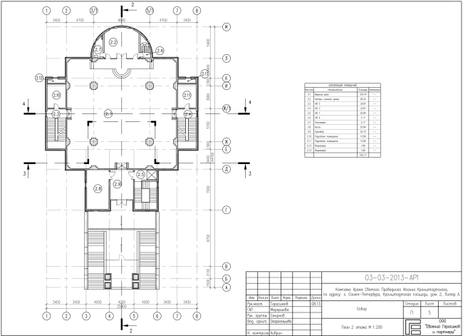
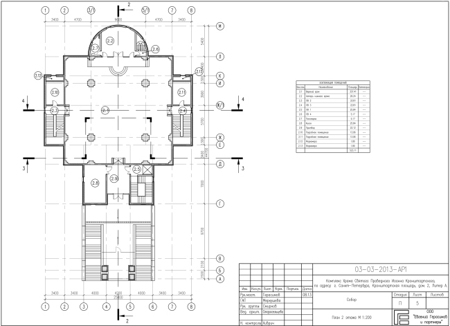
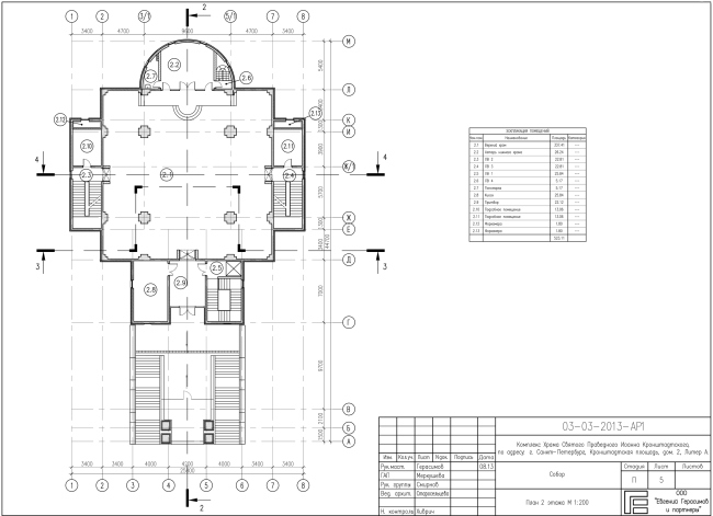
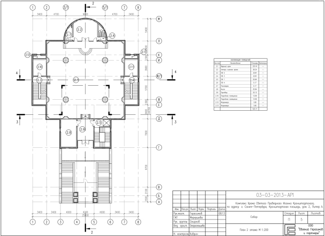
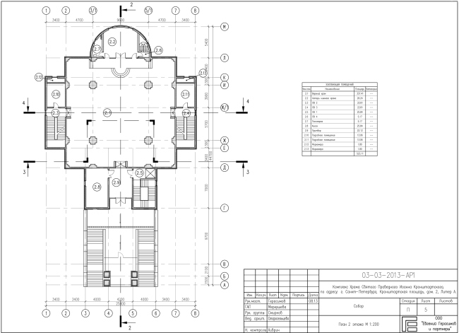
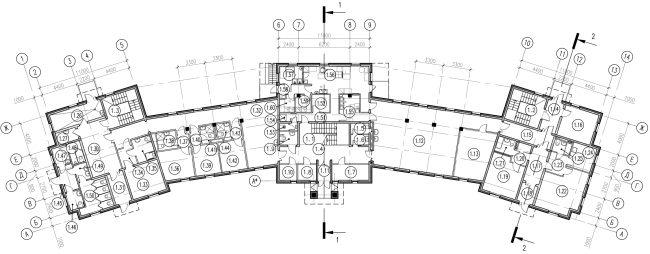
Plan of the second floor © Eugene Gerasimov and Partners

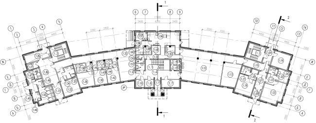
Plans of the third floor and the cupola drum © Eugene Gerasimov and Partners

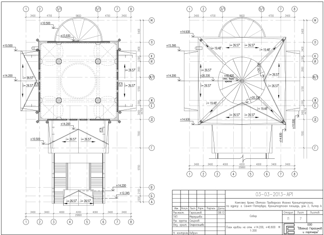
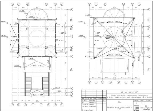
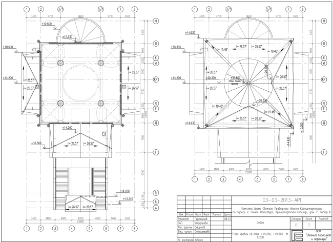
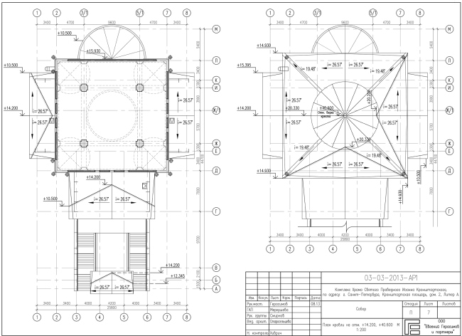
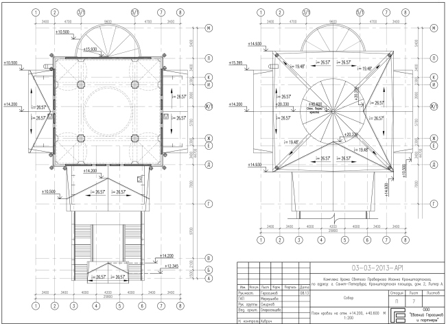
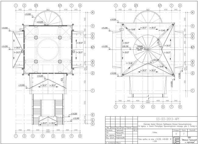
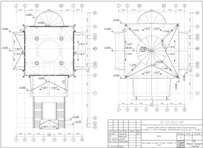
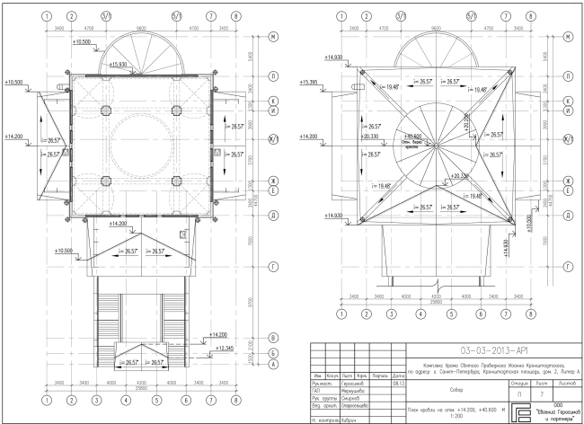
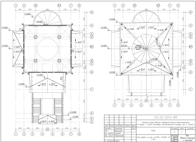
Plan of the roof © Eugene Gerasimov and Partners

Section plan 2-2 © Eugene Gerasimov and Partners

Section plans 3-3 and 4-4 © Eugene Gerasimov and Partners

Facade in the axes 1-8 © Eugene Gerasimov and Partners

Facade in the axes 9-1 © Eugene Gerasimov and Partners

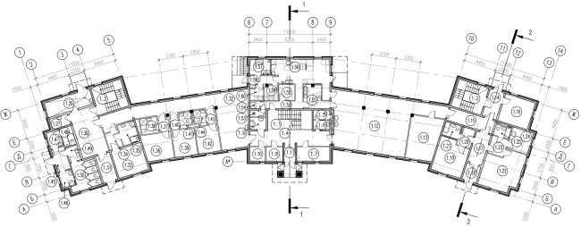
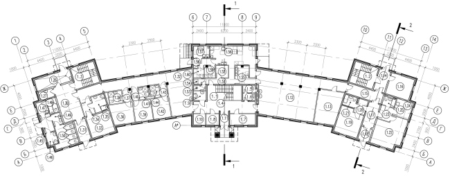
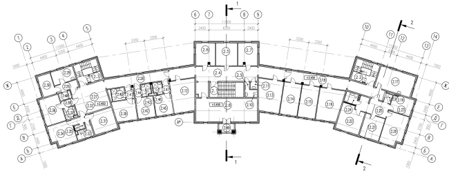
Plan of the first floor of the parish house © Eugene Gerasimov and Partners

Plan of the second floor of the parish house © Eugene Gerasimov and Partners

Plan of the roof of the parish house © Eugene Gerasimov and Partners

Parish house. Section 1-1, 2-2 © Eugene Gerasimov and Partners

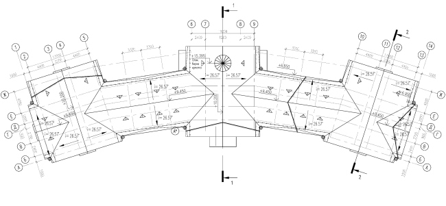
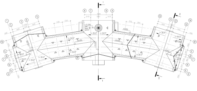
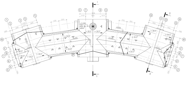
Parish house. Facade in the axes 1-14 © Eugene Gerasimov and Partners

Parish house. Facade in the axes 14-1 © Eugene Gerasimov and Partners
Perspective view of the complex © Eugene Gerasimov and Partners
Bird's height view of the complex © Eugene Gerasimov and Partners
Land plot layout diagram © Eugene Gerasimov and Partners
Plan of the first floor © Eugene Gerasimov and Partners
Plan of the second floor © Eugene Gerasimov and Partners
Plans of the third floor and the cupola drum © Eugene Gerasimov and Partners
Plan of the roof © Eugene Gerasimov and Partners
Section plan 2-2 © Eugene Gerasimov and Partners
Section plans 3-3 and 4-4 © Eugene Gerasimov and Partners
Facade in the axes 1-8 © Eugene Gerasimov and Partners
Facade in the axes 9-1 © Eugene Gerasimov and Partners
Plan of the first floor of the parish house © Eugene Gerasimov and Partners
Plan of the second floor of the parish house © Eugene Gerasimov and Partners
Plan of the roof of the parish house © Eugene Gerasimov and Partners
Parish house. Section 1-1, 2-2 © Eugene Gerasimov and Partners
Parish house. Facade in the axes 1-14 © Eugene Gerasimov and Partners
Parish house. Facade in the axes 14-1 © Eugene Gerasimov and Partners
|