Published on Archi.ru (https://archi.ru)

30.06.2014

Lost World


Architect:
Andrey Asadov
Alexander Asadov
Studio:
ASADOV architects

The project of reconstructing "Luzhniki" swimming complex by Asadov Bureau provided for keeping the old building fully intact, augmenting it with a new volume with the intellectual engineering content that would support a complex vegetation eco-system - the "lost world" amusement park - without the dinosaurs, though.

What the architects of Asadov Bureau did was place, inside the 1950's colonnade contour, a new parallelepiped volume, positioning it with a slight shift towards the Major Sport Arena, which resulted in a 24-meter cantilever awning with a backlight, under which it was planned to organize open-air shows. "What we wanted to do was maximally offset the purity of the classical solution with this new volume - share the architects. As its finishing material, we planned to use the glass-fiber reinforced concrete with a texture that looks a lot like laminated rock covered with live moss. 

So, with time, the "live facade" was supposed to start looking more and more like the natural rocky texture". The architects considered different options of coating the top part - besides the glass-fiber reinforced concrete covered with moss, it could have been decorated with cassettes of corten steel or structural glass shapes (and then it would have been perceived as an ice-encrusted surface). The theme of moss covering the facades of the building is picked up on the inside by the hydrophilous southern vegetation that is there all around the water park. Admiring the exotic landscapes is meant to be induced by the main attraction proposed by the architects - the giant "Russian mountain" that runs through all the levels - all the way from the top down to the swimming pool. On the usable roof of the new volume the authors are planning to organize a full-scale landscape oasis with a jogging track running along its perimeter, cafés, thermal zones, and spa islets (in the middle part of which, among the picturesque verdure, there are pools with springs, thermal waters and jacuzzis). Adorning the "oasis" with wild plants and rocks, the authors called it "Lost World at the Heart of Moscow". 

The image of the "lost world" can be traced back to the novel by Arthur Conan Doyle (the usable roof is the man-made version of the highland plateau) but still more to the movie of the same name where the characters get into another universe from an amusement park. 

What is interesting is the fact that the very process of forming the new volume looks a lot like creating the prequel - when the pre-story appears after the main story and then becomes one indivisible whole with it. The image of an organic self-regulating system is enhanced by the state-of-the-art energy-efficient engineering. As a whole, the complex of devices that are responsible for the lighting, humidity, and the motion of air, serves as a highly sensitive membrane that is capable of instantly reacting to the environment changes and supporting a comfortable microclimate. 

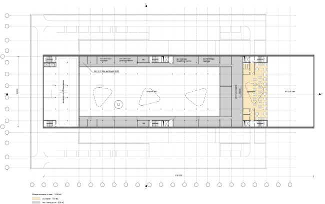
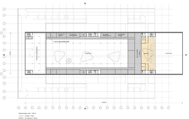
Concept of reconstructing the swimming complex of "Luzhniki" © Asadov Architectural Bureau
Concept of reconstructing the swimming complex of "Luzhniki" © Asadov Architectural Bureau
None
None
None
None
Concept of reconstructing the swimming complex of "Luzhniki" © Asadov Architectural Bureau
Concept of reconstructing the swimming complex of "Luzhniki" © Asadov Architectural Bureau
None
None
Concept of reconstructing the swimming complex of "Luzhniki" © Asadov Architectural Bureau
Concept of reconstructing the swimming complex of "Luzhniki" © Asadov Architectural Bureau
None
None
None
None
Concept of reconstructing the swimming complex of "Luzhniki" © Asadov Architectural Bureau
Concept of reconstructing the swimming complex of "Luzhniki" © Asadov Architectural Bureau
None
None
None
None
Concept of reconstructing the swimming complex of "Luzhniki" © Asadov Architectural Bureau
Concept of reconstructing the swimming complex of "Luzhniki" © Asadov Architectural Bureau
None
None
None
None
Concept of reconstructing the swimming complex of "Luzhniki" © Asadov Architectural Bureau
Concept of reconstructing the swimming complex of "Luzhniki" © Asadov Architectural Bureau
Concept of reconstructing the swimming complex of "Luzhniki" © Asadov Architectural Bureau
Concept of reconstructing the swimming complex of "Luzhniki" © Asadov Architectural Bureau
None
None
None
None
Concept of reconstructing the swimming complex of "Luzhniki" © Asadov Architectural Bureau
Concept of reconstructing the swimming complex of "Luzhniki" © Asadov Architectural Bureau
None
None
None
None
None
None
None
None
None
None
None
None
None
None
None
None
None
None
None
None
None
None